- Bạn đang đi tìm ý tưởng thiết kế nhà ống đẹp mới nhất cho tổ ấm của mình?
- Một ngôi nhà ống có 3 phòng ngủ, đáp ứng thoải mái cho các thành viên yêu quý?
- Nhà có đầy đủ những tiêu trí cần thiết như: chi phí xây dựng giá rẻ, không gian tiện nghi, kiến trúc hợp thời?
Thì phương án mẫu nhà ống 2 tầng 3 phòng ngủ 1 phòng thờ nắm bắt xu hướng mới nhất, được nhiều chủ đầu tư chú ý có thể sẽ là bài viết hữu ích dành cho bạn. Được biết, hiện nay có rất nhiều gia đình mong muốn xây dựng mái ấm riêng tư nhưng kinh phí luôn là bài toán nan giải nhất. Biết được suy nghĩ cũng như tâm tư của nhiều gia đình, các kiến trúc sư đã đưa ra phương án thiết kế nhà 2 tầng đẹp tiện nghi hội tụ đầy đủ những mong muốn của nhiều hộ gia đình hiện nay gửi đến bạn tham khảo. Chỉ với 600 triệu, bạn hoàn toàn có thể sở hữu cho mình một ngôi nhà 2 tầng sang trọng, tiện nghi, giá rẻ. Điều mà nhiều cặp vợ chồng mới cưới và nhiều hộ gia đình mơ ước sở hữu. Với cách thiết kế kiến trúc tối giãn và sự tối ưu không gian sinh sống một cách tốt nhất, nhà ống 2 tầng này đang là chủ đề được săn đón nhiều. Không quá bề thế như những căn biệt thự sang trọng, không quá lộng lẫy như những căn nhà cao tầng, chỉ qua nét đẹp đơn giản của kiến trúc nhà ống này cũng đủ gây kích thích đến những ai lần đầu nhìn thấy. Cùng chúng tôi điểm ngay qua phương án thiết kế mặt tiền và bản vẽ công năng nhà ống để hiểu rõ một cách cụ thể nhé.
Phương án thiết kế mẫu nhà ống 2 tầng 3 phòng ngủ 1 phòng thờ đẹp
Mặt tiền nhà ống 2 tầng thiết kế theo kiểu dáng đơn giản, phối hợp nhẹ nhàng từ các tone màu trung tính cùng chi tiết trang trí phối hình vuông chắc chắn. Phía trước là khu vực để xe hơi riêng thoải mái cho gia chủ, bao xung quanh là hàng rào cao kiên cố. Phối cảnh phía trước trang trí không quá cầu kỳ, sử dụng đá hoa cương chống trầy xước nhằm tăng thêm phần giá trị. Đối với nét đẹp tinh tế của căn nhà ống 2 tầng này khi xây dựng trong khu vực nhà sang trọng liền kề sẽ toát lên sự sang trọng và bề thế. Dễ dàng xây dựng trong nhiều lô đất khác nhau, từ diện tích hẹp cho đến diện tích lớn chính là ưu điểm nổi bật của kiến trúc nhà ống 2 tầng hiện đại này.

Phối cảnh mặt tiền nhà ống 2 tầng 3 phòng ngủ và 1 phòng thờ
Thông tin phương án thiết kế nhà đẹp:
- Diện tích: 4 x 16 = 64m2.
- Thời gian hoàn thiện: Khoảng 2 tháng.
- Kiểu dáng: nhà ống 2 tầng phong cách hiện đại.
Công năng các căn phòng trong ngôi nhà 2 tầng này được kiến trúc sư dành thời gian bố trí khá tối ưu, tận dụng tối đa diện tích nhằm việc tăng diện tích sử dụng một cách tốt nhất cho gia đình. Các căn phòng trong ngôi nhà sắp xếp theo khoa học, bố trí phù hợp với phong thủy của chủ nhân. Tuy diện tích xây dựng chỉ có 64m2, nhưng bạn cũng có thể nhìn vào bản vẽ công năng thấy sự tiện nghi của nó đúng không nào?

Thiết kế nhà ống 2 tầng hiện đại với từng chi tiết nổi bật
Công năng thiết kế có đến 3 phòng ngủ, đây là phương án thiết kế phù hợp cho các hộ gia đình có nhiều thành viên sinh sống hoặc thường xuyên có các vị khách quý đến thăm. Công năng các căn phòng tầng 1 và tầng 2 thiết kế cạnh tường, giúp lối đi chung của ngôi nhà được nới rộng ra, đem lại sự thoải mái cho các thành viên khi sinh hoạt.

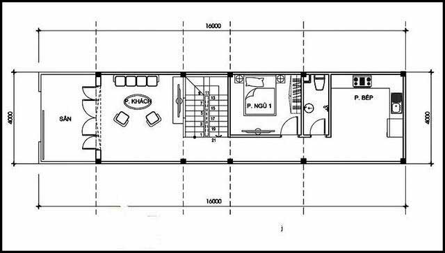
Mặt bằng tầng 1
Công năng tầng 1 thiết kế: sân trước để oto rộng rãi, phòng khách, cầu thang đi lên tầng, 1 phòng ngủ cho bố mẹ, 1 phòng vệ sinh chung, khu vực sản xuất các món ăn ngon.

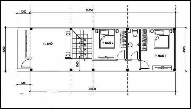
Mặt bằng tầng 2
Công năng tầng 2 thiết kế: Phòng thờ cúng ông bà tổ tiên nằm khu vực riêng yên tĩnh, 2 phòng ngủ cho con cái, 1 phòng vệ sinh chung cho cả tầng.
Nguồn tin: https://wedo.vn/
Xem thêm tin mới:


































