Biệt thự 3 tầng là một thiết kế dành cho gia đình có nhiều thành viên chung sống. Không chỉ mở ra một không gian rộng lớn và thuận tiện mà đây còn là thế giới riêng của mỗi thành viên trong gia đình. Bài viết sau đây chúng tôi xin giới thiệu đến các bạn mẫu nhà biệt thự 3 tầng hiện đại trên diện tích 10 x18m có 5 phòng ngủ với thiết kế hiện đại và tính thẩm mỹ cao.
Được thiết kế theo cấu trúc của một biệt thự mái thái 3 tầng bao gồm: 1 phòng khách, 1 khu vực sinh hoạt cho cả gia đình, gara tiện lợi, 1 bếp và khu vực ăn uống riêng biệt, 5 phòng ngủ cho các thành viên, mỗi phòng được trang bị nhà vệ sinh riêng và 1 phòng tắm chung nằm ở tầng 1. Hy vọng thiết kế này làm hài lòng khách hàng.
Mẫu thiết kế nhà biệt thự 3 tầng hiện đại 10x18m

Ngôi nhà xuất hiện đồ sộ và rộng rãi với diện tích rộng, không gian thoáng mát với nhiều cửa sổ, cửa ra vào và cửa sau. Gạch ốp tường đẹp kết hợp với tông màu trắng tạo sự tinh tế và nhẹ nhàng cho toàn bộ biệt thự. Thiết kế mái thái được ưa chuộng sử dụng với màu đỏ rực rỡ, tôn lên vẻ đẹp của tòa nhà. Cây cột trước sảnh hỗ trợ hiên nhà, tạo cảm giác vững chắc, điểm đến đầu tiên khi vào nhà.

Đây là một mô hình biệt thự mang phong cách hiện đại. Theo đó, các kiến trúc sư đã sắp xếp không gian một cách hợp lý và thông minh, chia làm 3 phần riêng biệt: 1 bên là sảnh phòng khách với điểm nhấn là phần mái bắt mắt và ấn tượng. Bên cạnh đó là khu vực để xe sử dụng hệ thống cửa thông minh. Phần còn lại sẽ là không gian mở với một khu vườn nhỏ dành cho xe máy và cửa ra vào kết nối với hiên nhà. Chủ nhà có thể sắp xếp một bộ bàn trà ở đây làm nơi thư giãn, nghỉ ngơi, đắm mình trong không khí trong lành xung quanh.

Mặt bằng tầng 1
Sau khi đi qua cửa chính, bạn sẽ đến phòng khách, nơi có diện tích rộng và không gian thoáng mát khi kết nối với khu vườn ngay bên cạnh. Tiếp theo là phòng ăn, ở đây bố trí đủ bàn ghế cho 10 người ăn. Tiếp theo là nhà bếp đầy đủ tiện nghi, một nhà vệ sinh chung cho toàn bộ tầng 1 được đặt bên cạnh phòng lưu trữ và phòng giặt ủi. Cũng trong khu vực này, một phòng ngủ nhỏ cho người giúp việc sẽ được sắp xếp hợp lý và thuận tiện. Để phục vụ cho nhu cầu của chủ nhà, một gara vừa phải được đặt bên cạnh phòng khách.

Mặt bằng tầng 2
Đối diện hệ thống cầu thang là khu vực sinh hoạt chung, nơi cả gia đình có thể quây quần bên nhau để vui chơi và trò chuyện. Phòng ngủ chính rộng rãi nằm ngay trước tầng 2, nơi có nhà vệ sinh và phòng tắm hiện đại riêng biệt. Hai phòng ngủ cho trẻ em được đặt ở phía sau, mỗi phòng đều có WC riêng.

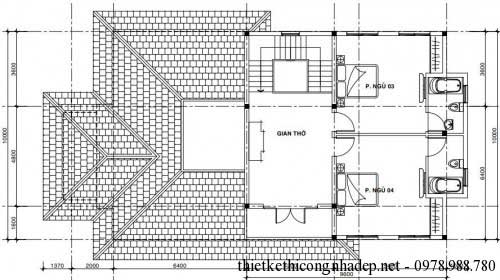
Mặt bằng tầng 3
2 phòng ngủ còn lại sẽ được đặt trong không gian này. Mỗi phòng có khu vực nhà vệ sinh riêng. Tiếp theo là một phòng thờ với một cửa ban công, thiết kế mặt bằng này có diện tích nhỏ hơn tầng một và tầng hai.

Mặt bằng tầng mái
Kiến trúc mái Thái ấn tượng, thiết kế theo từng bậc bắt đầu từ phần mái hiên lên đến tầng 2 và kết thúc tại tầng 3.
Trên đây là mô hình biệt thự 3 tầng hiện đại mà chúng tôi xin giới thiệu với khách hàng. Đây là một thiết kế được xây dựng trên quỹ đất rộng 15x25,5m, trong đó diện tích xây dựng biệt thự là 10,518m.
Nguồn: thietkethicongnhadep.net
Xem thêm tin:

































