Mẫu nhà 2 tầng 5x15m là mẫu nhà rất phổ biến tại khu vực thành phố hiện nay vì đặc trưng hẹp chiều rộng, chiều dài sâu. Những ngôi nhà như thế này thì bố trí không gian như thế nào, lựa chọn nội thất có lưu ý gì đặc biệt, và mẫu nhà 2 tầng 5m x 15m nào đang thuộc top xu hướng thiết kế hiện nay?
Lựa chọn thiết kế nhà nào cho mẫu nhà 2 tầng 5m x 15m?
Với diện tích khá nhỏ, chuyên gia, kiến trúc sư khuyên gia chủ lựa chọn thiết kế nhà ống vì:
Nhà ống sinh ra với công năng tối đa diện tích xây dựng cho gia chủ, càng đặc biệt hơn khi gia chủ đang sở hữu những diện tích nhỏ thì nhà ống phát huy được tối đa được thiết kế của mình.

Thiết kế nhà ống đem đếm cho gia chủ không gian đáp ứng được không gian sinh hoạt chung cũng như không gian sinh hoạt riêng của từng thành viên trong gia chủ.
Thời gian thi công nhanh chóng cũng như chi phí xây dựng phù hợp là ưu điểm mà khách hàng luôn hướng đến hiện nay, phù hợp với thu nhập bình quân của gia đình Việt Nam sinh sống tại khu vực thành phố.

Tuy nhiên những mẫu nhà này lại có nhược điểm: tạo nên sự bí bách cho không gian nhà ở, khó lưu thông không khí giữa các tầng, các phòng với nhau, thiếu như ánh sáng tự nhiên vào căn phòng. Phần nhược điểm xuất hiện ở những ngôi nhà phố thì càng khiến gia chủ cảm thấy khó chịu với chính căn nhà của mình bởi vốn không gian phố thị đã ngột ngạt, bí bách.
Nhưng hiện nay với sự phát triển không ngừng của ngành kiến trúc và xây dựng, đặc biệt trong lĩnh vực xây dựng nhà ở dân sinh hiện nay thì nhược điểm của ngôi nhà ống được khắc phục bằng những phương án như sau:
Sử dụng bố trí lệch tầng giúp ngôi nhà lưu thông không khí giữa các tầng với nhau, đặc biệt với phương án này sẽ giúp tạo nên một mặt tiền ấn tượng cho gia chủ sở hữu.

Bố trí không gian xanh ngay trong ngôi nhà, đặc biệt với những ngôi nhà 2 tầng 5m x 15m như trong bài viết này có thể bố trí dọc theo cầu thang thông tầng, ở khu vực ban công tầng hai hoặc tạo tiểu cảnh cây ở khu vực gầm cầu thang.

Phương án thứ 3 sử dụng tum ở khu vực tầng thượng. Tại khu vực này gia chủ có sử dụng diện tích này với nhiều công năng khác nhau ngoài việc tạo nên một vườn cây xanh ngay tại khu vực tại gia. Tuy nhiên, phương án này tốn thêm của gia chủ một khoản chi phí không nhỏ.
Bố trí không gian nhà ống 2 tầng 5m x 15m như thế nào?
Đây là câu hỏi được rất nhiều gia chủ quan tâm cho ngôi nhà có quy mô và diện tích tương tự của chính mình? Cùng theo dõi cách bố trí không gian tham khảo cho ngôi nhà này dưới đây.

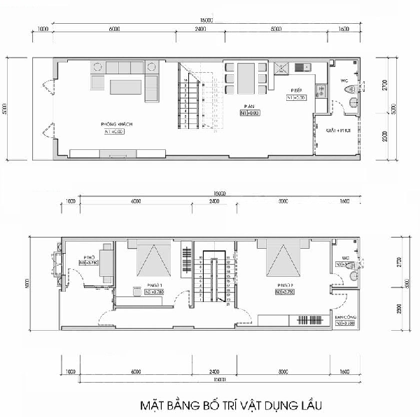
Cách bố trí đầu tiên với những ngôi nhà 2 tầng 5m x 15m dành cho gia đình có ít thành viên cùng nhau sinh sống, từ 3 đến 4 thành viên, gia chủ chú trọng vào không gian sinh hoạt chung.
Với bố trí này ở mặt bằng tầng 1 sẽ bao gồm: phòng khách, 1 bếp ăn cùng bàn ăn, nhà vệ sinh bố trí cuối nhà cùng với khu vực giặt và phơi đồ, cầu thang bố trí phân cách giữa không gian phòng khách và không gian phía sau. Lên đến khu vực tầng 2: phòng thờ, 2 phòng ngủ, 1 nhà vệ sinh chung. Cầu thang được bố trí phân cách giữa 2 phòng ngủ với nhau. Có 2 ban công: 1 chiếc song song với phòng thờ, nằm ở mặt tiền ngôi nhà, ban công thứ hai được bố trí song song với nhà vệ sinh.
Phương án bố trí thứ hai dành cho mẫu nhà 2 tầng 5m x 15m dành cho những gia đình có nhiều thành viên, nhiều thế hệ gia đình sinh sống, từ 4 đến 6 người, cùng xem cách bố trí dưới đây:

Gần như không có sự khác biệt quá nhiều so với phương án thiết kế thứ nhất tuy nhiên diện tích không gian thu hẹp lại, có thêm 1 không gian ngủ phù hợp với ngôi nhà đông người.
Với mặt bằng tầng 1 sẽ bao gồm: 1 phòng khách, 1 phòng ngủ, 1 bếp ăn và 1 nhà vệ sinh. Cầu thang được bố trí ngăn cách giữa phòng khách và phòng ngủ với nhau. Cách bố trí này phù hợp với quan niệm của một số gia chủ không muốn riêng biệt không gian bếp với phòng khách. Hoặc gia chủ bố trí như phương án thứ nhất, phòng ngủ đẩy về phía sau, nối liền hai diện tích phục vụ gia chủ chú trọng về diện tích sinh hoạt chung.
Tầng 2 bao gồm: 1 sân thượng, 1 phòng thờ, 2 phòng ngủ và 1 nhà vệ sinh chung. Cầu thang được bố trí ngăn cách không gian thờ với 2 phòng ngủ với nhau.
Top mẫu nhà 2 tầng 5m x 15m được lựa chọn nhiều nhất hiện nay?
Đi cùng với 2 cách bố trí không gian sẽ có phần mặt tiền tương ứng, tuy nhiên phần mặt tiền này rất đa dạng bởi sở thích cũng như cá tính gia chủ khác nhau. Chính vì vậy đã làm nên top mẫu nhà 2 tầng 5m x 15m đáng chú ý, và là mẫu thiết kế được chú ý lựa chọn trong tương lai.

Mẫu thiết kế đầu tiên dành cho ngôi nhà 2 tầng 5m x 15m theo đuổi phong cách hiện đại, với phần mặt tiền được thiết kế liền khối. Điểm khiến ngôi nhà nhà này thu hút một phần cũng là thiết kế liền khối và không sử dụng ban công. Gia chủ ngôi nhà này tập trung hoàn toàn vào phần thiết kế và nội thất bên trong, tận dụng một cách triệt để diện tích vốn có ngôi nhà để tạo nên không gian sinh hoạt tiện nghi.
Bố trí hệ thống cửa kính cỡ lớn ở khu vực tầng 1 và tầng 2 cũng đã giúp ngôi nhà này có đủ ánh sáng vào ban ngày, thông thoáng khi giữa các tầng với nhau, gia chủ không cảm thấ ngột ngạt bởi 4 bức tường bao quanh nhà.

Mẫu thiết kế nhà đẹp thứ hai dành cho ngôi nhà 2 tầng 5m x 15m vẫn là phong cách xây dựng hiện đại đơn giản. Tại sao lại là đơn giản bởi ngay ở phần mặt tiền ngôi nhà không có bất cứ một hoa văn cầu kỳ nào, cũng không sử dụng bất cứ một kiến trúc cầu kỳ, chỉ đơn giản là việc sử dụng màu sắc khác biệt giữa hai tầng với nhau. Ở tầng 1 gam màu trắng, trung tính, lên đến tầng 2 sử dụng nâu lạnh, với sắc cam nổi bật vừa nổi bật lại vừa thu hút. Đây chính là mẫu thiết kế phổ biến, áp dụng rất nhiều ở khu vực nông thôn.

Mẫu thiết kế thứ ba vẫn tiếp tục theo đuổi phong cách hiện đại, nhưng lại mang đến vẻ đẹp của sự sang trọng, tiện nghi, rất phù hợp với nhộn nhịp của khu vực thành phố.

Mẫu thiết kế thứ ba này với 2 mẫu nhà được đưa vào ví dụ, điển hình của lối kiến trúc hiện đại kết hợp với gara oto được bố trí mặt tiền. Nổi bật với việc sử dụng thiết kế hình khối được áp dụng cùng với gam màu trắng kết hợp với ốp đá granit hay sử dụng sơn giả gỗ đã mang đến chiều sâu về không gian, sự sang trọng. Hiện đại thể hiện rõ ràng qua việc sử dụng đa dạng các vật liệu trong xây dựng: từ gạch, xi măng, … truyền thống đến vật liệu kính, khung nhôm được áp dụng cửa, đến ban công ngôi nhà. Đặc biệt không gian xanh được chú ý, bố trí tại khu vực tầng hai để ngôi nhà.
Điểm giúp mẫu này luôn được chú ý, trở thành top mẫu thiết kế dẫn đầu hiện nay chính bởi có gara được bố trí ngay tại nhà, gia chủ không phải đau đầu với việc chỗ gửi xe xung quanh nhà.

Mẫu thiết kế nhà 2 tầng 5m x 15m kết hợp tum theo phong cách hiện đại, tinh tế. Khu vực tầng 1 và tầng 2 của ngôi nhà được bố trí hoàn toàn bằng hệ thống cửa kính hết diện tích mặt tiền. Việc sử dụng chất liệu kính tràn hết mặt tiền như vậy mang đến ánh sáng tự nhiên vào ban ngày cùng với luồng không khí cho ngôi nhà. Và đặc biệt giúp tạo nên một không gian mở, cảm giác không gian ngôi nhà rộng hơn nhiều so với diện tích thực tế của gia chủ sở hữu.
Khu vực tum chính là điểm đáng chú ý khi gia chủ sử dụng không gian này với vườn cây xanh tạo nên không gian nghỉ ngơi, nhưng có thể kết hợp đẩy không gian thờ lên vị trí này để 2 tầng dưới các diện tích khác rộng hơn phục vụ nhu cầu của gia chủ.

Vẫn là mẫu nhà có tum nhưng ở thiết kế này, gia chủ có ban công tầng 2 rộng hơn và cũng không bố trí hệ thống cửa kính hết diện tích mặt tiền. Hệ thống cây xây được bố trí xuyên suốt giữa các tầng, từ ngoài và trong nhà.
Ngôi nhà này thu hút người nhìn mặt tiền bởi: Cổng sắt kết hợp với ốp đã tạo nên ấn tượng mạnh mẽ. Ban công khu vực tầng 2 sử dụng chất liệu kính, trong khi ban công ở tầng 3 lại là khối bê tông được cách điệu với hoa văn, vô cùng phù hợp với xây xanh được trồng trên diện tích này. Tất cả làm nên một ngôi nhà theo phong cách hiện đại vô cùng cuốn hút vói từng không gian riêng.

Mẫu thiết kế cuối cùng dành ngôi nhà 2 tầng 5m x 15m sử dụng mái Thái. Đây là mẫu thiết kế nằm top thiết kế ấn tượng, luôn là sự lựa chọn gia chủ trong xây dựng nhà.

Với việc sử dụng mái Thái có độ dốc lớn, những ngôi nhà như thế này trở nên bề thế hơn rất nhiều, cảm giác sự sang trọng, hơi hướng cổ điển nhưng vô cùng hiện đại, phù hợp với nhịp sống nhộn nhịp của thành phố. Đặc biệt mái Thái có tuổi thọ rất lớn, cũng như che chắn bảo vệ rất tốt cho ngôi nhà cũng là điểm cộng gia chủ lựa chọn thiết kế nhà này.


































