Mẫu nhà 2 tầng 7x10m trở thành từ khóa được rất nhiều gia chủ tìm kiếm trên trang web tìm kiến hiện nay bởi đây là diện tích phổ biến để tiến hành xây dựng nhà ở dân sinh hiện nay.
Mẫu nhà 2 tầng 7x10m trở thành từ khóa được rất nhiều gia chủ tìm kiếm trên trang web tìm kiến hiện nay bởi đây là diện tích phổ biến để tiến hành xây dựng nhà ở dân sinh hiện nay. Vậy làm sao để có mẫu nhà 2 tầng 7x10m hoàn hảo từ thiết kế đến tiện lợi công năng sử dụng?
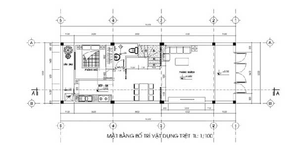
Phương án thiết kế mặt bằng nhà 2 tầng 7x10m tiện lợi

Với một chiều ngang 7m, kiến trúc sư sẽ chia không gian nhà thành 2 khu vực song song với nhau. Trong bản thiết kế này nhìn thấy khu vực để xe song song với không gian phòng khách. Khu vực bếp + phòng ăn bố trí song song với khu vực phòng ngủ ở vị trí cuối nhà. Khu vực cầu thang đặt giữa nhà, phân cách hai không gian phía trước: khu vực để xe, phòng khách và không gian ngủ, bếp + ăn phía sau. Nhà vệ sinh được đặt ngay sau phòng khách, tiếp giáp với khu vực bếp ăn + ăn.

Đối với khu vực tầng 2 của mẫu nhà 2 tầng 7x10m sẽ có bố trí thiết kế chia thành hai khu vực song song giống như không gian tầng 1. Không gian tầng 2 sẽ được bố trí như sau:
Hai phòng ngủ được bố trí cùng một bên, 2 nhà vệ sinh bố trí bên trong không gian ngủ để đảm bảo độ riêng tư cho người sử dụng. Phòng thờ được bố trí tại một góc nhỏ trong căn nhà phù hợp với phong thủy.
Với mẫu nhà 2 tầng 7x10m này, gia chủ sẽ bố trí thêm khu vực tầng thượng tùy theo nhu cầu sử dụng chính mình, ví dụ như làm sân giặt và phơi đồ, hay không gian xanh được đặt trong không gian nhà đáp ứng tiêu chuẩn đưa thiên nhiên vào nhà có diện tích từ 50m2 trở lên. Gia chủ có thể tham khảo cách bố trí dưới đây cho căn nhà của mình.

Không gian bên trên tầng thượng bố trí tương tự giống với hai không gian tầng 1 và 2 bên trên. Với một bên là sân thượng có diện tích lớn và khu vực cầu thang, bên còn lại sân phơi, phòng giặt và sân thượng thứ hai.
Với cách bố trí như trên gia chủ sẽ tách biệt được không gian sinh hoạt đồng thời cho thành viên trong gia đình khu vực sinh hoạt có diện tích rộng rãi cùng với sự riêng tư yên tính. Ngoài cách bố trí như trên, gia chủ có thể tham khảo cách bố trí thứ hai bên dưới đây:

Cách bố trí thứ hai này, gia chủ sẽ không phân chia không gian các tầng thành hai phần không gian riêng nữa mà sẽ bố trí theo chiều dọc với sự sắp xếp không gian lần lượt. Với không gian tầng 1 (tầng trệt) sau sân trước sẽ là không gian phòng khách. Sau đí là bàn ăn và song song là khu vực cầu thang và nhà vệ sinh được bố trí ngay cạnh cầu thang để tiết kiệm diện tích cho ngôi nhà. Giữa hai khu vực này gia chủ đập thông phòng khách và khu vực bàn ăn với nhau để tạo ra không gian mở, tăng diện tích cũng như nhấn mạnh vào chiều sâu cho ngôi nhà. Tuy đập thông nhưng gia chủ vẫn sẽ sử dụng vách ngăn CNC với những cách điệu hoa văn, họa tiết phù hợp với phong cách thiết kế của ngôi nhà. Với việc sử dụng vách ngăn này không làm ảnh hưởng đến ánh sáng của căn nhà cũng như luồng khi lưu thông.
Sau cùng là căn ngủ nhỏ được bố trí song song với không gian bép hiện đại nhỏ gọn. Cuối căn nhà là không gian sân sau với diện tích nhỏ để lưu thông khí ở khu vực bếp và không gây ám mùi lên không gian phía trên.
Không gian tầng 2 (tầng lầu) cũng sẽ được bố trí với hai phòng ngủ với hai nhà vệ sinh bên trong. Khu vực cầu thang ở giữa ngăn cách hai phòng ngủ với nhau. Không gian thờ được bố trí tại khu vực vừa đủ trong không gian này và ban công.
Gia chủ có thể tham khảo hai cách bố trí phía trên để có thể lựa chọn cách bố trí phù hợp với diện tích cũng như mục đích sử dụng của thành viên. Cách bố trí nào cũng vô cùng tiện lợi, đáp ứng đầy đủ các công năng.
Mẫu nhà 2 tầng 7x10m nằm top thiết kế hiện đại ngày nay

Bắt đầu mẫu thiết kế nhà 2 tầng 7x10m ấn tượng, lot xu hướng thiết kế hiện nay thì kể đến ngôi nhà theo đuổi phong cách hiện đại với điểm nhấn ốp giả gỗ ấn tượng tại khu vực mặt tiền. Phần mái nhà được làm cao hơn so với thiết kế thông thường bên ngoài là lam chống nắng giả gỗ kết hợp mái xéo đã phá đi thiết kế thường thấy ở khu vực mái so với mái bằng thông thường trước đây. Ở khu vực cổng rào của ngôi nhà, gia chủ bố trí hai cổng tiện ích: một bên là cổng sắt với kích thước nhỏ nhắn và một bên là hệ thống cửa cuốn phù hợp với gara oto di chuyển kết hợp với tường gạch ốp đá nhám ngăn giữa hai cổng mang lại ấn tượng cá tính của gia chủ.

Phần mái được làm cao và sử dụng mái xéo nhưng là mái xéo đặt lệch nhau cũng là mẫu thiết kế xu hướng nhà đẹp 2 tầng 7x10m hiện nay. Cùng với thiết kế mái chia làm hai khu vực thì phần tầng bên dưới cũng có thiết kế tương tự phù hợp với tổng thể. Ban công sử dụng kính cường lực chắc chắn, hiện đại với cây xanh được bố trí đã nhấn mạnh thêm sự hiện đại trong tổng thể căn nhà. Ngôi nhà này hiện lên sự sang trọng nhờ vào ốp giả gỗ tại khu vực mặt tiền tầng hai, và ốp đá bóng ở tầng 1.

Mái lệch tiếp tục được sử dụng cho thiết kế nhà 2 tầng này 7x10m này nhưng mẫu thiết kế này mang đến sự sang trọng tuyệt đối nhờ vào việc sửu dụng màu nâu trầm ở khu vực mặt tiền. Với mẫu thiết kế này gia chủ nhấn vào khu vực sân thượng được bố trí lửng giữa hai tầng: Bên dưới là gara oto, bên trên giống như quán café với không gian yên tĩnh của riêng mình.

Mái xéo tiếp tục thống lĩnh thiết kế nhà ở dân sinh hiện nay với mẫu thiết kế tiếp theo. Ngôi nhà 2 tầng 7x10m này hiện lên với thiết kế đơn giản phối màu giữa trắng và vàng ở tầng hai, cùng với ốp đá nâu đen ở tầng 1. Với thiết kế ngôi nhà này hãy chú ý đến tầng mái, thay vì sử dụng hết diện tích cho mái thì gia chủ để lại một phần diện tích để biến thành không gian ban công tầng thượng với bố trí rộng rãi với mục đích trở thành một không gian thư giãn.

Một trong những mẫu thiết kế dành cho nhà 2 tầng 7x10m đạt hiệu quả thẩm mỹ cao, phù hợp với những gia chủ mong muốn sở hữu không gian đậm phong cách châu Âu. Sử dụng tone màu trắng kết hợp với vàng điểm nhấn mang đến sự sang trọng cho không gian. Màu vàng xuất hiện tại cột trụ của căn nhà, với phần gach được ốp chân vừa bảo vệ cột trụ vừa tạo điểm nhấn. Hay xuất hiện tại khu vực ban công bằng sắt với hoa tiết được uốn cong mềm mại cổ điển, hay là đá ốp ở khu vực mái. Thiết kế đối xứng tầng trên tầng dưới, nhấn vào khung cửa gỗ với sắc gỗ đặc trưng nổi bật. Đặc biệt là khu vực mái được đổ cao, thiết kế lối giật cấp ấn tượng mang đến cái nhìn tổng thể đồ sộ của kiến trúc tân cổ điển đặc trưng.

Tiếp tục là thiết kế theo phong cách tân cổ điển sang trọng, tuy nhiên mẫu thiết kế này hướng đến sự nhã nhặn cùng với tối giản trong họa tiết thiết kế. Mẫu thiết kế nhà 2 tầng 7x10m này có tầng hầm để oto vô cùng rộng rãi, cùng với tầng thượng ấn tượng. Trước khi bước vào không gian nhà sẽ là thiết kế bậc tam cấp với hai bên là bồn cây được ốp đá nhám ấn tượng – điều này đã mang đến không gian cao ráo hơn cho ngôi nhà. Mặt tiền tiếp tục gây ấn tượng bởi hệ thống cột sử dụng linh hoạt: Tầng 1 sử dụng cột trong mềm mại, lên đến tầng 2 là cột trụ vuông vực được đặt ẩn vào tường. Thêm nữa việc sử dụng hệ thống cửa có mái vòm với kích thước lớn đã mang đến kiến trúc thẩm mỹ hoàn hảo châu Âu trong ngôi nhà này. Khu vực tầng thượng thiết kế hở mang đến không gian thông thoáng với cây xanh phù hợp thư giãn tại gia cùng với luồng không khí vào trong căn nhà.

Với mẫu nhà 2 tầng 7x10m không thể không nhắc đến mẫu thiết kế dành cho mẫu nhà theo kiến trúc biệt thự ấn tượng. Sử dụng thiết kế chữ L gia chủ hoàn toàn có thể sở hữu một căn biệt thự tại khu vực thành phố với không gian sử dụng rộng rãi.
Mẫu thiết kế này gia chủ sử dụng phong cách thiết kế hiện đại đặc trưng với khối hộp vuông vực để tối đa được diện tích sử dụng bên trong của gia chủ. Nhược điểm thiết kế chữ L chính là việc lưu thông không khí và ánh sáng, chính vì thế mà kiến trúc sư bố trí rất nhiều cửa sổ cho ngôi nhà để hạn chế tối đa nhược điểm này và có thể nhìn thấy ở mặt tiền của ngôi nhà này. Điểm nhấn ở khu vực tối màu sử dụng ốp đá nhám tạo nên ấn tượng về sự chắc chắn. Việc sử dụng mái ngói với thiết kế phủ toàn bộ không gian mang đến kiến trúc vừa phải, phù hợp với tổng thể. Bên ngoài được bao bọc với hệ thổng cổng rào, kết hợp giữa khối gạch vuông vực với hệ thống rào sắt sơn đen tĩnh điện chắc chắn. Với hai cổng được bố trí để phù hợp cho gia chủ sử dụng.

Cũng vẫn kiến trúc biệt thự nhưng mẫu thiết kế nhà 2 tầng 7x10m này lại theo đuổi phong cách hiện đại tối giản. Bới việc sử dụng kính gần như toàn bộ bề mặt, ngôi nhà đón nhận được rất nhiều ánh sáng vào không gian nhà phía trong, tiết kiệm lớn nguồn điện năng tiêu thụ vào ban ngày cho ngôi nhà.
Phần mái Thái với ngói màu ghi vô cùng hài hòa với tổng thể căn nhà. Phía bên ngoài sân với hệ thống cây xanh được sử dụng hài hòa thiết kế, đáp ứng điểm xanh thiên nhiên yêu cầu hiện nay.

Hoặc mẫu thiết kế tiếp theo với gam màu sáng bắt mắt hơn cũng sẽ là sự lựa chọn gia chủ rất đáng lưu tâm, áp dụng cho thiết kế mẫu nhà 2 tầng 7x10m tại khu vực nông thôn hiện nay. Thiết kế tân cổ điển được sử dụng với điểm nổi bật là cột trụ tầng hai, ban công sắt sơn tĩnh điện đen và thiết kế mái ấn tượng. ĐIểm nhấn ngôi nhà chính là phấn mái ngói đỏ cam giật cấp đã làm nổi bật ngôi nhà với cảnh vật xung quanh.

Không gian biệt thự thì sử dụng một mái xéo lệch cũng được áp dựng với mẫu thiết kế này. Ngôi nhà sử dụng thiết kế hiện đại, màu sắc trang nhã cùng với nhấn không gian xanh được bố trí tại tất cả khu vực sẽ là thiết kế thu hút.


































