Hiện nay, tại các thành phố lớn những ngôi nhà phố mọc lên như nấm, với đủ các diện tích và các tầng khác nhau. Do nước ta đất chật người đông nên việc xây thiết kế những mẫu nhà phố như thế này là vô cùng thích hợp. Trong bài viết này chúng tôi xin giới thiệu đến các bạn mẫu nhà 4 tầng mặt tiền 4m với đầy đủ công năng sử dụng và sự tiện nghi của nó. Chúng tôi tin rằng nó sẽ mang đến cho các bạn thêm nhiều sự lựa chọn cho ngôi nhà trong tương lai của các bạn.
Phối cảnh tổng quan mẫu nhà 4 tầng mặt tiền 4m đẹp
Với những gia đình có diện tích đất nhỏ, hẹp những yêu cầu sử dụng công năng lớn thì mẫu nhà 4 tầng 4 mặt tiền được thiết kế để giải quyết nhu cầu của các hộ gia đình có trường hợp như trên. Những mẫu nhà phố này có thể được thiết kế theo phong cách hiện đại, tân cổ điển hay cổ điển đều hấp dẫn người nhìn.

Từ xa nhìn lại, tổng thể căn nhà được phân chia giữa các tầng tạo nên sự hài hoà, cân đối cho căn nhà. Với lối thiết kế đơn giản, những hình khối trụ cột vuông vắn, khoẻ khoắn tạo cho ngôi nhà vẻ bề thế, kiên cố. Hệ thống ban công và lan can hình vòm được phun sơn tĩnh điện cùng các đường phào chỉ và hoạ tiết hoa văn được thiết kế chìm trên các bức tường tạo điểm nhấn cho mẫu nhà 4 tầng. Các đường phào chỉ trước đây được làm bằng thạch cao chống thấm và xi măng nhưng hiện nay đã có một số gia đình sử dụng chất liệu composit với nhiều ưu điểm hơn.

Căn nhà được thiết kế không gian mở, không sử dụng các bức tường dày đặc để ngăn cách các không gian với nhau giúp cho ánh sáng mặt trời, gió và không khí đều được lan toả trong cả không gian sinh hoạt.

Chủ nhà có thể lựa chọn mái thái, mái vòm, mái bằng, … tuỳ vào kiến trúc của căn nhà. Hệ thống mái thái với những mái giật cấp đua ra khỏi thân nhà khiến căn nhà được che chở bởi kiến trúc mái. Hiện nay, mái thái sử dụng mái giả đá, mái sóng lớn và sóng nhỏ màu xanh than nổi bật trong màu trắng chủ đạo của căn nhà. Còn nếu lựa chọn mái bằng hiện đại với những chi tiết cách điệu độc đáo, khiến căn nhà vững chãi, bề thế hơn.

Việc lựa chọn màu sơn cho căn nhà hết sức phức tạp, hiện nay có hai gam màu chủ yếu là gam màu trắng sáng và gam màu trung tính. Tuỳ thuộc theo lối thiết kế mẫu nhà để lựa chọn màu sắc.

Nếu màu chủ đạo của căn nhà là màu trắng thì nên sơn một mảng tường màu đối lập với tông màu chủ đạo để khiến mặt tiền của ngôi nhà trở nên nổi bật hơn. Tại các chân tường và bậc tam cam cấp có thể lát đá để căn nhà trở nên sang trọng và quý phái hơn.

Để căn nhà luôn tràn ngập ánh sáng, thông khí tốt thì nên bố trí nhiều cửa sổ và toàn bộ cửa sẽ được làm bằng cửa kính cường lực tạo nên một khoảng view đẹp cho những không gian trong nhà.

Ở các tầng lầu đều thiết kế ban công với lan can bằng inox hoặc sắt mỹ nghệ được phun sơn màu vàng đồng hoặc đen tạo nên sự táo bạo và tinh tế cho căn nhà. Ban công là nơi đón nắng, gió và giúp tinh thần trở nên thư thái, dễ chịu nên chủ nhà có thể cân nhắc trong việc trông thêm hoa hoặc cây cảnh để tăng tính thẩm mỹ cho căn nhà.
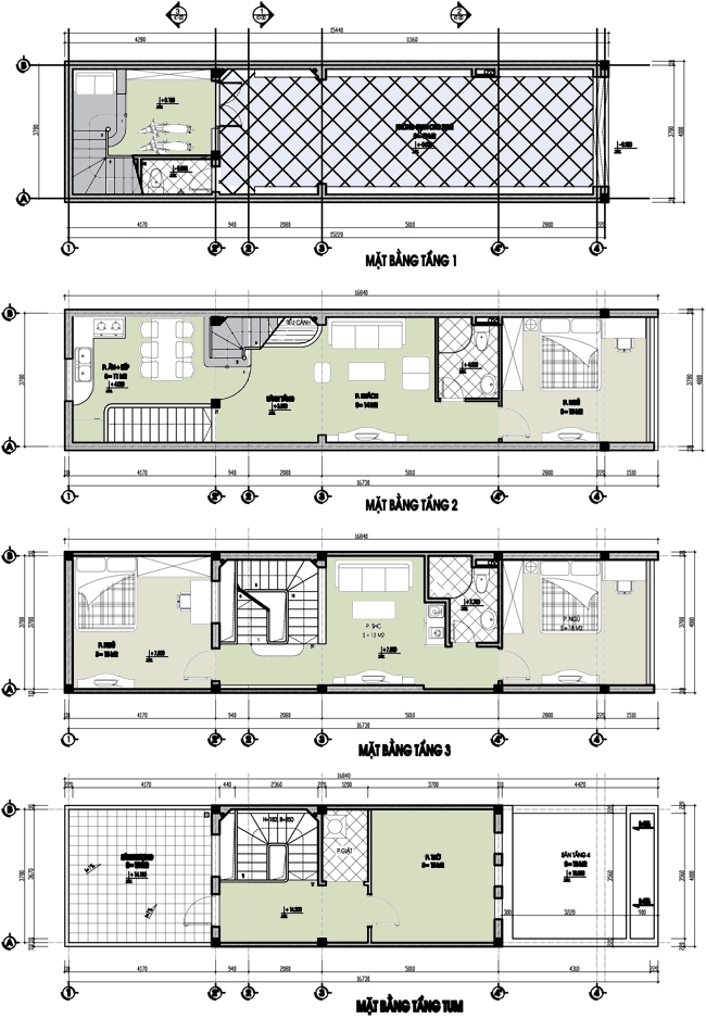
Bản vẽ mặt bằng công năng mẫu nhà 4 tầng mặt tiền 4m

Tầng 1: Gara để xe chiếm một diện tích kha khá lớn trong diện tích mặt bằng tầng 1. Xong đó đến hệ thống phòng khách, phòng bếp để nấu nướng và ăn của gia đình, 1 phòng vệ sinh chung. Ngăn cách giữa gara để xe và phòng khách là một lớp cửa kính cường lực tạo nên không gian mở cho không gian kiến trúc tầng 1. Ở gara để xe là thiết kế cửa cuốn tăng tính bảo mật cho căn nhà. Cầu thang được được ở vị trí ngăn cách giữa nhà bếp và phòng khách tạo nên một không gian rộng rãi, thoáng mát.
Tầng 2: Bao gồm 1 phòng ngủ master cho vợ chồng chủ nhà với đầy đủ tiện nghi được thiết kế 1 phòng vệ sinh khép kín. Đi kèm là 1 phòng làm việc và 1 phòng ngủ và 1 phòng vệ sinh. Tại các phòng đều bố trí thêm những cửa sổ kính cường lực để đảm bảo luôn tràn ngập ánh sáng và thoáng mát. Ở phòng ngủ nên lắp những rèm màu tối để đảm bảo 1 giấc ngủ ngon.

Tầng 3: Thiết kế 2 phòng ngủ, phòng để tập thể dục và 1 phòng vệ sinh được ngăn cách với nhau bởi lối cầu thang. Phòng vệ sinh chung được đặt ở cuối tầng để đảm bảo sự thoáng mát cho căn nhà. Ở 2 phòng ngủ sẽ có 1 lối ra ban công.
Tầng 4: đây là tầng cao nhất của căn nhà nên sẽ nóng nhất bởi ánh sáng mặt trời chiếu trực tiếp nên để tiết kiệm điện vào những ngày nắng thì các bạn nên lắp hệ thống thái dương năng. Tại đây sẽ bao gồm 1 phòng để thờ cúng tổ tiên ngay giữa trung tâm của tầng, sân thượng và nơi để giặt giũ, phơi quần áo. Thiết kế thêm 1 phòng để chứa đồ.
Cách thiết kế nội thất cho mẫu nhà 4 tầng mặt tiền 4m
Dù bạn đang sở hữu bất kỳ kiến trúc nội thất nhà kiểu dáng nào thì nội thất luôn là vấn đề được quan tâm nhất hiện nay. Làm sao để nội thất đẹp và tạo dấu ấn riêng góp phần tạo nên vẻ đẹp chung nhất cho ngôi nhà. Hãy cùng chúng tôi tìm hiểu kỹ hơn về mẫu nhà 4 tầng mặt tiền 4m ngay nhé!

Đầu tiên chúng ta sẽ nói đến kiến trúc nội thất của phòng khách. Vì tổng thể của căn nhà có đẹp hay không phụ thuộc 1 phần lớn vào không gian phòng khách. Từ trước đến nay trong văn hoá của người Việt luôn muốn làm “vui lòng khách đến, vừa lòng khách đi”. Phòng khách là nơi đón tiếp các vị khách quý, là không gian trung tâm của căn nhà nên việc trang trí nội thất cho không gian này là vô cùng quan trọng. Đây là không gian cần được chú trọng, chịu khó đầu tư để làm sao vừa thể hiện được sở thích của gia chủ vừa tạo cho phòng khách sang trọng và lịch sự nhất có thể.
Ở giữa phòng khách là 1 bộ sofa nên chọn những màu trắng sáng hoặc gam màu trung tính. Nếu không thích sofa có thể thay bằng 1 bộ bàn ghế gỗ đơn giản hay cầu kỳ là tuỳ theo yêu cầu của chủ nhà. Phòng khách có view khá đẹp từ hệ thống cửa chính và sửa sổ lớn khiến cho căn phòng luôn thoáng mát và tràn ngập ánh sáng mặt trời. Để tránh được nắng nóng những lúc nhiệt độ thời tiết cao chủ nhà nên lắp thêm rèm cửa nhưng chỉ loại rèm mỏng và màu sắc không quá tối. Việc lắp những chiếc rèm cửa quá dày hoặc quá tối sẽ khiến cho căn phòng bí bách và tối.
Ngoài bộ bàn ghế ở chính giữa phòng khách sẽ đi kèm 1 kệ ti vi, 1 tủ trưng bày rượu. Những vật liệu decor như: tranh ảnh, đèn chùm trang trí, chậu cây cảnh, … là những yếu tố tạo điểm nhấn cho căn phòng.

Phòng bếp là nơi những thành viên trong gia đình sáng tạo và nấu những món ăn ngon. Là nơi cả gia đình quây quần bên mâm cơm thưởng thức những món ăn ngon, chia sẻ những câu chuyện vui buồn hàng ngày trong cuộc sống. Vì vậy cho nên không gian của phòng bếp cần được khai thác tối đa công năng sử dụng của nó và đầy đủ tiện nghi nhưng đảm bảo tính phong thuỷ và thẩm mỹ cho căn nhà.
Việc sắp xếp các đồ nội thất trong phòng bếp vô cùng quan trọng. Ở giữa căn bếp là 1 bộ bàn ăn đơn giản, 1 tủ bếp treo tường và 1 máy hút mùi để không gian nhà bếp luôn thơm tho và trong trẻo.

Phòng ngủ là không gian sinh hoạt riêng tư và yêu thích của mỗi thành viên trong gia đình. Phòng ngủ ngoài đảm bảo tính phong thuỷ còn đảm bảo về tính thẩm mỹ và phù hợp với sở thích của mỗi người. Kiến trúc nội thất phòng ngủ thường sẽ bao gồm 1 phòng ngủ, 1 tủ đựng quần áo và 1 bàn trang điểm.
Dưới đây, chúng tôi đã giới thiệu đến quý khách hàng những thông tin cơ bản về mẫu nhà 4 tầng mặt tiền 4 m. Mẫu thiết kế mà chúng tôi gửi đến các bạn đáp ứng đầy đủ công năng sử dụng và tính thẩm mỹ cao. Nếu muốn tìm hiểu rõ hơn nữa hoặc những mẫu thiết kế nhà khác, các bạn có thể tìm hiểu qua sàn Xây dựng số. Tại đây luôn cập nhập những thông tin mới nhất về các kiến thức trong ngành xây dựng tại nước ta. Hãy liên hệ với chúng tôi nếu như bạn muốn sở hữu một căn nhà theo yêu cầu của bạn, chúng tôi sẽ tư vấn mọi yêu cầu của bạn.
Xem thêm:


































