Hiện nay, các mẫu nhà mặt tiền 5m được xây dựng khá phổ biến ở cả thành thị và nông thôn nước ta. Với diện tích mặt tiền chỉ khoảng 5m vậy làm sao để ngôi nhà đảm bảo đủ yêu cầu về công năng sử dụng và tính thẩm mỹ cao là một vấn đề được nhiều người quan tâm.

Để giúp các quý khách hàng có thể yên tâm khi thiết kế mẫu nhà mặt tiền 5m những vẫn đảm bảo yêu cầu thì xin mời các bạn theo dõi bài viết dưới đây của chúng tôi. Ở bài viết này, chúng tôi đề cập đến 3 yếu tố của mẫu nhà 4 tầng mặt tiền 5m là: phối cảnh 3D, bản vẽ công năng sử dụng và kiến trúc nội thất.
Phối cảnh những mẫu nhà 4 tầng mặt tiền 5m

Do hiện nay có rất nhiều phong cách kiến trúc nhà ở nhưng ở bài viết này chúc tôi sẽ phối cảnh mẫu nhà 4 tầng mặt tiền 5m theo 3 phong cách nhiều người ưa chuộng nhất đó là: hiện đại, tân cổ điển và kiến trúc Pháp.

Đầu tiên, chúng ta sẽ cùng phối cảnh nhà 4 tầng mặt tiền 5m theo phong cách hiện đại. Kiến trúc hiện đại có nguồn gốc từ Châu Âu du nhập vào nước ta. Những căn nhà mang đặc trưng của phong cách kiến trúc hiện đại với các hệ thống trụ cột khoẻ khoắn, rõ ràng khác hẳn với mẫu nhà đẹp truyền thống ngày xưa là hình vòm, hình tròn. Điều này làm cho căn nhà nổi bật lên vẻ đẹp bề thế, vững chãi giữa khu đất.

Về màu sắc thì những ngôi nhà hiện đại có thể sơn bất kỳ màu nào phù hợp với sở thích và phong thuỷ cho căn nhà. Với tông màu kem chủ đạo xen kẽ những mảng tường sơn màu đỏ nâu tạo điểm nhấn cho hệ thống mặt tiền của căn nhà. Toàn bộ hệ thống cửa được làm bằng cửa kính khung nhôm xingfa làm cho ánh sáng mặt trời chiếu trực tiếp vào nhà.

Tại các ban công đều được trồng nhiều cây xanh tạo không gian sống xanh và hoà mình với thiên nhiên cho gia đình chủ nhà. Xung quanh nhà được thiết kế hệ thống cổng rào được thiết kế đơn giản như inox hoặc rào sắt tuỳ vào yêu cầu của gia chủ. Hệ thống mái thái màu xanh than đua nhau giật cấp để che chắn cho thân nhà càng tô điểm thêm cho ngôi nhà trên nền sơn trắng, kem chủ đạo.

Nếu như không thích phong cách hiện đại các bạn có thể chọn kiến trúc tân cổ điển hoặc kiến trúc Pháp. Kiến trúc này là sự kết hợp hài hoà giữa hiện đại và cổ điển.

Đặc điểm của những mẫu nhà thiết kế theo kiến trúc này là nhìn tổng thể ngôi nhà luôn cân đối với sự phân chia các hệ thống tầng, ban công một cách hài hoà.

Với những chi tiết hoa văn mềm mại, uyển chuyển trên các đường phào chỉ, đầu trụ, cột, hệ thống lan can và cổng rào khiến cho căn nhà trở nên mềm mại và uyển chuyển hơn. Kếp hợp với kiến trúc mái vòm nhìn từ xa ngôi nhà như một lâu đài nguy nga, tráng lệ.

Hai gam màu chủ đạo của những ngôi nhà kiến trúc tân cổ điển và kiến trúc Pháp là gam màu trắng hoặc gam màu trung tính đối lập với nhau tạo điểm nhấn cho căn nhà. Phần chân tường và bậc tam cấp được ốp đá màu vàng nâu tôn lên vẻ sang trọng cho những mẫu nhà này.

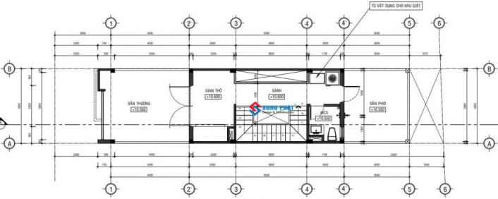
Bản vẽ mặt bằng công năng mẫu nhà 4 tầng mặt tiền 5m
Có thể thấy bản vẽ mặt bằng khi xây dựng là một trong những hạng mục được quan tâm nhiều nhất. Và bản vẽ này ra sao có đáp ứng đầy đủ những yêu cầu của chủ nhà hay không là phải phụ thuộc vào tay nghề của vị kiến trúc sư đó. Trong phần này chúng tôi sẽ giới thiệu một bản vẽ mặt bằng công năng mẫu nhà 4 tầng mặt tiền 5m tiện nghi, đầy đủ nhất.

Những mẫu nhà mặt tiền chỉ khoảng 5m thì việc bố trí để sử dụng được tối đa công năng nhưng vẫn đảm bảo tính thẩm mỹ cho căn nhà là điều không dễ dàng. Sau đây chúng tôi sẽ thiết kế công năng mẫu nhà 4 tầng mặt tiền 5m để các bạn tham khảo như sau:

Tại hệ thống mặt bằng tầng trệt: Vì là nhà mặt tiền nên ít khi được thiết kế sân nên tại tầng trệt cần bố trí một gara để xe. Diện tích của gara còn tuỳ thuộc vào chiều dài của căn nhà nên không có một quy định chuẩn cho không gian này. Ngăn cách giữa gara và mặt đường có thể thiết kế một lớp cửa cuốn hoặc cửa kéo, cái này tuỳ thuộc và gia đình chủ nhà.

Tiếp theo sẽ là khu vực bếp để nấu nướng và ăn uống, 1 sân giếng nhỏ ở ngay sau nhà thuận tiện khi nhà có việc và 1 phòng vệ sinh. Nói chung không gian tầng 1 rất thoáng vì không có sự ngăn cách với nhau giữa gara và nhà bếp ngoài 1 lớp của kính. Việc thiết kế một căn bếp rộng để khi nhà có khách cũng vẫn có thể sử dụng được chứ không nhất thiết phải lên tầng. Không gian bếp rộng sẽ thoáng mát và không sợ ám mùi khi nấu nướng.

Lên đến tầng 2 là không gian sinh hoạt chính của gia đình để sinh hoạt và tiếp khách. Tại đây sẽ bao gồm phòng khách, 1 phòng ngủ khép kín cho người lớn trong nhà, 1 phòng ngủ nhỏ xinh cho cô con gái hay cậu con trai của gia đình, 1 phòng vệ sinh chung thuận lợi cho những vị khách khi đến thăm nhà và ban công để tạo độ thông thoáng, đón nắng, đón gió cho cả tầng lầu.
Phòng khách được thiết kế ngay giữa trung tâm thẳng lối cầu thang đi lên không cần ngăn cách với cửa để “ăn gian” diện tích cho căn phòng. Hai phòng ngủ được ngăn cách bởi phòng khách ở giữa. Tại phòng khách có một ban công nhỏ để trồng cây tạo không gian xanh cho ngôi nhà.

Tầng 3 là 1 phòng ngủ lớn thiết kế vệ sinh khép kín với đầy đủ tiện nghi cho vợ chồng gia chủ. Cạnh phòng ngủ là phòng làm việc, 1 phòng ngủ và 1 phòng vệ sinh với một ban công rộng có thể kê một bộ bàn nước ở không gian này.

Tầng 4 cao nhất nên thiết kế phòng thờ cúng tổ tiên ngay chính giữa tầng cùng với 2 phòng ngủ, 1 phòng vệ sinh và giặt giũ, phơi quần áo. Trong văn hoá của người Việt thì nơi thờ cúng phải là nơi cao nhất của căn nhà và mang tính trang nghiêm, thể hiện lòng kính trọng của con cháu đối với ông bà tổ tiên.
Kiến trúc nội thất mẫu nhà 4 tầng mặt tiền 5m
Việc trang trí phần trần của ngôi nhà tạo nên không gian mới mẻ, hấp dẫn hơn. Hiện nay có rất nhiều mẫu trần khác nhau như: vẽ tranh 3D, trần gỗ, trần thạch cao, … mỗi loại đều có những vẻ đẹp riêng nên việc lựa chọn kiến trúc trần nhà cũng vô cùng quan trọng.

Điểm nổi bật của không gian phòng khách là bộ bàn nước tiếp khách. Có thể sử dụng những bộ ghế sofa bằng vải hoặc bộ ghế gỗ. Điều này còn tuỳ thuộc vào kiến trúc nội thất của gia đình đang thiết kế theo phong cách nào để dễ dàng lựa chọn và sắp xếp.
Ví dụ, ngôi nhà của bạn được thiết kế theo phong cách hiện đại vậy thì đặc điểm của phong cách này là đơn giản không cầu kỳ. Do đó bạn có thể sắp xếp 1 bộ ghế sofa bằng vải với màu sắc trang nhã phù hợp với màu sắc chủ đạo tổng thể căn nhà. Dưới bộ ghế sofa là một tấm thảm tăng thêm độ tinh tế và sang trọng cho căn phòng.
Nội thất nhà đẹp cần có của không gian phòng khách là một chiếc kệ ti vi được làm bằng gỗ màu nâu pha vàng đảm bảo sự đơn giản cho phòng khách. Để tạo sự phá cách và tôn lên được vẻ sang trọng cho căn phòng là một mảng tường màu đối lập với màu chủ đạo.

Nếu như không gian phòng khách đơn giản nhưng sang trọng thì không gian phòng bếp lại đối lập với phòng khách. Phòng bếp với những hình ảnh trang trí phong cách và cá tính tạo cảm hứng cho người sử dụng gian bếp. Với tủ bếp cao cấp màu trắng kết hợp với một bộ bàn ghế ăn vân gỗ khiến không gian phòng bếp mang đậm chất hiện đại.

Phòng ngủ không chỉ là nơi để học tập, làm việc, giải trí mà còn là không gian riêng tư của mỗi thành viên trong gia đình. Do đó có thể thiết kế và bố trí đồ đạc một cách hợp lý nhưng vẫn đảm bảo tính thẩm mỹ và phong thuỷ cho căn phòng là được.
Trên đây là toàn bộ những thông tin chủ yếu mà chúng tôi gửi đến quý bạn đọc về mẫu nhà 4 tầng mặt tiền 5m. Tiện đây chúng tôi xin giới thiệu đến quý bạn đọc một Website uy tín trong ngành xây dựng cho những bạn đang có ước mơ trở thành kiến trúc sư hay kĩ sư trong tương lai. Đó là sàn Xây dựng số Việt Nam, nơi cung cấp mọi thông tin mà các bạn cần biết trong xây dựng. Chúc các bạn thành công!
Xem thêm:


































