Nền kinh tế của cả nước đang phát triển mạnh, kéo theo đó là mức sống và nguồn thu nhập của mỗi người theo đó cũng tăng cao. Nhu cầu và tiêu chí xây dựng nhà ở được các hộ gia đình Việt chú trọng hơn, khiến cho những căn biệt thự mini 1 tầng bắt đầu mọc lên rộng rãi ở nhiều nơi. Biệt thự 1 tầng mái thái đang là từ khóa có lượt tìm kiếm nhiều, sức thu hút cực kỳ lớn trong vài năm trở lại đây. Kiến trúc nắm bắt xu hướng, phù hợp nếp văn hòa mọi gia đình, không gian sống tiện nghi và thoải mái là những gì khiến chủ đề này chưa có dấu hiệu giảm nhiệt. Đặc biệt chi phí hoàn thiện các công trình mẫu nhà biệt thự 1 tầng mái thái đẹp giá rẻ, phù hợp kinh tế nhiều hộ gia đình. Đáp ứng đầy đủ các tiêu chí và mong muốn đề ra như biệt thự 1 tầng mái thái này, còn chờ gì mà không xem ngay phương án thiết kế.
Thông tin phương án thiết kế nhà:
- Diện tích xây dựng: 200m2.
- Thời gian hoàn thiện công trình: Khoảng 4 tháng.
- Kiến trúc: Biệt thự 1 tầng mái thái phong cách hiện đại.
Phối cảnh mẫu nhà biệt thự 1 tầng mái thái đẹp sự lựa chọn tối ưu
Tiện nghi, tính thẫm mỹ cao, chi phí xây dựng giá rẻ, công năng tối ưu,… là những điều mà gia chủ nào cũng mong muốn có được từ biệt thự 1 tầng mái thái mới nhất này. Không như các căn biệt thự đẹp cao tầng sang trọng khác, ngôi nhà này vẫn giữ được nét đẹp truyền thống ngay từ cái nhìn đầu tiên. Tùy thuộc theo sở thích của mỗi gia chủ để lựa chọn phong cách thiết kế khác nhau, một số kiểu dáng thịnh hành như: Hiện đại, cổ điển, truyền thống, đơn giản, cầu kỳ,…. mỗi phong cách thiết kế đều thể hiện nét đẹp và cá tính riêng, giúp cho những ai đang có nhu cầu xây dựng gợi lên nhiều ý tưởng tuyệt vời hơn.

Năm 2021 mái thái đang là kiểu mái phổ biến được nhiều người quan tâm. Không riêng gì biệt thự 1 tầng mà các kiến trúc nhà đẹp khác khi kết hợp với mái thái cũng được người dùng đón nhận một cách nhiệt liệt. Những ưu điểm không thể bỏ qua như: Màu sắc đa dạng, chất lượng đảm bảo, dễ dàng thi công, tăng tính thẩm mỹ, tuổi thọ lâu năm, giảm nhiệt độ tốt khi trời nắng nóng, chống ứ động nước khi mùa mưa,… là những lợi thế giúp mái thái luôn là sự lựa chọn hàng đầu.

Từ phong cách hiện đại, biệt thự mini mái thái này mang lên mình một nét đẹp hoàn toàn riêng biệt, thể hiện cá tính nổi bật của chủ nhân. Biệt thự 1 tầng tại đây có diện tích xây dựng là 200m2, một khoản diện tích khá thích hợp cho việc bố trí các công năng được tối ưu, đem lại không gian thoải mái cho các thành viên sinh hoạt. Mỗi người đều có sở thích màu sắc khác nhau, vì vậy hãy chọn màu sắc mà bạn yêu thích, nên ưu tiên các tone màu sáng sủa cũng như hợp phong thủy của bạn.
Để tránh hao hụt kinh phí, bạn cần phải có một kế hoạch xây dựng rõ ràng, tính toán các chi phí ra vào một cách cụ thể và chi tiết. Để không mất quá nhiều chi phí phát sinh, bạn nên nhờ đến đơn vị thiết kế – thi công có nhiều năm kinh nghiệm để tư vấn và đưa ra giải pháp phù hợp. Qua đó hợp tác với công ty xây dựng có chuyên môn, đưa ra phương án thiết kế phù hợp với khoảng tài chính bạn đang có.

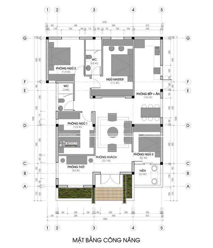
Công năng thiết kế gồm: Phòng khách, phòng thờ, 3 phòng ngủ, 2 phòng vệ sinh, phòng bếp + bàn ăn.
Xây dựng biệt thự 1 tầng không phải đơn giản, nó phân chia ra nhiều giai đoạn khác nhau, vì vậy bạn cần phải tìm kiếm một đơn vị thiết kế – xây dựng uy tín cũng như đảm bảo chất lượng trong chuyên môn. Phong cách biệt thự mini 1 tầng kết hợp mái thái có phải là chủ đề bạn yêu thích? Hãy lên kế hoạch xây dựng tổ ấm ngay bây giờ nhé. Chúc bạn may mắn !!
Nguồn tin: https://wedo.vn/
Xem thêm tin mới:
=> Mẫu nhà biệt thự mini 1 tầng có gác lửng kiểu Mái Thái
=> Mẫu biệt thự nhà vườn 1 tầng mái thái xây dựng 600 triệu

































