Xây dựng biệt thự trong những năm qua đang rất phát triển ở thị trường xây dựng Việt Nam. Khi kinh tế phát triển thì song song với việc cơ sở hạ tầng được phát triển, hàng loạt những căn biệt thự được mọc lên. Bạn đang quan tâm đến mẫu nhà biệt thự 8x15m về mẫu mã, bản vẽ thiết kế, mặt bằng tổng thể nội thất... Bạn hãy bớt chút thời gian tham khảo bài viết của chúng tôi chắc chắn việc lên ý tưởng cho căn biệt thự của gia đình mình sẽ dễ dàng hơn rất nhiều.
Hình ảnh 3D mẫu nhà biệt thự 8x15m độc đáo, sang trọng.
Mẫu nhà biệt thự 8x15m chắc chắn sẽ là sự lựa chọn của rất nhiều gia chủ, với lối kiến trúc độc đáo, mới lạ và sang trọng chắc chắn sẽ mang đến cho chủ nhân một ngôi nhà đẳng cấp xứng tầm. Hiểu được những băn khoăn, lo lắng của khách hàng, chúng tôi sẽ giới thiệu đến các bạn những mẫu nhà biệt thự 8x15m đẹp nhất hiện nay để chúng ta cùng tham khảo thêm cho ngôi nhà tương lai nhé!

Để ghi dấu ấn ngay từ cái nhìn đầu tiên cho các chủ đầu tư, bài viết của chúng tôi xin gửi đến các bạn mẫu biệt thự đầu tiên mang phong cách biệt thự hiện đại mái lệch. Không quá phô trương bằng những kiểu cách trang trí cầu kì đặc biệt mà cứ như thế nhẹ nhàng đưa chúng ta đến với một sự thư thái, đơn giản mà hiện đại. Căn biệt thự được thiết kế với 2 tầng, chú trọng đến một không gian thoáng đãng, rộng rãi nên ngôi nhà được thiết với những ô cửa 4 cánh ở cả khu vực cửa lớn và cửa sổ, hơn nữa cửa kính khung nhôm tĩnh điện này càng khiến cho căn phòng trở lên ngập tràn ánh sáng của tự nhiên, thoáng đãng ở tất cả các phòng chức năng.

Một căn biệt thự mái bằng có diện tích 8x15m trên đây cũng là ý tưởng tuyệt vời cho những chủ đầu tư nào thích phong cách hiện đại. Nếu như ở mẫu biệt thự mái lệch tạo nên một tổng thể hài hòa qua gam màu trắng kết hợp với màu trung tính mang đến sự trẻ trung, cá tính thì căn biệt thự mái bằng này lại là một sự kết hợp nhẹ nhàng giữa gam màu trắng và màu vàng tạo điểm nhấn ở trần nhà, một vài điểm nhấn càng tăng thêm vẻ đẹp dịu nhẹ, khiến cho chúng ta mỗi lần trở về nhà đều có một cảm thanh bình, yên ả, cuộc sống cứ thế trở lên tươi đẹp hơn khi chúng ta có một tâm hồn thoải mái nhất.

Bạn muốn lựa chọn một căn biệt thự 8x15m để xây dựng ở thành phố. Có lẽ mẫu thiết kế trên đây của chúng tôi sẽ khiến cho bất cứ những chủ đầu tư nào cũng phải cảm thấy rất hài lòng. Mẫu nhà ống 3 tầng 1 tum hiện đang rất được ưa chuộng. Không đơn thuần là mẫu nhà ống 3 tầng đơn giản như trước kia mà mẫu biệt thự trên đây đã lột xác từ kiểu dáng, vật liệu, mỗi tầng vẻ ngoại thất lại có những điểm nhấn riêng. Ở khu vực tầng tum phía trước được kết hợp với khu vực sân thượng có mái che. Bất cứ khi nào cảm thấy mệt mỏi, căng thẳng trong cuộc sống là bạn có thể tìm đến không gian xanh nơi sân thượng để tận hưởng bầu không khí trong lành, chan hòa cùng với thiên nhiên.

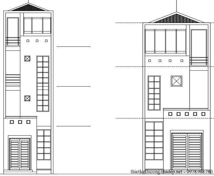
Phối cảnh bản vẽ mẫu nhà biệt thự 8x15m

Cụ thể cho mẫu biệt thự 8x15m chúng tôi xin được cung cấp đến các chủ đầu tư một hạng mục cũng không thể thiếu trong quá trình xây dựng một căn biệt thự trọn vẹn đó chính là lựa chọn một mẫu thiết kế bản vẽ. Xây nhà hơn nữa lại là một công trình lớn xây dựng biệt thự đòi hỏi mỗi chúng ta cần đặc biệt chú trọng đến từng khâu, để đảm bảo không thể có sai sót và một bản vẽ xây dựng cho căn biệt thự 8x15 là điều kiện kiên quyết không thể thiếu nó vô cùng quan trọng và cần thiết. Bạn không thể nào qua loa trong việc lựa chọn, lên ý tưởng cho bản thiết kế. Bạn cứ thử tưởng tượng rằng bản vẽ thiết kế chính là bộ khung xương cho ngôi nhà. Nếu chỉ bồi đắp da thịt một cách hào nhoáng, bóng bẩy mà bộ khung xương yếu thì sẽ không đảm bảo điều này càng không thể, vì bộ khung xương chính là yếu tố quyết định đến sự chắc khỏe, an toàn của gia đình bạn.

Nếu một căn biệt thự không có bản vẽ thiết kế thì sẽ ra sao, hoặc bạn thuê một nhà thầu xây dựng căn biệt thự cho gia đình bạn mà không cần đến bản vẽ. Giống như việc chúng ta muốn có một công việc ổn đinh, một cuộc sống tốt mà lại không có định hướng, ươc mơ. Chính vì vậy mà việc căn biệt thự 8x15m buộc phải có một bản vẽ thiết kế hoàn chỉnh là điều hết sức cần thiết. Bạn có thể lấy chính bản vẽ mà chúng tôi cung cấp hoặc cũng có thể chỉ lấy bản vẽ của chúng tôi để lấy ý tưởng xây dựng cho căn biệt thự của gia đình mình trong tương lai.

Mặt bằng tổng thể nội thất căn nhà 3 tầng 6x12m
Để có được một mặt bằng tổng thể nội thất cho mẫu nhà biệt thự 8x15m hợp lý, đúng ý tưởng của bạn và gia đình thì buộc chúng ta phải nắm được những ý tưởng xây dựng, thiết kế sao cho mặt bằng tổng thể nội thất phù hợp với diện tích thực của căn biệt thự, nhằm mang đến một không gian nội thất cho căn biệt thự 8x15m có cách bố trí khoa học, gọn gàng, ngăn nắp.

Thứ nhất là lựa chọn gam màu tươi sáng cho căn biệt thự cả không gian ngoại thất và nội thất là ý tưởng tuyệt vời. Đây là một trong những ý tưởng thiết kế mặt bằng tổng thể nội thất giúp bạn tiết kiệm không gian một cách tối ưu nhất, việc lựa chọn tươi sáng, trẻ trung sẽ khiến cho căn nhà trở nên thoáng đãng và rộng rãi rộng hơn diện tích thực vốn có của căn phòng. Bạn cần biết kết hợp một cách hài hòa giữa màu sắc và những món đồ nội thất để không gian của căn biệt thự từ bên ngoài vào bên trong không bị đơn điệu, tẻ nhạt.

Thứ 2 là tạo điểm nhấn nổi bật cho mỗi không gian từ phòng khách, phòng bếp đến phòng ngủ. Tạo điểm nhấn bằng cách nào? Một số gợi ý nhỏ của chúng tôi chẳng hạn như phòng khách là nơi mà chủ đầu tư nào cũng chỉnh chu nhất trong thiết kế, để tạo điểm nhấn cho phòng khách bạn có thể lựa chọn một cây đèn chùm thực sự bắt mắt, một hoặc một vài bức tranh khiến căn phòng thêm bắt mắt, ở phòng bếp là không gian nấu nướng bạn làm gì để ngoài những món đồ nội thất bạn vẫn có thể tạo được điểm nhấn cho phòng bếp nhỏ. Chẳng hạn như một vài bình cây xanh đặt nơi cửa sổ là ý tưởng không tồi cho một không gian bếp gần gũi, thân thiện. Còn với một không gian riêng tư như phòng ngủ thì bạn chỉ cần lựa chọn một cây đèn ngủ để bên chiếc bàn cạnh đầu giường cũng là một điểm nhấn khá hay...

Ý tưởng thứ 3 cũng là ý tưởng không thế bỏ qua cho không gian căn biệt thự. Để bắt nhịp với một thị trường nội thất phát triển mạnh mẽ, thì bạn hãy mạnh dạn biến không gian sống của gia đình mình trở nên hiện đại, tiện nghi phù hợp với thời đại cách mạng 4.0 đang trên đà phát triển việc lựa chọn nội thất thông minh cho mẫu nhà biệt thự 8x15m không chỉ giúp tiết kiệm không gian cho mỗi phòng với các sản phẩm như tủ bếp thông minh, giường ngủ thông minh, sofa thông minh... mà những sản phẩm nội thất này còn khiến cho cuộc sống của gia đình bạn khi có không gian nội thất tiện tích sẽ thêm phần hiện đại, bắt nhịp với sự chuyển mình của một thị trường nội thất Việt Nam đang khẳng định sự phát triển của nghành trên thị trường khu vực và thế giới.

Sàn giao dịch thương mại điện tử Xây Dựng Số

Khi bạn đã chuẩn bị đầy đủ về vật chất và tinh thần, đã xây dựng cho mình được một ý tưởng về mẫu biệt thự 8x15m giờ sẽ đến bước quan trọng tiếp theo trước khi vào thi công đó là lựa chọn được một nhà thầu xây dựng uy tín là công trình sẽ được khởi công xây dựng trong sự chuẩn bị đầy đủ kĩ lưỡng và từ đó việc sở hữu một ngôi nhà như mong muốn là điều tất nhiên xảy ra.

Tuy nhiên, để lựa chọn được một nhà thầu uy tín thì lại không hề đơn giản vì như chúng ta biết rằng, hiện nay thị trường xây dựng rất phát triển, điều tất nhiên xảy ra đó là hệ thống nhà thầu lớn nhỏ mọc lên rất nhiều. Vậy làm sao bạn biết được nhà thầu nào uy tín? Đó cũng chính là câu hỏi chung của khá nhiều chủ đầu tư. Để giải quyết vấn đề mà bạn đang băn khoăn này chúng ta cùng đến với sàn giao dịch thương mại điện tử xây dựng số chuyên về lĩnh vực xây dựng để được tư vấn một cách chi tiết về các công xây dựng uy tín trên các tỉnh thành của cả nước.


































