Tùy từng diện tích khác nhau mà kiến trúc sư sẽ đưa ra phương án thiết kế mặt tiền cũng như không gian công năng sao cho phù hợp. Hôm nay Xây Dựng Số xin giới thiệu mẫu nhà cấp 4 đẹp 100m2 đa dạng về kiểu dáng, tính thẩm mỹ cao với chi phí xây dựng thấp.
Những đặc điểm nổi bật của mẫu nhà cấp 4 đẹp 100m2

Nhà cấp 4 là kiểu nhà có kết cấu thấp, là kiểu nhà truyền thống của Việt Nam. Trong đó mẫu nhà cấp 4 đẹp 100m2 là mẫu nhà được lựa chọn thi công nhiều nhất. Vì diện tích nhà 100 m2 có không gian khá rộng rãi có thể để ở đông người. Nhà cấp 4 có rất nhiều kiểu dáng đa dạng như: mái thái, gác lửng, mái bằng, ... Ngày nay mẫu nhà này không chỉ được xây dựng ở các vùng nông thôn mà ở các thành phố, nhiều người cũng lựa chọn các mẫu nhà cấp 4 để xây dựng. Vì chi phí xây nhà cấp 4 không quá cao, yêu cầu kỹ thuật không cao nên có thể hoàn thành trong thời gian ngắn. Tuy nhiên, nhà cấp 4 vẫn đáp ứng được các tiêu chí về mặt thẩm mỹ và sự tiện nghi cho gia đình bạn.
Những điều cần biết của mẫu nhà cấp 4 diện tích 100m2

Các mẫu nhà cấp 4 100m2 không quá nhỏ cũng không quá rộng, vì vậy để sở hữu một ngôi nhà đẹp, đầy đủ công năng gia chủ nên nghiên cứu kỹ các phương án thiết kế mặt tiền, bản vẽ mặt bằng công năng để quá trình thi công đảm bảo tính khoa học, thẩm mỹ và hợp phong thủy. - yếu tố phong thủy. Dưới đây là một số lưu ý bạn cần chú ý.
- Trước hết bạn cần chuẩn bị kinh phí, tùy theo kinh phí mà bạn có thể lựa chọn mẫu nhà hoặc phong cách thiết kế phù hợp.
- Lựa chọn mẫu nhà cấp 4 đẹp 100m2 phù hợp với sở thích cũng như diện tích đất vuông vắn, để tiết kiệm chi phí bạn nên chọn những mẫu thiết kế đơn giản, phù hợp với không gian xung quanh, bắt kịp xu hướng.
- Cần xác định rõ công năng nội thất số lượng phòng, diện tích các phòng và cách bài trí như thế nào để đảm bảo quá trình nghỉ ngơi khoa học và hợp lý.
- Phương án thiết kế nên sử dụng nhiều cửa sổ rộng rãi để đón ánh sáng tự nhiên từ bên ngoài, đặc biệt là cảm nhận được không khí thoáng đãng, không gây cảm giác chật chội.
- Đối với vật liệu xây nhà, bạn cần lựa chọn vật liệu hợp lý để tiết kiệm chi phí mà vẫn đảm bảo chất lượng của ngôi nhà. Hạn chế sử dụng chất liệu gỗ tự nhiên, đặc biệt là gỗ sẫm màu vì nó vừa tốn kém vừa khiến nhà cấp 4 trở nên chật chội hơn rất nhiều.
Nếu chưa có kinh nghiệm xây nhà, tốt nhất bạn nên tìm một nhà thầu xây dựng uy tín tại TPHCM để kiến trúc sư tư vấn, đưa ra phương án phù hợp theo kinh phí cũng như diện tích nhà bạn. . .
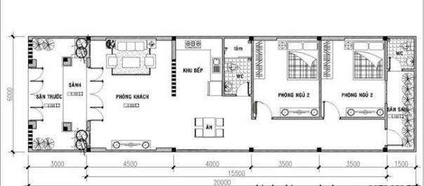
Mẫu nhà cấp 4 diện tích 100m2 có 2 phòng ngủ đẹp

Trước hết, mẫu nhà cấp 4 diện tích 100m2 mái thái này là một kiểu nhà điển hình ở nông thôn. Ngôi nhà được trang trí với mái ngói đỏ tươi và tông màu xám và vàng nhạt của tường. Sàn nhà được thiết kế cao hơn, có sự phân cấp để tăng cảm giác về độ cao

Bản thiết kế đầy đủ công năng tiện ích và hiện đại. Bước vào sảnh chính là phòng khách rộng, được ngăn cách với bếp bằng vách ngăn mỏng. Bàn ăn đối diện với bếp và bên kia đường. Sau đó, có một dãy phòng gồm hai phòng có diện tích bằng nhau. 2 phòng vệ sinh được thiết kế ở phía trước và phía sau của dãy phòng giúp các thành viên trong gia đình sinh hoạt dễ dàng hơn. Cuối nhà có thêm khoảng sân phơi quần áo tận dụng ánh sáng tự nhiên giúp ngôi nhà sáng sủa hơn.
Mẫu nhà cấp 4 mái bằng diện tích 100m2

Mẫu nhà ống 1 tầng 100m2 có sân vườn này phù hợp với cả thành phố và nông thôn. Ngôi nhà này thể hiện được cá tính của chủ nhân khi được xây dựng trong một khu vườn rộng lớn. Với thiết kế hiện đại, ngôi nhà nổi bật bởi sự thông thoáng và đơn giản. Tông màu trắng kết hợp với cửa kính gỗ, nội thất gỗ tạo nên nét tinh tế, mềm mại.

Nội thất trong nhà cũng khá đơn giản. Phòng khách nhỏ và nhà bếp nằm trong khu vực chung. Bàn phòng khách được tận dụng làm bàn ăn giúp tiết kiệm diện tích. Kiến trúc của mẫu nhà này rất coi trọng sự riêng tư. 2 phòng ngủ đủ rộng cho 4 người, chiếm hơn 1/2 diện tích căn nhà. 2 phòng vệ sinh được bố trí bên cạnh 2 phòng ngủ.
Mẫu nhà cấp 4 diện tích 100m2 có gác lửng

Những mẫu nhà cấp 4 có gác lửng luôn được ưa chuộng không chỉ vì đầy đủ công năng mà còn tiết kiệm chi phí. Kiểu mái lệch tầng màu xám đen kết hợp với tông màu vàng nhạt tạo nên sự uy nghiêm cho ngôi nhà. Sảnh chính và sảnh phụ đều có trụ tròn thay cho trụ vuông truyền thống. Tuy nhiên, hệ thống cửa ra vào và cửa sổ bằng gỗ vẫn giữ được nét truyền thống của ngôi nhà.

Tầng 1 gồm 1 phòng khách, 1 bếp, 1 phòng ngủ và 2 vệ sinh. Cầu thang được thiết kế phía sau phòng khách giúp tăng sự tinh tế và thẩm mỹ cho ngôi nhà. Ngoài ra, tầng này còn có khoảng trống để làm chỗ để xe máy khi trời tối.

Tầng lửng gồm phòng thờ phía trước và 2 phòng ngủ phía sau. Thêm 1 phòng vệ sinh phía trước phòng ngủ nhỏ giúp sinh hoạt của các thành viên trong gia đình dễ dàng hơn.
Mẫu nhà cấp 4 diện tích 100m2 có 3 phòng ngủ

Dưới đây, bản vẽ nhà diện tích 10 × 10. Ngôi nhà vuông vắn, thiết kế mặt tiền đối xứng. Nhìn từ ngoài vào sẽ thấy cổng nhà nằm chính giữa mặt tiền. Ngôi nhà này được biến thành một nội thất sang trọng với những bức tường đá và mái xếp tầng.

Vì thiết kế khá vuông vắn nên cách phân chia các không gian trong nhà cũng khá đặc biệt. Phòng khách ở sảnh chính. Đi thẳng về phía trước là không gian trang nghiêm của phòng thờ được ngăn cách với phòng khách. 3 phòng ngủ được bố trí ở 3 góc nhà. Góc còn lại là phòng bếp với phòng vệ sinh chung.
Mẫu nhà cấp 4 diện tích 100m2 có 4 phòng ngủ

Tuy không có diện tích nhỏ (100 m2) nhưng thiết kế mái thái kết hợp với những khung cửa kính đã giúp ngôi nhà trở nên thông thoáng và rộng rãi hơn rất nhiều. Trước nhà cũng là sân vườn với cây cối, hoa lá. Khu vườn này không chỉ có tác dụng điều hòa không khí mà còn là nơi để các thành viên nghỉ ngơi, vui chơi sau những giờ làm việc.

Ngoài ra gam màu trắng sáng cũng được ưu tiên trong mẫu nhà cấp 4 mái thái 4 phòng ngủ này để tăng hiệu ứng nới rộng ngôi nhà hiệu quả hơn. 4 phòng ngủ của mẫu nhà này có diện tích khác nhau. Tuy nhiên, kiến trúc luôn đảm bảo sự thống nhất và hoàn chỉnh cho không gian.
Mẫu nhà cấp 4 diện tích 100m2 phong cách cổ điển

Hạng mục mẫu nhà cấp 4 đẹp 100m2 phong cách tân cổ điển sang trọng. Kiến trúc sư luôn tối giản các đường nét thiết kế để ngôi nhà dễ nhìn hơn, không quá nặng nề. Vẻ đẹp mềm mại của mẫu nhà cấp 4 100 m2 phong cách Châu Âu khiến nhiều người mê mẩn. Nơi đây với những khu vườn đầy hoa, ngôi nhà trắng muốt nhẹ nhàng như bước ra từ câu chuyện cổ tích mang đến cảm giác bình yên và thư thái nhất.
Mẫu nhà cấp 4 đẹp 100m2 hình chữ L

Mẫu nhà cấp 4 mái tôn 100m2 diện tích xây dựng 8x12m. Mẫu thiết kế nhà hình chữ L được nhiều gia chủ ở nông thôn lựa chọn khi có thể kết hợp với sân, vườn thoáng mát.
Mẫu nhà cấp 4 đẹp 100m2 ở nông thôn
Các mẫu nhà cấp 4 đẹp 100m2 ở nông thôn gần gũi với thiên nhiên. Thay vì xây cả lô, các mẫu nhà cấp 4 ở nông thôn luôn để trống không gian để bạn có thể trồng rau, không chỉ tạo sân vườn thông thoáng mà còn tiết kiệm chi phí xây dựng. Mẫu thiết kế nhà cấp 4 đẹp kiểu nông thôn hiện đại nổi bật bởi hệ thống cửa kính cường lực sang trọng lấy sáng vào bên trong. Sử dụng rèm có thể điều chỉnh độ sáng để giảm lượng nhiệt. Trong mẫu thiết kế nhà cấp 4, ngoài phần mái ngói đỏ tươi thì cửa chính cũng được ốp gỗ làm điểm nhấn.

Cửa gỗ cao cấp, mẫu nhà cấp 4 nông thôn nguy nga mái thái còn có thêm cửa thông gió lấy sáng và cửa sổ trời xếp tầng duyên dáng. Chân tường được ốp đá sang trọng, sơn tường màu trắng nhẹ nhàng càng làm nổi bật màu sắc của gỗ. Mẫu nhà cấp 4 đẹp ở nông thôn 100m2 có lò sưởi. Thiết kế đơn giản, phong cách hiện đại dễ thi công. Với mức chi phí không quá cao, bạn có thể sở hữu một mẫu nhà đẹp, không tốn quá nhiều chi phí.
Trên đây là mẫu nhà cấp 4 diện tích 100m2 đẹp, hiện đại mà Xây Dựng Số gửi đến bạn. Hy vọng bạn sẽ tìm được nhiều ý tưởng hay cho ngôi nhà trong mơ của mình nhé!










