Thiết kế nhà theo phong cách kiểu pháp thể được xem là công trình kiến trúc vẫn được trường tồn mãi với thời gian cho đến tận hôm nay và chúng được rất nhiều chủ đầu tư lựa chọn cho ngôi nhà của mình. Những ngôi nhà dựa theo phong cách kiểu Pháp thường có sự hòa trộn của lối kiến trúc cổ điển phương Tây nhưng với một phần được lưu ý hơn hết chính là tối giản hơn trong đường nét thiết kế và những hoa văn trang trí nhưng vẫn giữ nguyên được nét sang trọng, lộng lẫy, quyền quý, thể hiện được đẳng cấp của chủ đầu tư.

Nhà ống kiểu pháp là sự tối ưu dành cho các gia đình mong muốn được phá cách cho công trình nhà ở của mình. Chúng mang đến sự khác biệt hoàn toàn với các kiến trúc nhà ống thông thường được lựa chọn mà thay vào đó là các đường nét uốn lượn khắc họa rõ nét các đường nét trang trí và phá vỡ đi hoàn toàn các quy luật vẫn được sử dụng. Nếu như kiểu mẫu về kiến trúc nhà ống này vẫn làm bạn thắc mắc thì hãy để những thiết kế phía dưới sẽ mang đến cho bạn một góc nhìn chân thực nhất.
Thiết kế nhà ống 4 tầng kiểu pháp sang trọng dựa trên lối tạo hình phá cách :
Có rất nhiều mẫu nhà ống 4 tầng hiện nay với số lượng ngày một gia tăng từ những hồ sơ được cung cấp từ các đơn vị. Tuy nhiên, nếu như bạn muốn kiến trúc của mình thật tráng lệ và đẳng cấp và trường tồn với thời gian thì cần khá nhiều đến việc tìm kiếm một kiến trúc sư phù hợp. Với những ai muốn tiết kiệm chi phí cho việc chi trả việc thiết kế thì bài viết này sẽ là một gợi ý phù hợp dành cho mọi người. Hy vọng những thông tin từ xaydungso.vn mang đến cho bạn là những kiến thức hữu ích.
Thiết kế số 1 : Mẫu nhà ống 4 tầng kiểu pháp tinh tế đến từng cm
Thông tin về mẫu nhà ống 4 tầng kiểu pháp
- Dự án thiết kế : mẫu nhà ống 4 tầng 5 kiểu pháp
- Chủ đầu tư: Châu Thị Thi Vân sinh năm 1970
- Phong cách xây dựng : “Phong cách pháp đã ảnh hướng đến kiến trúc Việt Nam trong suốt thời gian dài vừa qua. Tuy tôi là người Việt nhưng vẫn yêu mến phong cách xây dựng này. Hy vọng kiến trúc sư sẽ thiết kế cho gia đình tôi một ngôi nhà sang trọng tiện nghi và đẹp mắt ” yêu cầu từ chủ đầu tư.
- Địa chỉ : Quận 7 – thành phố Hồ Chí Minh
- Bản quyền thiết kế: Kiến Trúc Mới
- Kiến trúc sư : Phan Bảo Huy
- Thời gian thi công: ~ 3.5 tháng.
A. Phối cảnh nhà ống 4 tầng kiểu pháp :
Khi nhìn thấy thiết kế, bạn có thể sẽ thay đổi cách nhìn nhận về phong cách xây dựng này khi chúng luôn cách biết đưa những điểm sáng, điểm nổi bật của mình mang đến cho người xem. Kiến trúc mang đến như một bức tranh được hiện lên trong một bộ phim thơ mộng từ sự tinh tế mà chúng đã thể hiện được giá trị của mình một cách hiệu quả nhất.

Nhà ống 4 tầng đi theo kiến trúc pháp đã thể hiện được sự tinh tế từ mọi chi tiết nhỏ nhất như các mảng tường trang trí, hệ thống chiếu sáng và trang trí, cổng ra vào, tranh trang trí phía ngoài, lan can mà cả phần mái che phía bên trên tầng thượng cũng bị ảnh hưởng khá nhiều đến hoa văn bay bổng mà kiến trúc mang đến. Đó là một sự thành công , thành công lớn của cả một công trình tráng lệ mà mọi người vẫn say đắm vẫn được tồn tại trong hàng ngàn năm qua.
Phong cách xây dựng này chú trọng nhất chính là không gian rộng, thoáng mát và nối tiếp nhau với các chi tiết trang trí. Chính vì vậy mà sự liên kết không gian giữa các phòng là rất cần thiết hơn cả. Mỗi căn phòng sẽ có những điểm nhấn riêng nhưng bạn vẫn phải đề cao yếu tố hài hòa và đáp ứng được công năng sử dụng hoàn hảo nhất. Tuy vậy với công trình hiện lên không quá lớn nhưng vẫn tích hợp được các yếu tố vừa nhắc đến, nhưng bằng bàn tay khéo léo từ kiến trúc sư đã tạo nên công trình

Ở góc nhìn từ phía bên hông ngôi nhà, bạn có thể hình dung được một cách chân thật nhất. Nhà sử dụng cho mình với một gam màu trắng làm chủ đạo phân bổ ở mọi bề mặt của ngôi nhà. Khi kết hợp với màu sắc từ gam vàng càng làm cho công trình thêm tinh tế và đánh bật lên giữa một dãy kiến trúc. Tuy kiến trúc là phần chủ đạo nhưng các chi tiết nhỏ bên ngoài khi kết hợp lại mới thực sự mang đến thành công cho ngôi nhà mà bạn đang thấy.

Với vẻ ngoài tinh tế, công trình dễ dàng hút mọi ánh nhìn xung quanh dựa vào những chất liệu và các giá trị để tạo nên ngôi nhà. Với lan can được làm bằng sắt an toàn từ sắc vàng kết hợp với các cánh của từ vật liệu cường lực để tạo nên sự hài hòa, hoàn mỹ về tổng thể cho căn nhà ống 4 tầng kiểu pháp.
B. Thiết kế nhà ống 4 tầng từ bản vẽ kết cấu nội thất công trình :
Dựa vào bản vẽ từ các phối cảnh 2d mà chúng tôi cung cấp, mong rằng bạn sẽ hiểu rõ hơn về một kết cấu 4 tầng có gì bên trong. Mặt khác thông qua hồ sơ này bạn hoàn toàn có thể tận dụng chúng để thay đổi và thích ứng cho bố cục ngôi nhà của bạn thêm hoàn thiện hơn.

Mặt bằng tầng 1 : Nhà ống 4 tầng kiểu pháp với kiến trúc nhằm tạo nên việc sinh hoạt thuận lợi nhất cho gia chủ. Cụ thể với các chức năng chính và phụ như : sân trước, nhà để xe, phòng khách, nhà bếp, nhà vệ sinh, sân vườn.

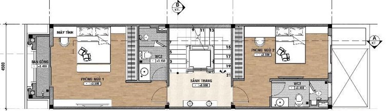
Mặt bằng tầng 2 : Theo lối cầu thang bộ đi lên không gian được tách biệt ra làm 2 với 2 phòng ngủ được kết hợp đầy đủ các chức năng tiện ích bên trong đầy đủ, 1 khoảng sân nhỏ trước mặt tiền cầu thang.

Mặt bằng tầng 3 : Thông thường với kết cấu này, kiến trúc sư sẽ sử dụng chúng như một không gian sinh hoạt riêng khi lối tạo hình và chức năng được lập lại giống với mặt bằng tầng 2.

Mặt bằng tầng 4 : Không gian hiện lên theo một lối tổ chức nhấn mạnh đến sự tiện nghi mang đến cho các thành viên có thể sinh hoạt theo một sự thuận lợi nhất định. Đó cũng là hướng mà gia đình lựa chọn với khoảng sân sau, nhà vệ sinh, sân phơi, phòng thờ,... được thể hiện một cách đầy đủ.

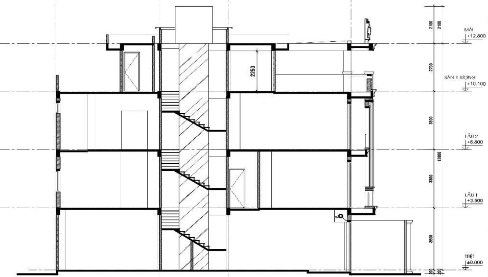
Mặt cắt ngang của kiến trúc : Dựa vào bản vẽ này, quý khách có thể hình dung được các gian phòng chức năng được phân bổ ở các vị trí nào. Nhằm đưa ra một phương án thích hợp nhất cho công trình trong tương lai của mình. Đây cũng là một gợi ý hợp lý dành cho các gia đình nhằm tiết kiệm chi phí được kiến trúc su Phan Bảo Huy chia sẻ.
Nhận định về công trình nhà ống 4 tầng kiểu pháp sang trọng :
Theo những đánh giá mang tính khách quan từ chúng tôi, có thể thấy được một sự tiện nghi đến từ bản vẽ thiết kế. Kiến trúc sư đã làm tốt nhiệm vụ của mình nhằm đưa ra với một phương án dành cho công trình và chủ đầu tư một cách chi tiết nhất.
Các chức năng phù hợp cho các gia đình có số lượng thành viên lớn, hoặc có thể kết hợp với 3 hoặc 4 thế hệ sinh sống bên trong. Nếu khai thác được tầng thượng để kết hợp thì hoàn toàn có thể nâng cao chức năng phòng ngủ lên con số 5.

Trở lại với phần kiến trúc từ mặt tiền của ngôi nhà, đây được đánh giá như một công trình hoàn hảo cho mọi gia đình yêu mến sự mới lạ, sự đột phá trong kiến trúc và sự thẩm mỹ luôn hiện diện từ các đường nét trang trí mà các thợ xây dựng đã tạo nên.
Việc kết hợp thêm cây xanh sẽ là phương án phù hợp cho ngôi nhà mà tầm quan trọng của chúng trong không gian nhà ở luôn mang đến thành công cho một công trình. Khi các vị trí có thể là sân thượng, ban công , sân trước hoặc có thể nằm trong kiến trúc.
Thiết kế nội thất nhà ống 4 tầng tiện nghi từ phong cách kiểu pháp :
Để có cho mình sự đồng nhất trong thiết kế nội thất nhà ống phong cách pháp, bạn phải tìm đúng đối tượng đúng đơn vị để có thể tận hưởng trọn thiết kế mà họ mang đến. Không phải cứ cảm thấy đẹp là có thể mang vào tùy theo sản phẩm, vật dụng, nội thất mà quan trọng hết vẫn là định hướng từ kiến trúc mà lấn sang nội thất.


Tuy đây là 2 tone màu đối lập căn bản nhưng đã thể hiện đúng theo phong cách pháp. Những đồ nội thất còn lại chủ yếu là gam màu trung tính để làm dịu lại sự đối lập của màu sơn. Hãy là một người kết hợp khéo léo giữa cổ điển nhằm tạo nên cho gia đình không gian gần gũi, gắn bó với những đồ lưu niệm đầy ý nghĩa với bạn. Đừng chạy mãi theo một xu hướng nào đó mà hay là người đi theo một phong cách nhất định, nếu yêu thích chúng bán sẽ đào sâu hơn về chúng để các giá trị ngày càng được nâng tầm từ kiến thức mà bạn đã học được.


Phía trên là những thông tin được xaydungso.vn biên tập và mang đến cho mọi quý độc giả và khách hàng cùng tham khảo. Để hiểu hơn về kiến trúc hoặc nhận báo giá thì đừng ngần ngại liên hệ ngay với chúng tôi thông qua hotline. Đơn vị tư vấn sẽ giải đáp mọi thắc mắc của quý khách. Xin chào và hẹn gặp lại mọi người trong các thiết kế từ nhà ống trong các bài viết tiếp theo !
Xem thêm :






























