Mẫu nhà ống 4 tầng mặt tiền 4m. Khi việc thiết kế từ các đơn vị thi công làm bạn phải suy nghĩ quá nhiều để có thể hiểu được theo một góc nhìn chân thực nhất thì chúng tôi sẽ đơn giản hóa vấn đề đó để mọi người có thể xây dựng một ngôi nhà hoàn thiện.
Với nhiều người, thì việc tìm kiếm cho mình một ý tưởng để xây dựng một ngôi nhà với kết cấu phía trên không quá khó bởi nhu cầu xây dựng ngày nay càng được nâng cao. Mà từ đó, các gia đình có thể đứng ra để tự quản lý công trình nếu như đã có cho mình một kinh nghiệm trong lĩnh vực. Trực tiếp khắc phục các hạn chế và đẩy mạnh lợi ích từ kiến trúc nhà ống. Và nếu bạn yêu thích các thiết kế từ xaydungso.vn hãy là người chủ động cho ngôi nhà trong tương lai của mình. Hãy cùng chúng tôi xem qua các thiết kế ngay phía bên dưới nhé !
Tư liệu xây dựng nhà ống 4 tầng mặt tiền 4m được lựa chọn là xu hướng xây dựng 2021 :
Xu hướng được cập nhật theo thời gian và dần đưa ra cho một vấn đề sự vật sự việc với một hình thức mới lạ, độc đáo hơn rất nhiều. Từ đó mà các xu hướng xây dựng cũng được hình thành theo từng mốc giai đoạn khác nhau. Như một phần không thể thiếu trong định hướng năm 2021 này, nhà ống đã dần chuyển mình theo vòng xoay luân hồi đó để tạo nên cho mọi người một sự lựa chọn đa dạng hơn và không bị bó buộc vào phong cách cổ điển, tân cổ điển hay hiện đại. Mà những thiết kế phía dưới sẽ là những dẫn chứng cụ thể nhất.
Thiết kế số 1 : Mẫu nhà ống 4 tầng mặt tiền 4
1.Thông tin về mẫu nhà ống 4 tầng diện tích 4x15m hiện đại
- Dự án thiết kế : mẫu nhà ống 4 tầng diện tích 4x15m
- Chủ đầu tư: Dương Trấn Thiên sinh 1978
- Phong cách xây dựng : “Cập nhật xu hướng xây dựng của năm 2021 để các thành viên trong gia đình được tận hưởng một sự đột phá từ kiến trúc. Đó là phần thưởng xứng đáng cho gia đình của tôi” yêu cầu từ chủ đầu tư.
- Địa chỉ : Quận 12 – thành phố Hồ Chí Minh
- Thời gian thi công: ~ 3 tháng.
Theo gia chủ thì chi phí xây không phải là vấn đề mà đáng suy nghĩ mà cần đạt được những yêu cầu mà họ đưa ra. Đây cũng là một bài toán khá hóc búa dành cho đơn vị thiết kế và các thay đổi từ bằng sự nỗ lực của chúng tôi đã được đền đáp bằng sự tán dương từ chủ đầu tư. Sau khi xin phép được chia sẻ công trình này trên trang thì đã được sự chấp thuận từ chủ đầu tư.
A. Phối cảnh nhà ống 4 tầng 4x15m :
Từ phối cảnh nhà ống diện tích 4x15m, bạn có thể thấy được khả năng tạo hình từ sự độc đáo mang đầy điểm nhấn. Mà còn là màu sắc được kết hợp thông qua con mắt sáng tạo mà kiến trúc sư muốn gửi đến cho chủ đầu tư. Từ đó mà công trình cũng được ưu ái hơn sắc nét hơn và độc đáo hơn rất nhiều so với các công trình cạnh bên.

Từ mặt tiền ngôi nhà, thì mọi người có thể dễ dàng nhận thấy được theo từng mặt bằng có sự đổi mới không phải là sự lặp lại theo các bức tường phục vụ cho việc trang trí. Hệ thống cây xanh được phân bổ ở các vị trí thích hợp mà chúng cũng là phương án hiệu quả để nâng cao thẩm mỹ cho công trình vẫn luôn được sử dụng.

Phương án thứ 2 đưa ra dành cho chủ đầu tư khi lược bỏ đi các chức năng từ các tạo hình từ bức tường mang màu sắc trang trí khi chúng có thể phô diễn được công năng theo từng mặt bằng xây dựng. Mà khi cung cấp từ bộ hồ sơ thiết kế thì gia chủ đã chọn cho mình với 1 phương án đầu tiên. Mà với các độc giả, bạn hoàn toàn có thể lựa chọn cho mình từ một phương án mà bạn cho rằng chúng phù hợp với gia đình mình.
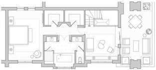
B. Bản vẽ thiết kế nhà ống 2021 từ mặt tiền 4m :
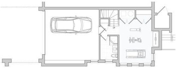
Mặt bằng tầng 1 : Là phương án được chủ đầu tư sử dụng là một nhà xe để bảo quản phương tiện giao thông kèm theo là các tiện ích kết hợp khi có một căn phòng sử dụng là nơi tập luyện thể thao. Khi không quên kết hợp cho mình với 1 nhà vệ sinh nằm ngay chân cầu thang.

Mặt bằng tầng 2 : Khi tính năng tiện dụng, thoải mái để sử dụng từ các gia đình có lối sinh hoạt hiện đại thì với mặt bằng tầng 2 này là một phương án từ kiến trúc sư hướng đến. Khi kết hợp với 1 nhà vệ sinh, 1 nhà bếp, 1 bàn ăn, không gian thư giãn với 1 bộ sofa mà còn là 1 không gian rộng để tiếp khách với các thiết bị tiện nghi.

Mặt bằng tầng 3 : Dẫn lên mặt bằng này từ hệ thống cầu thang khi kiến trúc sư đã kết hợp với 2 phòng ngủ tiện nghi có tích hợp các gian phòng chứa đồ dùng sinh hoạt, nhà vệ sinh đầy đủ và 1 gian phòng dùng học tập hay làm việc mà các thành viên có thể sắp xếp.

Nhà ống 4 tầng được sử dụng tối đa các chức năng khi mặt bằng này vẫn là 1 phòng ngủ các gian nhà chứa đồ dùng,1 khoảng không sinh hoạt phía gần cầu thang và 1 ban công nằm phía sau để giảm đi sự nhộn nhịp đông đúc. Mà đây có thể là không gian riêng của chủ đầu tư khi tách biệt hoàn toàn với phía dưới.

Thiết kế số 2 : Mẫu nhà ống 4 tầng mặt tiền 4
1.Thông tin về mẫu nhà ống 4 tầng diện tích 4x20m hiện đại
- Dự án thiết kế : mẫu nhà ống 4 tầng diện tích 4x20m
- Chủ đầu tư: Cao Minh Quân sinh 1973
- Phong cách xây dựng : “” yêu cầu từ chủ đầu tư.
- Địa chỉ : Quận Bình Tân – thành phố Hồ Chí Minh
- Thời gian thi công: ~ 3 tháng.
A.Phối cảnh mặt tiền của ngôi nhà dạng ống 4m mặt tiền :
Bản vẽ được cung cấp từ kiến trúc sư Nguyễn Minh Nhật đã được phát hành trên các phương tiện từ các nền tảng kiến trúc. Đây là công trình được xây dựng từ xu hướng xây dựng của thời đại, như một lời khẳng định về giá trị của ngành kiến trúc ảnh hưởng như thế nào trong năm 2021 này. Không gian có gì mới lạ hãy cùng xem qua và đưa ra cho chúng tôi những đánh giá riêng của bạn.

Có thể cảm nhận được một sự thay đổi từ kiến trúc thông thường đã được phá bỏ và thay vào một sự tinh tế độc đáo từ kiến trúc như khẳng định được một giá trị riêng giá trị của thời đại mà theo những thích nghi từ xu hướng xây dựng đã mang đến cho kiến trúc nhà ống thêm đặc sắc hơn rất nhiều.

Kiến trúc nhà ống 4 tầng đã được khai thác từ sự khỏe khoắn bởi hình thể dạng khối như một phương án từ đóng góp của cả 1 tập thể. Để mang đến với một sự tiện nghi cho công trình theo từng cấp bậc từ chức năng của từng tầng mà còn là màu sắc hết sức hài hòa xen kẽ từ các chi tiết tạo hình để công trình này mang đến tay người chủ đầu tư. Nếu như yêu mến lối tạo hình này, hãy mang chúng vào chính ngôi nhà của bạn thông qua phối cảnh 3d này nhé.
B. Bản vẽ thiết kế nhà ống 4 tầng diện tích 4x20m :

Mặt bằng tầng 1 : Là sự kết hợp một cách hoàn hảo từ diện tích mà có thể phân bổ các chức năng một cách đầy đủ nhất. Với phần mặt tiền là không gian sân trước sử dụng là nơi để xe, 1 phòng khách và không thể thiếu 1 nhà bếp phía sau. Nhờ diện tích rộng mà thiết kế còn kèm với 1 nhà vệ sinh phía cuối cùng.

Mặt bằng tầng 2 : Với các chức năng chính gồm 1 nhà vệ sinh,1 phòng của bé và kèm theo là sự yêu cầu của gia chủ khi kết hợp với một phòng ngủ lớn nơi có đầy đủ các tiện nghi với các thiết bị hiện đại và có thể sử dụng chúng là không gian riêng của 2 vợ chồng.

Mặt bằng tầng 3 : Khi gia chủ cần đến với 1 phòng ngủ rộng rãi, 1 phong làm việc và 1 không gian sinh hoạt có thể sử dụng làm nơi tiếp khách hay học tập và làm việc kèm thêm. Đó là sự đánh dấu bằng lối chức năng mở rộng được thay đổi hoàn toàn khi mọi mặt bằng đều là sự đổi mới.

Mặt bằng tầng 4 : là không gian sân vườn rộng nằm ngay mặt tiền khi chúng là nơi để thư giãn hiệu quả với 2 gian nhà có thể thay đổi chức năng với các tiện ích mà gia chủ có thể thoải mái sử dụng và tận hưởng sự tiện nghi từ số lượng phòng khá lớn.
Đó là những tư liệu mà trong bài viết này chúng tôi muốn hướng đến cho mọi người như một phần tri ân mà các độc giả đã luôn theo dõi trong suốt hành trình phát triển của xaydungso.vn. Chúc công trình của quý độc giả, quý khách sẽ tiện nghi, đầy đủ các chức năng sinh hoạt, sự thẩm mỹ và cả giá trị từ sự nỗ lực để đạt được thành công bằng chính ngôi nhà !
Xem thêm:


































