Khi bạn đang sở hữu cho mình một diện tích lên đến 9x12m và đang tìm kiếm cho mình với một kiến trúc từ kết cấu bởi nhà ống thì xin chúc mừng bạn. Vì đây sẽ là bài viết phù hợp với các tiêu chí phía trên, ngoài ra chúng tôi sẽ giới thiệu một cách chi tiết nhất về chúng thông qua các hồ sơ về mẫu nhà ống 9x12m để giúp mọi người có thể tạo nên một không gian sống “ Đẳng Cấp”.

Bước vào một quy trình để xây dựng một ngôi nhà sẽ có rất nhiều hạng mục khác nhau để hình thành nên từ các bước nhỏ nhất đến lớn nhất. Ví dụ điển hình như một ý tưởng xây dựng, triển khai các ý tưởng đó từ một đơn vị thiết kế xây dựng, tìm một đơn vị thi công phù hợp, sáng tạo không gian nội thất… Vì mỗi bước sẽ bổ trợ cho nhau giúp bạn có thể tạo nên một ngôi nhà đáp ứng được các tiêu chí khác nhau về công năng sở thích hay cả lối sinh hoạt mà gia đình đang hướng đến.
1.Ý tưởng xây dựng : Có thể đây sẽ là một bước để khởi đầu cho một kiến trúc từ ý tưởng mà bạn đã định hình trong đầu nhằm chọn ra cho mình với một công trình phù hợp nhất. Có thể thay đổi, sửa chữa trên một bản thông tin như diện tích, kiểu kiến trúc hay phong cách hướng đến.
2. Tìm đơn vị thiết kế cho bộ hồ sơ xây dựng : Bạn có quyền lựa chọn và cân đối theo tài chính của gia đình hay cả năng lực của các đơn vị thông qua việc trao đổi trực tiếp từ đội ngũ chăm sóc khách hàng của đơn vị đó. Nên lựa chọn một cách kỹ lưỡng nhất vì chúng sẽ là một bước đệm quan trọng cho việc tạo nên một ngôi nhà giá trị.

3. Lựa chọn một kiến trúc phù hợp : Sau quá trình khảo sát trao đổi trực tiếp với các đơn vị thiết kế mà bạn có thể nhờ đến sự tư vấn từ đơn vị đó. Nhằm mang đến sự chắc chắn với một công trình mà bạn đang theo đuổi mà cũng phải nhờ đến diện tích thửa đất, điều kiện để thi công cho ngôi nhà.

4. Bám sát theo tiến độ công trình : Bạn có thể lựa chọn giữa hạng mục thi công trọn gói hoặc hạng mục thuê nhân công xây dựng mà đơn vị đó sẽ vạch rõ những điểm mạnh và ưu điểm từ chúng để bạn có thể lựa chọn cho mình với một phương án phù hợp. Ngoài ra, cần phải bám sát theo tiến độ của công trình dù là phương án nào để kịp với những kí kết ban đầu từ 2 bên.
5.Nghiệm thu công trình : Đây là một bước quan trọng trước khi tiến hành thanh toán chi phí còn lại. Bởi chúng đều sẽ có những lỗi sai sót, tuy nhỏ nhưng cần khắc phục ngay để không phải mất thời gian cho việc bảo trì về sau. Và khắc phục các thiếu sót trong các hạng mục từ hồ sơ thiết kế ban đầu để ngôi nhà trở nên hoàn thiện hơn.
6. Bám sát theo công trình để thiết kế nội thất : Bạn cần tìm hiểu trước khi lựa chọn các nguồn vật dụng nội thất để tạo nên một sự tương đồng cho tổng quan của một ngôi nhà. Từ phong cách đã chọn ban đầu từ kiến trúc của ngôi nhà cho đến phần nội thất để tạo nên một công trình đẳng cấp cho ngôi nhà của mình.

Phía trên là các bước để hình thành và hoàn công cho một ngôi nhà dạng ống mà bạn đã tin tưởng lựa chọn từ những ưu điểm riêng biệt bởi kiến trúc. Tuy sẽ không thể hiện một cách đầy đủ nhất nhưng chúng sẽ giúp các bạn có thêm cho mình một tư liệu để ngôi nhà sau khi hoàn công có thể sử dụng một cách hoàn hảo nhất. Mà từ các hạng mục vừa kể phía trên hãy triển khai chi tiết để bám sát cho công trình một cách trọn vẹn.
Giới thiệu bộ hồ sơ từ thiết kế nhà ống đẹp với diện tích 9x12m
Theo các tư liệu này, mọi gia đình hay chủ đầu tư có thể lưu lại trực tiếp trên các nền tảng lưu trữ khác nhau để khi tiến hành xây dựng hãy đưa chúng cho các đơn vị thiết kế, đơn vị thi công để có thể khái quát tư liệu mà họ sẽ dễ dàng nắm bắt được. Hoặc hoàn toàn có thể liên hệ với chúng tôi để nhận thêm các tư vấn một cách kĩ lưỡng nhất cho công trình của bạn và rất hân hạnh nếu như được hợp tác !
1. Kiến trúc nhà ống 9x12m kết cấu 1 tầng thể hiện đẳng cấp riêng biệt :

Thông qua một diện tích từ lô đất khá rộng mà ngôi nhà đã được hình thành thông qua một góc chụp từ trên cao mà người xem có thể hình dung một cách rõ nét nhất. Xung quanh là hệ thống sân vườn với nguồn thực vật dồi dào từ các vị trí khác nhau mà đã tô điểm cho công trình với một nét đẹp riêng, nét đẹp hiện đại với sự đẳng cấp điều mà gia chủ đã định hướng ngay từ ban đầu.

Với 2 gam màu chủ đạo là trắng và xám được xuyên suốt hết mọi vị trí từ công trình. Khi vật liệu mái và các bức tường có sự trùng lặp được thể hiện rõ và giúp đánh bật lên kiến trúc là các cột nhà, mảng tường trắng nằm phía dưới phần mái đã thể hiện sự chấm phá từ màu sắc hoàn hảo bởi công trình và mang đến cho gia chủ.

Tiếp theo là góc chụp từ phía trước của ngôi nhà là một sự tiện nghi khi hướng mặt tiền là hệ thống gara nơi bảo quản các phương tiện của gia chủ. Là một sự đồng bộ độc đáo từ màu sắc và cả nét tạo hình từ các miếng mảng đã làm cho ngôi nhà dạng ống này không khác gì một kiến trúc biệt thự sân vườn sang trọng thu hút mọi ánh nhìn của người đi đường khi vô tình lướt qua.

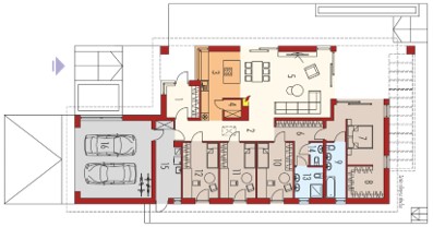
Bên trong ngôi nhà thông qua bản thiết kế xây dựng là một sự kết hợp hoàn hảo mà khi sử dụng mọi người sẽ cảm nhận được tính tiện lợi, mà kiến trúc sư đã hình thành cho gia đình chủ đầu tư. Nhà với 4 phòng ngủ, 2 nhà vệ sinh kèm phòng master với nhà bếp phòng khách, không gian ăn uống trở ra phía mặt tiền là gara và 1 sân trước có cùng kích thước.
2. Thiết kế nhà ống từ diện tích 9x12m mái bằng 1 tầng sang trọng :
Cũng như các chia sẻ phía trên, công trình thứ 2 là một ngôi nhà được xây dựng dựa theo các thông tin ban đầu từ chủ đầu tư cung cấp và thông qua các thiết kế từ chúng tôi sẽ là một lựa chọn phù hợp dành cho bạn và gia đình.

Ngôi nhà với một hệ thống mái bằng đúng như tiêu chí ban đầu dựa theo bố cục có sự tính toán cho những dự định dài từ gia chủ mong muốn hướng đến. Mà có thể lên thêm tầng thứ 2 nếu như muốn mở rộng không gian. Đây là góc chụp từ hướng mặt tiền ngôi nhà như một khẳng định về giá trị mà không gian đang mang đến cho người sử dụng.

Phần phía sau của ngôi nhà là một góc nhìn hoàn toàn khác. Khi chúng thể hiện sự thư thái và tập trung khá nhiều đến hệ thống từ sân vườn vốn là các tiêu chí được các gia đình luôn mong muốn hướng đến thông qua hệ thống sân vườn được thiết kế chi tiết.

Ở góc chụp này là một sư tinh tế mà mọi người có thể dễ dàng cảm nhận từ hệ thống năng lượng mặt trời phục vụ cho các thiết bị khác nhau từ nội thất. Mặt khác với các giá trị thẩm mỹ đã thể hiện một cách chân thực nhất mà mọi người có thể làm theo cách sắp xếp này vào trong chính ngôi nhà của mình.

Đối lập với hệ thống từ mặt tiền là phần sau sân vườn của ngôi nhà khi chung đẹp hơn rất nhiều theo góc nhìn nhận riêng từ tôi. Khi các miếng mảng hình khối đã được gọt dũa bằng bàn tay điêu luyện từ kiến trúc sư đã làm tốt hơn những gì mà chủ đầu tư mong đợi. Như lời khẳng định giá trị, đẳng cấp đã được lựa chọn cho công trình để phục vụ cho gia đình.

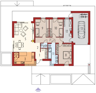
Thông qua bản vẽ thiết kế phía trên, gia chủ đã được thừa hưởng sự tính toán từ sự sáng tạo và đổi mới một cách độc đáo từ đơn vị thiết kế với một công trình tiện nghi nhất. Phần chính giữa của ngôi nhà là hệ thống gồm 3 phòng ngủ 1 nhà vệ sinh phụ và 1 chính kèm các tiện nghi đầy đủ. Thông qua bên trái là gian phòng sinh hoạt chung với các chức năng kèm theo với phòng khách, nhà bếp, bàn ăn khá rộng rãi từ diện tích và gian nhà cuối cùng là hệ thống gara được kết hợp bên trong kiến trúc.
Phía trên là 2 hồ so thiết kế mà xaydungso.vn chia sẻ với các độc giả và quý khách hàng. Chúc công trình của bạn sẽ trở nên hoàn hảo hơn, tiện ích hơn, thẩm mỹ hơn để thể hiện sự đẳng cấp của gia đình bạn bằng chính nơi mà bạn đang sinh sống. Và rất hân hạnh nếu như được hợp tác trong tương lai !
Xem thêm :


































