Chủ đề mới trong ngày: Mẫu nhà phố 3 tầng đẹp hiện đại với quy mô nhỏ 5,8×5,9m2
Ngôi nhà không chỉ là chốn trú ngụ đơn thuần mà nó còn là mái ấm, vun vén nên tình yêu thương cho cả gia đình. Do vậy, mong muốn sở hữu một ngôi nhà hiện đại, với đầy đủ không gian tiện ích là ước mơ của rất nhiều người. Với diện tích đất gần như vuông vức, khá hạn chế quy mô 5,8x5,9m2. Chúng tôi xin giới thiệu đến các bạn mẫu nhà phố “hợp thời”, sang trọng và đẳng cấp giúp quý khách hàng có nhu cầu tham khảo.
Nắm bắt xu hướng kiến trúc hiện nay, ngôi nhà mang phong cách hiện đại này sẽ được xây dựng theo dạng nhà ống 3 tầng phố biến. Nơi đây hội tụ mọi không gian cần thiết cho sinh hoạt hằng ngày của gia đình. Đồng thời tạo lập những giá trị khác biệt, mang lại mẫu thiết kế nhà đẹp tối ưu hóa diện tích và đặc biệt là tiết kiệm tối đa chi phí.
Phối cảnh mặt tiền + nội thất mẫu nhà phố 3 tầng đẹp hiện đại trên mảnh đất nhỏ 5,8×5,9m2
Ưu điểm của mẫu thiết kế nhà phố này là mặt tiền rộng rãi, tạo cho người đối diện cảm giác đang chứng kiến một công trình hoành tráng với những đường nét tạo bạo, kiến trúc độc đáo đa dạng và ấn tượng. Tổng thể mặt tiền ngôi nhà hầu hết đều được sử dụng chất liệu kính, điều này góp phần tạo sự thông thoáng tuyệt đối, gia chủ có thể thoải mái đón nắng gió tự nhiên vào tràn ngập khắp phòng, mọi thứ cũng sẽ trở nên lung linh hơn bao giờ hết.

Mẫu nhà phố 3 tầng hiện đại trên diện tích 5,8×5,9m2
Trước hết phải kể đến cổng chính, nơi khởi nguồn cho những khám phá. Nơi đây được thiết kế với hai mảng tường lớn 2 bên. Nhằm gây ấn tượng cũng như tạo sự phá cách, nhiều ô vuông trắng được xây dựng phía trên những sọc ngang nhỏ kín. Khách đi đường có thể xuyên qua bờ vách này nhìn thấy không gian ở phía trong, điểm nhấn này nhằm tạo sự thoáng mát, thân thiện. Ngôi nhà đẹp với mỗi tầng sẽ mang một phong cách khác nhau, theo đó sẽ có từng điểm nhấn riêng tạo sự mới lạ và độc đáo. Nếu như tầng 2 gây chú ý bởi không gian mở, kèm bố trí tượng bà quan âm, nơi tâm linh của toàn gia đình thì tầng 1 lại được chấm phá bởi sự kết hợp đan xen giữa không gian kín đáo và thông thoáng nhờ những chiếc cửa kính diện tích lớn ngay cạnh ban công.

Cách bố trí không gian nội thất đẹp phù hợp với diện tích nhỏ.
Chiều dài ngôi nhà rất ngắn nhưng phòng khách lại được thiết kế khá rộng rãi và xinh xắn. Vì là nơi tiếp đón bạn bè và những vị khách quý, nên không gian này thường phải toát lên được “khí chất” của toàn ngôi nhà, theo đó sẽ được bố trí nội thất trang trọng, nhấn nhá bằng vài đường sọc ngang và bức tranh treo trên tường. Hệ thống đèn chiếu cũng góp phần tạo sự thanh thoát. Tổng thể nhìn đơn giản nhưng lại rất sang trọng và đẳng cấp. Dấu ấn rõ rệt nhất chính là không gian thu nhỏ ngay phía dưới chân cầu thang, nơi mà gia chủ có thể chưng bày tiểu cảnh, tạo sự thích thú cho mọi người.

Tổng thể tầng trệt với diện tích khiên tốn

Phòng bếp được kết hợp nối liền phòng khách nhằm rối ưu không gian

Góc nhìn tổng thể từ khu vực phòng khách nhìn vào bếp.
Diện tích đất hạn chế, do vậy, việc thiết kế liên thông phòng bếp và phòng khách được ưu tiên sử dụng. Với kết nối này sẽ giúp tăng sự thuận lợi cho gia chủ mà vẫn giữ được độ thẩm mỹ nhất định. Nhờ bố trí khéo léo và lựa chọn các thiết bị nội thất chất lượng, bắt mắt, bộ bàn ăn được đặt ngay giữa không gian tạo sự rộng rãi và có tính kết nối. Bàn thờ ông địa, ông tài được bố trí ngay trước đó, tách biệt với không gian sinh hoạt chung nhờ các thanh dọc theo bờ tường, tạo sự trang trọng.

Dù diện tích nhỏ nhưng phòng ngủ được thiết kế rất thoáng đãng.
Phòng ngủ cũng được thiết kế theo phong cách đơn giản, nhưng toát lên sự trang nhã, thanh lịch. Một vài bức tranh được bố trí phá cách trên bờ tường, màu sơn nhẹ nhàng cùng một và điểm nhấn đậm sắc khác biệt tạo nên một tổng thể hòa hợp, tao nhã.

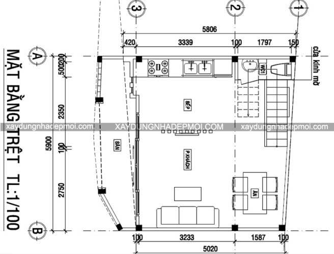
Bản vẽ mặt bằng tầng trệt

Bản vẽ thiết kế mặt bằng lầu 1
Tận dụng tối đa diện tích của căn nhà, ở lầu 1 hai phòng ngủ được xây dựng tương đối. Vì là không gian riêng nên nơi đây sẽ được xây dựng tách biệt, chắc chắn sẽ là nơi nghỉ ngơi thoải mái sau chuỗi thời gian mệt mỏi và vất vả ở ngoài. Đồng thời, kết hợp giải pháp thiết kế tối giản góp phần làm căn phòng trở nên thông thoáng hơn, mang lại sự nhẹ nhàng, yên bình.

Bản vẽ thiết kế mặt bằng lầu 2
Điểm nhấn của tầng hai chính là không gian tâm linh cùng khoảng sân thượng rộng rãi. Vì là không gian mở, nên nơi đây rất thích hợp để gia chủ dành làm khoảng không gian kết nối các thành viên trong gia đình. Đồng thời kết hợp trồng rau, xây dựng một khu vườn nhỏ ngay tại căn nhà của mình.
Dù sở hữu diện tích khiên tốn nhưng mẫu nhà phố 3 tầng này vẫn mang được nét đẹp hiện đại, cách bố trí không gian hợp lý, tạo thoải mái cho thành viên trong gia đình. Từng không gian chức năng đều được tối ưu hóa với diện tích có sẵn, nếu bạn sở hữu cho mình diện tích đất tương tự có thể áp dụng mẫu thiết kế này rất phù hợp.
Nguồn tin: xaydungnhadepmoi.com


































