Chủ đề nổi bật trong tháng: Mẫu Nhà Cấp 4 Khoảng 200 Triệu
Bạn có tin chỉ với 200 triệu đã có thể xây dựng một ngôi nhà cấp 4 với đầy đủ tiện nghi? Vậy với chi phí phải chăng đó có thể xây dựng được tổ ấm riêng tư không? Điều mà nhiều gia đình, nhất là các cặp vợ chồng mới cưới thắc mắc. Để minh chứng cho việc với khoảng tài chính 200tr đã có thể thi công một ngôi nhà 1 tầng đẹp đơn giản, hãy cùng website xem ngay qua quá trình và những điều lưu ý ngay sau đây.
Thiết Kế và Thi Công Mẫu Nhà Cấp 4 Giá Rẻ Khoảng 200 Triệu
Với nguồn tài chính eo hẹp như vậy thì mái tôn là sự lựa chọn thông minh, một cách tiết kiệm chi phí khá hữu ích. Sử dụng mái tôn sẽ giúp cho gia chủ tiết kiệm được một khoảng chi phí khá lớn so với mái thái hay mái ngói. Khi tiết kiệm được khoảng chi tiêu đó, bạn có thể sử dụng cho việc mua sắm các đồ dùng, nội thất bên trong căn nhà đẹp giá rẻ để không gian sinh sống được thoải mái hơn. Dễ dàng lắp đặt và thi công, qua đó bạn cũng dễ dàng tháo ra và đầu tư hơn khi đã có nguồn tài ổn định sau này.

Mặt tiền nhà cấp 4 mái tôn giá rẻ
Vị trí thi công cũng phụ thuộc rất nhiều vào việc tiết kiệm chi phí. Như nhiều người cũng biết giá thành vật liệu, nội thất, công thợ,… tại các khu vực thành thị đông dân sinh sống luôn luôn cao hơn so với nông thôn ở miền quê. Điều này hết sức quan trọng, bạn cần phải tính toán kỹ lưỡng được nguồn chi phí ra vào một cách cẩn thận.

Thi công xây dựng nhà cấp 4 giá rẻ
Để giảm thiểu chi phí nhất, bạn nên xây dựng tường đơn thay vì tường đôi. Vì diện tích xây dựng nhỏ, tường đơn khá thích hợp cho việc tiết kiệm chi phí xây dựng mà vẫn đảm bảo vấn đề chắc chắn và kiên cố. Trong những lần đặt viên gạch đầu tiên thay vì thuê giám xác công trình, bạn có thể tự bản thân giám xác các thợ xây để tiết kiệm chi tiêu thêm 1 đầu người.

Thiết kế thi công nhà cấp 4 chỉ 200 triệu ở nông thôn
Nhìn chung bên ngoài mặt tiền nhà cấp 4 đẹp, mỗi căn phòng đều được thiết kế cửa sổ riêng. Điều này giúp việc đưa nguồn ánh sáng tự nhiên vào ngôi nhà dễ dàng hơn, qua đó cũng làm ngôi nhà được thoáng đãng vào những ngày mưa đến. Để tăng giá trị và nét đẹp sinh động cho mặt tiền nhà cấp 4, bạn có thể đi mua những loại cây cảnh mà bản thân yêu thích để trang trí.

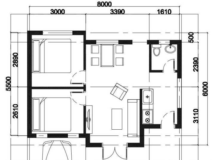
Chi tiết bản vẽ của căn nhà cấp 4 mái tôn
Biết được tâm tư của nhiều gia đình mong muốn sở hữu ngôi nhà, các kiến trúc sư dày dặn kinh nghiệm đã thiết kế ra bản vẽ công năng khá hợp lý. Dù diện tích bị hạn chế, nhưng nhìn chung tổng quan bản vẽ thì các hoạt động sinh hoạt trong nhà vẫn diễn ra một cách thuận tiện cho các thành viên. Đặt chân vào ngôi nhà bạn sẽ thấy căn phòng khách sắp xếp khá gọn gàng nằm cạnh tường để giúp việc tiết kiệm không gian sinh hoạt rộng thoáng hơn. Đối diện phòng khách là bàn ăn uống cho cả gia đình, cùng là nơi diễn ra các cuộc trò truyện trong mỗi bữa ăn ngon. Khu vực phòng bếp bố trí ngăn nắp liền kề với phòng vệ sinh, 2 khu vực này đều bố cửa thoát khí riêng khá thông thoáng. 2 Phòng ngủ yên tĩnh nằm kế nhau nhằm tối ưu diện tích và nhìn tổng quan nhà cấp 4 1 tầng trông có tính thẩm mỹ hơn.
Hiện nay xây dựng những ngôi nhà 1 tầng tiết kiệm chi phí thì mái tôn là vật liệu được nhiều gia đình yêu tích bởi tuổi thọ lâu năm, sự bền bỉ và giá thành phải chăng. Nếu bạn đang muốn thi công nhà cấp 4 giá rẻ chỉ với 200 triệu, thì mái tôn là lựa chọn rất hợp lý.
Nguồn: Sưu tầm
Xem thêm tin mới trong ngày:
Mẫu nhà cấp 4 mái thái giá 300 triệu


































