Xây dựng số xin gửi tới các bạn độc giả mẫu thiết kế văn phòng công ty thi công tại Lê Văn Sỹ - Quận 3 - TPHCM. Công trình nay thi công & xây dựng bởi Công Ty TNHH MYHOOMEE, thiết kế mang trong mình sự ấn tượng độc đáo qua từng phối cảnh tổng thể nội ngoại thất. Kiến trúc phong cách hiện đại, điểm nhấn của công trình nhờ vào hình khối rõ nét, khá ấn tượng từ cái nhìn đầu tiên.
Thiết kế văn phòng hiện đại với quy mô 1 trệt 1 lửng 2 lầu 1 sân thượng đảm nhận bởi Công Ty TNHH MYHOOMEE sẽ tận dụng tối đa công năng sử dụng. Hơn hết, trong mẫu thiết kế này sẽ được đáp ứng triệt để với các chi tiết như ban công, hệ thống cửa kính, hướng nhà...Đặc biệt, ở thiết kế này từng không gian chức năng riêng được tách biệt rõ ràng, mang tới sự yên tĩnh và không gây cảnh hướng tới toàn bộ công trình.
Phối cảnh mặt tiền mẫu thiết kế văn phòng công ty phong cách hiện đại

Góc nhìn bên hông

Góc nhìn chính diện từ 2 mặt tiền khá đẹp

Nhìn vào góc nhìn này bạn sẽ thấy mẫu thiết kế kiểu dáng rất độc đáo.
Thông quan hình ảnh phối cảnh mặt tiền từ 3 góc nhìn khác nhau, căn nhà đẹp lộng lẫy với cách biến tấu mới lạ. Kiến trúc mang trong mình tông màu nâu thanh lịch, phóng khoáng...với thiết kế này vừa tiết kiệm được diện tích xây dựng. Kiến trúc sư đã tận dụng nhiều phương án khác nhau để cho ra đời một kiến trúc đi vào lòng người như thế này, kiến trúc theo xu hướng không gian mở giúp cho không gian bên trong phòng được đảm bảo đầy đủ ánh sáng và gió mát nhờ vào hệ cửa kính hiện đại.
Tham khảo bản vẽ bố trí mặt bằng (mb kiến trúc) của từng tầng

Mặt bằng tầng trệt

Mặt bằng tầng lửng

Mặt bằng tầng 1

Mặt bằng tầng 2

Mặt bằng sân thượng

Mặt đứng 4-1

Mặt đứng A-A

Mặt đứng A-B

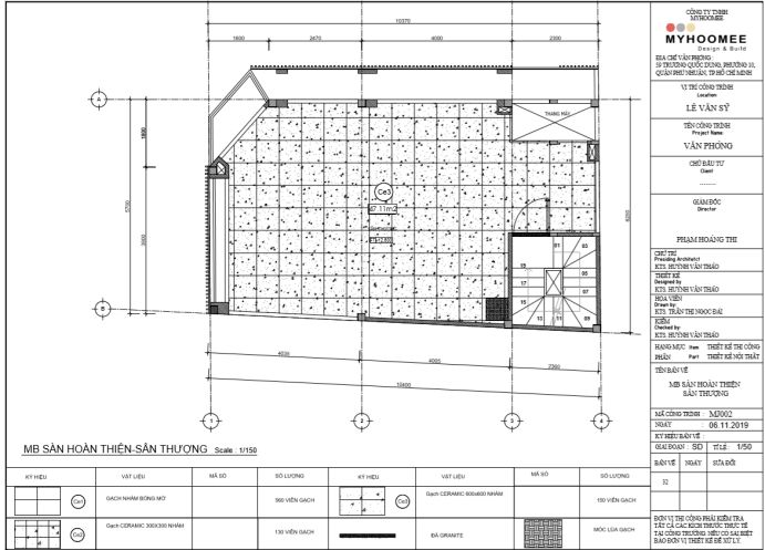
MB Sàn - Trệt - sân thượng

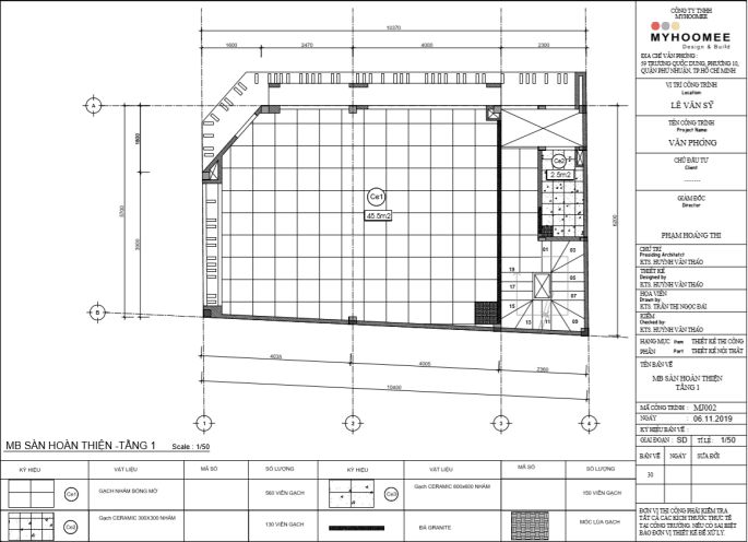
MB Sàn - Trệt - tầng 1

MB Sàn - Trệt - tầng 2

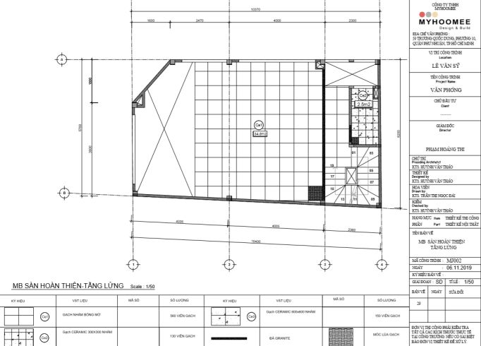
MB Sàn - Trệt - tầng lửng

MB Sàn - Trệt
Thiết kế nội bất bên trong văn phòng công ty đẹp










Dự án văn phòng công ty ở địa chỉ Lê Văn Sỹ , Quận 3 , TPHCM đảm nhận công trình bởi Công Ty TNHH MYHOOMEE có nhiều năm kinh nghiệm, trong nhiều dự án nổi bật. Kinh phí đầu tư cho dự án này vào khoảng 5 tỷ đồng.
Nguồn tin: http://usbuildingsgroup.com/


































