Hiện nay mẫu nhà cấp 4 diện tích 7x15 được rất nhiều người ưa chuộng và lựa chọn để tạo nên ngôi nhà mơ ước cho riêng mình, xây nhà cấp 4 diện tích 7x15 không chỉ đẹp phù hợp với những gia đình có diện tích nhỏ mà còn tiết kiệm chi phí. Vì vậy, Xây Dựng Số xin giới thiệu những mẫu nhà cấp 4 diện tích 7x15 đẹp, đáng mơ ước của bất kỳ gia đình nào qua bài viết dưới đây!
Nhà cấp 4 diện tích 7×15 đơn giản, tiện nghi
Mẫu nhà cấp 4 có gác lửng 7×15 được thiết kế từ những khối nhà hiện đại, đơn giản. Nó không chỉ thể hiện sự tươi mới mà còn bền vững hơn đáng kể so với các thiết kế nhà khác. Kiểu mái cho thiết kế nhà được lựa chọn là màu ghi xám. Độ dốc rộng kết hợp với thiết kế cao ráo tạo điểm nhấn ngay từ cái nhìn đầu tiên. Đường chỉ chạy ngang với các chi tiết trang trí hình tròn.

Nó thể hiện những đường nét nghệ thuật cao cũng như thiết kế trang trí của gạch men. Màu sắc thiết kế này rất hài hòa. Tông màu be trắng sáng kết hợp với hệ thống cầu thang và móng cao đã làm cho thiết kế của ngôi nhà trở nên khá cao. Để tăng thêm nét cuốn hút cho mẫu nhà, cửa gỗ màu cà phê với kính dán an toàn nhiều lớp được lắp đặt giúp không gian trở nên sang trọng và hiện đại. Hệ thống sân vườn và tiểu cảnh trước nhà tạo nên sức hút khó cưỡng khi chưa nhìn thấy trước mẫu thiết kế nhà cấp 4 7 × 15 này.
Nhà cấp 4 diện tích 7x15 (có gara)

Tiếp theo là mẫu nhà cấp 4 7 × 15 mái thái rất được các gia đình ưa chuộng. Đó là một không gian hài hòa, cân đối giữa bên ngoài và bên trong. Với những tính toán hợp lý, gara ô tô không những không làm mất đi giá trị thẩm mỹ của ngôi nhà mà còn tăng tính tiện nghi cho gia đình.
Nhà cấp 4 gác lửng 7x15 thông thoáng
Hình khối thiết kế nhà rất đơn giản nhưng mang tính hiện đại và khoa học. Ngôi nhà thể hiện sức hút vô cùng ấn tượng với mẫu ngoại thất đẹp và trang nhã. Không gian sân trước rất thoáng mát. Thiết kế gian chính giữa được ốp đá hiện đại thể hiện tính thẩm mỹ đồng bộ cao cho công trình. Màu sơn trắng nhẹ trung tính tông trầm. Đó là màu nâu đỏ của hệ thống thanh lam trên mái, ví như màu xanh trên mái. Điều này thể hiện nét cuốn hút riêng và không thể rời mắt, nhất là khi đứng trước mẫu thiết kế nhà cấp 4 7x15m có gác lửng.

Không gian thông thoáng, thiết kế tinh tế. Ngôi nhà hứa hẹn một không gian sống mang tính thẩm mỹ cao. Ngoài ra, phong cách kiến trúc đảm bảo công năng khoa học và tiết kiệm vốn đầu tư cho công trình.
Mẫu nhà cấp 4 diện tích 7x15 phong cách Mỹ
Được thiết kế theo kiểu nhà vườn phương tây mẫu thiết kế nhà trệt 7x15m này được các kiến trúc sư mang đến những không gian thoáng mát và gần gũi với thiên nhiên. Chắc chắn người xem sẽ bị thu hút bởi công năng sử dụng hoàn hảo và hợp lý của ngôi nhà.

Những ngôi nhà với gam màu trắng làm chủ đạo bắt mắt và tinh tế kết hợp hài hòa với mảng tường tạo điểm nhấn giúp ngôi nhà trông sang trọng hơn.

Tường của mẫu nhà cấp 4 đẹp 7x15m này sử dụng gạch bông màu xám để bảo vệ ngôi nhà của bạn trong những ngày mưa gió, mang lại vẻ sạch sẽ và hiện đại hơn. Hệ thống cửa sổ, cửa trước sử dụng kính trong suốt giúp ngôi nhà lấy được ánh sáng tự nhiên, gió trời giúp căn phòng trở nên thông thoáng và rộng rãi hơn, mang đến sự thoải mái nhất cho gia chủ.
Mẫu nhà cấp 4 diện tích 7x15 phong cách Tân Cổ Điển
Mẫu nhà cấp 4 diện tích 7x15 đẹp được thiết kế theo phong cách bán cổ điển hình chữ L và mái thái phù hợp với thời tiết và khí hậu nước ta trông ngôi nhà sẽ bắt mắt, phong cách và cuốn hút. Đây sẽ là mẫu thiết kế nhà cấp 4 diện tích 7x15 được nhiều người lựa chọn để xây dựng ngôi nhà mơ ước của mình. Ngôi nhà sử dụng màu trắng làm chủ đạo, khi kết hợp với mái thái màu xanh trông rất tinh tế và trang nhã, bắt mắt và hài hòa, tạo điểm nhấn và thu hút tầm nhìn.

Hệ thống vách kính cường lực cách âm giúp ngôi nhà của bạn tránh được tiếng ồn mà lại mang đến cảm giác sang trọng và tinh tế.

Không gian bên trong được kiến trúc sư bố trí hợp lý, không gian mỗi phòng đều rộng rãi, thoáng mát mang đến sự thoải mái nhất cho gia chủ.
Nhà cấp 4 diện tích 7x15m 3 phòng ngủ.
Mẫu thiết kế nhà 7x15 mái thái này bạn sẽ bị mê hoặc bởi lỗi thiết kế kiến trúc Châu Âu pha trộn với mái thái Á Đông phù hợp với khí hậu mưa nhiều của nước ta. Nếu bạn nhìn thấy nó, bạn sẽ bị mê hoặc bởi kiểu dáng đẹp và trang nhã của ngôi nhà. Ở vị trí tối, ngôi nhà có màu trắng chủ đạo kết hợp với màu nâu trông rất hài hòa, phần mái màu xám giúp không gian trở nên khỏe khoắn hơn.

Cửa chính và cửa sổ được thiết kế từ nhôm kính cường lực để bên trong dễ dàng lấy ánh sáng tự nhiên và đối lưu không khí. Bên cạnh đó, thiết kế hai hậu vuông vắn, cân đối, nhấn mạnh kiến trúc Châu Âu.

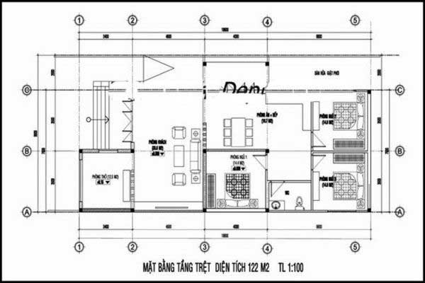
Công năng sử dụng của tầng trệt như sau: phòng khách, phòng thờ, phòng bếp + ăn, 3 phòng ngủ, 1 vệ sinh chung.
Mẫu nhà cấp 4 diện tích 7x15m mái thái
Thiết kế ngôi nhà thể hiện kết cấu kỹ thuật khá vững chắc, thiết kế móng cao hình khối công phu, thiết kế ốp đá tự nhiên hiện đại, sang trọng. Mẫu nhà được thiết kế với hai mặt tiền chính, các cột chịu lực vuông vắn trang trí đẹp mắt với phần hiên chính được ốp đá tự nhiên thể hiện sự sang trọng và lịch lãm của một không gian sống hiện đại và khoa hoc. Kết cấu mái rất nổi bật với hệ mái thả bất đối xứng, thiết kế một chiều với mái phụ nhỏ, ô cửa sổ thể hiện sự vững chãi và quy mô của công trình.

Toàn bộ không gian sân vườn được thiết kế với các tiểu cảnh và hệ thống trồng cây đẹp mắt tạo nên một không gian sống ấn tượng và thơ mộng. Thay vì sử dụng hệ thống hàng rào bê tông sắt thép, hãy thiết kế hệ thống hàng rào bằng các thanh gỗ. Thiết kế đồng đều từ tường rào của mẫu nhà cấp 4 diện tích 7×15 cho đến cửa chính.

Bản vẽ mặt bằng nhà cấp 4 mái thái
Không gian hài hòa và thống nhất với các tông màu hiện đại như xanh lam nhạt kết hợp với màu be, hồng nhạt và xám ở gạch lát sân tạo nên hiệu ứng tổng thể của công trình khá hoàn hảo. Từ gian giữa đi vào khu sinh hoạt hiện đại, mẫu nhà cấp 4 mái thái đẹp có hai lối ra vào, kết hợp với bàn thông gió cạnh phòng thờ tạo sự ấm áp cho không gian linh thiêng. Nó càng tinh tế hơn khi mang dáng dấp của một chiếc sofa truyền thống. Một thiết kế vừa sâu với 3 phòng ngủ có cùng diện tích vừa cung cấp nội thất đơn giản và phong cách để thông gió tốt. Phòng tắm và nhà bếp được thiết kế để tách biệt hoàn toàn không gian bên ngoài và không gian sinh hoạt riêng tư.
Nhà Cấp 4 diện tích 7×15 phong cách Châu Âu
Mẫu nhà này được thiết kế như một kết cấu bê tông cốt thép. Điều này làm tăng giá trị của dự án và thời gian để nó phát huy tác dụng. Mái nhà hoàn toàn bằng bê tông và sau đó được lát gạch. Đó là một ngôi nhà một tầng mang những nét cổ điển của ngôi nhà ngói ba gian truyền thống. Nhưng nó được kết hợp với các tính năng hiện đại. Đặc điểm Cửa mái và ống khói là đặc trưng của các mẫu nhà Châu Âu.

Mẫu nhà cấp 4 có gác lửng tương phản. Phần mái thái màu xanh đậm kết hợp với khung cửa gỗ kính màu nâu tạo cảm giác đối lập với màu sơn trắng trên tường. Từ đó, làm nổi bật tác phẩm của bạn với không gian xung quanh. Ngoài ra, các căn nhà chung cư còn được trang trí bằng những tấm pano lớn giúp công trình trở nên to lớn và vững chãi hơn.
Mẫu nhà cấp 4 diện tích 7×15 ấn tượng
Kiểu mái thái có gác lửng 7×15 bên dưới ấn tượng với phần hiên được ốp đá. Tông màu trắng tinh tế kết hợp với nền đá và khung cửa sắt tạo nên sự vững chãi cho ngôi nhà. Các bức tường của ngôi nhà được thiết kế theo hình tổ ong để tăng độ thoáng khí.

Đây là kiểu nhà được đánh giá cao không chỉ về chất lượng, chi phí xây nhà mà còn về tính thẩm mỹ và công năng sử dụng. Chỉ khoảng 300 triệu người có thể sở hữu một ngôi nhà 4 tầng tiện nghi hoàn chỉnh, bao gồm một phòng khách và hai phòng ngủ, để cả gia đình ba hoặc bốn người có thể sống thoải mái với sự riêng tư tối đa.
Trên đây là một sấu mẫu nhà cấp 4 diện tích 7x15m mà Xây Dựng Số gửi đến bạn. Hy vọng bạn sẽ tìm được ý tưởng cho ngôi nhà sắp tới của mình nhé!































