Thiết kế nhà cấp 4 không chỉ là xu hướng phổ biến ở các vùng nông thôn mà cả các thành phố lớn. Bởi ngoài thiết kế đẹp, đa dạng, đáp ứng được nhu cầu sinh hoạt và thẩm mỹ mà nó còn có giá thành rẻ phù hợp với nhiều chủ đầu tư. Trong bài viết hôm nay, Xây Dựng Số sẽ mang đến cho bạn mẫu nhà cấp 4 rộng 150m2 sang trọng phong cách hiện đại để bạn cùng chiêm ngưỡng và tham khảo.
Có nên xây dựng nhà cấp 4 rộng 150m2?

Dù không được thiết kế kiến trúc cao tầng nhưng mẫu nhà năm 4 vẫn toát lên sức hút khó cưỡng đối với nhiều người. Thật vậy, nó có những ưu điểm đặc biệt sau:
- Mẫu nhà cấp 4 này là mẫu nhà hiện đại được thiết kế tối giản nhưng không hề đơn điệu mà mang một sức hút khó cưỡng.
- Ngoài ra, hệ thống mái thái hình chữ A bảo vệ ngôi nhà khỏi các yếu tố một cách hiệu quả và mang lại sự cân đối về hình thức cho ngôi nhà.
- Mẫu nhà cấp 4 150m2 có gara để xe rộng rãi thoải mái.
- Xung quanh nhà còn là sân vườn xanh mát tạo không gian sống thoáng đãng, mát mẻ, hài hòa và đặc biệt tạo nên không gian thư giãn hoàn hảo.
- Không gian sống được bố trí khoa học không chỉ mang đến sự thoải mái cho gia chủ mà còn phù hợp với yếu tố phong thủy để mang đến một công trình đáp ứng cả yêu cầu về thẩm mỹ, công năng và phong thủy.
Mẫu nhà cấp 4 mái thái rộng 150m2

Mẫu nhà cấp 4 150m2 này được thiết kế trên khu đất rộng. Nhờ đó, mặt tiền được vận dụng một cách thông minh và khoa học để tạo ấn tượng, thu hút bất cứ ai khi nhìn thấy. Các tỷ lệ hình học, hình thức kiến trúc, màu sắc, vật liệu đều được kiến trúc sư tính toán tỉ mỉ để mang đến vẻ đẹp hoàn mỹ cho công trình. Mặt tiền của mẫu nhà cấp 4 150 m2 là sự giao thoa của các khối hình chữ nhật và hình vuông kết hợp với thiết kế bậc tam cấp từ mặt tiền cho đến chân móng được sơn màu tối, cùng hệ thống cột trụ vuông vắn tạo thế vững chãi. cho ngôi nhà.

Ngoài ra, mặt tiền còn gây ấn tượng với số lượng cửa kính lớn giúp lấy sáng tối đa vào nhà, bên trong có dù che nắng khi cần thiết. Việc sử dụng chất liệu kính là điều cần thiết, bởi với diện tích 150m2 cần đảm bảo sự thông thoáng cho không gian. Đồng thời cũng làm tăng tính hiện đại cho ngôi nhà. Vẻ đẹp bóng bẩy, hiện đại của mẫu nhà cấp 4 150 m2 càng được tôn lên khi kết hợp với kiến trúc mái chữ A với khối đua lớn giúp bảo vệ ngôi nhà tốt trước những tác động của thời tiết khắc nghiệt. Mặt khác, nó còn mang đến vẻ thanh cao, trang nhã cho ngôi nhà. Màu trắng quen thuộc tiếp tục được chọn làm tông màu chủ đạo cho ngôi nhà. Cùng với đó là phần mái ngói xanh, các phào chỉ và tạo điểm nhấn bằng màu trang trí xanh xám.

Thêm vào đó, màu xanh của những bụi cây trang trí đan xen khiến cho mẫu nhà cấp 4 150 m2 trở nên sống động, tươi mới và tràn đầy sức sống. Với diện tích tương đối rộng, các kiến trúc sư đã bố trí gara ô tô bên trái ngôi nhà. Gara có lối đi thẳng với cửa chính giúp cho việc ra vào xe của gia chủ được thuận tiện và dễ dàng hơn. Không chỉ vậy, ngôi nhà còn được bao bọc bởi khu sân vườn ngập tràn cây xanh mang đến không khí vô cùng trong lành, mát mẻ.

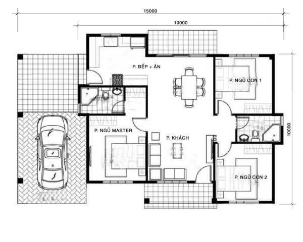
Với kiến trúc nhà 1 trệt 1 lầu, cách bố trí không gian công năng của mẫu nhà cấp 4 150 m2 này được các kiến trúc sư cân nhắc rất kỹ lưỡng. Tùy theo nhu cầu của gia chủ mà các kiến trúc sư đã bố trí công năng đất như sau:
- Bên trái nhà là gara ô tô khá thoáng và rộng tiếp giáp với sân vườn trước nhà. Phòng khách được bố trí ngay cửa chính với không gian rộng rãi, thoáng mát.
- Nhà bếp và phòng ăn được thiết kế liên quan đến phòng khách. Điều này không chỉ tạo nên sự tiện lợi khi sử dụng mà còn có thể giúp gia chủ tối ưu không gian và tiết kiệm diện tích cho ngôi nhà cấp 4 đó.
- Bên trái phòng khách là phòng ngủ chính độc lập tạo điều kiện thiết thực và mang lại sự riêng tư cần thiết cho nơi ngủ nghỉ của gia chủ.
- Bên phải phòng khách là hai phòng ngủ dành cho các con của chủ nhà. Hai phòng ngủ có diện tích nhỏ hơn phòng ngủ chính nhưng vô cùng tiện nghi và thoải mái. Đó là nhờ thiết kế nhà vệ sinh bên ngoài phòng.
- Có vệ sinh chung giữa 2 phòng ngủ, dễ dàng đáp ứng nhu cầu sinh hoạt của cả 2 phòng ngủ.
Mẫu nhà cấp 4 rộng 150m2 chữ L

Mẫu nhà cấp 4 150 m2 này được thiết kế theo kiểu nhà ống. Để đảm bảo được phần lớn ánh sáng cho phần lớn ngôi nhà, các kiến trúc sư đã thiết kế nhà hình chữ L. Với một khoảng lùi nhỏ để làm nơi để xe ô tô, đồng thời tạo sự thông thoáng cho 'không gian. Các ô cửa kính nhỏ được bố trí dọc theo chiều dài của ngôi nhà để đảm bảo ánh sáng ngẫu nhiên có thể xuyên vào tất cả các phòng. Phần mái được thiết kế theo kiểu mái dốc giúp thoát nước mưa nhanh chóng và dễ dàng. Xung quanh mái còn được thiết kế lệch tầng giống như biệt thự tân cổ điển Châu Âu tạo nên sự sang trọng cho ngôi nhà.
Bức tường được làm nổi bật bởi những đường nét nhỏ để tránh sự đơn điệu. Cửa chính và cửa sổ được ốp gỗ hài hòa với kính trong suốt. Chính điểm này vừa giúp không gian thông thoáng vừa tạo nên vẻ đẹp sang trọng, hiện đại. Chân tường được ốp gạch men màu xanh nhạt tạo cảm giác chắc chắn nhưng không quá nặng nề. Chân tảng cao có bậc đã hư hỏng được ốp bằng gạch men sẫm màu. Với diện tích xây dựng 150m2, mẫu nhà cấp 4 3 phòng ngủ đáp ứng được nhu cầu sử dụng của gia đình từ 5 đến 6 thành viên. Truyền thống gia đình Việt Nam thường sống với nhiều thế hệ đa dạng, bao gồm ông bà, cha mẹ và con cái. Vì vậy, tuy thiết kế nhà cấp 4 nhưng vẫn đảm bảo đáp ứng được nhu cầu về công năng. Căn nhà cấp 4 này có chi phí dự kiến khoảng 500 - 600 triệu euro với nội thất cơ bản.

Công năng đất của mẫu nhà cấp 4 gồm sảnh chính. Phòng khách được thiết kế ngay gần sảnh chính. Phòng thờ được ngăn cách sau phòng khách bằng vách trang trí nên không gian thông thoáng. Phòng bếp kết hợp phòng ăn giúp bạn có thể di chuyển, thao tác khi nấu nướng. Phòng ngủ lớn được thiết kế vệ sinh khép kín. 2 phòng ngủ nhỏ có phòng vệ sinh chung và phòng giặt ở phía sau nhà. Vì vậy, thiết thực cho trưng bày cũng như cho cuộc sống.
Mẫu nhà cấp 4 rộng 150m2 có gác lửng rộng rãi

Việc sử dụng gác lửng để tăng thêm công năng sử dụng cũng là một phương án được nhiều gia đình áp dụng. Thiết kế gác lửng mái thái tạo thêm không gian trong nhà nhưng cũng rất công năng.
Mẫu nhà cấp 4 rộng 150m2 có 3 phòng ngủ

Thiết kế nhà 1 tầng 3 phòng ngủ phù hợp với gia đình đông người. Diện tích 150 m2 rất lý tưởng cho những căn phòng rộng rãi và ấn tượng. Bạn có thể tham khảo ý tưởng thiết kế và kiến trúc nội thất này để giúp gia đình có nhiều không gian sử dụng.
Mẫu nhà cấp 4 rộng 150m2 có 4 phòng ngủ

Sử dụng kiểu dáng hiện đại, sự đơn giản xuyên suốt toàn bộ thiết kế. Hiện nay, thiết kế này đang trở thành xu hướng và được rất nhiều người yêu thích. Mẫu nhà mái thái 1 tầng 150m2 4 phòng ngủ này sẽ là sự lựa chọn đúng đắn của nhiều gia đình hiện nay. Ngôi nhà có hình khối vuông vắn chắc chắn với kiến trúc đơn giản, sang trọng. Việc sử dụng gam màu trắng xám kết hợp với chân trụ đá rối màu xám nhã nhặn tạo cảm giác cứng cáp và sức cản cho tổng thể hài hòa nhất.
Mẫu nhà cấp 4 rộng 150m2 sân vườn thoáng mát

Mẫu nhà cấp 4 này không chỉ hiện đại mà còn được bố trí công năng khoa học. Chúng có kết cấu bền vững và được đánh giá cao về yếu tố phong thủy khi có sự kết hợp hoàn hảo giữa cảnh quan sân vườn hiện đại dưới góc nhìn kiến trúc của công trình.
Trên đây là mẫu nhà cấp 4 rộng 150m2 đẹp hiện đại nhất mà Xây Dựng Số gửi đến bạn. Hy vọng bạn sẽ tìm được nhiều ý tưởng mới cho ngôi nhà trong mơ của mình nhé!













