Ngày nay, những mẫu nhà cấp 4 đẹp được thiết kế khá đơn giản không quá rộng nhưng mang lại không gian sinh hoạt hữu ích và quan trọng nhất là tiết kiệm chi phí. Đây là những lý do khiến các gia đình lựa chọn mẫu nhà cấp 4 có gara ô tô nhiều nhất hiện nay. Với những gia đình có diện tích đất không quá rộng thì những mẫu nhà cấp 4 có gara ô tô trở thành sự lựa chọn phù hợp nhất cho không gian sống an toàn và tiện ích nhất. Dưới đây là những mẫu nhà cấp 4 có gara ô tô đẹp nhất hiện nay giúp các gia đình có được những lựa chọn phù hợp nhất cho mình.

Điểm chung của các mẫu nhà cấp 4 có gara là thiết kế gara khá nhỏ nhưng liền kề với ngôi nhà và chủ yếu là tận dụng được địa thế giúp cho không gian bên trong và bên ngoài ngôi nhà được cân đối nhất. Bên cạnh đó, những ngôi nhà cấp 4 thường có diện tích không quá lớn, thường được thiết kế tầng trên theo phong cách hiện đại nhằm mang đến không gian sống tiện lợi nhất cho các hộ gia đình. Và những mẫu nhà cấp 4 có gara cơ bản nhất sau đây sẽ là những ý tưởng tuyệt vời nhất dành cho các gia đình.
Mẫu nhà cấp 4 có gara 3 phòng ngủ đẹp

Đối với những ngôi nhà cấp 4 có gác xép thì kiểu mái thái là đặc trưng nhất. Các mẫu mái thái được thiết kế đẹp mắt, tinh tế và đảm bảo tính hài hòa, phù hợp với thẩm mỹ của người Việt. Mẫu nhà cấp 4 có gara mái thái không quá cao nhưng được tận dụng tối đa kiến trúc ngoại thất kết hợp với nội thất tạo nên điểm nhấn đáng kể cho toàn bộ ngôi nhà. Đây là một ví dụ của một ngôi nhà năm thứ 4 với một nhà để xe 3 phòng ngủ tráng lệ. Mái xếp nhiều lớp tuyệt đẹp, màu sắc bóng bẩy và phong cách thiết kế lý tưởng lấy cảm hứng từ châu Âu này là một trong những lựa chọn yêu thích của nhiều gia đình. Đặc điểm chính của ngôi nhà là mặt tiền lớn được thiết kế hợp lý, cân đối tối ưu cho không gian sử dụng. Nhìn tổng thể có thể thấy mẫu nhà cấp 4 đẹp được thiết kế khá đơn giản, các tầng mái được thiết kế theo từng khối riêng biệt, đảm bảo che chắn tốt nhất và tính thẩm mỹ cao nhất. Ngôi nhà có thiết kế gara vừa phải, đảm bảo diện tích sử dụng và hơn hết là giúp thiết kế ngôi nhà cân đối hơn.

Từ sảnh chính đi vào phòng khách rộng, bên trong là phòng bếp và phòng ăn. 3 phòng ngủ được bố trí khoa học tận dụng diện tích tối ưu. Gara không chiếm quá nhiều diện tích, cân đối với tổng thể ngôi nhà, tạo thành một tổng thể tích hợp hài hòa và cân đối. Mẫu nhà mái thái 4 phòng ngủ có gara 3 phòng ngủ được thiết kế tinh tế, đơn giản với nội thất hiện đại. Từ phòng khách đến phòng bếp, phòng ăn, phòng ngủ đều được bố trí không gian và nội thất hiện đại giúp ngôi nhà có được những khoảng không gian cần thiết nhất.

Từ phòng khách, phòng bếp và phòng ngủ đều được bố trí thông thoáng, thuận tiện khi sử dụng, cân đối giữa việc sử dụng năng lượng tự nhiên với hệ thống điện chiếu sáng của gia chủ để đảm bảo sức khỏe. Dựa trên yêu cầu của gia chủ và diện tích sàn thực tế của công trình, Kiến trúc sư An Nhiên đã đưa ra phương án tối ưu trong việc bố trí mặt bằng công năng, sử dụng nội thất kết hợp với màu sơn, yếu tố thiên nhiên. tạo ra sự hoàn hảo nhất.
Mẫu nhà cấp 4 có gara ô tô hiện đại

Thêm một mẫu mái che khác nhưng thiết kế khá độc đáo và diện tích tương đối lớn. Có diện tích 190 m2, ngôi nhà 4 tầng này được thiết kế tinh tế và khoa học, sử dụng nội ngoại thất hiện đại và cổ điển tạo nên một trong những mẫu thiết kế nhà cấp 4 đẹp có sân vườn được bài trí hợp lý. Các mái nhà được thiết kế không quá cao, kiểu mái thái đặc trưng, hiện đại và đảm bảo tính thẩm mỹ. Màu sắc cân đối, hài hòa, gara không quá lớn nhưng đảm bảo được công năng sử dụng. Ngôi nhà cũng được thiết kế với 3 phòng ngủ với diện tích tương đương 1 phòng khách và phòng bếp và phòng ăn rộng rãi. Thiết kế của ngôi nhà này được đánh giá là hài hòa nhất và đảm bảo được không gian riêng tư cần thiết cho các thành viên trong gia đình cũng như tính thẩm mỹ cao. Nội thất của mẫu nhà cấp 4 có gara 190 m2 này khá độc đáo, sự kết hợp hài hòa giữa hiện đại và cổ điển tạo nên một tổng thể bắt mắt, phù hợp với điều kiện sống của các gia đình. Là mẫu nhà mái thái đẹp đơn giản được thiết kế tinh tế và là một trong những mẫu nhà cấp 4 có gara đơn phù hợp với các gia đình Việt. Không chỉ những mẫu mái thái, những mẫu mái bằng hay mái bằng với sự kết hợp của nhiều kiểu mái cũng là những lựa chọn độc đáo.

Nhà được xây dựng trong thời gian 6 tháng cho phép gia chủ vào ở, hồ sơ kiến trúc gia chủ và đội thi công dễ dàng nắm bắt được khối lượng, tiến độ và thời gian cần thiết để hoàn thành công trình. Sau khi hoàn thành công trình với 95% bản vẽ thiết kế, một số chi tiết đã được thay đổi trong quá trình bởi các yếu tố khách quan để phù hợp với yêu cầu của gia chủ.
Mẫu nhà cấp 4 có gara ô tô đơn giản

Với thiết kế mái thái, ngôi nhà cấp 4 được xây dựng theo phong cách hiện đại tạo thành một khối liền mạch và lý tưởng cho gia đình. Ngôi nhà không quá cầu kỳ trong thiết kế nhưng đảm bảo chất lượng cho không gian sống bên trong. Nhìn vào mẫu nhà này có thể thấy khu đất được tận dụng tối đa, mặt tiền khá rộng, ngôi nhà được chia thành hai mảng sáng. Thiết kế này vừa tận dụng được không gian của khu đất, vừa giúp gia đình có được sự riêng tư cần thiết và hơn hết là đảm bảo sự thuận tiện nhất khi sử dụng, ngoài ra còn tiết kiệm được chi phí. Đây là một trong những mẫu nhà cấp 4 đẹp có gara ô tô được nhiều gia đình yêu thích bởi sự đơn giản và quan trọng nhất là chi phí xây dựng hoàn hảo.
Mẫu nhà cấp 4 nông thôn có gara ô tô

Nhìn tổng thể có thể thấy, phần mái được thiết kế khá đơn giản, tăng thêm không gian cho tầng trên làm gác xép nhỏ. Ngôi nhà hình ống hiện đại được thiết kế để đảm bảo không gian nội thất được cân đối và hài hòa nhất. Diện tích sử dụng đảm bảo phù hợp, các phòng được phân chia vừa đảm bảo sự riêng tư mà vẫn tận dụng được tối đa diện tích của ngôi nhà. Đây là một trong những mẫu nhà cấp 4 đẹp có gara kết hợp ăn ý giữa nhà ống hiện đại với mái thái tinh tế. Mẫu nhà cấp 4 này không quá cầu kỳ nhưng là một trong những lựa chọn lý tưởng cho các gia đình. Khi thiết kế nhà cấp 4 có gara, các gia đình nên tham khảo ý kiến của các chuyên gia, kiến trúc sư. Căn cứ vào từng điều kiện lô đất cũng như nhu cầu sử dụng thực tế của mỗi gia đình mà các kiến trúc sư sẽ có những tư vấn về mẫu nhà phù hợp nhất cho các gia đình. Điều đó sẽ đảm bảo sự phù hợp và cân đối giữa nhu cầu và thực tế, giúp các gia đình có được không gian sống tốt nhất.
Mẫu nhà cấp 4 mái thái có gara ô tô

Công trình đẹp và mạnh mẽ khi sử dụng các hình khối và hình khối vuông tam giác. Hình khối công trình có chỗ thụt vào tạo hiệu ứng thị giác giúp công trình trông không bị nhàm chán. Mẫu nhà cấp 4 có gara với công năng sử dụng đa dạng trên ô đất rộng. Đồng thời đảm bảo đường ô tô và cảnh quan thiên nhiên xung quanh dự án. Mục đích tôn lên vẻ đẹp của công trình mà còn gần hơn với thiên đường. Mẫu thiết kế nhà cấp 4 có gara này sử dụng gam màu xanh và xám làm chủ đạo. Với phần mái sử dụng gam màu xanh lam cùng với hệ thống phào chỉ chạy dài tôn lên vẻ đẹp của mái nhà. Các bức tường của ngôi nhà được sơn một màu xanh lá cây nhạt hơn. Chân tường được sơn màu ghi xám để tạo chân đế vững chãi hơn vì nhà chỉ nâng được móng hai bậc là xong. Mục đích thứ hai là màu xám hài hòa với màu bụi bẩn ở chân tường do xe cộ qua lại…. Khi nhìn tổng thể ngôi nhà khó phát hiện ra các vết bẩn, nhà sạch sẽ hơn.

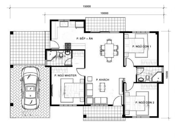
Ngoài ra, trên tường có đường kẻ ngang chạy dọc tòa nhà, chân cột được ốp đá tăng vẻ sang trọng hiện đại khiến tòa nhà có vẻ rộng và bề thế hơn. Mẫu thiết kế nhà cấp 4 có gara lấy sáng rộng (khung nhôm kính), sử dụng rèm bên trong để khi cần sự riêng tư thì kéo rèm. Xung quanh ngôi nhà được thiết kế với cảnh quan thiên nhiên thoáng mát: thảm cỏ rộng, nhiều cây xanh lớn, cây cảnh… Đây là một trong những mẫu thiết kế mẫu nhà cấp 4 ở nông thôn. Nhà cấp 4 có gara ô tô cũng đảm nhận nhiệm vụ thiết yếu của một công trình nhà ở. Công trình gồm các phòng: Phòng ngủ chính, 2 phòng ngủ, phòng khách, phòng bếp + ăn, các phòng WC. Đi và vào nhà đầu tiên là phòng khách gắn liền với phòng ăn tạo cảm giác ấm cúng cho gia đình. Sâu bên trong là gian bếp nhỏ đảm bảo cho việc nấu nướng của chị em phụ nữ. Phía sau nhà là khoảng sân nhỏ làm sân phơi của gia đình. Hai phòng ngủ con được bố trí gần nhau và sử dụng chung khu WC tạo nên sự gắn bó giữa hai anh em gần nhau.
Trên đây là mẫu nhà cấp 4 có gara ô tô mà Xây Dựng Số gửi đến bạn. Hy vọng bạn sẽ tìm được nhiều ý tưởng hay cho ngôi nhà trong mơ của mình nhé!
















