Thiết kế biệt thự hiện đại hướng nam kiến trúc nhà 3 tầng xu hướng mới trong năm nay. Biệt thự này mang được nét đẹp trẻ trung, trang nhã, cách thiết kế kiến trúc bài bản, khoe được hình dáng khỏe khoắn, phá cách không theo rập khuôn với những mẫu biệt thự trước đây.
Đây sẽ là mẫu biệt thự 3 tầng đẹp rất phù hợp với những người hợp với hướng Nam, điểm nhấn của căn biệt thự này là nhờ vào việc thiết kế lạ mắt, có không gian mở với kiến trúc sân vườn đẹp ở trên tầng trệt. Hôm nay chúng tôi muốn gửi tới các bạn mẫu biệt thự mang phong cách hiện đại, kiểu dáng phá cách, cùng tham khảo để có thật nhiều ý tưởng nhé!





Mẫu thiết kế biệt thự đẹp 21x12m kiểu nhà 3 tầng 250m2 được chúng tôi thi công giữa năm 2018, biệt thự này thuộc sở hữu của gia đình Anh Hùng ở Biên Hòa – Đồng Nai.
Biệt thự phù hợp với gia đình đông người, cách bài trí không gian đẹp, thoáng mát, công năng sử dụng thoải mái, ngoài ra trên sân thượng có khoản không gian dành cho gia đình, nơi có khu vườn nhỏ xinh, thông thoáng.
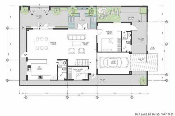
Với yêu cầu thiết kế biệt thự này, về phần gia chủ thì căn nhà có gara để xe, phòng khách được liên thông với nhà bếp + phòng ăn, 4 phòng ngủ chính và 1 phòng ngủ nhỏ cho cháu ở tầng trệt, bên trong mỗi phòng ngủ đều được thiết kế riêng cho phòng tắm – WC – phòng giặt dũ.



Không gian bên trong nhà được phối hợp với nội thất rất ăn ý, nhìn vào thiết kế nội thất nhà đẹp cho phòng khách – nhà bếp + phòng ăn phía trên các bạn sẽ thấy được sự liên kết hoàn hảo nhất, kiến trúc sư đã lựa chọn bàn ăn với 6 ghế nhằm tái tạo không gian phù hợp với gam màu trắng làm cho kiến trúc rộng rãi hơn và việc bố trí nội thất sẽ ăn khớp hơn rất nhiều.
Không chỉ thế trong không gian này chúng tôi còn trang trí thêm những bức ảnh tạo sự phá cách mang được nét đẹp hiện đại, giữa trung tâm phòng khách chiếc cầu thang luôn mang đến điểm trung gian giữa các tầng, nhìn vào đây mọi người sẽ thấy cầu thang được thiết kế cùng với tông màu của nội thất nên việc thiết kế này đều được tính toán kĩ lưỡng trước khi đi vào thi công.




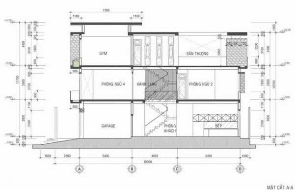
Thiết kế nhà biệt thự đẹp 3 tầng 21×12 với phong cách trẻ trung, hài hòa không gian với hệ lam lấy ánh sáng được kết hợp với những tấm kính cường lực giúp lấy ánh sáng tự nhiên.
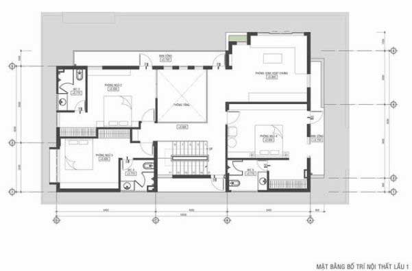
Với biệt thự 3 tầng này bạn có thể hình dung được cách bố trí những phòng chức năng quá bản vẽ chi tiết phía trên, tùy theo sở thích và công năng sử dụng của mỗi người để lựa chọn được bản vẽ phù hợp.
♣ Đánh giá:
Thông qua mẫu thiết kế biệt thự 3 tầng hiện đại hướng nam này, các bạn sẽ tận dụng được mọi không gian theo xu cầu hiện tại của mình. Mẫu nhà biệt thự đẹp này luôn mang tới kiến trúc thoáng mát, phá cách, thêm vào đó là những điểm nhấn tạo nên sự hoàn hảo.




















