Thay vì lựa chọn những ngôi nhà cao tầng hiện đại, ngày nay xu hướng tìm về những giá trị điền viên gắn với nhiên nhiên trong lành đang được quan tâm hơn cả. Đặc biệt, đối với những già đình đang sở hữu mảnh đất có diện tích 9 x18m, thì đây sẽ là một sự lựa chọn hoàn hảo. Bản vẽ mẫu nhà vườn 1 tầng đẹp sẽ mở ra không gian thoáng mát, tiện nghi nhưng vẫn đảm bảo được sự bình yên, trong lành cho ngôi nhà của bạn.
Phối cảnh mẫu thiết kế nhà vườn 1 tầng hiện đại 9x18m
Trước hết, khi nhìn ngắm tổng thể kiến trúc, có thể cảm nhận được sự xinh xắn, cũng như nét mộc mạc, chân quê của ngôi nhà. Nơi đây chắc chắn sẽ mang lại những trải nghiệm mới mẻ, thích hợp với những người yêu thích không gian đơn giản, mong cầu một cuộc sống nhẹ nhàng, khoáng đạt.

Hình ảnh mặt tiền căn nhà vườn 1 tầng đẹp trên diện tích 9x18m2
Đằng sau cánh cổng, khi tiến vào ngôi nhà, mọi người sẽ được thưởng lãm không gian tổng thể của khoảng sân trước mặt. Nơi đây được lát đá với những ô vuông xen kẽ thảm cỏ xanh rờn. Thiết kế này dường như chính là nét đặc trưng của căn nhà vườn 1 tầng. Bên cạnh đó, xung quanh căn nhà sẽ được bố trí các bồn hoa chạy dọc theo vách tường, điều này tạo cảm giác gắn kết, hòa hợp với thiên nhiên. Phần bên trái căn nhà, một không gian nhỏ với những giàn cây leo tạo cảm giác thích thú, điểm tô sắc màu cho bản vẽ. Ngoài những loài cây nhỏ, các cây lớn sẽ được bố trí xen kẽ, hợp lý, tạo điểm nhấn cho căn nhà vườn này.
Dễ thấy, các chất liệu sử dụng rất phong phú và đa dạng. Từ cửa kính, mái ngói, đá ốp tường, tất cả được hình thành một cách khéo léo, tạo cảm giác đan xen kết hợp. Phần mái Thái ở trên cao cũng góp phần tạo sự thoáng mát và sang trọng cho toàn thể ngôi nhà, theo đó, sẽ được thiết kế để đem thêm ánh sáng vào trong.
Bản vẽ mẫu nhà vườn 1 tầng trên diện tích 9x18m
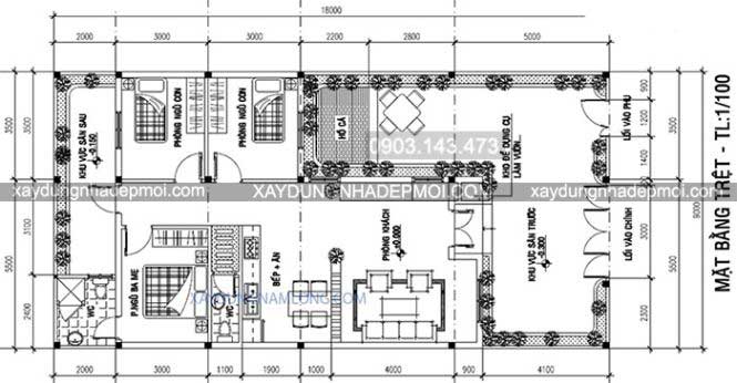
#Mặt bằng tầng trệt:
Mặt bằng tầng trệt của mẫu thiết kế kiến trúc nhà phố hiện đại kiểu nhà vườn bao gồm: sân trước, kho, khu vực vui chơi và hồ cá, phòng khách, phòng bếp, 2 phòng ngủ cho con, phòng ngủ cho bố mẹ, phòng WC, sân sau.

Chi tiết mặt bằng tầng trệt của nhà vườn 1 tầng
- Sân trước: là khoảng không gian rộng lớn trước nhà. Một phần diện tích sẽ đã được sử dụng để góp phần mang lại sự thông thoáng, hòa quyện với thiên nhiên trong lành. Lấy ý tưởng từ những căn nhà vườn xưa, phần sân trước sẽ được gia chủ chăm trồng các bồn và cây xanh, mang đến không gian tràn ngập sắc màu tươi mới.
- Kho: được bố trí nằm ở 1 góc của sân trước, nơi đây được dùng để chứa đựng vật dụng cho gia đình.
- Khu vui chơi và hồ cá: nằm cạnh kho và bên hông nhà sẽ là khu vui chơi dành cho cả nhà. Phần không gian này được thiết kế thông thoáng, kết hợp với những mảng màu xanh của thiên nhiên trong lành, tạo cảm giác thoải mái, thư giãn cho mọi người. Hồ cá được xây dựng, góp phần điểm tô cho kiến trúc của ngôi nhà, tại đây, các thành viên trong gia đình có thể thích thú nhìn ngắm những chú cá nô đùa, ngồi cạnh nhau nói chuyện và chia sẻ buồn vui trong cuộc sống.
- Phòng khách: không gian này thường được đánh giá là “bộ mặt” của toàn gia đình. Do vậy nơi đây có thiết kế hiện đại, rộng rãi nhưng cũng không kém phần thân thiện, chắc chắn sẽ là nơi tiếp đón sang trọng và nổi bật. Tại đây, các chi tiết đều được bố trí và chăm chút tỉ mỉ, nội thất bày biện hợp lý, gam màu được chọn lựa cũng mang sắc thái nhẹ nhàng, gần gũi.
- Phòng bếp: thiết kế liền kề với phòng khách, đây là nơi mang đến những bữa ăn ngon cho toàn bộ các thành viên cho gia đình nên rất được chú trọng. Các vật dụng được chưng bày thông minh, tạo sự thuận tiện tối đa khi sử dụng.
- Phòng ngủ cho bố mẹ: đặc biệt được bố trí sau phòng bếp, đây là không gian riêng tư do vậy sẽ được thiết kế theo đúng sở thích và phong cách của gia chủ. 2 phòng ngủ cho con: được bố trí đối diện với phòng bố mẹ. Đây sẽ là nơi nghỉ ngơi, học tập của con cái, do vậy việc liền kề với bố mẹ sẽ tạo điều kiện thuận lợi để các thành viên quan tâm và chăm sóc cho nhau, tuy vậy vẫn giữ được không gian riêng cho mỗi người.
- Phòng WC: nằm ở vị trí sau lưng phòng bố mẹ, thuận tiện cho việc sử dụng.
- Sân sau: liền kề với phòng WC. Phần diện tích này cũng được xây dựng và thiết kế đan xen kết hợp giữa không gian thông thoáng và cảnh quan xanh mát, trong lành.
#Mặt bằng mái:

Chi tiết mặt bằng mái của nhà vườn 1 tầng
Với mái Thái ấn tượng và bắt mắt, phần mái được thiết kế nổi bật, thu hút ánh nhìn chú ý. Đồng thời góp phần tạo không gian cao, thoáng, tăng thêm sự sang trọng cho toàn ngôi nhà. Cách sử dụng ngói làm vật liệu cũng là 1 giải pháp cách nhiệt và hạn chế tiếng ồn hiệu quả.
Nhìn chung thông qua mẫu thiết kế nhà vườn 1 tầng này khá ấn tượng về kiến trúc lẫn cách bố trí chức năng rất hợp lý. Căn nhà đẹp hiện đại luôn tạo sự thân thiện với thiên nhiên, không gian thoáng mát, hứa hẹn đây sẽ là mẫu thiết kế thịnh hành trong năm nay.
Nguồn tin: xaydungnhadepmoi.com


































