- Bạn là người yêu thích nét đẹp từ phong cách Cổ Điển?
- Các kiến trúc đồ sộ và sang trọng của Phương Tây?
- Muốn sở hữu nhà cổ điển để thể hiện tính cách cũng như giá trị bên ngoài xã hội?
Thì phương án mẫu biệt thự 2 tầng cổ điển sang trọng và bề thế ngay tại đây chắc chắn sẽ làm bạn mãn nguyện. Không giống như phong cách hiện đại, các công trình cổ điển có chi tiết trang trí hơi phức tạp và cầu kỳ, đó cũng chính là điểm nhấn đối với phong cách này. Sự sang trọng, giá trị thật sự và chỗ đứng cũng như thể hiện địa vị trong xã hội là những gì bạn nhận được khi sở hữu căn biệt thự cổ điển đầy ấn tượng tại đây. Đặc biệt nhà 2 tầng cổ điển ngay dưới đây không phải lo lắng về lỗi kiến trúc cũng như lỗi xu hướng theo năm tháng.
Thông tin phương án thiết kế:
- Địa điểm thi công: Hài Phòng.
- Kiến trúc: Biệt thự cổ điển kiểu Pháp.
- Thời gian hoàn thiện: Khoảng 5 tháng.
- Diện tích xây dựng: 120m2 — Kích thước lô đất: 20 x 30 = 600m2.
Phối cảnh mẫu biệt thự 2 tầng cổ điển trên diện tích 120m2

Mặt tiền biệt thự 2 tầng cổ điển sử dụng tone màu trắng sáng phối hợp ăn ý cùng màu xanh từ phần mái, tạo điểm nhấn riêng cho phong cách phương Tây này. Các trụ cột và các chi tiết mặt tiền bên ngoài được trang trí hoa văn phức tạp, mang một màu sắc hoàn toàn riêng biệt. Ngoài vẻ cứng cáp và chắc chắn từ các trụ cột, các kiến trúc sư đã kết hợp các họa tiết nhằm tạo nên nét đẹp tinh tế và mềm mại hơn.
Xung quanh biệt thự kiểu Pháp là khuôn viên cây xanh tiểu cảnh khá sinh động, góp phần tăng nét đẹp sang trọng cho mặt tiền ngôi nhà đẹp. Khuôn viên sân vườn biệt thự cổ điển còn là nơi tuyệt vời dành cho trẻ nhỏ chơi đùa, đây còn là nơi tổ chức tiệc tùng lý tưởng vào những ngày lễ tết cùng các thành viên yêu quý trong gia đình. Ngoài tôn nhan sắc cho mặt tiền biệt thự 2 tầng, cây xanh còn là giải pháp tốt nhất cho việc đưa nguồn gió trong lành và thoáng đãng. Xung quanh biệt thự sang trọng được bao quanh hàng rào cao ráo ốp đá sẫm màu khá tinh tế, đảm bảo an toàn cũng như tính thẩm mỹ. Website tin chắc sẽ gây ấn tượng và sự thu hút cho những vị khách lần đầu đến chơi bởi nét đẹp sang trọng của nó.

Nhà biệt thự đẹp kiểu Pháp này thiết kế 3 ban công riêng rộng rãi, giúp việc đưa nguồn gió thoáng mát vào không gian bên trong. Các trụ tại ban công trang trí các họa tiết cầu kỳ, sử dụng đèn màu nhẹ nhàng khá thu hút khi mặt trời lặn. Sẽ rất tuyệt vời khi ngắm đường phố cùng tách trà nóng ngay chính ban công thoáng mát này đúng không nào?
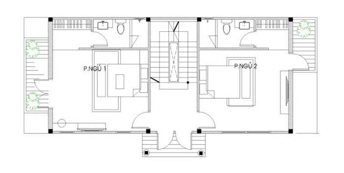
Bản vẽ mặt bằng công năng căn biệt thự 2 tầng kiểu Pháp

Tầng 1 thiết kế: Không gian phòng khách rộng rãi, sử dụng toàn bộ nội thất đắt tiền từ bàn ghế sofa, tấm lót sàn hoa văn, đèn màu cho đến tranh phong thủy phối hợp khá ăn ý. Khu vực chế biến các món ăn ngon nằm liền kề với bàn ăn uống, tạo sự thuận tiện. Phòng vệ sinh sử dụng đèn, trang thiết bị, tường,…có cùng màu vàng khá sang trọng. Bên ngoài phòng vệ sinh là hòn non bộ kết hợp bể cá, đem lại may mắn cho phong thủy của chủ nhà.

Tầng 2 thiết kế: 2 phòng ngủ riêng khá rộng rãi, các đồ dùng nội thất đều lựa chọn kiểu dáng và màu sắc phù hợp với không gian. Khu vực nghỉ ngơi này thiết kế khép kín, nhằm đem lại những giây phút nghỉ ngơi riêng tư được tốt nhất. 2 Phòng vệ sinh riêng nằm bên trong phòng ngủ, đem lại sự thuận tiện cho việc sinh hoạt của chủ nhân.
Nguồn tin: https://wedo.vn/
Xem thêm những kiến trúc biệt thự 2 tầng khác tại => https://xaydungso.vn/mau-nha-dep/biet-thu-2-dep

































