Sự tinh tế và phức tạp trong kiến trúc mái Thái đã tạo dấu ấn riêng biệt, phong cách độc đáo cho mẫu thiết kế này. Dù là biệt thự 2 tầng song công trình hiện lên bắt mắt với những chi tiết thú vị, chắc chắn sẽ là không gian lý tưởng, nhận được sự yêu thích của khách hàng.
Vì là biệt thự sở hữu diện tích rộng nên tại đây sẽ bao gồm 4 phòng ngủ, 1 phòng khách, 1 phòng bếp + ăn và 1 phòng sinh hoạt chung trên tầng 2 cũng là phòng thờ luôn cho gia đình. Biệt thự xây dựng theo lối kiến trúc 2 tầng mái thái diện tích 250m2. Trong đó diện tích sàn 1 là 150m2 và sàn 2 là 105m2.

Phổi cảnh tổng quan mẫu biệt thự 2 tầng
Sắc trắng vẫn là tone nền được nhiều gia chủ chọn lựa sử dụng. Không chỉ bởi đây là màu sắc nhẹ nhàng tinh tế mà nó còn góp phần tạo sự khang trang, sáng sủa cho căn biệt thự. Điểm nhấn của công trình chính là phần chân tường ốp đá và chân trụ cột sơn đen sọc trắng bắt mắt. Một vài không gian được điểm tô bằng màu đà, tạo cảm giác hài hòa, bao quanh các ô cửa đổ.

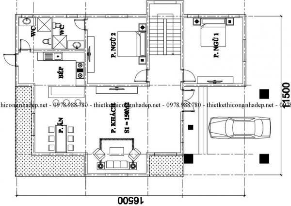
Mặt bằng tầng 1 biệt thự mái thái 250m2
Tọa lạc trên quỹ đất có diện tích rộng rãi nên các không gian đều được xây dựng thoáng mát và tiện lợi. Tầng 1 sẽ bao gồm gara để xe đối diện với phòng khách, phía cuối sẽ phòng ăn + phòng bếp, 2 nhà vệ sinh 1 chung và 1 riêng. Tại đây bố trí 1 chiếc bàn quầy bar ngăn cách giữa không gian ăn uống và khu vực nấu nướng. Mặt bằng tầng 1 sẽ xây dựng 2 phòng ngủ nằm đối diện qua hệ thống cầu thang.

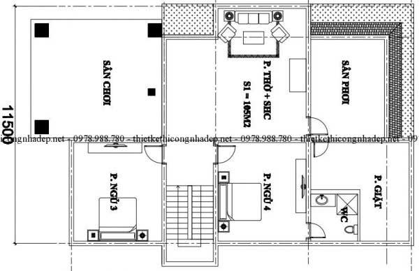
Mặt bằng tầng 2 biệt thự mái thái 250m2
Phòng ngủ 3 và phòng ngủ 3 cũng sẽ được sắp đặt đối diện qua hệ thống cầu thang, 1 phòng ngủ tại đây được trang bị phòng vệ sinh riêng. Cùng nằm một phía với các không gian này là phòng giặt phục vụ cho gia đình. Khu sân phơi được xây dựng phía sau hay bố trí trên mái tùy sở thích của gia chủ. Một phòng thờ và phòng sinh hoạt chung sẽ được xây dựng tại mặt bằng tầng 2, phía trước là khu vực dành làm sân chơi phục vụ các hoạt động ngoài trời của gia đình.
Xét về mặt kiến trúc chuẩn thì mẫu thiết kế biệt thự này được xây dựng theo hình chữ T chứ không phải chữ L. Để tránh các góc khuyết của nhà tụ sát khí nên phần tiền sảnh sẽ được xây dựng 1 chiếc gara để xe, phía trên là khu vực sân chơi. Để đáp ứng nhu cầu của gia chủ, chúng ta có thể bố trí thêm bộ bàn ghế ngồi uống trà tùy vào mục đích sử dụng của gia đình.
Nguồn tin: https://thietkethicongnhadep.net/
Tin liên quan:
- Mẫu nhà 2 tầng lợp ngói đẹp kinh phí đầu tư 800 triệu
- Mẫu nhà 2 tầng 2 mặt tiền đẹp được nhiều người quan tâm
- Mẫu biệt thự 2 tầng 90m2 có 4 phòng ngủ phong cách Châu Âu


































