Ngắm nhìn mẫu biệt thự 2 tầng đẹp diện tích 200m

Không biết có ai giống với chúng tôi không, bởi chúng tôi có một sở thích là ngắm những ngôi đẹp, ngắm nhìn nó như một tình yêu của cuộc đời ngay trước mắt và sẽ còn yêu hơn nếu nhìn một tình yêu mà tự mình tạo nên. Trong bài viết này, chúng tôi xin được giới thiệu đến các bạn một tình yêu như thế, cùng chiêm ngưỡng một sản phẩm của công ty chúng tôi đó là biệt thự 2 tầng diện tích 200mcủa anh Hùng tại Hà Đông.

Được biết, với diện tích rộng 200m2, anh Hùng sau nhiều lần tìm kiếm thông tin của các công ty thiết kế kiến trúc tại Hà Nội, điểm dừng chân cuối cùng trong hành trình tìm kiếm mẫu nhà biệt thự 2 tầng đẹp của anh đã dừng tại công ty xây dựng Wedo. Với tổng chi phí đầu tư khoảng 4 tỷ đồng. Anh cùng gia đình rất mong chờ ngôi nhà hoàn thiện trong thời gian sớm nhất.

*Hồ sơ yêu cầu tư vấn:

Chúng tôi xin được trích nguyên văn nội dung anh Hùng gửi đến quý công ty chúng tôi như sau:

Kính chào quý công ty! Tôi dự định đầu năm 2018 sẽ làm nhà, hiện tôi có lô đất thổ cư có diện tích tổng 200m2, gia đình có 5 người gồm 2 vợ chồng và 3 đứa con. Tôi nguyên là cán bộ Công an nhân dân, năm sau sẽ về hưu. Tôi muốn nhờ kiến trúc sư cửa Wedo tư vấn thiết kế cho tôi một mẫu biệt thự 2 tầng, với 4 phòng ngủ, không gian thờ đặt ở tầng 1. Các không gian chức năng như phòng ăn, bếp nấu và phòng khách tách biệt nhau. Kinh phí đầu tư tối đa từ 4 tỷ quay đầu lại. Phong cách kiến trúc mà tôi yêu thích chính là sự hiện đại và đơn giản. Mong các kiến trúc sư sớm phản hồi, tư vấn chi tiết hơn cho tôi. Cảm ơn quý công ty!

Tham khảo phương án thiết kế mẫu biệt thự 2 tầng đẹp diện tích 200m ở Hà Đông

Ngay sau khi nhận được thư email của anh Hùng, phía chúng tôi đã rất vui mừng vì càng ngày càng có nhiều khách hàng tin tưởng tìm đến chúng tôi và coi là một nơi uy tín để gửi gắm niềm tin. Đáp lại điều này, chúng tôi đã ngày càng chuyên nghiệp hơn trong tác phong cũng như nghiệp vụ nghề nghiệp.

Phối cảnh mặt tiền biệt thụ 2 tầng 200m2

Bộ phận chăm sóc khách hàng của chúng tôi đã liên hệ trực tiếp để trao đổi thêm thông tin với anh Hùng. Do địa chỉ anh Hùng ở ngay Hà Nội nên việc di chuyển tìm hiểu của chúng tôi rất dễ dàng. Ngay ngày hôm sau chúng tôi đã liên lạc để hẹn gặp tìm hiểu lô đất. Một cán bộ thiết kế và 1 cán bộ kỹ thuật đã được cử đi giám sát thực tế, khảo sát và đánh giá tình hình hiện trạng lô đất, hướng, kiến trúc ngoại cảnh xung quanh để lên phương án thiết kế nhà cho phù hợp.

Buổi gặp nhanh chóng diễn ra chỉ trong buổi sáng. Qua khảo sát nền đất thổ cư khá cứng, hướng chính hướng Đông Bắc. Công trình tuy có quỹ đất xây dựng rộng, tuy nhiên lại nằm hơi sâu hơn so với mặt đường quốc lộ, do đó sẽ mất thêm thời gian vận chuyển nguyên vật tư từ ngoài vào tập kết tại công trình. Chúng tôi sẽ tìm cách khắc phục và thiết kế bản vẽ sớm nhất cho gia đình anh.

Với khảo sát ban đầu, chúng tôi đã vạch ra được rất nhiều ưu điểm và hạn chế của địa thế nơi anh Hùng dự định xây nhà. Trước tiên là ưu điểm, quỹ đất xây dựng nhà anh Hùng khá rộng, có nhiều cây xanh đẹp mắt, rất thích hợp để thiết kế biệt thự. Sau khi xem xét chúng tôi đi đến phương án thiết kế mẫu biệt thự 2 tầng đẹp theo phong cách hiện đại với gam màu tươi sáng, thanh lịch. 

Với dự tính ban đầu diện tích sàn của từng tầng sẽ là 120m2. Tầng 1 tập trung chủ yếu cho những không gian chung như phòng ăn, khách, bếp, thờ cúng, thiết kế 1 phòng ngủ người già tại tầng 1 để hạn chế việc di chuyển cầu thang. Tầng 2 thiết kế 3 phòng ngủ với 2 nhà vệ sinh khép kín, 1 phòng ngủ nhỏ sẽ dùng chung nhà vệ sinh chung của tầng với phòng giặt. Tầng 2 sẽ có thiết kế sân phơi kết hợp sân chơi.

Ngay sau khi nhận được phương án thiết kế này, anh Hùng đã hoàn toàn đồng ý. Anh yêu cầu chúng tôi nhanh chóng hoàn thiện phương án thiết kế 3D, chuẩn bị chuyển sang giai đoạn thi công xây dựng cho kịp đầu năm sau.

Mẫu biệt thụ 2 tầng đẹp xây dựng ở Hà Đông

Cùng thống nhất quan điểm về một mẫu nhà 2 tầng hiện đại nhưng không quá cầu kỳ. Toàn ngôi nhà sẽ thiết kế tối giản, đề cao không gian thoáng đãng và sự tiện nghi, nhưng vẫn toát lên sự sang trọng, bề thế của ngôi nhà.Và nổi bật hẳn lên giữa muôn vàn ngôi nhà 2 tầng khang trang khác xung quanh khu đất này. Hình khối của mẫu biệt thự tuy đơn giản nhưng chắc khỏe, kiến cố, thể hiện sự vững chãi và kiên cố. Khác  xa với những đường cong uốn lượn hay những hoa văn họa tiết rườm rà của những mẫu nhà biệt thự cổ điển. Hệ thống trụ cột vuông to kết hợp với những khối bê tông cột nhỏ và lam chắn nắng giúp cho mẫu nhà cân đối về hình khối, kết cấu.

Điểm đặc biệt hơn so với các mẫu nhà khác đó là kết cấu mái khá hiện đại với những khối bê tông được đổ rộng, vuông vức với độ dốc hợp lý, giúp cho hình khối chung của mẫu nhà thêm thanh thoát và bề thế. Kiểu mái ngói màu ghi xám rất được ưa chuộng trong những mẫu thiết kế biệt thự 2 tầng đẹp, bởi nó phù hợp với điều kiện khí hậu cũng như thị hiếu thẩm mỹ của người Việt.

Tất cả những gì hiện đại và sang trọng nhất đã được chúng tôi khéo léo lồng ghép trong ngôi nhà này. Những vật liệu hiện đại, thân thiện với môi trường như kính cường lực, kính dán an toàn, cửa nhôm xingfa màu vân gỗ đã được thiết kế, giúp mẫu nhà trở nên lung linh và hoàn hảo hơn. Tất cả tạo nên một tổng thể không thể chối từ.

Làm Chủ BIM: Bí Quyết Chiến Thắng Mọi Gói Thầu Xây Dựng
Làm Chủ BIM: Bí Quyết Chiến Thắng Mọi Gói Thầu Xây Dựng

Bản vẽ mặt bằng công năng của mẫu biệt thự 2 tầng của gia đình anh Hùng

Theo kiến trúc hiện đại và sang trọng, toàn bộ ngôi nhà được thiết kế với những gì sang nhất. Từ sảnh chính hiện đại và rộng lớn bước vào trong nhà, không gian đầu tiên chúng ta bắt gặp chính là phòng khách rộng 25m2. Gia chủ đã đầu tư một bộ bàn ghế sofa da thật khá lớn với 2 ghế dài và 2 đôn cùng chiếc bàn trà vuông to, với những nét chạm khắc tinh tế, một chiếc tivi màn hình 120 inch được đầu tư đặt trên chiếc kệ màu sáng. 

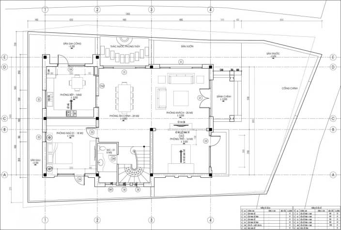
Bản vẽ mặt bằng tầng 1

Do diện tích khá lớn, nên để tăng thêm độ trang nghiêm cho ngôi nhà chúng tôi thiết kế phòng thờ ngay tại tầng 1. Với không gian thông thoáng và trang nghiêm, là nơi gia chủ thể hiện lòng thành kính với ông bà tổ tiên của gia đình.

Thiết kế liền kề là phòng ăn rộng 25m2, đây là nơi sinh hoạt những bữa cơm ngon cùng những câu chuyện vui của các thành viên trong gia đình. Bộ bàn ăn mang đậm phong cách châu Âu với gam màu trắng sáng được anh Hùng trực tiếp lựa chọn cho ngôi nhà của mình. Đây là nơi quây quần sau một ngày làm việc mệt nhọc cùng nhau chia sẻ những câu chuyện buồn vui.

Chúng tôi đã khéo léo thiết kế những gì đẹp nhất. Cầu thang được ốp đá granite màu vàng, giúp ngôi nhà sáng và hút mắt hơn. Ngay cạnh cầu thang là một nhà vệ sinh chúng 5m, được thiết kế làm không gian sinh hoạt riêng cho vợ chồng anh Hùng.

Phòng ngủ của vợ chồng anh Hùng được thiết kế ngay cạnh phòng ăn, nội thất phòng ngủ chính hiện đại, đầy đủ nội thất như tủ quần áo, bàn làm việc, tab đầu giường, tivi…với diện tích khá rộng. Vợ chồng anh hoàn toàn có thể để thêm 1 chiếc bàn nhỏ xinh để nhâm nhi tách trà nhìn ra cửa sổ.

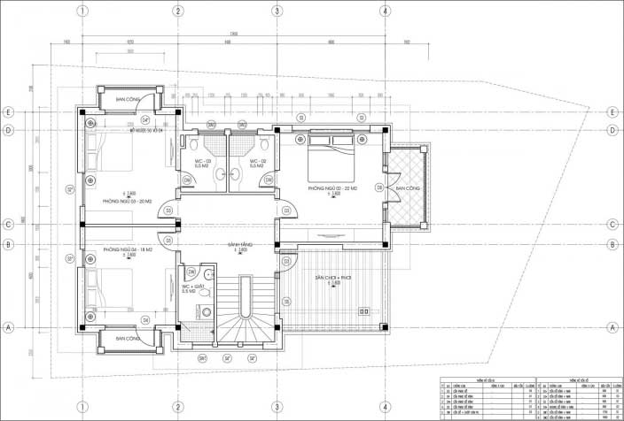
Bản vẽ mặt bằng tầng 2

Tầng 3 chúng tôi thiết kế 3 phòng ngủ được xây dựng liền kề nhau. Phía tay trái là phòng ngủ 2, có cửa ra ban công thoáng mát, phòng này dành cho cô chị cả mộng mơ, hiện đang là sinh viên Văn học, phòng ngủ được thiết kế nhà vệ sinh khép kín, đầy đủ vòi hoa sen, vách kính, cũng như bồn tắm nằm. Tất cả tạo nên sự sang trọng và đẳng cấp nhất cho ngôi nhà.

Đối diện là phòng ngủ rộng 20m2 và phòng ngủ 18m2. Phòng ngủ rộng 20m2 có nhà vệ sinh khép kín dành cho cậu con trai thứ, hiện đang học lớp 12, đồ nội thất được lựa chọn và trang trí theo sở thích của cậu bé. Phòng ngủ 18m không có nhà vệ sinh khép kín dành cho cậu út hiện đang học lớp 6. 2 phòng ngủ này cũng đều có cửa ra ban công, để hóng mát cũng như là đón sáng và đón gió cho căn phòng.

Các bạn thấy sao về mẫu biệt thự 2 tầng này? Đúng là một kiệt tác cho sự sang trọng phải không nào? Chúng tôi rất bất ngờ khi mà đã bố trí trang thiết bị hiện đại như vậy mà tổng chi phí cho ngôi nhà chưa đến 3 tỷ rưỡi, một con số vượt quá sức tưởng tượng. Anh Hùng còn thừa ra đến 500 triệu để trang hoàng thêm nội thất cho ngôi nhà.

Từ khi hoàn thiện, mẫu biệt thự 2 tầng đẹp của anh Hùng nhận được nhiều lời khen ngợi, công trình là sự kết hợp hài hào giữa thiết kế hiện đại và những cách tân tinh tế so với thiết kế kiến trúc cổ điển. Đó là niềm vui và hạnh phúc của gia đình anh và cả phía công ty chúng tôi khi nhận được sự hài lòng của khách hàng. 

Nếu bạn cũng muốn sở hữu một mẫu biệt thự 2 tầng như vậy hãy nhanh chóng liên lạc với chúng tôi để được tư vấn về những mẫu nhà 2 tầng hiện đại cũng như tinh tế, quý khách hàng vui lòng liên hệ trực tiếp với chúng tôi, WEDO luôn sẵn lòng làm hài lòng mọi yêu cầu cũng như mong muốn của quý khách hàng. Rất hân hạnh được đồng hành cùng gia đình bạn trên con đường xây dựng mái ấm cho gia đình.

Nguồn tin: https://wedo.vn/

Có thể bạn muốn xem thêm:

  1. Mẫu biệt thự 2 tầng mái thái diện tích 250m2
  2. Mẫu biệt thự 2 tầng cổ điển mang kiến trúc Pháp
  3. Mẫu biệt thự 2 tầng 4 phòng ngủ kết hợp sân vườn
Khóa học nổi bật