Ngày nay, nếu có trong tay 600 triệu thì bạn sẽ chọn cho mình mẫu nhà đẹp nào? Và bạn đắn đo liệu 600 triệu có đủ để xây một ngôi nhà 2 tầng hay không? Chúng tôi xin được trả lời rằng bạn hoàn toàn có thể làm được điều đó. Trong bài viết này, chúng tôi sẽ giới thiệu đến quý bạn đọc một mẫu nhà chữ l 2 tầng 600 triệu vô cùng đẹp mắt và sang trọng thi công trọn gói cho chủ đầu tư tại Thanh Hóa.
Chúng tôi xin được giải thích một chút tại sao lại chọn mẫu nhà 2 tầng chữ l để xây dựng. Đó là do diện tích đất nhà anh và sự phù hợp về mặt phong thủy. Chỉ có mẫu nhà này có thể giúp chủ đầu tư sở hữu một mẫu nhà hiện đại và khang trang hơn.
Thiết kế hình khối ngôi nhà khá đơn giản, hạn chế tối đa những chi tiết đường phào cầu kỳ, mỗi chi tiết gờ ở mặt sàn tầng hay ở trụ cột đều được thiết kế với chất liệu xi măng, đường phào thắng nhẹ nhàng. Chúng tôi thiết kế ban công ,tay cầu thang toàn bộ bằng xi măng bê tông. Để cho mẫu nhà đẹp và tinh tế hơn, mỗi bậu cửa sổ phía trên đều được chúng tôi thiết kế mái che giúp bảo vệ cửa sổ đồng thời giúp cho vẻ đẹp thẩm mĩ của ngôi nhà hài hòa hơn.
Phối cảnh mẫu nhà chữ L 2 tầng 600 triệu
Anh Trung viết mail chia sẻ với chúng tôi về dự tính ngôi nhà trong tương lai của mình. Hiện gia đình anh có 4 thành viên đang sinh sống trong một mái nhà cấp 4 tại Đông Sơn – Thanh Hóa và đó cũng là lô đất sẽ xây nhà trong tương lai.
Sau 5 ngày làm việc tại Thanh Hóa chúng tôi đã có trong tay bản thiết kế sơ bộ 2D qua email trước, sau khi nhìn thấy bản thiết kế sơ bộ cùng với bảng dự toán kinh phí đầu tư và mặt bằng công năng sử dụng. Anh đã nhanh chóng phản hồi lại chúng tôi với thái độ rất vui mừng đồng ý phương án thiết kế nhà mà chúng tôi đưa ra và bày tỏ mong muốn chúng tôi thầu trọn gói công trình giúp anh.

Diện tích lô đất có chiều rộng 8m, chiều sâu 12m cho thấy diện tích ngôi nhà không quá rộng nên thiết kế sao cho phù hợp. Cả 2 vợ chồng đều là công chức, nên thu nhập không dư giả là bao. Mà lại đến tuổi làm nhà trong khi số tiền tiết kiệm không quá nhiều, gia đang có kế hoạch tìm một mẫu thiết kế nhà 2 tầng nhỏ, với 3 phòng ngủ, 1 phòng thờ làm nơi che mưa, che nắng. Không cần phải quá cầu kỳ và to đẹp cũng một phần kinh tế hạn hẹp.
Mẫu thiết kế nhà của gia đình không có yêu cầu quá cao về hình khối, chỉ cần đơn giản và đáp ứng công năng sinh hoạt mong muốn gồm: tầng 1 có phòng khách, bếp, 1 phòng ngủ và 1 nhà vệ sinh chung cho cả tầng. Tầng 2 thiết kế 2 phòng ngủ, 1 phòng thờ, 1 nhà vệ sinh chung.
Phương án thiết kế nhà hình chữ L 2 tầng 600 triệu
Ngay từ ban đầu, nhận định 600 triệu khá khó để xây dựng một ngôi nhà 2 tầng khang trang. Chúng tôi đã quyết định về Thanh Hóa vài hôm để tiến hành khảo sát thị trường và trực tiếp làm việc với vợ chồng anh để tính toán chi phí sao cho phù hợp.

Chúng tôi đến thăm nhà anh vào một buổi sáng sớm. Ngôi nhà cũ của anh Trung tọa lạc tại một con ngõ không quá rộng nhưng cũng khá thuận tiện cho ô tô đi vào, hướng chính ngôi nhà hiện đang là hướng Đông Nam, nền đất khá cứng, chắc chắn và dễ thi công nên không cần phải làm móng quá cầu kỳ tiết kiệm chi phí.
Sau khi phân tích thị trường, cân nhắc từng viên gạch, từng thanh sắt, chúng tôi đi đến quyết định sẽ thiết kế cho anh Trung mẫu nhà chữ l 2 tầng 600 triệu mái tôn giả ngói. Đây sẽ là phương án phù hợp nhất cho ngôi nhà của anh lúc này.
Làm thế nào để tiết kiệm kinh phí cho chủ nhà. Chúng tôi đã cân nhắc khá nhiều trong tất cả các mặt dù là nhỏ nhất của ngôi nhà. Tuy ngôi nhà sử dụng mái tôn lợp giả ngói nhưng không vì thế mà thiết kế bừa, vừa xấu về kiến trúc lại phá hỏng kết cấu chung. Quyết định cuối cùng chúng tôi lựa chọn đó là thiết kế khối mái vì kèo giật cấp, kiểu vì kèo này sẽ tiết kiệm hơn so với việc đổ bê tông sau đó mới lợp tôn.
Tiếp theo đó là về hệ thống các cửa của gia đình bao gồm cửa phòng khách và các phòng ngủ. Thay vì sử dụng hệ thống cửa gỗ tự nhiên, cửa nhôm, chúng tôi lựa chọn cửa kính khung gỗ xoan để tiết kiệm chi phí cho chủ đầu tư.
Chọn màu sắc cho ngôi nhà cũng vô cùng quan trọng. Làm sao để nó phù hợp với thiết kế chung của ngôi nhà, vừa tạo điểm nhấn không bị lu mờ. Chúng tôi đã chọn gam màu ghi xám kết hợp với màu be và trắng, cân đối và bổ trợ cùng màu mái tôn đỏ, giúp cho mẫu nhà 2 tầng giá rẻ này không hề kém bắt mắt so với những mẫu nhà bên cạnh có chi phí đầu tư cao hơn.

Đúng như mong muốn của gia đình, tầng 1 được thiết kế rất đơn giản với những không gian như: phòng khách, phòng bếp, wc chung, phòng ngủ bố mẹ. Đi từ sảnh chính vào là không gian phòng khách, với thiết kế bộ bàn ghế nhỏ và kệ để tivi sát tường đơn giản. Cầu thang được đặt ở giữa nhà, không gian bên trong là phòng ăn và bếp nấu. Tất cả các phòng đều không quá rộng nhưng đủ để cả nhà sinh hoạt chung. Theo đó là hệ thống cửa để đón gió tự nhiên vào ngôi nhà.
Phòng ngủ của vợ chồng anh ở tầng 1 được thiết kế đối diện phòng ăn với nội thất đơn giản chỉ gồm giường và tủ quần áo. Ngay bên cạnh là nhà vệ sinh chung có thiết kế rộng và chỗ giặt quần áo. Nhà vệ sinh chỉ lắp đặt bồn cầu, vòi hoa sen và ốp gạch đơn giản. Tất cả nội thất trong gia đình đều khá đơn giản vì sau này khi có điều kiện tất cả nội thất sẽ được sang sửa hiện đại hơn, nên cái này chỉ làm tạm thời.

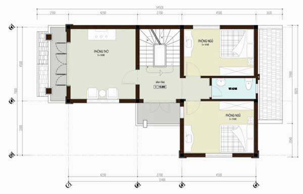
Phòng ngủ của 2 con cũng được thiết kế rất đơn giản, chung nhà vệ sinh ở giữa. Phòng của các con không có quá nhiều nội thất, chỉ đơn giản là một chiếc giường cũng như bàn học và giá sách. Không gian khá đơn giản nhưng đáp ứng đầy đủ nhu cầu sử dụng của các thành viên trong gia đình.
Tầng thờ cũng được thiết kế tại tầng 2 với không gian không quá rộng, vừa đủ để tạo nên một căn phòng nhỏ làm nơi thờ cúng cho gia đình, hướng ra ban công có thiết kế thoáng đãng, thông thoáng và nhiều ánh sáng, giúp không gian căn phòng luôn thoáng mát, ngay cả khi gia chủ hương khói thì không gian cũng không bị bí bách quá nhiều.
Ngôi nhà hoàn thiện đúng trong dự tính ban đầu của chúng tôi. Chỉ với 600 triệu trong tay bạn hoàn toàn có thể xây cho mình một ngôi nhà 2 tầng chữ l nếu biết cách tiết kiệm chi phí. Với phương châm làm việc “khách hàng là ông chủ duy nhất”, chắc chắn sẽ có những bản thiết kế đẹp khiến các bạn hài lòng, hãy liên hệ trực tiếp với chúng tôi qua hotline: 024 38 16 8888. Rất vui được phục vụ quý khách!!
Nguồn tin: https://wedo.vn/
Có thể bạn muốn xem thêm:


































