Mẫu biệt thự 4 tầng đẹp luôn là chủ đề được quan tâm nhiều nhất trong thời gian gần đây, thu hút được rất nhiều sự quan tâm của gia chủ. Kiến trúc sư đã cho ra đời mẫu biệt thự 4 tầng 8x14m ấy như thế nào thì theo dõi đến cuối bài viết để lựa chọn được phương án thiết kế phù hợp yêu cầu, mục đích của gia chủ.
Mặt bằng các tầng được bố trí như thế nào trong mẫu biệt thự 4 tầng 8x14m
Một công trình nhà ở không chỉ có mặt tiền bắt mắt mà còn phải có mặt bằng bố trí công năng khoa học, thuận tiện nhất. Cùng xem gợi ý tham khảo cho mặt bằng các tầng trong mẫu biệt thự 4 tầng 8x14m dưới đây:

Mặt bằng tầng 1 bao gồm: Phòng khách, phòng bếp + ăn, phòng làm việc, nhà vệ sinh.
Từ cổng nhà tiến vào mặt bằng tầng 1, gia chủ bắt gặp khoảng sân nhỏ. Khoảng sân nhỏ này có lối ra dẫn ra lối đi sau nhà. Tại lối đi này hồ nước – tiểu cảnh để làm tổng thể công trình được hài hòa, phù hợp phong thủy. Quay lại với mặt sân trước, gia chủ sẽ bắt gặp hệ thống bậc tam cấp, nơi có cánh cửa hai cánh lớn và bên trong là không gian phòng khách. Đối diện phòng khách là phòng làm việc của gia chủ. Từ vị trí phòng khách đi sâu vào bên trong mẫu biệt thự 4 tầng 8x14m bắt gặp hai bên: 1 bên là cầu thang: cầu thang bộ và cầu thang máy của gia chủ, 1 bên là giếng trời với tiểu cảnh cây xanh bên dưới cùng với nhà vệ sinh. Đi tiếp tục vào bên trong là không gian bếp + phòng ăn được bố trí trên diện tích rộng rãi trải dài 8m mặt tiền.
Điểm được đánh giá của cao, nhận được sự đồng tình của gia chủ cho mẫu biệt thự 4 tầng 8x14m này chính là việc bố trí giếng trời tại vị trí chính không gian. Cách bố trí như thế này giúp không gian tầng 1 luôn có được ánh sáng, thông thoáng khí, không gây ám mùi nhà vệ sinh cũng như mùi bếp lên không gian sinh hoạt khác của gia đình, về mặt phong thủy mang đến vượng khí cho gia chủ.

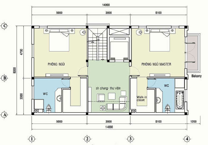
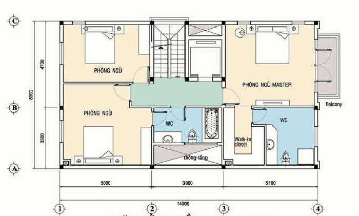
Tầng 2 của mẫu biệt thự 8x14m bao gồm không gian: 2 phòng ngủ, sảnh chung – thư viện. Đặc biệt cả 2 không gian ngủ đểu được bố trí nhà vệ sinh bên trong để mang đến sự riêng tư cho gia chủ sở hữu. Trong 2 phòng ngủ có 1 phòng ngủ master có nghĩa là: nhà vệ sinh được bố trí nhiều thiết bị hiện đại, có khu vực thay đồ rộng rãi, có ban công rộng để gia chủ có khoảng không gian khá đặc biệt dành riêng cho bản thân mình.

Tiếp tục theo dõi mặt bằng tầng 3 của mẫu biệt thự 4 tầng 8x14m được bố trí 3 phòng ngủ, 1 nhà vệ sinh. Trong 3 phòng ngủ này sẽ có 1 phòng ngủ master tương tự với phòng ngủ master dưới khu vực tầng 2. 2 phòng ngủ còn lại dùng chung nhà vệ sinh bên ngoài khu vực tầng 3.

Mặt bằng tầng 4 của mẫu biệt thự tầng 4 8x14m bao gồm: phòng thờ, phòng gym, sân thượng, nhà vệ sinh.
Trong mặt bằng này phần diện tích sân thượng là điểm đáng chú ý bởi tại không gian này kiến trúc sư thiết kế một mặt bằng với tiểu cảnh cây xanh bao xung quanh tạo nên khung cảnh sân vườn mini xanh mát. Bên dưới không gian ấy được bố trí bộ bàn ghế nhỏ đủ để gia chủ có được không gian nhâm nhi ly trà thoải mái hay một không gian ăn uống với thành viên trong gia đình.
Một vài gợi ý về nội thất trong không gian mẫu biệt thự 4 tầng 8x14m

Không gian phòng khách trong mẫu biệt thự 4 tầng 8x14m gợi ý lựa chọn phong cách kiến trúc hiện đại. Sử dụng tone màu trầm với: khoảng tường được ốp đá đen trắng, nội thất sử dụng gỗ công nghiệp cao cấp vừa hiện đại lại vừa sang trọng. Bộ bàn ghế sofa nhỏ nhưng đáp ứng đầy đủ công năng để gia chủ tiếp đón những vị khách đến chơi nhà. Không gian này trở nên thông thoáng hơn, tràn ngập ánh sáng hơn khi sử dụng hệ cửa khung kính vững chắc hai cánh. Để hạn chế ánh sáng quá ngắt khi trời nắng thì hệ màn khung trắng giúp gia chủ hạn chế được nắng nóng cho không gian.

Một gợi ý nữa cho lựa chọn nội thất của mẫu biệt thự 4 tầng 8x14m sử dụng phong cách kiến trúc hiện đại nhưng trong không gian này mang đến cho gia chủ sở hữu sự sang trọng, không khí ấm áp.
Để có được cảm nhận như thế, nội thất lựa chọn sử dụng tone màu ấm như nâu, mà nâu gần với gỗ tự nhiên nhất. Điều này thể hiện rõ trong bộ bàn ghế sofa mà gia chủ đang sử dụng. Bộ ghế này được bọc da càng thể hiện rõ độ sang trong tổng thể không gian phòng khách. Ánh sáng màu vàng chính là điểm cuối cùng để không gian này đạt được độ chuẩn xác về độ ấm.
Xem thêm nhiều gợi ý bố trí nội thất ở phần dưới bài viết dành cho mẫu biệt thự 4 tầng 8x14m.
Đừng bỏ lỡ phối cảnh mặt tiền có 1 – 0 – 2 của mẫu biệt thự 8x14m

Phối cảnh mặt tiền cho mẫu biệt thự 4 tầng 8x14m sử dụng phong cách kiến trúc tân cổ điển đã giành được rất nhiều sự yêu thích của gia chủ hiện nay. Mẫu biệt thự 4 tầng 8x14m hiện lên với mặt bằng tầng 1 có hệ thống cổng rào vô cùng chắc chắn với đường cong mềm mại, với những họa tiết mang đậm nét cổ điển mang đến vẻ đẹp sang trọng, phù hợp với tổng thể công trình.

Mặt bằng các tầng trên của mẫu biệt thự 4 tầng 8x14m có cùng cách thiết kế với 1 bên là cửa chính dẫn ra ban công của các tầng và 1 bên là hệ thống cửa sổ. Ở mặt tiền tầng 4 sử dụng hệ lan can tràn ra cả mặt tiền 8m để gia chủ có được không gian rộng thoáng hơn, phù hợp để thiết kế một dạng sân vườn mini. Hệ thống cột trụ với họa tiết hoa văn được đặt ẩn vào bên trong diện tích của gia chủ giúp cho không gian này giữ được nét cổ điển cần có nhưng mang trong mình nét hiện đại với sự tối giản, phù hợp với nhịp sống hiện đại ngày nay.

Biệt thự 4 tầng 8x16m ngày này không thể không nhắc đến phong cách kiến trúc hiện đại dành cho gia chủ mong muốn công trình của mình mang đậm nét cá tính của riêng mình. Khối hình là nét kiến trúc nổi bật mà mẫu biệt thự 4 tầng 8x14m này đang áp dụng, vừa giúp tối đa được diện tích sử dụng lại vừa giúp cho gia chủ sở hữu công trình đồ sộ, mang đến ấn tượng mạnh cho bất cứ ai đi ngang qua.

Công trình có phần diện tích sân tuy không quá lớn nhưng đủ để các thành viên trong gia đình có thể phục vụ mục đích cá nhân của mình như: thể dục thể thao, đỗ xe ô tô ngay trong chính ngôi nhà. Hệ cổng rào bằng tường trắng kết hợp với cổng có phần cửa 4 cánh được làm nên bằng chất liệu gỗ với hệ mái ngói bên trên mang độ sang cho công trình. Không gian mặt tiền phía trên là sự kết hợp tường gạch và hệ thống cửa khung nhôm kính hiện đại, cùng với phối màu sắc tạo ra chiều sâu cho không gian.

Một gợi ý dành cho mẫu biệt thự 4 tầng 8x14m được xây dựng trong một không gian phố hạn chế diện tích như hiện nay. Lựa chọn phong cách kiến trúc hiện đại để gia chủ có thể sở hữu tối đa diện tích sử dụng và có thể nhìn thấy không gian này nổi bần bật so với phối cảnh xung quanh.
Mặt tiền tầng 1 được ốp đa hoa cương đen cùng với hệ cửa cuốn hiện đại giúp gia chủ có thể dễ dàng tiến lùi phương tiện cá nhân của mình vào không gian bên trong nhà. Mặt tiền các tầng 2, 3, và 4 của công trình hiện lên với vẻ đẹp hiện là mẫu cửa chính với khung nhôm kính, là lan can ban công bằng kính cường lực chắc chắn. Mặt tiền ấy trở nên hoàn hảo hơn khi phối hợp với tiểu cảnh cây xanh mang đến không gian hài hòa, dịu mát, tránh được khối bê tông thô cứng. Một điểm đáng chú ý thay vì sử dụng mái bằng thì kiến trúc sư sử dụng hệ mái chéo. Mái chéo vừa tạo được mặt tiền to lớn, đáng chú ý hơn mà còn giúp chống nặng hiệu quả.
Để có thêm nhiều lựa chọn co mẫu biệt thự 4 tầng 8x14m, gia chủ truy cập vào website: Xây dựng số.

Xây dựng số là nơi đăng tìm đơn vị thiết kế, nhà thầu uy tín số 1 Việt Nam hiện nay. Chọn lọc kỹ càng, đánh giá liên tục thông qua dự án vừa hoàn thiện đã khẳng định chất lượng mà những người đứng đầu Xây dựng số mang đến cho quý gia chủ và mong muốn công trình trong tương lai của gia chủ chất lượng từ trong nhà ra ngoài.
SÀN GIAO DỊCH THƯƠNG MẠI ĐIỆN TỬ - XÂY DỰNG SỐ
Tìm nhà thầu - Tìm thiết kế theo cách mạng công nghiệp 4.0
Sứ mệnh: Mang đến cho người dân dịch vụ xây dựng uy tín, chất lượng với chi phí thấp nhất
HOTLINE: 03 94 95 68 78
Xem thêm


































