Những mẫu biệt thự phong cách cổ điển thường có thiết kế đẹp, kiến trúc độc đáo và tinh tế, mang đến sự sang trọng. Mẫu thiết kế biệt thự cổ điển kiểu Pháp không chỉ mang đến tính thẩm mĩ cao mà còn đáp ứng công năng sử dụng của các thành viên trong gia đình hiện đại. Những mẫu biệt thự được xây dựng theo phong cách cổ điển kiểu Pháp với những thiết kế làm say đắm lòng người là một trong những cách để khẳng định lối sống thượng lưu của gia chủ. Dưới đây là một mẫu thiết kế biệt thự cổ điển kiểu Pháp chúng ta có thể dễ bắt gặp ở nhiều nơi.

1. Phối cảnh 3D biệt thự 3 tầng cổ điển kiểu Pháp
Kiểu biệt thự cổ điển kiểu Pháp mà một trong những kiểu kiên trúc xây dựng du nhập từ phương Tây vào Việt Nam từ những năm Pháp thuộc. Kiểu kiến trúc này mang những đặc trưng riêng biệt, thu hút người ta bởi những đường cong mềm mại hoặc những chi tiết phào chỉ trang trí với những đường nét hoa văn được trạm khắc cầu kì, tỉ mỉ.
Nhìn tổng thể cả căn biệt thự là sự kết hợp hài hòa giữa cảnh quan với kiến trúc làm cho con người ta như hòa mình vào thiên nhiên, bỏ quên cái chật chội ồn ào của thành phố. Những người thợ thiết kế sẽ nghiên cứu và thiết kế làm sao để ngôi biệt thự đón được gió Đông Nam mang đến không gian thoáng đãng cho căn nhà lại tránh được nắng Tây buổi chiều. Bên cạnh đó còn có không gian dành cho vườn cây, tiểu cảnh hay vườn rau sạch.

Ngôi biệt thự gây ân tượng với chúng ta từ cái nhìn tổng quan với nét đặc trung của hệ thống mái vòm. Dường như những kiến trúc sư thiết kế đã thổi hồn vào căn biệt thự với vẻ đẹp nhẹ nhàng, quyến rũ, mang hơi thở của sự cổ kính nhưng vẫn toát lên vẻ sang trọng để có thể mê hoặc được tất cả những ai chứng kiến. Từ các chi tiết hoa văn nhỏ nhất đến những hoa văn trên cột trụ trang trí cũng đều góp phần khẳng định đẳng cấp thực sự của ngôi biệt thự này.
Những họa tiết trang trí bên ngoài của căn biệt thự này đều là sự chắt lọc những tinh túy của kiến trúc cổ điển Pháp với những đường nét, hoa văn trạm trổ, điêu khắc tỉ mỉ, tinh tế và cầu kì. Sự kết hợp hài hòa của kiến trúc tinh tế, tỷ lệ thích hợp và sự phân chia đạt đến độ hài hòa sẽ mang đến một kiến trúc hoàn mỹ.
Hệ thống tường rào và cổng chính rất kiên cố, được làm từ sắt cao cấp được phụ sơn chống gì với những hoa văn được trạm trổ cầu kì. Cánh cổng là nơi mang đến ấn tượng đầu tiên cho khách khi đến với căn nhà. Chính vì vậy, một ngôi biệt thự với thiết kế cổ kiểu Pháp như thế này thì không thể làm một chiếc cổng đơn giản được.

Xung quanh ngôi biệt thự là không gian xanh được chăm sóc tỉ mỉ mối ngày nhằm hướng đến không gian sống tràn ngập màu xanh, không gian sống trong lành, con người trở nên gần gũi với thiên nhiên hơn. Hai bên sườn của ngôi biệt thự là nghệ thuật sắp đặt những chậu cây cảnh theo những quy luật riêng để tạo nên một không gian nghỉ ngơi, thư giãn tuyệt vời sau những giờ phút làm việc, học tập căng thẳng và cũng giúp cho ngôi nhà trở nên sinh động, hấp dẫn hơn trong mắt người khác.
Hệ thống ban công của công trình kiến trúc cũngrất được các kiến trúc sư quan tâm. Nó vừa là nơi trang trí lại vừa đóng vai trò tạo hình khối cho tổng thể toàn công trình. Ngôi biệt thự với hệ thống cửa sổ và cửa ban công được thiết kế diện tích rộng, giúp mang đến không gian thoáng đãng cho các căn phòng chức năng. Từ ban công của các căn phòng các thành viên trong gia đình có thể ngắm trọn được không gian xanh mát của vườn cây bên dưới.

Ngoài những điểm nhấn trên thì công trình kiến trúc này còn tạo được ấn tượng với người nhìn bằng sự kết hợp hài hòa màu sắc với nhau. Trên nền tổng thể gam màu trắng sáng, là gam màu nâu trầm của khung cửa khiến cho căn biệt thự càng trở nên sang trọng, uy quyền mà vẫn ấm áp, gần gũi. Phần mái nhà màu xanh đen đặc trưng càng làm nên tổng thể xa hoa của cả công trình kiến trúc tầm cỡ này.
Hệ thống cửa sổ và cửa ban công đều được làm bằng kính cường lực giúp tận dụng tối đa ánh sáng ban ngày và mang đến vẻ lộng lẫy, huyền ảo cho các căn phòng mỗi khi đêm về. Nhìn từ xa ngôi nhà mang đầy đủ những yếu tố của một công trình trên cả đẳng cấp và khiến ai cũng phải mê hoặc.
2. Bản vẽ mặt bằng công năng biệt thự cổ điển 3 tầng kiểu Pháp

Khi thiết kế và thi công biệt thự 3 tầng kiểu Pháp, người ta chú trọng đến không gian của các phòng chức năng đều phải đủ ánh sáng và thông thoáng tự nhiên. Hầu hết các phòng ngủ đều được thiết kế kèm với ban công để mang đến tầm nhìn rộng và thoáng. Sự kết hợp hài hòa giữa kiến trúc và thiên nhiên tạo nên một không gian gian biệt thự sang trọng 3 tầng phong cách cổ điển kiểu Pháp này.
2.1. Mặt bằng bố trí công năng tổng diện tích đất xây dựng
Nhìn một cách tổng quan chúng ta cũng dễ dàng nhận thấy có sự phân chi tỉ lệ hợp lý giữa nhà ở và sân vườn. Đây là điều mà bất cứ đơn vị thiết kế và thi công nào cũng chú trọng tư vấn cho chủ đầu tư để tạp được không gian sống xanh và nâng cao sức khỏe, tinh thần. Phía kiến trúc nhà ở được thiết kế với đủ các phòng chức năng dành cho các thành viên trong gia đình.
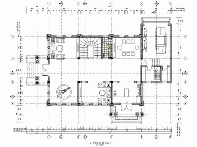
2.2. Mặt bằng tầng trệt biệt thự cổ điển 3 tầng kiểu Pháp

Mặt bằng của tầng 1 tạo cho người ta cảm giác về sự sang trọng và rộng rãi. Phòng khách được thiết kế chuẩn theo phong cách cổ điển với những chi tiết độc đáo, hài hòa. Những chi tiết tuy cổ điển là vậy nhưng lại có vẻ đẹp và sự sang trọng của riêng nó. Ngoài ra, trong quá trình thiết kế, kiến trúc sư quan tâm nhiều đến phong thủy và hướng nhằm mang đến bình an, tài lộc cho giả chủ và các thành viên trong gia đình.

Phần tiền sảnh cao, rộng mang đến sự nhất quán trong tổng thể kiến trúc của căn biệt thự. Phòng ăn được thiết kế gần gũi với thiên nhiên cho nên nó thông với hành lang đi ra vườn hoa. Nhà bếp với diện tích rộng, bố trí sang trọng theo tiêu chuẩn biệt thự cao cấp. Ở tầng 1 cũng được thiết kế 1 phòng ngủ với nhà vệ sinh khép kín. Ngoài ra, cũng có 1 nhà vệ sinh chung để phục vụ cho nhu cầu của mọi người.
2.2. Thiết kế tầng 2 biệt thự 3 tầng phong cách cổ điển Pháp

Mặt bằng tầng 2 được thiết kế bao gồm các phòng chức năng: phòng ngủ, phòng làm việc, ban công, nhà vệ sinh chung, phòng sinh hoạt chung. Đặc biệt, các căn phòng được bố trí hợp lý, khoa học, tiện dụng trong quá trình sử dụng nhưng vẫn phải đảm bảo phong thủy theo tuổi, mệnh của gia chủ.
Tầng 2 gồm có 3 phòng ngủ là phòng ngủ của bố mẹ với diện tích rộng, đầy đủ tiện nghi với nhà vệ sinh khép kín. Phòng ngủ bé trai và phòng ngủ dành cho bé gái được trang bị đầu đủ tiện nghi theo sở thích và tính cách của các con.

Đặc biệt mỗi phòng ngủ đều có ban công để tận dụng tối đa ánh sáng tự nhiên để mang lại nguồn năng lượng sống tích cực cho gia chủ. Với không gian phòng sinh hoạt chung dành cho những buổi tụ tập gia đình sau những giờ làm việc vất vả, ngồi quây quần bên nhau
2.3. Thiết kế tầng 3 của biệt thự cổ điển kiểu Pháp

Nếu như thiết kế mặt bằng tầng 1 và tầng 2 tập trung vào các phòng chức năng thì ở tầng 3 các kiến trúc sư lại tư vấn cho gia chủ nên thiên về các tiện ích mở rộng. Bên cạnh phòng ngủ dành cho khách, phòng thờ, nhà vệ sinh, khu vực giặt, phơi đồ, nhà kho thì còn có không gian dành cho việc luyện tập thể thao, sức khỏe như phòng tập Gym, xà đơn, xà kép…
Hệ mái vòm của cửa sổ được thiết kế hoành tráng cùng với phần họa tiết mặt tiền được sắp xếp theo lối cổ điển nhằm mang đến sự hoàn mỹ cho tổng thể căn biệt thự, mở ra những xu hướng trang trí nội, ngoại thất mới cho căn biệt thự của giới thượng lưu.
Với những gia đình mà tiềm lực kinh tế của họ đủ mạnh thì việc mong muốn sở hữu một căn biệt thự sang trọng, xa hoa là rất bình thường. Nếu bạn cũng đang có ý định xây dựng một căn biệt thự theo phong cách cổ điển kiểu Pháp vừa rộng rãi, thoáng đãng lại bề thế và nguy nga thì hãy liên hệ ngay với Xaydungso.vn để biến căn biệt thự trong mơ của bạn thành hiện thực nhé.


































