Những gia đình khá giả thường ưu tiên lựa chọn xây dựng mẫu nhà biệt thự hiện đại. Đây là không gian được ưa chuộng nhờ sở hữu vẻ đẹp ấn tượng, toát lên được sự sang trọng và đẳng cấp. Chưa hết, biệt thự còn đáp ứng phục vụ mọi nhu cầu của gia đình. Đây cũng là phương án thiết kế được chọn lựa khi khách hàng sở hữu quỹ đất đẹp, rộng lớn. Bài viết sau đây chúng tôi xin giới thiệu đến mọi người mẫu nhà biệt thự 3 tầng mái thái được xây dựng trên quỹ đất 15x20m. Đây là một trong những mẫu thiết kế hiện đại, khang trang và rất đẹp mắt.
* Thông tin tổng quan:
- Chủ đầu tư: Ông Thiện
- Địa điểm xây dựng: Đông Anh – Hà Nội
- Diện tích xây dựng: 110m2, Mặt tiền 12m, sâu 11.4
- Số tầng 3, số phòng ngủ 4
- Năm xây dựng: 2017
- Kiến trúc sư: Nguyễn Văn Nam – Kiến trúc G5 Blog xây dựng
Giới thiệu phối cảnh mẫu nhà biệt thự 3 tầng mái thái hiện đại

Mẫu biệt thự 3 tầng đẹp mái thái trên đất 15 x 20m
Để thuận tiện cho quý khách hàng theo dõi phối cảnh thiết kế, chúng tôi xin giới thiệu những hình ảnh đến từ góc nhìn khác nhau. Từ mỗi góc nhìn gia chủ có thể dễ dàng hình dung ra không gian và sự ấn tượng của mẫu thiết kế này.

Thiết kế nhà biệt thự 3 tầng hiện đại mặt tiền 12m
Mẫu biệt thự đẹp tạo sự gần gũi nhờ lối kiến trúc truyền thống thiết kế mái ngói hình chữ A lệch. Yếu tố này góp phần tạo sự cân đối, hài hòa với tổng thể, tăng thêm sự mềm mại, duyên dáng cho công trình. Thay vì chỉ sơn tường đơn giản các KTS đã lồng ghép khoảng tường kẻ roan tạo điểm nhấn thêm cho không gian, hài hòa cùng tone màu sáng của tổng thể.

Góc nhìn toàn cảnh từ trên xuống của căn biệt thự 3 tầng mái thái
Gam trắng sáng được sử dụng làm tone màu chủ đạo, màu nâu đen được lựa chọn để lợp mái ngói. Hệ thống cửa cũng được đút nhôm kính màu đậm. Sắc màu tối sáng hòa quyện tạo sự nhịp nhàng uyển chuyển, kiến tạo tổng thể vừa tươi trẻ dịu dàng vừa rất bề thế và hoành tráng. Phần ban công ở mặt trước sân thượng, ở phần tầng ba và mặt bên của tầng hai đều sử dụng hệ lan can bê tông đúc đơn giản với các thanh trụ đứng, sơn trắng, hài hòa với kết cấu chung.
Mặt bằng thiết kế biệt thự 3 tầng hiện đại 25x20m
+ Mặt bằng tầng 1:

Bản vẽ bố trí công năng tầng 1 căn biệt thự 3 tầng
Phòng khách nằm ở vị trí đầu tiên khi bước vào từ sảnh chính, không gian này có diện tích 24m2. Phòng khách thiết kế liên thông với nhà ăn và khu vực bếp tạo sự thông thoáng và không gian liền mạch, thuận tiện cho sinh hoạt. Mặt bằng tầng 1 bao gồm 1 phòng ngủ, trong đó có 1 phòng ngủ được trang bị nhà vệ sinh khép kín. Thêm một nhà vệ sinh nữa được xây dựng cạnh phòng khách để thuận tiện cho việc sinh hoạt của cả tầng hay phòng trường hợp có khách đến. Các không gian được bố trí hợp lý để thực hiện được tốt công năng theo yêu cầu, theo đó, khu vực bếp sẽ được sắp xếp ở phía chếch về bên phải thiết kế thêm lối phụ. Diện tích nấu nướng sẽ là 13m2 có cửa sổ để nhìn ra khu vực sân bên cạnh.
+ Mặt bằng tầng 2:

Bản vẽ mặt bằng tầng 2 căn biệt thự 3 tầng
Mặt bằng tầng 2 biệt thự sẽ bao gồm 1 phòng thờ, không gian sinh hoạt chung cho cả gia đình, 2 phòng ngủ cho các thành viên, nhà vệ sinh chung và khu sân trống dùng để phơi án quần hoặc đặt bể lọc nước giếng khoan. Chú trọng không gian thông thoáng, mang lại sự thoải mái tối đa cho gia đình, các KTS đã thiết kế các phần cửa hông chức năng đón nắng gió.
Không gian thờ cúng được đặt tại vị trí trung tâm của tầng 2, và không gian sinh hoạt chung được ưu tiên xây dựng diện tích rộng rãi, nơi cả nhà có thể ngồi lại chuyện trò và vui chơi cùng với nhau.
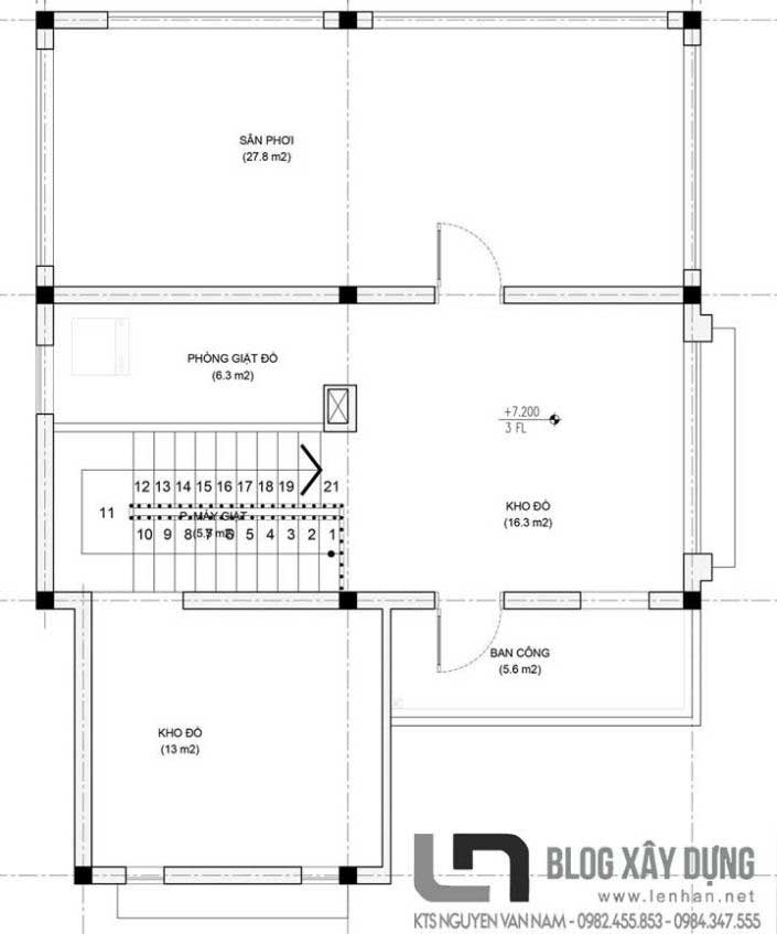
+ Mặt bằng tầng 3:

Bản vẽ mặt bằng tầng 3 (áp mái) căn biệt thự 3 tầng
Không gian này thiết kế nhằm tận dụng được khoảng không của tầng áp mái. Tầng 3 thiết kế đơn giản, đáp ứng nhu cầu của gia chủ. Do đó, khu vực này chỉ được sử dụng làm nhà kho để đồ và phòng giặt, phần sảnh sau dùng làm sân phơi.
Góc hình tổng quan của phối cảnh + bản vẻ chi tiết của căn biệt thự 3 tầng đẹp phía trên sẽ giúp bạn có thêm ý tưởng mới cho kiến trúc đẹp này. Hy vọng với thông tin chúng tôi chia sẻ sẽ giúp bạn có cái nhìn tận cảnh hơn.


































