Đây là một trong những công trình tạo được sự độc đáo riêng biệt khi nhìn vào tổng thể mặt tiền. Mẫu nhà cấp 4 1 tầng đẹp mà chúng tôi giới thiệu đến quý khách hàng tuy thiết kế đơn giản nhưng lại rất bắt mắt và ấn tượng. Đây là dự án được xây dựng ở Bình Thuận, sau khi hình thành, ngôi nhà trở nên nổi bật trong dãy những nhà phố dựng san sát nơi đây. Quý khách hàng có thể tham khảo thêm thiết kế mới lạ này trong bài viết dưới đây.
* Thông tin khái quát:
- Architects: Sawadeesign Studio
- Địa điểm: Tuy Phong District, Binh Thuan, Vietnam
- Kiến trúc sư : Đoàn Sĩ Nguyên, Huỳnh Huy Tiến, Lê Đình Mạnh, Nguyễn Ngọc Minh Quang
- Diện tích: 96.0 m2
- Năm thực hiện dự án: 2017
- Photographs: Quang Tran
- Manufacturers: Dulux, Dongtam
Phối cảnh dự án nhà cấp 4 1 tầng hiện đại độc đáo

Ngôi nhà có thiết kế mặt tiền độc đáo, nhờ vậy mà nó hiện lên khá nổi bật trong chuỗi những công trình mặt phố khu vực này. Song không vì thế mà nó trở nên cô lập, quá khác biệt, nhà cấp 4 có lối kiến trúc hài hòa cùng tổng thể, vừa tạo dựng được dấu ấn riêng vừa tạo cảm giác thích thú, gắn kết nhất định.

Đây là sản phẩm của sự kết hợp hoàn hảo lối kiến trúc truyền thống với mẫu thiết kế hiện đại, hợp xu hướng hiện nay. Chính sự mới lạ này đã góp phần kiến tạo không gian hài lòng quý khách hàng và đáp ứng được mong muốn sở hữu ngôi nhà phong cách năng động, vừa trẻ trung vừa cổ điển.

Thiết kế nhà đẹp với hệ thống cửa sổ quay và hệ cửa chính, đồng thời sử dụng thêm một vài chi tiết đơn giản để trang trí mặt tiền. Chất liệu gỗ được sử dụng là gỗ Pyinkado địa phương. Loại gỗ này khá thông dụng, gia chủ có thể thuận tiện tìm kiếm nó ở các cửa hàng mộc trên địa bàn. Với tính linh hoạt và chống thấm, loại gỗ này sẽ đảm bảo được độ bền nhiều năm và tạo được dấu ấn vùng miền rõ rệt.
Thiết kế nội thất nhà cấp 4 một tầng đẹp ở Phan Thiết
Nhà cấp 4 không phải là công trình xây mới mà là sản phẩm được cải tạo từ ngôi nhà của tổ tiên để lại. Nhà vốn là dự án đã được xây dựng từ lâu đời vào những năm 1960. Từ một công trình xưa cũ, các KTS đã nghiên cứu và thiết kế, tạo dựng nên một không gian hoàn toàn khác biệt, mang phong thái của thế kỷ hiện đại, vừa thể hiện được phong cách và cá tính riếng, vừa là mẫu thiết kế không trùng lặp với những mẫu nhà cấp 4 khác nhờ cách biển chuyển thông minh từ kiến trúc truyền thống chuyển mạnh qua chất tân thời với tone màu chủ đạo nổi bật, cả không gian lẫn nội thất sử dụng cũng cực kỳ cuốn hút.

Các KTS đã có quá trình nghiên cứu và sáng tạo không những, kết quả đưa ra ý tưởng khá táo báo, vừa để bảo vệ và gìn giữ nét đẹp truyền thống vốn có, vừa kết hợp hài hòa các đặc điểm hiện đại trong kiến tạo công trình. Theo đó, các không gian bên trong được tổ chức lại một cách thông mình và hợp lý cũng như đơn giản hóa chức năng của ngôi nhà. Nhà cấp 4 được chia theo phần 3, tách biệt truyền thống và hiện đại. Dù là mẫu nhà ở có kiến trúc lồng ghép giữa hai thời đại song tổng thể hiện đại không nhận ra được sự đối nghịch, thậm chí còn rất hài hòa và đẹp mắt.

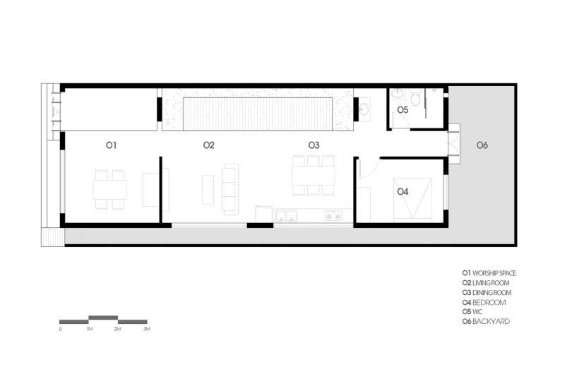
Quý khách hàng có thể theo dõi hai không gian được lồng ghép trong nhà cấp 4 để thấy được sự bố trí nội thất và sắp xếp các phòng ốc trong căn phòng. Cụ thể, công trình sẽ bao gồm phòng khách nằm chính giữa, nhà bếp và bàn ăn đặt khu vực bên cạnh, bên còn lại dùng để bố trí 1 phòng ngủ và một nhà vệ sinh.

Các không gian sẽ được ngăn cách nhau bằng cách sử dụng các đồ nội thất. Đồng thời, sẽ có một khu vườn bên trong và 1 hệ cửa sổ được thiết kế rộng mở, diện tích thông thoáng để tăng khả năng đón ánh sáng và tạo khoảng không gian mát lành cho gia đình.
Trên đây là mẫu thiết kế nhà cấp 4 khá thú vị mà chúng tôi giới thiệu với các bạn. Chi phí hoàn thiện công trình không quá tốn kém, do vậy đây cũng sẽ là một gợi ý rất đáng để các gia đình tham khảo.


































