Các cụ ta vẫn dạy con cháu rằng: “đàn ông xây nhà, đàn bà xây tổ ấm” câu nói trên với hàm ý chỉ sự quan trọng và cần thiết của mái ấm gia đình đối với mỗi con người chúng ta. Hiện nay có rất nhiều kiểu nhà đẹp, thời thượng cho các quý gia chủ lựa chọn song mẫu nhà cấp 4 9x12m có lẽ vẫn là sự lựa chọn tốt nhất bởi các thế mạnh về độ bền vững, tính thẩm mĩ và giá thành phù hợp mà nó mang lại. Mời các bạn hãy cùng theo dõi những chia sẻ cụ thể của chúng tôi dưới đây về mẫu nhà cấp 4 này.
Những mẫu nhà cấp 4 được ưa chuộng nhất hiện nay
Nhà cấp 4 là kiểu nhà truyền thống trong kiến trúc nhà ở của dân tộc ta. Nhà cấp 4 được xem là kiểu nhà có khả năng chịu ngoại lực tốt, kết cấu bền vững và kinh phí xây dựng thấp hơn so với các nhà khác. Nhà thương được xây dựng bằng vách nan, gỗ bây giờ chủ yếu là gạch có tường bao quanh và hàng rào uốn lượn cỏ cây xanh mát bao phủ. Mái nhà có thể là rơm, cọ, tre gỗ, ngói lợp, đổ xi măng, .... Hiện nay nhà cấp 4 đã được thiết kế cho phù hợp với thời đại nên có rất nhiều kiểu kiến trúc độc đáo, đa dạng và phong phú, quan trọng nhất là tận dụng được tối đa công năng sử dụng của không gian. Mời quý độc giả cùng tham khảo một số mẫu nhà cấp 4 được biết đến nhiều nhất hiện nay.

Trước tiên không thể không kể đến kiểu nhà cấp 4 bằng. Đây là kiểu kiến trúc đã có từ lâu và được nhiều người dân Việt ta lựa chọn. Đúng như tên gọi, kiểu nhà này có phàn mái nhà được đổ bê tông trên mặt phẳng và có độ dốc nhất định để thoát nước mỗi khi mưa bão. Với kiểu mái bằng này đảm được khả năng chịu lực rất lớn, hoàn toàn không lo bị lốc mái, dột mái hay tràn thấm nước ngay cả khi thời tiết khắc nghiệt nhất. Với khả năng cách nhiệt lớn lại thêm độ bền bỉ lâu dài mẫu nhà cấp 4 mái bằng được xây dựng nhiều nhất là ở nông thôn. Hơn thế nữa do đặc tính là mái bằng nên gia chủ có thể sử dụng mái làm sân phơi, trồng cây cảnh hay làm khi vui chơi cho con cháu cũng rất tiện lợi.
Ngày nay đã có rất nhiều hãng gạch siêu nhẹ, gạch chống thấm, gạch chống nóng cho khách hàng lựa chọn để lát mái cho ngôn nhà càng thêm kiên cố và mát mẻ hơn. Tiếp theo phải kể đến mẫu nhà cấp 4 mái thái. Hiện nay kiểu mái này đang được cá gia chủ lựa chọn nhiều nhất bởi độ bền của ngói và vẻ đẹp thẩm mĩ của nó mang lại mà không loại mái. Với sự cất ngói công phu, từng viên từng viên được xếp lên nhau rất đều và đẹp tạo thành độ đôc nhất định theo thiết kế. Đây là kiểu kiến trúc bắt nguồn từ những ngôi nhà cổ bên Thái Lan, các phần chính của ngôi nhà này bao gồm: cửa chính, cửa sổ, mái và mái che. Ưu điểm vượt trội của kiểu nhà này là tính thẩm mĩ cao đẹp nhất trong các kiểu mái nhà cấp 4, hơn nữa lại có khả năng chống nóng, chống dột, thấm rất tốt.
Tuy nhiên để xây dựng được kiểu nhà này cũng đòi hỏi người thợ xây có trình độ chuyên môn cao và kinh nghiệm lành nghề. Độc đáo hơn cả là kiểu nhà cấp 4 với thiết kế gác lửng. Với công trình này sẽ làm tăng thêm diện tích sử dụng cho gia chủ, tận dụng tối đa không gian sống. Kiểu kiến trúc này vừa lạ mắt mới mẻ lại vừa tiết kiệm. Tuy nhiên kiểu nhà cấp 4 này ít được xây dựng hơn những kiểu nhà khác. Cuối cùng là mẫu nhà cấp 4 kêt hợp nhà vườn. Kiểu kiến trúc này lấy cảm hứng từ kiến trúc cổ điển của Pháp, Ý và tinh thần hiền đại của châu Âu. Lựa chọn nhà cấp 4 kết hợp nhà vườn là giải pháp tối ưu cho cuộc sống xanh thân thiện hoà nhập với môi trường. Ắt hẳn bất kì ao cũng muốn có cuộc sống êm đềm, bình dị hoà mình vào quang cảnh thiên nhiên như vậy.
Phối cảnh bản vẽ chi tiết đầy đủ nhất cho mẫu nhà cấp 4 9x12m
Đây là bản mô phỏng hình ảnh thu nhỏ đầy đủ nhất của nội thất cũng như ngoại thất mẫu nhà cấp 4 9x12m. Kiểu thiết kế này đặc biệt ở chỗ có thêm phần gác lửng làm mở rộng thêm không gian của ngôi nhà đảm bảo cho sự riêng tư của gia đình có nhiều thành viên.

Mặt tiền được bố trí khá rộng rãi làm chỗ vui chơi thư giãn. Cửa chính cũng như toàn bộ hệ thống cửa dự kiến lắp đặt khung nhôm cửa kính. Vừa làm cho ngôi nhà thêm sang trọng, sáng sủa vừa tiết kiệm kinh tế mà còn rất bền bỉ không bị vênh lệch hay mối mọt như cửa gỗ. Đối diện với cửa chính là phòng khách rộng rãi trưng này đầy đủ tiện nghi của của đình, sở dĩ đây là phòng có diện tích lớn nhất là vì đó là nơi sinh hoạt chúng của tất cả thành viên cũng là phòng hội họp của khách khứa trong nhà. Gian tiếp theo được bố trí làm bếp ăn và phòng ăn. So với các kiểu thiết kế của những ngôi nhà khác thì bếp ăn của căn nhà này khá bí bách không có độ thông thoáng. Đằng sau khu bếp phòng ăn được bố trí với một phòng ngủ và cuối cùng là phòng vệ sinh rộng cho tất cả mọi người sử dụng chung.
Bên cạnh đó ngôi nhà còn được thiết kế với một gian thò diện tích dài đủ để bố trí hai phòng ngủ ở đây. Điều đáng nói nhất là một cầu thang lên gác lửng được thiết kế gọn gàng không làm ảnh hưởng đến các phòng khác và không tốn diện tích của ngôi nhà. Trên gác lửng được bố trí một phòng thờ trang trọng, và một phòng ngủ. Như vậy chỉ thêm một gác lửng thôi nhưng diện tích ngôi nhà đã được mở rộng ra rất nhiều. Với nhiều phòng như vậy phù hợp với gia đình tam đại đồng đường đông thành viên cùng chung sống. Thật là một không gian ấm cúng, sum vầy của một gia đình hạnh phúc. Dưới chân cầu thang cũng tận dụng hết diện tích để làm gara để xe rất tiện lợi và an toàn.

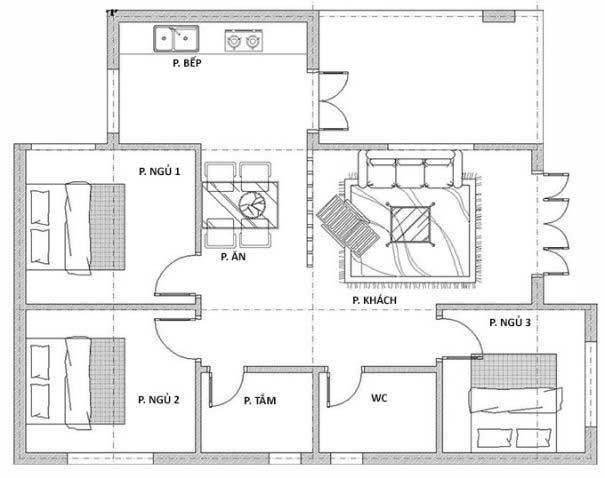
Còn đây là hình ảnh thu nhỏ của ngôi nhà cấp 4 9x12m với 3 phòng ngủ nhưng không có gác lửng. Tuy nhiên với thiết kế hình chữ L thông minh cũng thiết kế cho ngôi nhà tiện nghi phục vụ đầy đủ cho cả gia đình. Ngoài ra còn để dư ra một diện tích trống cho các thành viên thư giãn vui chơi.
Những mẫu thiết kế nhà cấp 4 9x12 lịch sự, tiện nghi nhất
Nhà cấp 4 có muôn hình vạn trạng mẫu kiến trúc mà kiểu nào cũng tinh tế trẻ trung. Dưới đây là một số mẫu nhà cấp 4 9x12m được lựa chọn tốt nhất gửi đến các quý gia chủ. Mọi người đang được chiêm ngưỡng mẫu nhà cấp 4 diện tích 9x12m mái bằng có độ dốc ổn đỉnh để thoát nước ngày mưa.

Điểm nhấn của ngôi nhà là một viền vàng vuông góc, những viên gach trang trí xếp li cầu kì. Nếu gia chủ nào muốn ngôi nhà của mình đậm chất hiện đại hẳn sẽ không thể bỏ qua mẫu nhà này, không thể bỏ qua mẫu cửa nhôm vuông kính trong suốt đồng màu với màu sơn. Có thể nói không chỉ với ngôi nhà cấp 4 như vậy cũng đủ làm nên thần thái sang trọng của chủ nhà.
Còn đây như quý độc giả đang chiêm ngưỡng chính là mẫu nhà cấp 4 mái thái kiểu nhà vườn vừa trang nhã cổ điển lại vừa trẻ trung sắc trắng của sơn nhà kết hợp với ngói xanh. Khuôn viên rộng rãi rợp bóng cỏ hoa vốn đã yên bình nay có thêm ngôi nhà khang trang sừng sững càng mang lại cảm giác an toàn thư thái cho gia chủ.

Tiếp theo là mẫu nhà cấp 4 gác lửng như bản vẽ ở trên. Cách bày trí nội thất và phân chia các phòng phát huy tối đa nhất công năng sử dụng của không gian. Nếu gia đình bạn đông người mà vẫn muốn cả nhà sum họp trong cùng một không gian thì chắc chắn việc lựa chọn nhà cấp 4 mái lửng này là tối ưu nhất. Lối lên cầu thang kết hợp với lan can kính sang trọng kết hợp với mặt trần kiểu cách và đèn trang trí làm bừng toả lên sức sống hiện đại năng động như một biệt thự cao cấp.

Trước mắt quý độc giả đang chiêm ngưỡng là mẫu nhà cấp 4 9x12 mái bằng kết hợp mái thái rất lạ mắt và độc đáo.
Rèm cửa trang nhã, cửa kính trong suốt cùng ánh đèn lung linh cùng góp phần tỏa sáng cho ngôi cấp 4 của bạn. Người ta có câu “ nghệ thuật vị nhân sinh” quả không sai khi những công trình nghệ thuật kiến trúc xinh đẹp như thế này mang lại cho chúng ta cuộc đời ý nghĩa và cuộc sống tốt đẹp hơn.

Trên đây là những chia sẻ thiết thực nhất về những mẫu nhà cấp 4 9x12m được mong chờ nhất hiện nay. Hi vọng rằng sẽ đem đến những ngôi nhà cấp 4 hiện đại nhất, thẩm mĩ nhất đến với đông đảo mọi người.

































