Những ngôi nhà cấp 4 diện tích 80m2 đẹp hiện nay đang nhận được nhiều sự quan tâm của gia đình trẻ có kinh phí thấp. Với diện tích 80 m2 xây dựng nhà cấp 4 nông thôn là vô cùng hợp lý tạo không gian sống thoải mái, tiên nghi nhất. Các mẫu nhà cấp 4 đẹp 8m2 được thiết kế với nhiều phong cách khác nhau như nhà cấp 4 đẹp 80m2 mái thái, nhà cấp 4 80m2 gác lửng… tùy theo nhu cầu của từng gia đình mà lựa chọn mẫu thiết kế. thiết kế phù hợp nhất. Hãy cùng Xây Dựng Số tham khảo một số mẫu nhà cấp 4 diện tích 80m2 trong bài viết này nhé!
Mẫu nhà cấp 4 80m2 mái thái đẹp
Lựa chọn phong cách thiết kế kiến trúc nhà cấp 4 đẹp 80 m2 mái ngói luôn là sự lựa chọn thông minh và phù hợp nhất cho những ngôi nhà có diện tích nhỏ hẹp. Với những hộ gia đình sở hữu diện tích từ 80m2 đến 100m2 hoặc xác định kinh phí xây dựng từ 300 triệu đến 400 triệu thì hãy cũng tham khảo một số mẫu nhà cấp 4 mái thái cực kỳ lý tưởng sau đây.

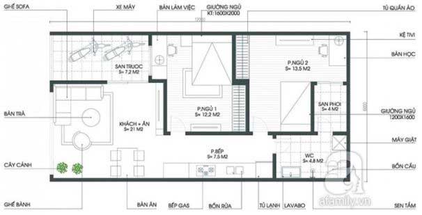
Mẫu nhà cấp 4 đẹp diện tích 80m2 được thiết kế sân trước và sau vô cùng thông thoáng. Tông màu trắng xám với những đường chỉ vàng tạo điểm nhấn. Trong đó không gian phòng khách được bố trí cuối cùng là phòng bếp, ở giữa là 2 phòng ngủ.

Bản vẽ nhà cấp 4 80m2 mái thái
Mẫu nhà cấp 4 diện tích 80m2 2 phòng ngủ kiểu mới
Cùng chiêm ngưỡng mẫu nhà rộng 480 m2 có 2 phòng ngủ vô cùng hiện đại phù hợp với các cặp vợ chồng trẻ hiện nay. Kiểu nhà này là một trong những mẫu nhà mơ ước dành cho các cặp vợ chồng có từ 1 đến 2 con. Với lối thiết kế kiến trúc đơn giản xu hướng nội thất hiện đại là điều vô cùng quan trọng

Mặt tiền ngôi nhà được thiết kế sân trước làm mái che chắn nắng tạo không gian thưởng trà, thư giãn tuyệt vời. Thiết kế rộng thoáng với tone màu trắng bóng, cửa chính nhôm kính vô cùng hiện đại và đẹp mắt.

Thiết kế phòng khách đơn giản, hiện đại với kệ tivi kích thước nhỏ để tiết kiệm diện tích. Bàn ghế phòng khách nhỏ gọn đơn giản phù hợp với xu hướng thiết kế nội thất tối giản. Một khu vực tiếp khách vô cùng hiện đại với bộ sofa phòng khách nhỏ xinh màu trắng xám.

Thiết kế căn bếp nhỏ và xinh với một số tủ bếp nhựa rất thẩm mỹ.

Nội thất phòng ngủ đơn giản, hiện đại tạo không gian riêng tư, gần gũi và thân thiện. Giường ngủ được bố trí ngay sát tường với điểm nhấn là chiếc kệ nhỏ đầu giường. Tủ quần áo phòng ngủ bằng nhựa, với tông màu phù hợp giúp không gian phòng ngủ trở nên rộng rãi và thoáng mát hơn.

Thiết kế nhà vệ sinh với đầy đủ nội thất và phụ kiện. Phòng bé với gam màu hồng nhạt và trắng xám, đẹp mắt, tạo không gian nghỉ ngơi, vui chơi cho bé.
Mẫu nhà cấp 4 diện tích 80m2 hiện đại
Nhưng ngôi nhà cấp 4 ngày nay càng nhận được sự quan tâm của nhiều gia đình trẻ nhờ chi phí rẻ, tận dụng tối ưu diện tích ở. Chỉ sở hữu vỏn vẹn 80 m2 nhưng ngôi nhà này đã ghi dấu ấn đặc biệt không chỉ với mọi người mà còn cả những nhà thiết kế trẻ. Toàn bộ ngôi nhà được thiết kế theo phong cách hiện đại, thông thoáng, hoàn toàn phù hợp với khí hậu nhiệt đới như nước ta.

Thiết kế mặt tiền rộng rãi, làm nổi bật mẫu nhà 80 m2 hiện đại. Mẫu thiết kế nhà cấp 4 này có sân trong rất rộng và khi kết hợp với ban công rộng rãi trông sẽ rất tuyệt. Khái niệm này vừa tạo ra một khu vực nghỉ ngơi ngoài trời nhưng cũng là một tấm đệm để không khí lưu thông tốt. Một khu vườn được bố trí ngay bên cạnh ngôi nhà cấp 4 này, sẽ là một nơi tuyệt vời, đúng chất. Tất cả các thành viên trong gia đình đều có thể ngắm nhìn chúng khi thư giãn trên ban công rộng mà không lo nắng hay mưa. Chỉ nhìn từ phía trước bạn sẽ thấy ngôi nhà cấp 4 này có giá trị thẩm mỹ khá cao, ngôi nhà nhô cao hơn so với mặt đất không chỉ để đón nắng gió mà còn có tác dụng ngăn côn trùng, động vật nguy hiểm. nguy hiểm vào nhà

Hệ thống cửa sổ và cửa đi đơn giản hơn với cửa sơn trắng và kính đen. Không nhất thiết phải quá màu mè, chính yếu tố này đã giúp ngôi nhà trở nên hiện đại hơn bao giờ hết. Việc sử dụng kính là để ánh sáng mặt trời có thể cung cấp đầy đủ hơn cho không gian nội thất này.
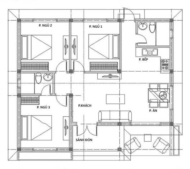
Mẫu nhà cấp 4 đẹp 80m2 có 3 phòng ngủ tiện ích
Mẫu thiết kế nhà 80m2 đẹp 3 phòng ngủ nhận được rất nhiều sự quan tâm của các hộ gia đình hiện nay. Mẫu nhà cấp 4 nông thôn đẹp mái ngói luôn là sự lựa chọn hàng đầu khi xây nhà trệt diện tích nhỏ của những gia đình có quỹ đất và nguồn vốn khiêm tốn.

Mẫu nhà cấp 4 3 phòng ngủ phù hợp với nhà nhỏ 80 m2, gia chủ có thể lựa chọn thiết kế truyền thống hoặc hiện đại, có thể xây nhà hình ống hoặc nhà hình chữ L. Mẫu thiết kế nhà cấp 4 80 m2 3 phòng ngủ này có thể phù hợp để xây nhà phố vì diện tích đất rộng và dài không cần quá rộng để thực hiện công năng, số phòng và chỗ để xe.
Mẫu nhà cấp 4 mái thái diện tích 80m2 1 phòng ngủ 1 phòng khách.
Mẫu nhà cấp 4 diện tích 80m2 với thiết kế kiến trúc này được chúng tôi sưu tầm nhằm cung cấp thông tin về các mẫu nhà cấp 4 giá rẻ. Tùy theo kinh tế của mỗi người mà lựa chọn lối kiến trúc phù hợp, hôm nay chúng tôi xin gửi tới mọi người mẫu nhà cấp 4 80m2, hi vọng sẽ là tài liệu cho các bạn và người thân. Mặt tiền thiết kế tổng thể diện tích 80m2, nhà rộng rãi thoáng mát. Nơi đây sẽ là nơi an cư lạc nghiệp lý tưởng cho mỗi người.

Điểm nhìn từ bên hông và phía sau nhà. Kiến trúc được thiết kế theo kiểu mái thái, kiểu mái thái đẹp đã rất quen thuộc với nhiều người. Trong đó chúng tôi cũng đã thiết kế thêm nhiều cửa để tạo sự thông thoáng.Thoạt nhìn, nó sẽ giống như một ngôi nhà nông thôn cũ với 3 phòng mang đậm chất Nam Bộ.
Mẫu nhà cấp 4 diện tích 80m2 2 phòng ngủ, 1 phòng khách
Mẫu nhà cấp 4 80m2 đẹp tuyệt vời sẽ là một lựa chọn lý tưởng cho các cặp vợ chồng trẻ vì chi phí xây dựng khá rẻ. Mẫu nhà này thích hợp xây dựng ở nông thôn, ngoại thành hoặc những ngôi nhà có diện tích rộng. Đây là kiểu nhà truyền thống đồng bằng Bắc Bộ nhưng được các kiến trúc sư thiết kế xây dựng theo phong cách hiện đại.

Như mọi người đã biết, những ngôi nhà truyền thống ở đồng bằng Bắc Bộ luôn có mái hiên để che mưa nắng, tránh ánh nắng trực tiếp chiếu vào. Ở đây, kiến trúc sư cũng đã tận dụng điều này nên để một phần nhỏ mặt tiền của ngôi nhà làm hiên nhà. Mẫu nhà cấp 4 đẹp 80m2 sử dụng cửa sổ kính mang đến cho ngôi nhà vẻ hiện đại và sang trọng hơn. Chân tường được ốp đá hoa cương giúp chống thấm, giữ ẩm cho tường và tăng độ vững chắc cho ngôi nhà. Phần mái được thiết kế đặc biệt nửa chéo nửa ngang tăng thêm phần thú vị cho mặt tiền ngôi nhà. Kiến trúc sư sử dụng nhiều đường kẻ ngang để trang trí và nhấn mạnh chiều rộng của ngôi nhà. Phần mái bên trái với những đường kẻ ngang cũng giúp giảm bớt nước mưa tránh ẩm mốc hay rơi vãi sau một thời gian sử dụng.
Mặt bằng công năng của mẫu nhà cấp 4 80m2 được thiết kế đơn giản. Từ cửa vào là phòng khách sau đó là phòng ăn + bếp. Có 2 phòng ngủ, phòng ngủ lớn có toilet riêng và phòng ngủ nhỏ hơn. Có một nhà kho nhỏ để lưu trữ và giữ đồ đạc. Mẫu nhà này có ưu điểm là được xây dựng trên khu đất rộng nên có 4 mặt thoáng, có thể lấy ánh sáng tự nhiên và thông gió từ mọi phía. Xung quanh nhà có sân vườn bao quanh, chan hòa với thiên nhiên, không khí thoải mái, thoáng mát.
Mẫu nhà cấp 4 mái tôn giá rẻ 80m2
Mẫu nhà cấp 4 mái tôn với thiết kế đơn giản và mang đậm cá tính của ngôi nhà truyền thống. Trước nhà là sân lát gạch hoa, hai bên trồng cây xanh. Bên phải hành lang là giàn hoa được dựng bằng cột bê tông giả gỗ. Chủ đầu tư mong muốn tận dụng vị trí này để nghỉ ngơi, thư giãn, ...

Ba bậc tam cấp dẫn vào phòng tiếp khách, 2 bên là 2 chậu cây nhỏ. Sàn đá granit đen che phủ các vết bẩn và dễ dàng lau chùi. Chân tường được ốp gạch nâu để chống rêu, mốc. Cửa chính và cửa sổ được làm bằng khung nhôm đen và kính cường lực. Về phần hệ thống mái thái, mẫu nhà cấp 4 được trang bị mái bằng và bên trên là khung sắt lợp ngói đơn giản. Trong công trình thiết kế nhà đẹp tuyệt vời này, kiến trúc sư sử dụng mái tôn lạnh màu xanh sáng với các đợt vuông. Điều này sẽ làm giảm khả năng hấp thụ nhiệt, giúp không gian bên trong luôn thoáng mát. Màu sắc ngoại thất trên được làm nổi bật trên nền tường trắng chủ đạo. Cửa chớp là mái bằng để ngăn nước mưa tạt vào cửa. Ngôi nhà cấp 4 mái tôn với kiến trúc đơn giản, không hoa lá, không hoa văn trang trí; Nhưng vẫn mang một vẻ đẹp giản dị. Tái hiện cuộc sống yên bình nơi thôn quê xanh mát.

Ngôi Nhà Chức Năng Cấp 4 Giá Rẻ được thiết kế để tạo sự thuận tiện trong quá trình sinh hoạt. Các phòng đều có cửa sáng, tập trung ở phía trước và phía sau ngôi nhà. Do diện tích chỉ 80 m2 nên phương án mở rộng không gian chức năng được kiến trúc sư đưa ra là thiết kế phòng khách và bếp liên thông theo hình chữ L. Để thuận tiện cho ông bà lớn tuổi, các phòng ngủ được thiết kế. . Thiết kế nhà vệ sinh khép kín. Ngay sau đó là 2 phòng ngủ nhỏ dành cho gia chủ khi về chơi nhà. Khu bếp ăn phía sau có phòng vệ sinh chung và có cửa thông ra sân vườn phía sau. Cửa này còn có nhiệm vụ lấy sáng và tạo sự thông thoáng cho phòng bếp, không để mùi thức ăn bám vào tường gây rối mắt.
Trên đây là một số mẫu nhà cấp 4 diện tích 80m2 mà Xây Dựng Số gửi đến bạn. Hy vọng bạn sẽ tìm được ý tưởng cho ngôi nhà sắp tới của mình!

































