Một ngôi nhà mới khang trang trong tầm tay bạn, một khuôn viên nhà vườn bốn mùa xanh mát hoàn toàn đang nằm trong tầ tay bạn. Hãy tìm về mẫu nhà cấp 4 9x10m nhỏ xinh đơn giản nhưng không kém phần tinh tế tiện nghi. Bảo bảo rằng sẽ làm hài lòng tuyệt đối ngay cả đối với quý gia chủ nào cầu thị nhất. Hãy cùng theo dõi bài viết dưới đây của chúng tôi để đi sâu hơn tìm hiểu về mẫu nhà này.
Phối cảnh bản vẽ cho mẫu nhà cấp 4 9x10m bạn không thể bỏ qua
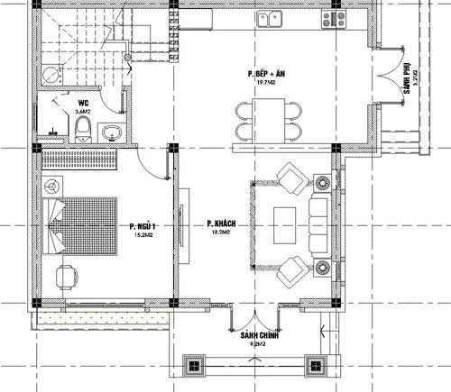
Với diện tích khiêm tốn nhưng được thiết kế khoa học thông minh đã tận dụng hết công năng sử dụng của không gian để phân bố các phòng hợp lí nhất và sử dụng được tiện nghi nhất.

Kiến trúc sư đã khéo léo thiết kế sảnh thềm rộng rãi để làm mở rộng thêm không gian cho ngôi nhà vừa làm được khu vui chơi của gia đình. Tiếp đến đối diện cửa chính là phòng khách rộng thoáng đãng, tràn ngập ánh sáng từ cửa chính tràn vào. Phòng khách vẫn là nơi được xem là thiết kế thậm mĩ nhất ngôi nhà, lại được gia chủ phô bày được các tiện nghi sang trọng của nhà mình. Phòng khách có diện tích lớn nhất để giúp cho không gian sinh hoạt, giải trí của các thành viên trong gia đình và khách đến chơi thoải mái sử dụng.
Ngay sau phòng khách là phòng bếp kết hợp phong ăn rộng và được bày trí gọn gàng thoáng đãng để giúp lưu thông không khí trong nhà bếp. Đối mới mẫu nhà cấp 4 khéo kín như này thì việc thiết kế nhà bếp rộng có cửa thoát khí là giải pháp tối ưu nhất để không gian của gia đình bạn luôn thanh sạch thơm tho. Tại gian phòng này sẽ là nơi sum họp, ăn uống, chia sẻ của các thành viên sau một ngày học tập và làm việc vất vả. Vậy nên nó chiếm diện tích khá rộng giống như phòng khách. Còn phòng ngủ được bố trí ở đối diện phòng khách với hai phòng có diện tích khác nhau. Gia chủ có thể tuỳ theo mục đích sử dụng của gia đình mình mà phân bố các thành viên ở các phòng cho hợp lí.
Giả sử gia đình bạn có người già sống cùng nên để phòng các cụ gần nhà vệ sinh để tiện đi lại. Khu vực vệ sinh được bố trí cuối nhà vừa đảm bảo thẩm mĩ vừa để cả nhà tiện sử dụng. Cùng với nhà vệ sinh bên cạnh là khu giặt đồ và sử dụng nguồn nước chung cho toàn bộ ngôi nhà. Cuối cùng là một sảnh phụ nhỏ để phơi quần áo hoặc để gia chủ bày biện khi nhà có đông người đến chơi. Có thể nói dù diện tích nhỏ nhưng ngôi nhà cấp 4 9x10m này đã đáp ứng tối đa nhất mục đích sử dụng của tất cả các thành viên.
Những đôi bạn trẻ vừa lập gia đình còn băn khoăn gì mà không nắm bắt ngay cơ hội sở chũng cho tổ ấm của mình một ngôi nhà cấp 4 nhỏ xinh với đầy đủ tiện nghi và lại rất thích hợp cho ít người sinh sống.Quả là một giải pháp tối ưu vừa tiện ích lại vừa kinh tế.
Còn đây là hình ảnh mô phỏng cụ thể cho mẫu nhà cấp 4 9x10m các bày trí tương đối giống với bản vẽ trên nhưng không gian này được thiết kế gọn nhẹ hơn

Với hai phòng ngủ chính đối diện nhau. Bên ngoài là phòng khách và phòng bếp ăn gần cửa chính ra vào. Phòng khách còn được tận dụng để dùng làm nơi đặt bàn ăn rất tiết kiệm diện tích mà vẫn đảm bảo được tính thẩm mĩ của ngôi nhà và sự sang trọng của phòng khách. Trước cửa chính là sảng thềm dài rộng đủ để chứa một bộ bàn ghế cho gia chủ và khách có thể trò chuyện, thư giãn tại đây. Cuối cùng của ngôi nhà là khu sảnh phụ ngắn và hẹp hơn sảnh chính mục đích là để làm gian hậu cho gia đình ra vườn sau hoặc phơi đồ, để đồ. Tuy không gian nhỏ nhưng ấm cũng và bình yên. Gia đình được dịp sum vầy chia sẻ bên nhau mà không bị riêng biệt như biệt thự nhà tầng.
Những mẫu thiết kế nhà cấp 4 9x10m đơn giản sang trọng
Mời quý độc giả cùng chiêm ngưỡng mẫu nhà cấp 4 9x10m mái tôn trẻ trung. Với khuôn thềm rộng như mở mang thêm không gia cho ngôi nhà. Hai cột trị to hai bên giúp toàn bộ kiến trúc được kiên cố vững chắc hơn. Ngoài ra ngôi nhà được lát một khoảng sân nhỏ với gạch không thấm nước và có độ dốc để thoát nước ngày mưa.

Hẳn nhìn thấy ngôi nhà cấp 4 như thế này bất cứ ai cũng siêu lòng mơ ước

Quả là một kiệt tác kiên trúc hoàn hảo không có một khuyết điểm nào. Với đặc trưng của kiểu nhà cấp 4 nông thôn có hàng rào bao bọc, ngôi nhà hiện lên mang phong vị êm đềm, bình yên xứng đáng là không gian sống lí tưởng. Tuy nhiên với mái thái sang trọng và màu ngói xanh lạ mắt làm toát lên thần thái hiện đại của ngôi nhà. Kết hợp với màu sơn trắng tao nhã cùng thảm cỏ xanh mượt như kiểu nhà vườn đẳng cấp của những người sành ở. Một điểm nhấn nữa cho ngôi nhà cấp 4 9x10m đẹp đẽ này là sự thi ết kế khéo léo với mái ngói được găn thêm những tấm kính trong suốt giúp cho ngôi nhà thêm sáng sủa và thông thoáng đảm bảo cho ngôi nhà khép kín có được không khí trong lành nhất.
Những lưu ý vàng khi thiết kế phòng bếp cho nhà cấp 4
Chúng ta vẫn thường tâm sự với nhau rằng muốn xem gia đình có hạnh phúc hay không hãy quan sát căn bếp của họ. Đó là nơi tổ ấm được lan toả nhiều nhất với sự góp mặt của đông đủ các thành viên. Vậy nên gia chủ cần dành nhiều tâm huyết cho không gian này sinh hoạt chung này của cả gia đình để mỗi khi đi xa các thành viên lại nhớ về ngôi nhà với căn bếp nhỏ thân yêu toả khói chiều khi mẹ nấu cơm. Ngày nay bếp đang là xu thế được thiết kế nhiều nhất và hướng tới sự đơn giản tinh tế, nhất là đối với kiểu nhà cấp 4 có diện tích vừa phải như 9x10m thế này.

Trước tiên gia chủ cần chọn màu sơn hay gạch ống nhã nhặn sáng như trắng, kem để tăng ánh sáng cho bếp theo phong thuỷ như vậy sẽ rất tốt ngoài ra với gam màu sáng còn giúp căn bếp nhà bạn lúc nào cũng thoáng đãng sáng đẹp. Chúng ta chỉ cần chú ý vệ sinh ngay sau khi sử dụng là lúc nào cũng như vừa mới xây. Khi lắp đặt hệ thống tủ trong nhà bếp quý bạn nên chọn những loai tủ treo tường có nhiều ngăn kéo đa dạng về kích cỡ để có thể để được tất cả mọi thứ của nhà bếp trong đó vừa tránh vừa bộn tốn diện tích lại vừa không lo hư hỏng hay va đập. Một lưu ý quan trọng là đối với nhà cấp 4 hãy chọn tủ mở treo tường theo chiều dọc.
Bên cạnh đó để giúp cho việc bếp núc thêm đơn giản, nhanh chóng mà vẫn có sản phẩm là những món ăn ngon thì bạn không thể bỏ qua những vật dụng nhà bếp thông minh, đa năng để hỗ trợ chính mình. Ví dụ như nồi nấu cơm có thể vừa dùng để hầm hay để nấu cháo đều được hoặc một cái bếp nướng có thể để chiên, rán hoặc hâm nóng đồ ăn, ... như vậy vừa không phải mua nhiều đồ cùng một lúc lại vừa tiết kiệm được kinh tế. Khi thiết kế phòng bếp hãy áp dụng quy tắc “ hình tam giác” có nghĩa là: bếp nấu, tủ lạnh và bồn rửa bát ở ba góc của hình tam giác cái này theo phong thuỷ rất hợp vì yếu tố hoả ( bếp) và bồn rửa bát ( thuỷ) kị nhau nên tuyệt đối không thể đặt nối tiếp nhau được.

Nên rất ưu tiên những loại vật dụng nhà bếp với tính năng k bám dầu mỡ và dễ lau chùi. Đồng thời lựa chọn những chất liệu tốt để cách nhiệu, chống nhiệt trước sức nóng từ nhà bếp toả ra. Một điều quan trọng nữa khi thiết kế nhà bếp, cửa bếp không được để đối diện cửa nhà vệ sinh, cửa nhà vệ sinh không được liền nhau. Nếu nhà bạn lắp hai gian vệ sinh nên để cách ra. Tránh để các đồ vật sắc nhọn như dao, kéo lộ ra ngoài, bạn hãy khéo léo giấu đầu nhọn vào trong vừa để tránh sát thương cho mình và người thân vừa không để cho nhà bếp có tính sát khí không tốt. Màu nền của bàn bếp nên lựa chọn phù hợp với tuổi và mệnh của gia chủ để công việc cũng như các mỗi quan hệ của gia đình được diễn ra suôn sẻ nhất. Đây là yếu tố phong thuỷ tuyệt đối không được xem nhẹ.
Trên đây chúng tôi vừa mang đến cho quý độc giả những chia sẻ hữu ích nhất cho việc xây dựng mẫu nhà cấp 4 nói chung và mẫu nhà cấp 4 9x10m nói riêng. Đây đều là những kiến trúc nhà ở đơn giản nhưng rất bắt kịp thời đại, sang trọng và đẳng cấp. Hãy là một gia chủ thông minh khi lựa chọn cho gia đình sản phẩm ưu tú nhất.

































