Việt Nam chúng ta có rất nhiều loại hình kiến trúc phù hợp với điều kiện tự nhiên, khí hậu, điều kiện kinh tế- xã hội. Trong đó, phải kể đến một loại hình kiến trúc khá phổ biến ở nước ta đó là Nhà cấp 4. Các mẫu nhà cấp 4 luôn được ưa chuộng bởi kiểu dáng, tính tiện nghi, và đơn giá thấp, đặc biệt là loại hình này còn mang đậm nét truyền thống của Việt Nam. Mẫu nhà cấp 4 đẹp 100m2 3 phòng ngủ hiện nay đang được lựa chọn rộng rãi, thích hợp với các gia chủ có thu nhập vừa phải. Dưới đây là 15 mẫu nhà cấp 4 100m2 3 phòng ngủ hiện đại, tiện nghi nhất để giúp mọi người tham khảo và có cái nhìn khách quan hơn.
Nhà cấp 4 100m2 3 phòng ngủ và 1 phòng thờ hiện đại
Mẫu nhà này hiện đang được sử dụng rộng rãi bởi tính tiện nghi, công năng, thẩm mỹ. Lựa chọn ngôi nhà cấp 4 100m2 3 phòng ngủ, 1 phòng thờ với thiết kế mái thái vừa mang nét đẹp Việt Nam truyền thống, vừa hiện đại tạo nên 1 không gian mới mẻ, ấn tượng. Không những thế, đối với những người lớn tuổi, họ muốn có 1 không gian thoải mai, những ngôi nhà cao tầng đã không còn được thu hút.

Hình ảnh mẫu nhà cấp 4 100m2 này với thiết kế mái thái màu xanh lam vừa mang nét truyền thống, vừa có sự cải cách về tính hiện đại. Thêm vào đó là các nhấn nhá hoa văn trên tường và dưới chân cột làm nổi bật cho ngôi nhà.

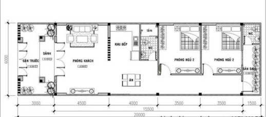
Bản vẽ thiết kế nhà cấp 4 3 phòng ngủ 1 phòng thờ diện tích 100m2. Công năng sử dụng trong ngôi nhà được bố trí gồm các khu vực phòng khách + phòng thờ, 3 phòng ngủ, 1 bếp, 1 WC.
Nhà cấp 4 100m2 3 phòng ngủ đơn giản


Nhà đẹp này được thiết kế mái thái đỏ truyền thống Việt Nam. Căn nhà là sự kết hợp hài hoà giữa màu trắng nhẹ nhàng, hoà chút màu gỗ đem lại sự nổi bật, thêm vào đó là màu đỏ tươi của mái. Đơn giá ngôi nhà này cũng không quá cao, phù hợp cho các gia đình có thu nhập thấp đến vừa. Không gian sân vườn rộng rãi, thoáng mát, có thể trồng các loại cây cho không gian trở nên thanh lọc hơn. Phù hợp ở các vùng nông thôn, yên bình, thư giãn.
Nhà cấp 4 nông thôn 100m2 với 3 phòng ngủ

Nhà cấp 4 3 gian với 3 phòng ngủ và những ngôi nhà truyền thống đó là sự phân chia công năng thành 3 gian. Chính vì thế cách bố trí công năng trở nên dễ dàng. Một ngôi nhà cấp 4 nông thôn đáp ứng đủ 3 tiêu chí : rẻ, đẹp, tiện nghi hẳn sẽ thu hút rất nhiều chủ đầu tư.
Mẫu nhà này là sự kết hợp nhẹ nhàng giữa màu trắng tinh khôi cùng với mái ngói đỏ nhẹ dịu, nhấn nhá thêm chút màu của gỗ và điểm thêm một vài hoa văn dưới chân nhà để tạo điểm nhấn nổi bật cho ngôi nhà, vừa đơn giản, vừa đẹp.
Nhà cấp 4 100m2 3 phòng ngủ mái thái

Nhà cấp 4 mái thái không còn xa lạ gì với chúng ta bởi nét đẹp truyền thống kết hợp sự hiện đại. Với nhiều ưu điểm từ công năng đến thẩm mỹ, đều được đánh giá cao. Hơn thế, giá thành cũng vừa phải. Nhà mái thái là sự lựa chọn tối ưu cho các gia chủ muốn tìm cho mình một không gian lý tưởng, mang lại sự thư giãn, thoải mái, cùng với sự ấm cúng, luôn giữ được nét đẹp truyền thống.

Ngôi nhà này với thiết kế ấn tượng, mái thái đỏ nhấp nhô, kết hợp với những mảng hoa văn ốp trên tường, cùng với đó là khoảng sân rộng, mang lại không gian thư thái, yên bình. Phía sau còn có mái chòi giúp gia chủ thư giãn sau những giờ làm căng thẳng, mệt mỏi. Công năng ngôi nhà được phân rõ ràng, gồm phòng khách, 3 phòng ngủ, 1 bếp, 2 wc, 2 sảnh. Việc sử dụng 2 sảnh giúp ngôi nhà trở nên thông thoáng, mát mẻ.
Nhà cấp 4 100m2 3 phòng ngủ chữ L

Mẫu nhà cấp 4 3 phòng ngủ chữ L từ lâu đã rất phổ biến và quen thuộc với nhiều hộ gia đình người Việt. Kiểu kiến trúc này không chỉ dễ xây dựng trên khu đất hình vuông, hình chữ nhật, mà còn có thể áp dụng trên khu đất hình thang. Mẫu nhà cấp 4 đẹp với thiết kế độc đáo. Phần hiên được thiết kế khá rộng rãi có thể kê một bộ bàn ghế sofa để ngồi uống trà tại đây. Các bậc thềm xen kẽ nhau tạo điểm nhấn, mang nét sang trọng cho ngôi nhà. Khoảng sân được lát cỏ, tạo không gian xanh, hòa hợp với thiên nhiên
.
Trong mẫu thiết kế nhà cấp 4 hình chữ L này phần gara xe được thiết kế phía sau nhà, gara xe được thiết kế rất rộng rãi có thể chứa được 2 chiếc ô tô. Mẫu nhà này được thiết kế với 1 phòng khách, 3 phòng ngủ, 1 phòng vệ sinh rất rộng rãi và phòng bếp + phòng ăn. Diện tích xây dựng của nhà cấp 4 hình chữ L là 16,85m x 18,65 m, phần gara để xe dài 6,3 m, nếu diện tích nhà bạn nhỏ hơn thì có thể bỏ phần gara xe này đi cũng được.
Nhà cấp 4 mái thái mang phong cách châu Âu

Mẫu nhà vừa mang nét đẹp truyền thống vừa kết hợp những nét đẹp của phương Tây mang đến sự mới mẻ, hiện đại. Ở đây mái được kiến trúc sư thiết kế 1 cách độc đáo, ốp 1 phần gạch hoa làm điểm nhấn, nổi bật cho ngôi nhà. Khoảng sân rộng lát cỏ và trồng cây, hoa, mang lại không gian xanh cho ngôi nhà. Hiên nhà được thiết kế rộng, đủ để bộ bàn ghế để thư giãn. Nhìn khá đơn giản nhưng lại rất tinh tế, hiện đại.
Nhà cấp 4 3 phòng ngủ 5x20m

Nhà cấp 4 3 phòng ngủ 5×20 là loại hình nhà phổ biến được rất nhiều gia đình ở các vùng nông thôn, vùng ngoại ô thành phố lựa chọn. Không chỉ mang đến không gian sống rộng rãi, tiện nghi, các mẫu nhà cấp 4 100m2 còn có chi phí xây dựng hợp lý, nội ngoại thất sang trọng, thời gian thi công nhanh chóng.
Nhà cấp 4 100m2 3 phòng ngủ có gác lửng

Đối với khoảng diện tích rộng 100m2 có gác lửng, bạn có thể bố trí đầy đủ các phòng chức năng. Số lượng phòng ngủ cũng có thể tăng theo ý muốn. Giữa phòng khách, phòng bếp, phòng ăn nên bố trí thông nhau. Giải pháp thiết kế này giúp không gian rộng rãi, hài hòa và thoáng mát hơn rất nhiều.

Về kiến trúc, bạn có thể sử dụng lối thiết kế hiện đại, màu sắc trang nhã, đường nét khỏe khoắn. Để tăng thẩm mỹ cho ngôi nhàm bạn có thể sử dụng mái thái. Ở vị trí các ô cửa sổ, bạn có thể lựa chọn vật liệu kính cường lực trong suốt. Lớp kính này sẽ đón ánh sáng tự nhiên tốt, giúp không gian luôn thông thoáng, tươi trẻ.
Nhà cấp 4 100m2 3 phòng ngủ mái tôn
Gia đình bạn có ít thành viên, chi phí xây dựng lại có hạn. Mơ ước về một ngôi biệt thự đẹp là rất xa vời. Khi đó, mẫu nhà cấp 4 3 phòng ngủ 100m2 dưới đây sẽ đáp ứng đầy đủ cho bạn về công năng; Cùng không gian sống sinh hoạt tiện nghi thoáng mát mà nhiều người phải ao ước.

Mẫu nhà cấp 4 đẹp với lối kiến trúc giản đơn, nhấn mạnh vào các bức tường. Sử dụng yếu tố màu sắc và vật liệu ngoại thất để tạo điểm nhấn cho căn nhà. Theo đó, màu trắng được sử dụng làm chủ đạo mang ý nghĩa tươi sáng và mới mẻ. Các bức tường xây hơi thụt vào bên trong sẽ được ốp gạch thẻ màu sáng trắng để tạo điểm phá cách.
Hiên trước nhà với sàn được ốp gỗ màu nâu, vừa sang trọng lại toát lên vẻ ấm cúng. Cạnh đó là lối đi được ốp đá nằm ở mặt bên ngôi nhà.
Bản chất hiện đại được nhất mạnh vào các ô cửa kính lớn; Khung nhôm màu xám với ưu điểm giảm tiếng ồn và không bị cong vênh. Điển hình ở mặt tiền chính là hệ cửa đi 3 cánh và 2 ô cửa sổ 2 cánh thiết kế dạng kéo.

Nhà cấp 4 3 phòng ngủ có sự tách biệt giữa không gian sinh hoạt chung và riêng. Phòng khách, bàn ăn, phòng bếp được thiết kế liên thông nhau. Ánh sáng trải dài từ đầu tới cuối nhà. Phòng bếp tiện nghi với quy hoạch tủ bếp theo hình chữ U, tối ưu được diện tích công năng sử dụng.
Lối đi dẫn từ cửa bên ra cửa sau theo hình chữ L. Nhờ hệ cửa kính mà lối đi này luôn được thông thoáng.
Phòng ngủ dành cho 2 vợ chồng có diện tích khá rộng nằm giữa. Phòng ngủ của các con được thiết kế theo kiểu giường đơn nằm 2 bên. Cuối dãy phòng ngủ là một phòng kho nhỏ để chứa đồ. KTS thiết kế 1 phòng tắm+wc và 1 phòng wc riêng biệt. Nên khi phòng tắm đang có người thì các thành viên khác vẫn có thể sử dụng phòng wc bên cạnh. Các phòng công năng này đều có cửa mở về lối dẫn ra sân sau. Cạnh cửa phòng tắm được thiết kế một tủ quần áo chứa đồ bẩn cần được giặt.
Nhà cấp 4 3 phòng ngủ 8.5x10.7m
Mẫu nhà 1 tầng 3 phòng ngủ 100m2 có sân vườn trồng cây cảnh bao xung quanh. Diện tích căn nhà rộng rãi có gara ô tô ngoài trời. Thiết kế nhà theo phong cách hiện đại, có tầm nhìn đẹp ra sân vườn. Vê công năng, căn hộ bao gồm phòng khách, phòng bếp, phòng ăn, 3 phòng ngủ và WC

Mái nhà 1 tầng 3 phòng ngủ này bố trí nhiều cửa sổ, hệ mái bằng cách điệu tinh tế thành từng tầng, bậc. Các chi tiết ốp chân cột phái mặt tiền tạo điểm nhấn cho không gian ngoại thất

Nhà cấp 4 3 phòng ngủ 1 phòng thờ mái thái diện tích 100m2

Mẫu nhà cấp 4 3 phòng ngủ có diện tích 100m2 với thiết kế mái thái nổi bật màu nâu trầm. Bên cạnh đó, hệ thống cửa bằng kính giúp tận dụng tối đa năng lượng tự nhiên giúp không gian luôn sáng, thoáng. Căn nhà được thiết kế với phòng khách, phòng bếp và phòng ăn, 3 phòng ngủ lớn, WC chung và gara để xe tiện lợi.
Mẫu nhà cấp 4 100m2 3 phòng ngủ đơn giản

Đây là mẫu nhà cấp 4 theo hơi hướng truyền thống của Việt Nam. Điểm độc đáo của ngôi nhà đó là sự kết hợp của ống khói mang phong cách châu u cùng tông màu trắng mang đến sự sang trọng, tinh tế. Căn nhà là sự kết hợp của phòng khách, 3 phòng ngủ, phòng bếp + phòng ăn và 1 WC chung.
Mẫu nhà cấp 4 đẹp 100m2 3 phòng ngủ giả biệt thự

Mẫu nhà này được thiết kế bởi 2 gam màu chủ đạo là đen và trắng tạo nên tổng thể hài hòa, hiện đại, sang trọng và tinh tế. Với diện tích 100m2, có thể thiết kế được 8 phòng trong nhà một cách khoa học, tiện dụng.
Mẫu nhà cấp 4 đẹp 100m2 3 phòng ngủ kết hợp vườn

Đây chính xác là mẫu nhà thuần Việt được ưa chuộng nhất. Những gian phòng nhỏ nhắn có thể trở thành khu thư giãn, nghỉ ngơi hòa mình vào thiên nhiên của các thành viên trong gia đình.
Mẫu nhà cấp 4 đẹp 100m2 3 phòng ngủ có gác lửng

Mẫu nhà cấp 4 thiết kế có gác lửng sẽ là một giải pháp tuyệt vời nhất cho những căn nhà có khoảng không hẹp. Nhà cấp 4 có chiều cao tương đối hạn chế nên có thể xây dựng thêm gác lửng bên trong để tận dụng làm phòng ngủ nhỏ hoặc nơi làm việc lý tưởng.
Mẫu nhà cấp 4 đẹp 100m2 3 phòng ngủ mái bằng

Mẫu nhà cấp 4 mái bằng luôn được ưa chuộng bởi tính ứng dụng cao và tiện nghi bậc nhất. Thiết kế không quá cầu kỳ phức tạp nhưng vẫn đảm bảo được nét độc đáo, tinh tế và tiện nghi, thoải mái cho gia chủ. Mẫu nhà cấp 4 3 phòng ngủ được sắp xếp khoa học, liền mạch, xuyên suốt.
Mẫu nhà cấp 4 đẹp 100m2 3 phòng ngủ hiện đại

Mẫu nhà cấp 4 100m2 được thiết kế với tông màu trắng tinh khôi đem lại nét đẹp thanh lịch, trang nhã cho ngôi nhà của bạn.
Mẫu nhà cấp 4 100m2 3 phòng ngủ 2 mặt tiền

Ngôi nhà cấp 4 mái thái chỉ sử dụng 2 màu sắc duy nhất là trắng và xám nhưng lại khá nổi bật. Nhờ cách bố trí mái thái giật cấp sinh động cùng những giải pháp chia khối mang đến sự phong phú cho hình thức ngoại thất.
Sự đầu tư cho thẩm mỹ được thể hiện qua mặt tiền chính với 3 phần mái thái lần lượt xếp chồng lên nhau. Điều này cho thấy mối quan tâm đặc biệt của gia chủ với vẻ đẹp hình thức bên ngoài.
Bên cạnh đó vách tường còn được trang trí sinh động bằng cách chia nhỏ thành nhiều phần thông qua các ô cửa sổ. Kết hợp với các mảng sơn xám trên và dưới.
Tất cả cách thức trang trí hòa hợp tạo nên một tổng thể thanh lịch, mang dáp dấp nhà ở truyền thống nhưng không kém phần hiện đại.
Nhà cấp 4 mái thái chữ L 100m2 3 phòng ngủ

Mẫu nhà cấp 4 100m2 sử dụng kiến trúc chữ L khá được ưa chuộng ở vùng quê. Yếu tố hình thức bên ngoài được chú trọng với nhiều chi tiết trang trí nhỏ và đồng bộ. Điển hình là phần mái thái màu gạch nung nổi bật, có mái phụ giật cấp ở cửa chính và các mái che ở hệ thống cửa sổ. Bên cạnh đó là những khung cửa gỗ lắp kính, vừa giữ nét truyền thống vừa tối ưu cho môi trường sống hiện đại.
Nhà mái thái 100m2 trang trí hiện đại với gam màu trung tính

Ngôi nhà có 2 phần mái lệch nhau được trang trí bởi màu sắc trung tính. Từ màu trắng sữa cho đến màu xám nhạt hài hòa. Ngoài ra còn có các mảng màu nhấn kết hợp cùng hình thức trang trí đắp nổi, tạo nên nét sinh động mà vẫn đảm bảo sự thanh lịch cho phối cảnh mặt tiền.
Nhà cấp 4 100m2 mặt tiền rộng, chiều dài ngắn

Nếu bạn đang sở hữu một diện tích xây dựng rộng chiều ngang và ngắn ở chiều dài thì phương án phối cảnh trên đây là gợi ý khá phù hợp. Màu sắc đầm thắm đi kèm lối trang trí kẻ sọc ngang quen thuộc bên dưới hệ thống mái thái giật cấp tạo nên nét đẹp quyến rũ cho ngôi nhà trệt.
Xem thêm:
Bản vẽ kiến trúc nhà cấp 4 đẹp
Mẫu nhà cấp 4 có gác lửng 100m2


























