Thiết kế nhà cấp 4 diện tích 90m2 mái thái Truyền Thống. Blog chia sẽ kiến thức xây dựng với chủ đề hôm nay là mẫu nhà cấp 4 mái thái diện tích 6×15=90m2. Kiểu nhà 1 tầng đẹp đầy đủ công năng sử dụng, theo xu hướng không gian xanh 2021.
♣ Chức năng căn nhà:
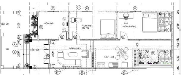
- Nhà có 2 phòng ngủ – phòng khách – nhà bếp + ăn – phòng thờ và nhà vệ sinh chung.
Đặc biệt hơn nữa đây là mẫu thiết kế xây dựng nhà đẹp kinh phí phù hợp với gia đình có kinh tế thấp, sẽ là lựa chọn dành cho người thích sự đơn giản mang phong cách Truyền Thống.

Với mãnh đất 6×15 ở nơi thành phố – đô thị lớn thì rất khó để những gia đình có kinh tế bật trung có thể xây dựng một căn nhà với đầy đủ công năng sử dụng. Nhưng với cách thiết kế nhà nhỏ đẹp này sẽ là lựa chọn rất phù hợp để bạn có thể lên ý tưởng cho những dự định của mình.

Đây là bản vẽ nhà cấp 4 đẹp được chúng tôi sưu tầm nhằm mang đến mọi người những kiến trúc phù hợp với diện tích lẫn kinh tế. Bạn có thể sử dụng bản vẽ này và sữa lại cho phù hợp với nhu cầu sinh sống của gia đình.

Với cách bố trí mặt bằng này được tách biệt dành cho 2 khu vực. Bên trái là phòng thờ nối tiếp là phòng ngủ được thiết kế khá rộng rãi. Phía bên phải là phòng khách – không gian nhà bếp, khoảng thông tầng và nhà vệ sinh chung.
Mặc dù diện tích của bản vẽ thiết kế nhà cấp 4 diện tích 90m2 này không mấy rộng rãi nhưng với kiểu bố không gian này có thể phát huy được những ưu điểm vượt bật vì có nhiều không gian độc lập.
CHI PHÍ XÂY NHÀ: Bạn có thể tham khảo bài viết chi phí xây nhà cấp 4 90m2 nhé.
Xem thêm tin:
- Chi phí xây nhà diện tích 90m2
- Mẫu nhà cấp 4 mái thái hình chữ L
- Mẫu nhà cấp 4 có gác lửng mái thái
- Mẫu nhà cấp 4 mái thái 3 phòng ngủ đẹp


























