Hướng đến xây dựng một không gian sống tiện nghi, mang lại cuộc sống an lành và thoải mái cho tất cả mọi người. Chúng tôi đã giới thiệu đến quý khách rất nhiều những bản mẫu thiết kế nhà đẹp, trong đó có cả những ngôi nhà cấp 4 hiện đại hay nhà phố đẳng cấp, sang trọng.
Điều mà không ít khách hàng quan tâm và thắc mắc, đó là liệu bản mẫu thiết kế khi được tiến hành thi công và xây dựng thì sẽ trở nên như thế nào, có hoàn toàn giống với những gì mà gia chủ mong muốn và nhìn thấy trên bản vẽ không? Để phần nào đưa ra cái nhìn khách quan và chính xác nhất, bài viết sau đây chúng tôi xin giới thiệu đến mọi người mẫu nhà cấp 4 mái thái 600 triệu diện tích 8,5 x 12,5 từ bản mẫu thiết kế đến hình ảnh thực tế khi tiến hành xây dựng.
Mẫu nhà cấp 4 mái thái 600 triệu công trình tại Hưng Yên
Chịu sự tác động của một vài yếu tố chủ quan lẫn khách quan, nên nhà cấp 4 dưới đây có thời gian thi công khá lâu. Tuy nhiên, theo phản hồi của gia chủ thì quá trình xây dựng theo bản mẫu không gặp nhiều khó khăn và đã mang lại một tổng thể hài hòa, giúp quý khách hài lòng tuyệt đối.

Phối cảnh mẫu nhà cấp 4 mái thái => Góc 1
Được xây dựng trên quy mô 8.5×12.5 mét, mẫu nhà cấp 4 mái thái này được xây dựng hợp phong thủy, với hướng mặt tiền là hướng Đoài, mặc dù vị trí công trình có hướng ra đường là hướng Nam. Các phòng ốc trong căn phòng được bố trí một cách hợp lý, vừa mang lại tiện nghi cho gia đình, vừa đáp ứng được mong muốn của gia chủ. Phòng bếp và phòng ăn được kết nối với nhau, tiếp đó là khu vực sân sau được liên thông bằng một cửa phụ tạo sự thuận tiện. Bên cạnh đó, các chậu cây, mảng xanh cũng được sắp xếp ngay phía trước cửa chính mang lại sự tươi mới, mát mẻ cho toàn bộ ngôi nhà

Phối cảnh mẫu nhà cấp 4 mái thái => Góc 2
So với bản mẫu thiết kế, phần thi công có một số thay đổi về màu sắc. Tuy nhiên nằm trong bối cảnh này thì sự pha trộn đó là hợp lý, tạo dựng không gian mát lành, không mất đi sự tinh tế, ấn tượng trong bản mẫu mà còn toát lên được sức hấp dẫn, nâng cao tính thẩm mỹ cho toàn ngôi nhà.
Chỉ cần bỏ ra 600 triệu, gia chủ đã có thể sở hữu một ngôi nhà khang trang hiện đại với đầy đủ nội thất và hoàn thiện mọi khâu từ thiết kế, trang trí lẫn màu sắc ấn tượng. Theo đó, mẫu thiết kế nhà 4 tầng hiện đại này sẽ bao gồm 3 phòng ngủ và 1 phòng khách, 2 phòng vệ sinh 1 phòng chung và 1 phòng riêng cũng được sắp xếp hợp lý và thuận tiện.
Bản vẽ chi tiết của mẫu thiết kế nhà cấp 4 kinh phí xây dựng 600 triệu
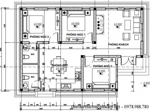
Sau khi xem qua tổng thể ngôi nhà sau khi được hoàn thiện, chúng tôi xin giới thiệu cụ thể hơn bản thiết kế chi tiết nhà cấp 4 hiện đại. Mẫu nhà này sẽ bao gồm 1 phòng khách, 3 phòng ngủ, 1 phòng bếp, 2 phòng vệ sinh.

Bản vẽ mặt tiền hướng Nam

Bản vẽ mặt tiền nhìn từ hướng tây

Bản vẽ mặt bằng
Vì phần hướng Đông của căn nhà là phần đất xây dựng từ đường họ nên khu vực vệ sinh và nhà bếp được đặt hết tại hướng Tây cách xa nhà thờ họ.
Các phòng ngủ sẽ được phân chia theo từng không gian riêng và dành cho mỗi cá nhân cụ thể trong gia đình. 2 phòng vệ sinh cũng được sắp xếp sao cho thật thuận tiện và thẩm mỹ nhất, 1 phòng dành cho cả gia đình sinh hoạt chung còn 1 phòng được bố trí trong phòng ngủ riêng góp phần tạo sự riêng tư, thoải mái.
Đối với những gia đình yêu thích sự đơn giản, thoải mái thì đây chắc hẳn sẽ là sự lựa chọn đáng để cân nhắc. Bởi ngoài sự tiện nghi ngôi nhà đẹp này còn toát lên vẻ đẹp trang nhã, nhẹ nhàng mang lại cảm giác bình yên cho các thành viên.
Nguồn: thietkethicongnhadep.net
Xem thêm tin:
Mẫu nhà cấp 4 có 3 phòng ngủ 1 phòng thờ
































