Phong cách đơn giản, thiết kế hình chữ L mới lạ và độc đáo là những gì có thể thấy qua mẫu thiết kế nhà cấp 4 dưới đây. Với mong muốn sở hữu một không gian thuận tiện và có tính thẩm mỹ cao, nhiều gia chủ đã tìm đến chúng tôi và hoàn toàn hài lòng với những bản mẫu thiết kế được giới thiệu. Một trong số đó là mẫu nhà cấp 4 mái thái hình chữ L diện tích 9x13m.
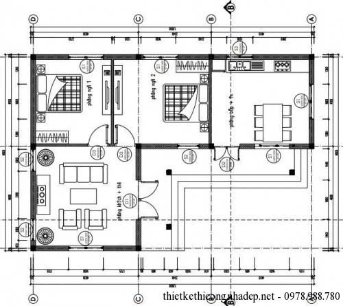
* Công năng sử dụng:
- 1 phòng khách + phòng thờ
- 2 phòng ngủ
- 1 phòng bếp + phòng ăn
- Nhà vệ sinh xây riêng biệt bên ngoài
Phối cảnh tổng thể mẫu nhà cấp 4 mái thái hình chữ L xây dựng trên diện tích 117m2
Nhìn từ bên ngoài, dễ dàng nhận thấy đây là ngôi nhà có kiến trúc đơn giản, theo phong cách nhẹ nhàng tinh tế. Không có quá nhiều chi tiết rườm rà, phức tạp tổng thể là một bức tranh hài hòa với sự pha trộn của những đường nét phá cách và màu sắc trang nhã, thanh lịch. Phần mái thái hiện đại chính là một trong những yếu tố quan trọng làm tăng sự ấn tượng của mẫu thiết kế này.

Đối với người dân ở những vùng quê bình yên thì mẫu thiết kế nhà đẹp này là hoàn toàn phù hợp và đáp ứng được mong muốn của phần lớn mọi người. Bởi trong bối cảnh của chốn quê thanh bình, những ngôi nhà nhẹ nhàng, đơn giản và đầy gần gũi này sẽ góp phần vun vén tình yêu thương, mang lại cảm giác hạnh phúc, thanh thản.

Nhìn tổng thể căn nhà từ trên cao, dễ dàng nhận thấy được điểm nhấn của thiết kế này chính là phần mái thái hình chữ L. Theo đó, các phòng ốc trong căn phòng cũng sẽ được bố trí hợp lý theo không gian của toàn căn hộ. Một trong những sự khác biệt dễ thấy chính là sự tách biệt giữa gian nhà chính và gian nhà phụ. Nếu gian nhà chính bao gồm phòng khách và phòng ngủ thì gian phụ sẽ có 1 phòng ngủ và phòng ăn. Theo yêu cầu của gia chủ, nhằm ngăm sự ám tránh mùi đồ ăn, phần nhà bếp và phòng ăn sẽ là là không gian riêng biệt.
Công trình này sẽ được xây dựng thêm phần sảnh hiên. Phần này sẽ được lợp theo kiểu nhà mái thái đẹp, vừa hợp với xu thế vừa nâng cao tính thẩm mỹ cho toàn bộ ngôi nhà. Xây dựng ngôi nhà theo mô hình trên, các nhà thiết kế đã nghiên cứu kỹ lưỡng để phân chia độ rộng của các sảnh, theo đó sảnh chính là 1,6 m, phần sảnh đuôi chữ L là 1,37m.

Mặt bằng tổng thể

Mặt đứng trục D-A

Mặt đứng trục 1-3

Mặt bằng nhà cấp 4
Với tổng chi phí xây dựng ngôi nhà là 550 triệu bao gồm cả sân làm gạch giếng đáy, tường vây cho cả lô đất 9.9x20m. Con số này là hoàn toàn phù hợp bởi hầu hết mọi vật liệu đều được chăm chút lựa chọn và đạt chất lượng tốt nhất, đồng thời chi phí thi công cao do yêu cầu về độ chính xác cũng như sự hoàn mỹ tối đa cho công trình. Đối với những gia chủ muốn tiết kiệm chi phí xây dựng thì có thể cân nhắc đến phương án làm hệ thống khung mái (vì, kèo) bằng khung sắt V hay sử dụng mái tôn.
Trên đây là một trong số rất nhiều những thiết kế nhà cấp 4 ấn tượng và độc đáo mà chúng tôi muốn gửi đến quý khách hàng quan tâm. Để có thể lựa chọn cho mình một ngôi nhà phù hợp, vừa đáp ứng được yêu cầu cơ bản của cá nhân, vừa thể hiện được phong cách và có độ thẩm mỹ cao, quý khách hàng hoàn toàn có thể tham khảo những mẫu thiết kế này.
Nguồn: thietkethicongnhadep.net
Xem thêm:
Mẫu nhà cấp 4 có 3 phòng ngủ 1 phòng thờ
































