Bài viết dưới đây chúng tôi xin giới thiệu đến quý khách hàng mẫu thiết kế biệt thự 3 tầng mái thái hiện đại . Hy vọng đây sẽ là một gợi ý tuyệt vời dành cho những ai đang mong muốn sở hữu một ngôi nhà dành riêng cho mình
Tổng quan công trình:
- Diện tích lô đất 13.78 x 21,25 = 292, 825 m2
- Diện tích xây dựng là: 13.23 x 16.57 = 219.22 m2
- Mật độ xây dựng 74.86%
Phối cảnh và nội thất thiết kế biệt thự 3 tầng mái thái hiện đại
Khi nhắc đến biệt thự người ta dễ dàng nghĩ ngay đến một ngôi nhà đồ sộ, nguy nga và tráng lệ. Do vậy ngay từ ánh nhìn đầu tiên phối cảnh biệt thự 3 tầng đẹp hiện đại đã mở ra một không gian vô cùng bắt mắt và hoành tráng. Với thiết kế mái Thái ấn tượng, công trình càng tạo được sức hấp dẫn, chắn chắn sẽ là nơi mọi người trong gia đình có thể an tâm tận hưởng cuộc sống.

Tổng quan căn biệt thự 3 tầng mái thái mang lối kiến trúc hiện đại
Thiết kế biệt thự theo phong cách truyền thống pha trộn sự hiện đại, không quá cầu kỳ trong chi tiết nhưng lại nghiên cữu rất kỹ để bố trí các không gian sao cho hợp lý, thuận tiện. Tận dụng tối đa ánh sáng tự nhiênbằng việc lắp đặt khá nhiều ô cửa sổ, theo đó sử dụng vật liệu gỗ góp phần tạo nên sự đẳng cấp, sang trọng cho ngôi nhà.

Hình ảnh nội thất bên trong căn biệt thự
Là không gian được gia chủ đặc biệt chú trọng, do vậy phòng ăn sẽ được thiết kế sao cho hợp phong thủy, phù hợp với yêu cầu của khách hàng nhưng vẫn toát lên được vẻ sang trọng, đặc sắc. Chất liệu gỗ hầu như được sử dụng xuyên suốt trong ngôi nhà, kết hợp hài hòa với tone màu nền đẳng cấp góp phần tạo dựng không gian ấn tượng, bắt mắt. Các nội thất được bố trí hợp lý với điểm nhấn là bộ bàn ăn đẹp nằm ngay trung tâm.
Chi tiết bản vẽ mặt bằng các tầng mẫu biệt thự 3 tầng mái thái

Bản vẽ mặt bằng tổng thể
Chú trọng đến vấn đề thẩm mỹ và góp phần nâng cao sức khỏe cho các thành viên trong ngôi nhà, các khoảng không gian xung quanh biệt thự đều được thiết kế sân vườn và hồ sen bể cá. Điểm nhấn này không những mang lại cảm giác thích thú khi được đắm chìm trong không gian xanh mát của thiên nhiên mà còn góp phần điều hòa không khí cho toàn bộ căn nhà, đưa sắc xanh hòa quyện cùng tone màu nền ấn tượng.

Bản vẽ mặt bằng tầng 1
Ngay sau phần tiền sảnh đi vào chính là phòng khách. Tiếp nối không gian là 1 phòng bếp và phòng ăn được bố trí hợp lý. Điều đặc biệt của thiết kế này chính là phân tách 2 không gian, 1 phòng ăn trong nhà và 1 phòng ăn ngoài trời. Phòng ăn phía ngoài sẽ được sử dụng trong trường hợp gia chủ muốn tổ chức các hoạt động vui chơi, ăn uống ngoài trời. 1 phòng ngủ nữa sẽ được xây dựng tùy vào mục đích của gia chủ mà sử dụng.

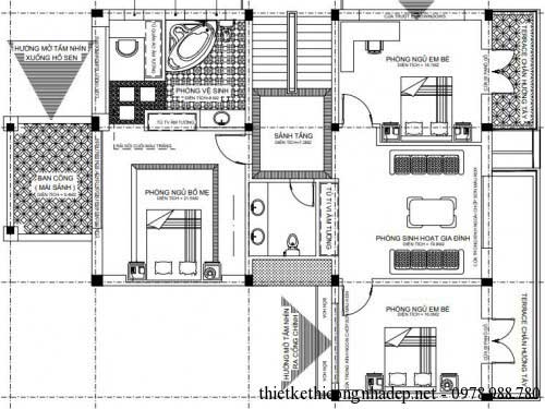
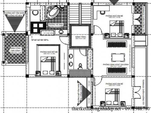
Bản vẽ mặt bằng tầng 2
Mặt bằng tầng 2 sẽ bao gồm 3 phòng ngủ và 1 phòng sinh hoạt chung cho cả gia đình. 1 phòng vệ sinh riêng sẽ được bố trí trong phòng ngủ của bố mẹ, 2 phòng ngủ dành cho con cái còn lại sẽ dùng chung một phòng vệ sinh riêng.

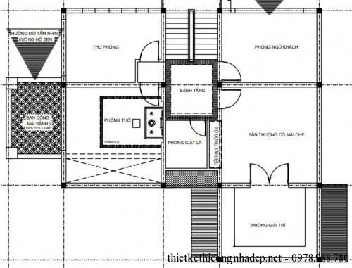
Bản vẽ mặt bằng tầng 3
Với ưu thế không gian rộng lớn nên mặt bằng tầng 3 sẽ xây dựng thêm 1 phòng ngủ dành cho khách, 1 không gian để giải trí đọc sách, 1 thư phòng và 1 phòng thờ, 1 phòng giặt. Phần sân thượng có mái che sẽ là nơi rất thích hợp để gia chủ tận dụng làm nơi phơi đồ.
Nguồn: thietkethicongnhadep.net
































