Hiện nay, ở vùng thôn nước ta nhu cầu cải tạo nhà ở cấp 4 nông thôn đẹp hiện đại đang ngày càng lớn. Không cần phải đập đi xây mới hoàn toàn mà phương án cải tạo nhà cấp 4 ở nông thôn cũng là quyết định đúng đắn, vừa tiết kiệm kinh phí mà vẫn được ngôi nhà đẹp như mong ước.
Trong bài viết hôm nay, chúng tôi xin gửi tới tất cả các quý vị và các bạn mẫu bản vẽ thiết kế cải tạo, cải tạo nhà ở cấp 4 đẹp vùng nông thôn. Đây sẽ là ngôi nhà cải tạo điển hình để các bạn có thể tham khảo và lấy làm tư liệu cho mình. Đối với nhà cấp 4 không cần phải thay đổi quá nhiều, chỉ cần có mẫu cải tạo chung chung, chúng ta có thể dựa vào đó để chính mình làm nên bản thiết kế riêng cho ngôi nhà của mình.
Nhiều bạn có thể vẫn thắc mắc, cải tạo nghĩa là gì? Cải tạo nghĩa là làm cho chất lượng thay đổi về căn bản, theo hướng tốt, áp dụng vào trường hợp này, cải tạo nhà ở tức là làm thay đổi ngôi nhà để nó đẹp hơn, mới hơn. Nhiều người không hiểu rõ nghĩa dễ xảy ra những suy nghĩ lệch lạc trong suy nghĩ và hiểu sai vấn đề.
Mẫu cải tạo nhà ở cấp 4 nông thôn đẹp hiện đại
Chúng tôi sẽ giới thiệu đến các bạn ngôi nhà của chủ đầu tư đó là anh Quân, địa điểm xây dựng ở vùng nông thôn của tỉnh Thanh Hóa, với tổng giá trị cải tạo chỉ khoảng 300 triệu. 300 triệu là số cụ thể, có thể cao hơn hoặc thấp hơn nhưng không đáng kể, nhưng chúng tôi chắc chắn chỉ với 300 triệu anh sẽ có một ngôi nhà hơn cả mong đợi.

Phối cảnh 3D nhà cấp 4 nông thôn
Sau đây là mẫu bản vẽ cad thiết kế cải tạo sửa chữa lại nhà cấp 4 ở nông thôn của anh Cần với thiết kế 3 phòng ngủ, 1 phòng khách, 1 phòng bếp và ăn, 1 phòng đọc sách, và chủ đầu tư là anh Quân.

Phối cảnh nhà cấp 4
Mẫu nhà này được cải tạo từ nhà cấp 4 ngày xưa với 3 gian thông thường bao gồm gian ở giữa khu vực chính để tiếp khách và nơi thờ cúng, 2 gian 2 bên kê 2 chiếc giường và để tủ, tivi trang trí cho ngôi nhà. Anh muốn cải tạo để ngôi nhà rộng hơn, không gian thoải mái hơn phục vụ sinh hoạt và sản xuất.
Chúng tôi đã quyết định cải tạo và xây dựng mới thêm một phần, giữa 2 căn nhà là khu vực hành lang đi lại. Diện tích của căn nhà cũ là 5.4 x 9.7 mét, diện tích của căn nhà mới là 7 x 8 mét. Rộng và tiện nghi hơn rất nhiều, sau khi xây thêm và chỉnh sửa ngôi nhà, sơn màu tươi mát, tạo độ thoáng khiến ngôi nhà đẹp hơn rất nhiều.

Hiện trạng nhà cấp 4 sau khi thi công
Hiện nay, mẫu nhà cấp 4 này đã gần như hoàn thiện và đã đưa vào sử dụng, tuy nhiên vẫn chưa hoàn thiện phần sơn vì không kịp tiến độ để đón tết Nguyên Đán nên gia chủ chưa kịp thi công phần này. Rất may mắn là sau khi hoàn thiện đưa vào sử dụng anh Quân đã chụp lại và gửi cho chúng tôi để các bạn có thể tham khảo mẫu nhà này. Các bạn có thể tham khảo bằng hình ảnh đính kèm dưới đây nhé.

Nhà cấp 4 khi chưa thi công sơn
Trong mẫu cải tạo nhà cấp 4 này gia chủ chưa hoàn thiện xong nên chúng tôi sẽ gửi tới các bạn hình ảnh khi hoàn thiện phần thô xong. Nếu có điều kiện chúng tôi sẽ gửi tới các bạn mẫu hình ảnh khi hoàn thiện nhà này.

Mặt bằng cải tạo

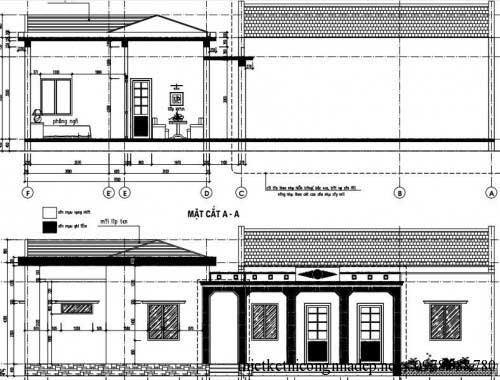
Mặt cắt A-A và mặt đứng trục F-A

Mặt cắt D-D

Mặt đứng nhà mới trục 1-3

Mặt bằng mái xây mới và cải tạo
Chúng tôi là địa chỉ uy tín hàng đầu trong thiết kế Thi công Nhà đẹp. Với phương châm ” khách hàng là ông chủ duy nhất”, chúng tôi luôn đặt ra mục tiêu đặt lợi ích của khách hàng lên trước hết và mong muốn tất cả mọi người đều có được 1 căn nhà ưng ý và hạnh phúc dù nhiều hay ít. Với nhiều năm trong lĩnh vực thiết kế, thi công trọn gói nhà, chúng tôi sẽ không ngừng cố gắng để mang đến những sản phẩm tốt nhất. Nếu bạn cần bản vẽ cải tạo nhà ở cấp 4 nông thôn đẹp hiện đại, đừng quên hãy gọi cho chúng tôi để nhận được sự tư vấn tốt nhất nhé.
Nguồn tin: https://thietkethicongnhadep.net/
Xin mới quý đọc giả cùng đón xem những mẫu thiết kế nhà cấp 4 hot nhất hiện nay: https://xaydungso.vn/mau-nha-dep/nha-cap-4-dep


































