Thiết kế căn nhà cấp 4 phong cách mái thái vẫn chưa có dấu hiệu ngừng "nóng", bởi vì đây là một dự án bắt mắt và ấn tượng, chi phí không quá đắt đỏ . Bài viết sau đây chúng tôi tiếp tục giới thiệu đến khách hàng mô hình nhà cấp 4 mái thái xây dựng tại Tây Ninh trên quỹ đất 7x18m. Mặc dù thiết kế có nhiều điểm tương đồng với các bản vẽ khác, nhưng nó vẫn thể hiện phong cách và dấu ấn riêng.
Thiết kế nhà cấp 4 này được xây dựng tại Tây Ninh và là dự án chỉ dành cho gia đình anh Lâm sống ở khu vực này. Mặc dù thiết kế khá quen thuộc nhưng không gian trong không gian này có chút khác biệt do nhu cầu của chủ nhân không nhiều. Theo đó, đáp ứng yêu cầu của khách hàng, chúng tôi đã thiết kế một ngôi nhà cấp 4 với 2 phòng ngủ riêng, 1 phòng thờ, bếp và phòng ăn và 2 nhà vệ sinh tiện nghi.
Phối cảnh mẫu nhà cấp 4 mái thái 7x18m

Ngôi nhà xuất hiện rộng rãi và tinh tế với tông màu nền trắng đẹp và nhẹ nhàng. Kiến trúc không gian ấn tượng bởi gạch ốp tường và sa thạch đen trang trí cho cầu thang. Thiết kế của ngôi nhà 4 tầng này gây ấn tượng bởi mái nhà Thái tập trung vào xây dựng và đòi hỏi giai đoạn xây dựng phức tạp và phức tạp để tôn vinh vẻ đẹp và sự quyến rũ của biệt thự này.

Mặt tiền của mô hình cấp 4 sẽ được tô điểm bởi hệ thống cửa sử dụng kính nhôm màu nâu sẫm huyền bí và sang trọng. Thiết kế mái thái đẹp lợp ngói màu xanh tạo điểm nhấn nổi bật cho toàn bộ công trình.
Bản vẽ thiết kế nhà cấp 4 mái thái đẹp diện tích 7x18m

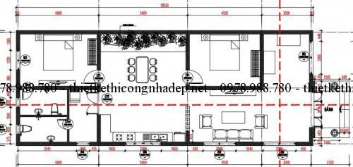
Bản vẽ mặt bằng
Một điểm đặc biệt trong thiết kế nhà cấp 4 là phòng thờ sẽ được đặt ở phía bên ngoài với diện tích tối giản chỉ 9m2. Phía sau phòng thờ sẽ là phòng ngủ đầu tiên, phòng ngủ thứ hai sẽ được bố trí gọn gàng ở cuối thiết kế biệt thự. Không gian cũng bao gồm phòng ăn và nhà bếp, nằm ở trung tâm của ngôi nhà. Bên cạnh phòng ăn, một khu vực cảnh quan nhỏ với thác nước hoặc cảnh quan sẽ được xây dựng để tạo điểm nhấn, mang lại sự tươi mới và tươi mát cho toàn bộ biệt thự. Tùy thuộc vào sở thích của chủ nhà, trang trí khu vực này là thuận tiện và bắt mắt nhất.

Tiểu cảnh khu vực phòng ăn
Đây là khu vực tạo không khí thoáng mát, thu hút người xem và tăng sự tươi mới cho ngôi nhà. Theo đó, phần trên của mái nhà sẽ là tôn trong suốt để làm sáng khu vực ăn uống và tạo độ sáng cho toàn bộ không gian ở phía dưới. Yếu tố này được xây dựng để mang lại cuộc sống hài hòa với thiên nhiên, tiết kiệm năng lượng cho gia đình.

Bản vẽ mặt bằng mái
Để tiết kiệm chi phí cho thiết kế này, mái nhà sẽ được ốp màu đồng tâm và khung thép mái được bố trí thép hộp. Đằng sau bề mặt mái được cắt 1 phần để làm mái tôn cho phòng ăn, trong khi phần đuôi của mái sẽ xây một mái bằng để đặt bể nước phục vụ cuộc sống hàng ngày của gia đình. Để tạo ra một trần nhà mát mẻ sẽ làm trần thạch cao hoặc nhựa, trần gỗ tùy thuộc vào khả năng và sở thích của chủ sở hữu.
Nhà mẫu được thiết kế theo phong cách kiến trúc của nhà mái thái 1 tầng trên diện tích 7x18m và 2,5m sảnh. Chi phí ước tính để hoàn thành dự án là 500 triệu đồng. Hy vọng bản vẽ này sẽ là một gợi ý cho khách hàng quan tâm để tham khảo.
Nguồn tin: https://thietkethicongnhadep.net/
Xem thêm tin:
- Mẫu nhà cấp 4 diện tích 7x20m
- Mẫu nhà cấp 4 mái thái hình chữ L
- Mẫu nhà cấp 4 mái thái 8x12m chỉ với 500 triệu


































