Việc xây dựng ngôi nhà đẹp với kích thước 60m2 đang nhận được rất nhiều sự quan tâm từ mọi gia đình từ thành thị, nông thôn và cả vùng ngoại ô khi diện tích đang dần hạn hẹp từ việc dân số gia tăng theo thời gian. Có thể nói, đây là một diện tích khá phù hợp cho thiết kế nhà ống với phần chiều dài đặc trưng. Việc xây dựng nhà ống ngày nay hướng đến mục đích cho môi trường sống vô cùng thuận tiện và thoải mái khi công năng sử dụng ngôi nhà, phù hợp với túi tiền với nhiều gia đình.

Nhiều năm trở lại đây, các kiến trúc từ thiết kế nhà ống đang dần có xu hướng gia tăng với rất nhiều kiểu dáng tạo hình khác nhau. Kèm the là các kiến trúc mang tính phá cách được tích hợp giữa hiện đại và cổ điển một cách hoàn hảo càng làm cho các công trình thêm đa dạng hơn rất nhiều. Mang đến cho người xem cũng như chủ đầu tư với một góc nhìn mới mẻ hơn.
Tham khảo qua các thiết kế đẹp của năm 2021 với diện tích 60m2 từ nhà ống 1 tầng :
Mang đến cho người xem một nét đẹp đặc trưng riêng từ dòng kiến trúc nhà ống với các dáng vẻ từ khỏe khoắn cho đến mềm mại, đặc biệt là việc bộc phát lên nét sang trọng từ các đường nét trang trí mang đậm phong cách của chủ đầu tư muốn hướng đến. Mà còn là sự thể hiện thông qua các đường nét, đường chỉ, phù điêu, hoa văn trang trí khác nhau ở phía ngoài của phần mặt tiền . Tất cả phải toát lên một sự sang trọng, trang nhã, mang lại cảm nhận về sự đẳng cấp hay lịch lãm là điều mà các chủ đầu tư luôn hướng đến. Với các kiến trúc phía dưới sẽ mang đến cho quý vị một góc nhìn chân thực nhất.
1.Thiết kế nhà ống đẹp từ diện tích 60m2 từ phong cách hiện đại :
Ngày nay, thì các gia chủ ưu tiên cho việc xây nhà tại các đô thị hay thành phố với phong cách hiện đại. Bởi phong cách nhà ống này rất phù hợp với những thửa đất có diện tích mặt tiền nhỏ mà có thể dễ dàng thể hiện bên ngoài mặt tiền với các chi tiết trang trí. Vì thế thiết kế nhà ống khoa học, áp dụng sự đổi mới từ xu hướng hiện đại có thể được coi là hướng đi mới dành cho các cặp vợ chồng trẻ hoặc những gia chủ đang sở hữu tại các thành phố hiện nay.

Dường như phong cách hiện đại từ phối cảnh của ngôi nhà này đã vô tình làm nhiều người phải thay đổi đi quan niệm xưa cũ bằng một sự thay đổi trong kiến trúc mang lại sự đẳng cấp cho công trình. Đi theo một hình thể khoa học từ các khối hộp, cùng với những đường nét tối giản và không quên phá cách bằng các chi tiết trang trí, hệ thống đan xen từ các chức năng đã phối hợp nhịp nhàng với nhau theo một cách rất riêng. Ở công trình nhà phố này dường như cho ta thấy được một sự biến hóa từ 2 gam màu trắng đen khi kết hợp với nhau đã làm nên thành công nhất định cho ngôi nhà để mang đến cho chủ đầu tư.

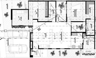
Với diện tích nhỏ phía trước gia chủ đã tích hợp cho mình với một căn phòng với mục đích kinh doanh. Đi vào ngôi nhà là một không gian mở khi phòng master có đầy đủ các chức năng sinh hoạt với phòng khách, nhà bếp, bàn ăn kèm 1 nhà vệ sinh. Nằm sau gian phòng kinh doanh là 2 phòng ngủ và được ngăn cách bằng 1 nhà vệ sinh và 1 nhà tắm rộng rãi. Phía sau còn là một khoản sân vườn nhỏ dành cho mục đích khác nhau từ gia chủ đã được thông qua từ chủ đầu tư và đây cũng là diện tích mà họ muốn tăng không gian sử dụng bên ngoài một cách tiện nghi nhất.

Kế tiếp là mặt cắt ngang của ngôi nhà khi bạn có thể thấy được các chức năng bên trong từ phòng master để điều chỉnh đến các vị trí khác nhau mà dựa theo việc sử dụng với mục đích tiện nghi và phù hợp nhất. Dựa theo các tư liệu này, bạn có thể hoàn toàn tự tin đảm nhận công việc giám sát cho công trình ngôi nhà của gia đình kèm theo là những kinh nghiệm trong lĩnh vực nhằm mang đến một hiệu quả cao nhất.
2. Thiết kế mẫu nhà ống 2 sang trọng với diện tích 6x10m từ xu hướng 2021 :
Theo các bước để xây dựng được một ngôi nhà đúng theo với các quy trình. Thì đầu tiên phải có một bản vẽ thiết kế nhà ống. Thể hiện đầy đủ các chức năng bên trong đang dần được coi là việc quan trọng trước khi bắt đầu xây dựng nhà đối với nhiều người. Hiệu quả của chúng không chỉ giúp căn nhà trở nên đẹp mắt, bố trí theo một công năng hợp lý, thể hiện được phong cách thẩm mỹ của gia chủ. Mà nó còn giúp chủ nhà tiết kiệm được thời gian, công sức và tiền bạc nữa.

Với nguồn chi phí có phần thoải mái thì việc tìm đến với kết cấu từ 2 tầng là một phương án khả quan khi bạn và gia đình có thể sử dụng một cách tiện nghi nhất. Dựa trên 2 mặt bằng mà có thể phân bổ các chức năng một cách cụ thể, mà theo bản vẽ phía trên bạn có thể thấy không gian một cách chân thực nhất với tầng trệt gồm : 1 nhà bếp, 1 phòng khách vô cùng thoải mái và phía sau là một khoảng sân rộng có thể sắp xếp 1 bàn ngồi thư giãn. Và mặt bằng tầng 2 với : 2 phòng ngủ, 2 nhà vệ sinh được dẫn lên bằng một cầu thang nằm chếch sang bên trái ngôi nhà. Tất cả như được sắp xếp theo một tổ chức khoa học, đề cao tính tiện dụng và tiện nghi với mọi vật liệu thông minh mà gia chủ đã áp dụng.

Để thiết kế được một ngôi nhà hoàn chỉnh, kiến trúc sư đã sử dụng khả năng và kinh nghiệm trong lĩnh vực đã khắc họa lên sự hiện đại từ những giá trị riêng biệt. Nhà ống đẹp 2 tầng đã khắc họa gu thẩm mỹ, nhu cầu và yêu cầu của chủ nhà khi lựa chọn phong cách xây dựng ngôi nhà. Tiếp đó, có thể nhấn mạnh đến kiến trúc đã được tính toán chi tiết từ kết cấu, với hình dàng, cả kích thước và không quên tính toán khả năng chịu lực của các bộ phận để hạn chế tình trạng sụt lún, rạn nứt tường sau thời gian dài sử dụng.

Phối cảnh tiếp theo đã khắc họa chân thực nhất về ngôi nhà khi đây có thể là một phương án hiệu quả cho nhu cầu tận dụng không gian mở. Hệ thống nhà bếp được nằm ra hẳn bên ngoài, một không gian mới được mở ra với sự hiện đại, tiện lợi, thuận tiện trong việc phân chia các chức năng chung và riêng hay nhu cầu sinh hoạt ăn uống, nghỉ ngơi được tách biệt hiệu quả.
3. Thiết kế nhà ống dựa theo sở thích hay công năng từ diện tích 60m2 từ một số phối cảnh tư xaydungso.vn tư vấn :
Bất cứ ai, bất cứ gia đình đều mong muốn sở hữu một ngôi nhà tiện nghi nhất đúng theo mục đích hay cả công năng riêng. Dựa trên những tiêu chí trên mà bạn có thể tìm đến các kiến trúc sư với kinh nghiệm lâu năm hoặc các kiến trúc sư trẻ nhằm khai thác sự sáng tạo của họ một cách hiệu quả nhất. Nếu bạn và gia đình đang tìm kiếm ý tưởng thiết kế và trang trí không gian sống hiện đại tiện nghi thì chúng tôi khuyên bạn không nên bỏ qua thiết kế tiếp theo này.

Sau khi đã có cho mình với bản thiết kế với những tính toán chi tiết nhất, thì các chủ đầu tư nên nhờ sự tư vấn từ kiến trúc sư về các phương án thi công và các loại vật tư xây dựng chất lượng nhằm cân đối chi phí một cách tốt nhất. Từ đó mà gia đình bạn có thể tính toán số lượng tương đối chính xác. Ngoài ra, có thể tìm kiếm đến phương án từ hạng mục xây nhà trọn gói từ các đơn vị xây dựng.

Thiết kế từ ngôi nhà ống mang đến sự tinh tế từ các điểm nhấn mới lạ từ các hình khối đảm bảo chính xác về kích thước, công năng, phù hợp với diện tích đất mà chủ đầu tư sở hữu. Sự thành công còn đến từ màu sắc phối hợp nhịp nhàng đánh bật công trình lên so với các thiết kế cạnh bên. Gia chủ khá hài lòng về những gì mà các kiến trúc sư mang đến, từ bố cục bên trong, từ phối cảnh mặt tiền mà cả những giá trị khác nhau.

Thiết kế tiếp theo là một sự hiện đại mà kiến trúc sư đã mang đến cho chủ đầu tư như nhấn mạnh những giá trị từ xu hướng hiện đại ngày nay. Nhằm tạo nên sự đa dạng cho kiến trúc từ tối giản cho đến hiện đại mà mọi người có thể tham khảo hoặc trực tiếp liên hệ với chúng tôi để nhận được báo giá cụ thể nhất từ đội ngũ tư vấn, các thắc mắc sẽ được giải đáp một cách đầy đủ. Rất hân hạnh được phục vụ và hợp tác với quý khách hàng !
Phía trên là một số tư liệu hiệu nhằm mang đến cho các quý độc giả và khách hàng về góc nhìn chân thực nhất từ các thay đổi từ nhà ống. Chúc mọi người có một ngôi nhà đẹp tiện nghi nhất, hiện đại nhất phục vụ cho mục đích sinh sống. Xin chào và hẹn gặp lại trong các bài viết tiếp theo từ xaydungso.vn.
Xem thêm :





![Mẫu nhà ống 7x12m hiện đại, tiện nghi [Kèm bản vẽ thiết kế]](/img.php?url=https%3A%2F%2Fxaydungso.vn%2F%2Fimg%2Fposts%2Fa584a0-200x160-2.jpg)

![[Top thiết kế nhà đẹp 2024] Nhà ống với mức giá 800 triệu](/img.php?url=https%3A%2F%2Fxaydungso.vn%2F%2Fimg%2Fposts%2Fa604a0-200x160-2.jpg)


























