Việc chọn cho mình với một công trình từ kết cấu 1 hoặc 2 tầng với đơn giá 700 triệu được xem như lựa chọn mang đến khả năng sử dụng cho các ngôi nhà khi. Với kết cấu 1 tầng có thể tiết kiệm chi phí một cách hiệu quả và kết cấu 2 tầng có thể khai thác được nét sang trọng với chức năng được phân chia một cách cụ thể với hiệu quả cao. Nếu bạn đang có nhu cầu như trên bạn sẽ chọn cho mình với thiết kế nào ?

Đây có thể là một điều đáng suy nghĩ với các chủ đầu tư khi 2 phương án trên đều mang đến ưu điểm riêng và hạn chế riêng. Nếu như chúng làm cho bạn phải suy nghĩ quá nhiều thì hãy để Xaydungso.vn mang đến với 2 thiết kế từ thông tin phía trên nhằm đưa ra một hướng giải quyết tốt nhất cho công trình của bạn nhé, hy vọng chúng sẽ là một nguồn tư liệu bổ ích dành cho mọi người.
Lựa chọn cho mình với 2 thiết kế từ kiến trúc nhà ống 1 và 2 tầng :
Phần quan trọng nhất mà bạn nên nghĩ đến chính là lối bố trí các chức năng bên trong nội thất khi không cần suy nghĩ quá nhiều đến kết cấu từ 1 hay 2 tầng. Các thay đổi từ kiến trúc ngày nay đã và đang mang đến cho người sử dụng với các tiện ích khác nhau ngoài việc bám sát vào bản vẽ thiết kế mà bạn hoàn toàn có thể sáng tạo từ kinh nghiệm riêng của mình để công trình hoàn thiện hơn. Mặt khác, diện tích cũng ảnh hưởng khá nhiều đến việc lựa chọn này. Bởi các diện tích nhỏ hẹp có thể sẽ là bất lợi cho công trình 1 tầng mà bạn cần có một hướng đi đúng đắn nhất. khi các diện tích từ thửa đất rộng mà xây dựng theo kết cấu 2 tầng thì sẽ làm tốn khá nhiều chi phí xây dựng. Điều đáng lưu ý ở dây chính là việc linh động trong cả hình thức xây dựng lẫn nhu cầu và sở thích để đưa ra một kiến trúc phù hợp nhất.
1. Hồ sơ thiết kế nhà ống 1 tầng với đơn giá 700 triệu :
- Dự án thiết kế : mẫu nhà ống 1 tầng
- Địa chỉ : thành phố Hồ Chí Minh
- Thời gian thi công: ~ 4 tháng.
Lựa chọn này có thể là phương án khả quan cho một diện tích xây dựng lớn mà bạn có thể hoàn toàn làm nên một không gian sống tiện nghi khi chức năng sinh hoạt đủ để chứa các chức năng sinh hoạt thiết yếu. Với một lối sắp xếp khoa học, thiết kế phù hợp thì ngôi nhà sẽ trở nên hoàn hảo hơn bao giờ hết.
A.Phối cảnh nhà ống đẹp từ hệ thống sân vườn, kiến trúc, phong cách tạo hình, trang trí với đơn giá 700 triệu

Từ phối cảnh mặt sau của ngôi nhà, ta có thể hình dung được gia chủ mong muốn có được nét khác lạ từ hệ thống sân vườn bao quanh kiến trúc. Đó là một sự tươi mới từ màu sắc khi không gian được hiện lên với một khoản xanh thơ mộng, là nơi mà bạn có thể thoải mái thư giãn sau thời gian hoạt động bên ngoài. Đường dẫn vào ngôi nhà là các bậc thang chắc chắn, mà còn là một diện tích trải sàn gỗ được đặt cạnh ngay ngôi nhà làm nơi thư giãn hiệu quả.

Trở lại với kiến trúc từ phối cảnh thứ 2, nhà đạt được sự hiện đại khi kết hợp với hệ thống mái thái sang trọng làm tăng khả năng chống nóng một cách hiệu quả mà còn tô điểm mạnh mẽ từ màu sắc với một dáng vẻ riêng. Nhà có kết hợp gara chứa xe bên trong bố cục như khẳng định về giá trị khi phô diễn cho mọi người khi đi ngang đều thấy rõ. Là nét chấm phá từ màu sắc của gỗ tự nhiên kết hợp với trang trí làm nên sự đồng bộ mà còn giá trị hơn.

B.Bản vẽ ngôi nhà 1 tầng với đơn giá 700 triệu hiện đại với kết cấu 4 phòng ngủ :
Là một phần không thể thiếu cho các kiến trúc, chúng như một phương án để mọi cá nhân thực hiện thi công có thể hiểu được kiến trúc được đình hình như thế nào, diện tích như thế nào và các chức năng nằm ở vị trí nào để có thể điều chỉnh một cách phù hợp nhất.

Thông qua bản vẽ mà bạn có thể nhận diện các chức năng bên trong ngôi nhà với : Gara để xe nằm ở phía mặt tiền, dẫn vào không gian bên trong là hệ thống cửa ra vào với gian nhà nằm phía bên tay trái với 1 nhà bếp 1 bàn ăn kèm theo là 1 phòng khách có hướng nhìn ra phía sân vườn. Với gian nhà tiếp theo là sự kết hợp với 4 phòng ngủ kèm theo các tiện ích bên trong như thể hiện được đầy đủ sự tiện nghi từ, hiện đại, với một âm hưởng hoàn toàn riêng.
Theo đánh giá ngôi nhà này có nét tạo hình và chức năng không khác gì một mẫu biệt thự nhà vườn sang trọng và thật bất ngờ khi đơn giá của chúng chỉ nằm ở mức 700 triệu. Lưu ý, phần công trình xây dựng được tính riêng và các vật dụng hay tiện ích nằm ở khoảng chi phí riêng. Dựa theo các thông tin phía trên nếu bạn hài lòng với thiết kế này có thể liên hệ với chúng tôi để nhận được sự tư vấn hỗ trợ xây dựng một cách chi tiết nhất.
2. Hồ sơ thiết kế từ ngôi nhà ống 2 tầng với đơn giá 700 triệu được chia sẻ từ Xaydungso.vn
- Dự án thiết kế : mẫu nhà ống 1 tầng
- Địa chỉ : thành phố Hồ Chí Minh
- Thời gian thi công: ~ 4 tháng.
A . Phối cảnh nhà ng hiện đại từ đơn giá 700 triệu :
Với thiết kế từ mẫu nhà 2 tầng bạn hoàn toàn có thể phân chia không gian một cách hợp lý khi diện tích có phần hạn hẹp. Mà dựa theo với lối tổ chức này của chúng tôi, gia đình bạn có thể tận hưởng được một cuộc sống tiện nghi nhất. Xua tan đi mọi nỗi lo về việc chi phí hay chúng có tiện nghi hay không, có đáp ứng được khả năng sinh hoạt cho gia đình bạn hay không. Mời mọi người xem qua thiết kế thứ 2 ngay phía dưới.

Có thể dễ dàng nhận thấy kiến trúc này nằm trong một khu dân cư tiện nghi với mức sống cao tại thành phố. Ngôi nhà đã chứng minh được giá trị của mình khi hiện diện trên một lô đất rộng với các gian nhà liền kề với sự tương đồng. Với sắc thái chủ đạo từ hai màu trắng đen, ngôi nhà 2 tầng được tạo nên từ hệ thống mái bằng, kết hợp với các hình khối đầy khỏe mạnh để có thể làm nên sự hiện đại. Mặc dù chúng chỉ là phối cảnh 3d được thiết kế từ kiến trúc sư nhưng bằng sự chuyên nghiệp của mình công trình không khác gì so với một ngôi nhà thật bằng một hình ảnh chân thực nhất.

Kế tiếp là không gian sân vườn phía sau của kiến trúc nhà ống, đã khắc họa chân thực nhất với điểm nhấn từ sân vườn rộng. Được tô điểm với một màu sắc xanh tươi, thông thông thoáng, từ sân cỏ, cây xanh, sắc hoa như đã tô điểm cho sự thành công từ tổng quan. Mà ai khi bắp gặp công trình dễ dàng bị say đắm vì thẩm mỹ mà chúng mang đến.
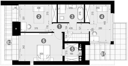
B. Thiết kế nhà ống đẹp từ bản vẽ xây dựng khắc họa chi tiết nhất cho công trình.

Với mặt bằng tầng trệt, ngôi nhà có cho mình với đầy đủ các chức năng sinh hoạt chung với các thông kê gần như đầy đủ với yêu cầu từ chủ đầu tư. Từ hệ thống cửa nhà ra vào, không gian có cho mình với 1 phòng khách, 1 nhà bếp và kèm theo là 1 bàn ăn được đặt ở một vị trí hợp lý. Kế tiếp là 1 nhà vệ sinh, các gian phòng nhỏ để chứa các vật dụng thiết yếu và dẫn lên mặt bằng thứ 2 với hệ thống cầu thang nằm cạnh nhà bếp.

Với chức năng ở kết cấu thứ 2 bao gồm 4 phòng ngủ được đặt ở các vị trí cụ thể. Các diện tích có phần thay đổi theo các gian phòng của các bé, cha mẹ hay vợ chồng từ chủ đầu tư. Tất cả như bao quát được sự hiện hữu với 1 sự tiện nghi là một giải pháp hoàn hảo cho công trình sống của gia đình kết hợp 3 thế hệ bên trong.

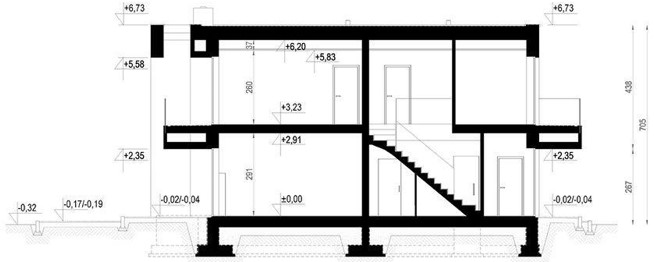
Cuối cùng là mặt cắt ngang của ngôi nhà, khi nhìn vào ảnh này các thợ xây dựng có thể khai thác được thông tin một cách hiệu quả nhất để mang đến một công trình với đầy đủ những tiện ích. Diễn đạt được các chức năng bên trong của ngôi nhà và việc tạo nên một không gian nhà đẹp cần đến rất nhiều các yếu tố khác nhau mà với bố cục luôn mang đến cho nhiều người sự ưu ái mà chúng cũng dần thích ứng theo thời gian từ sự hiện đại để công trình có thể thích ứng trong một thời gian dài.
Theo bạn, công trình nào là một lựa cho phù hợp cho gia đình bạn, đừng quên để lại cho chúng tôi những lời nhận xét và bình luận tích cực ngay phía bên dưới để như một lời động viên cho nỗ lực từ chúng tôi mang đến cho mọi người theo một cách đều đặn nhất. Chúc công trình bạn sẽ được thực hiện một cách hoàn hảo nhất, tiện nghi nhất và đây cũng là lời chào tạm biệt đến quý độc giả và khách hàng. Rất hân hạnh được hợp tác trong thời gian tới !
Xem thêm :
![Mẫu nhà ống 7x12m hiện đại, tiện nghi [Kèm bản vẽ thiết kế]](/img.php?url=https%3A%2F%2Fxaydungso.vn%2F%2Fimg%2Fposts%2Fa584a0-200x160-2.jpg)

![[Top thiết kế nhà đẹp 2024] Nhà ống với mức giá 800 triệu](/img.php?url=https%3A%2F%2Fxaydungso.vn%2F%2Fimg%2Fposts%2Fa604a0-200x160-2.jpg)































