BTS mẫu nhà phố đẹp mặt tiền 5m kiến trúc nhà đẹp 2021. Thông tin căn nhà này thuộc quyền sở hữu nhà Anh Nguyễn Văn Thái, được biết gia đình anh muốn thiết kế nhà phố 5 tầng diện với mặt tiền 5m nằm trên khu đất rộng 75m2. Sau khi đã bàn bạc với Anh Thái chúng tôi đã lên phương án phù hợp với nhu cầu sinh sống của chủ nhà.

Về việc thiết kế mặt bằng nhà đẹp 5x15m kiểu nhà phố 5 tầng chúng tôi đã bố trí khoảng không gian sân trước và bài đậu xe lùi lại 3m. Thiết kế nhà đẹp theo phong cách Châu Âu, mái bằng có sân thượng rộng rãi làm nơi thư giản và vui chơi ngoài chơi dành cho gia chủ.
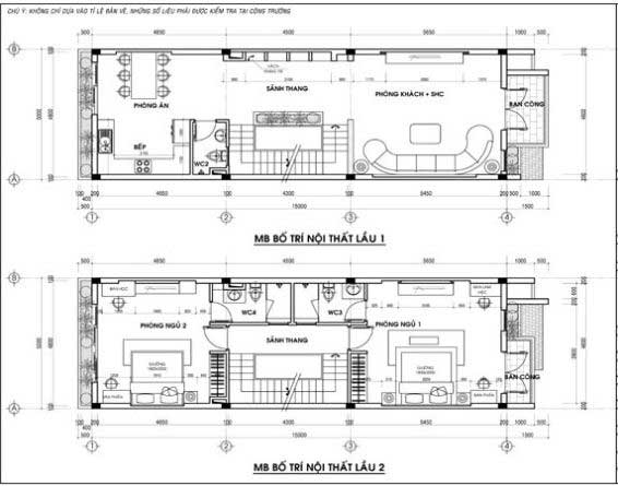
- Tầng 1: Diện tích hẹp khoảng 5m gồm có: phòng khách và bếp liên thông, ở đây nhằm tạo không gian rộn rãi, thông thoáng.
- Tầng 2 + 3: gồm có: 4 phòng ngủ – phòng tắm và nhà vệ sinh.



Mẫu nhà phố đẹp hiện đại từ bản vẽ chi tiết phía trên các bạn sẽ thấy được cách sắp xếp không gian rất hợp lý, từ phòng ngủ – phòng khách – nhà bếp…đều được biến tấu hài hòa, thuận tiện trong việc sinh hoạt chung của gia chủ và những thành viên trong gia đình.










Toàn không gian nội thất đều được sử dụng theo phong cách hiện đại, trong đó chúng tôi đã tìm hiểu tuổi hợp để bố trí nội thất nhà hợp phong thủy nhất. Trong đó màu sắc cũng được chú trọng tới, vì đây được coi là điểm nổi bật của căn nhà nên chúng tôi đã sử dụng gam màu tươi sáng, tổ điểm nét tinh tế và sang trọng của một căn nhà phố hiện đại.
Như vậy, chúng tôi đã giới thiệu xong mẫu thiết kế nhà phố đẹp mặt tiền 5m, kiến trúc nhà 5 tầng mang phong cách hiện đại được xây dựng trên diện tích 5x15m. Sau khi hoàn thiện thì chi phí trọn gói khoảng 1,5 tỷ, giá này tùy theo tài chính và vật liệu của từng địa phương.























