Bản vẽ thiết kế nhà chiều ngang 9m – Kiểu biệt thự đẹp 2024. Góp ích một phần cho mọi người, hôm nay chúng tôi xin gửi đến thông tin căn biệt thự có chiều ngang 9m với kích thước 12x24m. Theo yêu cầu của chủ đầu tư thì phải có một khoảng không gian rộng phía trước nên chúng tôi đã tham khảo và thực hiện với thiết kế sân trước rộng với chiều sâu 8m vừa làm sân kết hợp tiểu cảnh tạo nên điểm nhấn của căn biệt thự hiện đại

Về việc bố trí công năng sử dụng, kiến trúc đẹp có 3 phòng ngủ – nhà bếp + phòng ăn – phòng khách. Ở đây chúng tôi đã sử dụng những ô kính lớn nằm ngay phòng khách và phòng ăn hướng về phía hồ nước nhằm tạo không gian thoáng mát, không khí trong lành từ thiên nhiên.
Phần sau nhà chỉ để sâu 1m nhằm lấy ánh sáng từ các cửa sổ, còn diện tích còn lại được lát gạch block kết hợp trồng cây cảnh để tạo bóng mát.

Tầng 1: Phòng khác được nối liền nhà bếp và phòng ăn, Gara xe thiết kế kế bên phòng khách, khu vệ sinh chung của gia đình được đặt dưới chân cầu thang nhằm tạo sự thuận tiện và thẩm mỹ.

Tầng 2: Ở tầng này chúng tôi đã bố trí phòng ngủ nhỏ và phòng ngủ chính với diện tích 53m2 kết hợp phòng làm việc của chủ nhà. Phòng vệ sinh khép kín được ngăn bởi 1 tiền phòng thay đồ nên giải quyết được vấn đề kín đáo cho khu vệ sinh, một phòng sinh hoạt chung được bố trí giữa nhà đây cũng là vị trí thích hợp của tầng 2. Ngoài ra phòng giặt và sân phơi nằm ngay hướng ánh sáng nằm thuận tiện cho gia chủ trong việc giặt dũ.

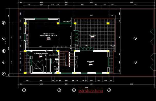
Tầng 3: Đây là coi là nơi phục vụ chung dành cho gia đình, diện tích rộng thuận tiện cho việc bố trí nơi tập thể dục cũng như tổ chức liên hoan khi có dịp, một khu vực bếp nhỏ để thuận tiện cho việc sử lý đồ ăn khi cần. Ngoài ra tầng 3 này còn được bố trí phòng thờ với sân thượng diện tích khá rộng.

Phần mái được đổ bê tông dán ngói theo phong cách mái thái, chúng tôi sử dụng kiểu mái này vì nó sẽ cân đối với chiều cao lẩn chiều rộng của công trình. Thiết kế nhà biệt thự hiện đại này được kết hợp với lan can kính cường lực tạo sự sáng trọng, mang lại vẽ đẹp thanh thoát và nhẹ nhàng hơn…
♣ Kết bài:
Với bản vẽ thiết kế nhà biệt thự chiều ngang 9m, đây sẽ là mẫu thiết kế phù hợp với nhiều gia đình. Hy vọng nội dung này sẽ giúp bạn có thật nhiều ý tưởng trong tương lai.

























