Biệt thự có phải chỉ là những tòa lâu đài, dinh thự đồ sộ, nguy nga trong tưởng tượng của mỗi người hay không? Liệu rằng chỉ sở hữu lô đất 7x12m chúng ta có thể sở hữu một căn biệt thư đẹp? Câu trả lời là hoàn toàn có thể sở hữu với những kiểu dáng biệt thự mini và để chứng minh cho điều này chúng ta cùng tìm hiểu những căn biệt thự mini 7x12m đã và đang làm say đắm biết bao chủ đầu tư. Để giúp quý khách hiểu rõ hơn về mẫu biệt thự mini 7x12m này mời các chủ đầu tư cùng tham khảo bài viết của chúng tôi ngay sau đây nhé.
Hình ảnh 3D mẫu biệt thự mini 7x12m nhỏ nhắn thanh lịch

Những căn biệt thự mini mái lệch mới lạ, độc đáo đang trở thành những lựa chọn của rất nhiều chủ đầu tư. Với diện tích 7x12m bạn hoàn toàn có thể sở hữu một căn biệt thự mini mái lệch giống như mẫu thiết kế có trên hình. Không chỉ mang đến một vẻ bề ngoài mới mẻ mà không gian nội thất bên trong của căn biệt thự này có lẽ sẽ đủ sức chinh phục ngay cả những chủ đầu tư khó tính nhất.
Chỉ có một điều cần lưu ý khi bạn lựa chọn căn biệt thự mái lệch 7x12m đó là như chúng ta quan sát những căn biệt thự mái lệch khác hẳn so với mái bằng. Nếu như biệt thự mái bằng thì phần mái được đổ bằng phẳng, trọng lực đều nhau giữa 2 bên, còn với những căn biệt thự mái lệch như mẫu biệt thự trên đây thì rõ ràng phần mái bên trái trọng lực nhẹ hơn nhiều và tập chung dồn vào phía bên phải. Nói thế có nghĩa là chúng tôi muốn khuyên các bạn nếu lựa chọn kiểu dáng biệt thự mái lệch này thì cần phải đặc biệt chú trọng nhất là khi làm móng phải được gia cố một cách chắc chắn thì mới không xảy ra hiện tượng sụt lún đáng tiếc.

Biệt thự mái thái có lẽ đang là sự lựa chọn nhiều nhất của các chủ đầu tư đặc biệt là ở khu vực nông thôn phát triển. Vẻ đẹp của căn biệt thự này hiện lên chúng ta thấy ở đó có một vẻ đẹp vừa cầu kì mang màu sắc cổ điển, vừa trang nhã thanh lịch mang màu sắc hiện đại. Phần mái thái cao ráo giúp căn nhà nổi bật với kiểu mái chữ A xếp chồng lên nhau.

Chúng ta vừa chiêm ngưỡng những công trình đầy tính nghệ thuật, sáng tạo đến từ 2 kiểu dáng thiết kế biệt thự 7x12m mái lệch và mái thái. Cùng theo dòng chảy của các phong cách mái trong thiết kế biệt thự. Chúng ta không thể nào bỏ qua được phong cách mái bằng đầy tính sáng tạo. Mỗi phong cách sẽ mang đến những nét đẹp riêng, những ưu điểm riêng lựa chọn phong cách nào còn phụ thuộc nhiều ở sở thích, tài chính của các chủ đầu tư.
Ở ngôi nhà này có thể thấy hệ thống cây xanh không chỉ được trồng trang trí bên lề cổng mà còn được sủ dụng trang trí bên trong ngôi nhà như phòng khách được đặt chậu cây kim tiền với vai trò và ý nghĩa lớn cho gia chủ là lọc không khí và mang tài vận vào nhà, đúng như tên gọi của loài cây này. Ngoài ra quý khách có thể trang trí cây cảnh trên ban công nhà, điều đó mang lại không gian trong lành cùng vẻ đẹp cho ngôi nhà, lúc nào căn nhà của bạn cũng rất hòa hợp với thiên nhiên.
Phối cảnh bản vẽ cho căn biệt thự mini 7x12m đẹp nhất năm 2021

Những bản vẽ thiết kế này sẽ giúp bạn có một cái nhìn khái quát nhất về toàn bộ tổng thể của căn biệt thự 7x12m, có thể là bản vẽ chỉ ở từng mặt bằng, có thể là bản vẽ toàn bộ căn nhà, với những bản vẽ từng mặt bằng sẽ dễ nhìn nhận hơn, từ những bản vẽ thiết kế ấy đã giúp bạn thể hiện được mọi ý tưởng đã ấp ủ bấy lâu nay. Bạn lựa chọn được một mẫu thiết kế và cảm thấy ưng ý bạn chỉ cần nhờ đến những người có kinh nghiệm, kiến thức đó là những kiến trúc sư họ sẽ giúp bạn hoàn thiện được ý tưởng cho bản vẽ hoàn chỉnh.

Như vậy từ đó chúng ta có thể thấy bản vẽ thiết kế đóng một vai trò vô cùng quan trọng trong quá thi công xây dựng một căn biệt thự. Bạn hãy thử tưởng tượng rằng nếu bạn không có trước 1 bản vẽ thiết kế cho căn biệt thự mini 7x12m mà bạn cứ thế khởi công xây dựng căn biệt thự thì sẽ khó khăn như thế nào, liệu rằng có thành công được hay không? Điều này là không thể bởi nhà thầu sẽ không hề biết bạn mong muốn xây dựng căn nhà ra sao? Cấu trúc, ý tưởng xây dựng như thế nào?

Bởi lẽ các nhà thầu không thể nào biết được bạn muốn phân chia diện tích của căn biệt thự là bao nhiêu? cho các phòng chức năng từ phòng khách, phòng ngủ, phòng bếp... Nếu không có những bản vẽ chi tiết cụ thể thì căn biệt thự của gia đình bạn có lẽ chỉ là sự chắp vá, bồi đắp từ rất nhiều căn nhà khác, xây dựng trong mơ hồ không có những con số cụ thể.
Nhưng khi có trong tay bản vẽ thiết kế thì lúc này mọi chuyện trở nên đơn giản hơn, căn biệt thự mini 7x12m cứ thế được xây dựng trong thuận lợi, dễ dàng. Khi đã được sự thống nhất giữa chủ đầu tư với kiến trúc sư thì đơn vị nhà thầu chỉ cần làm đúng theo bản thiết kế mà 2 bên đã thống nhất. Lúc này nếu phía nhà thầu làm sai mẫu thiết kế bạn có quyền phạt nhà thầu theo đúng quy định của bản hợp đồng đã thỏa thuận từ trước.
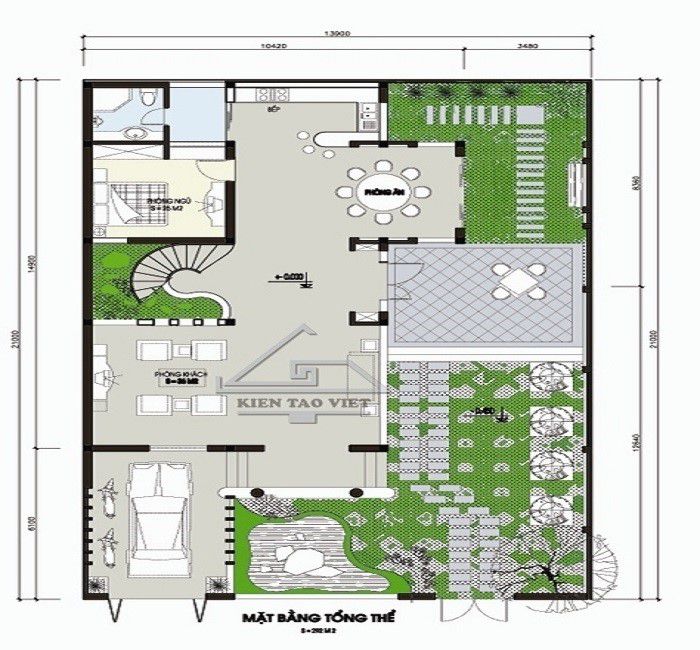
Mặt bằng tổng thể nội thất căn biệt thự mini 7x12m

Mặt bằng tổng thể nội thất cho căn biệt thự mini 7x12m có nghĩa là bản vẽ hình chiếu với mặt bằng của công trình biệt thự mini 7x12m trên khu đất xây dựng đã chuẩn bị sẵn. Ở mặt bằng tổng thể nội thất khác với bản thiết kế là nó thể hiện được vị trí của các công trình với hệ thống đường xá, cây xanh, mặt trước, mặt sau của căn biệt thự có thể là hiện có thực trên mặt bằng hoặc chỉ là dự định xây dựng và quy hoạch của khu đất.

Các kỹ sư xây dựng dựa vào mặt bằng tổng thể của căn biệt thự mini 7x12m mà từ đó có thể lên kết cấu và tiến hành sắp xếp bố trí công năng sử dụng sao cho thiết kế phù hợp với không gian của công trình. Tất cả các công trình xây dựng từ nhà ở thường là nhà cấp 4, 2 tầng đến kiểu dáng nhà biệt thự mini hay biệt thự lớn đến khách sạn hoặc là các dự án xây dựng lớn… đều cần có mặt bằng tổng với mục đích chính là phục vụ trực tiếp cho quá trình thi công được diễn ra một cách thuận lợi.

Lựa chọn sàn giao dịch thương mại điện tử Xây Dựng Số

Vì sao chúng ta nên lựa chọn sàn giao dịch thương mại điện tử Xây Dựng Số? Bởi ở đây có rất nhiều lợi ích mang đến cho các chủ đầu tư, những lợi ích thuyết phục này đã khẳng định tiếng tăm cho sàn trong suốt những năm qua. Cụ thể lợi ích thứ nhất đó là những cam kết chắc chắn từ phía nhà thầu, bởi những nhà thầu mà Xây Dựng Số cung cấp đến khách hàng đều có hồ sơ năng lực minh bạch. Hàng năm các nhà thầu đều được đưa ra để đánh giá thông qua đội ngũ chuyên gia dày dặn kinh nghiệm hàng đầu của Xây Dựng Số và còn cả sự đánh giá trực tiếp từ những đơn vị đã có công trình hoàn thiện đánh giá nên lợi ích đầu tiên của khách hàng chính là sở hữu được một nhà thầu uy tín, chất lượng hàng đầu.
Lợi ích thứ 2 là khi đến với sàn giao dịch Xây Dựng Số khi lựa chọn được những nhà thầu tại đây sẽ giúp bạn tiết kiệm được một cách tối đa chi phí xây dựng cho căn biệt thự 7x12m. Các Công ty Xây dựng tại Xây Dựng Số thì báo giá với các giải pháp kết cấu khác nhau, vật liệu xây dựng đảm bảo, cam kết không phát sinh chi phí trong quá trình xây dựng, đảm bảo đúng tiến độ thi công như trong bản hợp đồng, chấp nhận bồi thường nếu vi phạm hợp đồng... Điều này giúp chủ đầu tư tiết kiệm hàng chục triệu đến hàng trăm triệu đồng khi lựa chọn nhà thầu tại Xây Dựng Số.

Lợi ích thứ 3 là giúp các chủ đầu tư có thể bắt nhịp kịp thời với cách mạng công nghiệp 4.0. Với các lợi ích thuyết phục và cũng chính là những lí do mà trong nhiều năm qua đã có hàng ngàn chủ đầu tư đặt niềm tin tuyệt đối vào Xây Dựng Số.
Trên đây là những chia sẻ của chúng tôi về toàn bộ những kiến thức xây dựng mẫu biệt thự mini 7x12m. Hi vọng với những chia sẻ ngắn gọn này của chúng tôi sẽ giúp các chủ đầu tư có được những ý tưởng, dự định ban đầu để sớm sở hữu một căn biệt thự như ý cho gia đình mình trong tương lai.


































