Nhà cấp 4 hay còn được biết đến là kiểu dáng nhà 1 tầng, đây là một kiểu kiến trúc rất phổ biến ở nước ta đặc biệt là ở khu vực nông thôn có diện tích đất rộng rãi. Hiện nay mẫu mã nhà cấp 4 được cải tiến rất đa dạng với nhiều mẫu mã bắt mắt, hiện đại. Bạn đang quan tâm đến mẫu nhà này có thể tìm hiểu về mẫu nhà cấp 4 diện tích 200m2 tiện nghi hiện đại đang được ưa chuộng hiện nay.
Bí kíp thiết kế nhà cấp 4 200m2 đẹp – tiết kiệm chi phí
Để sở hữu được một mẫu nhà cấp 4 vừa đẹp vừa có giá thành phải chăng chúng tôi xin được chia sẻ đến quý chủ đầu tư những bí kíp nhỏ nhưng vô cùng hữu ích như:
Đầu tiên khi có kế hoạch xây dựng nhà cấp 4 bạn cần dự trù kinh phí. Mặc dù chi phí xây dựng nhà cấp 4 không nhiều như xây nhà cao tầng, tuy nhiên để đảm bảo cho công việc xây dựng diễn ra thuận lợi không bị gián đoạn thì chủ đầu tư cần dự trù kinh phí một cách rõ ràng.

- Khi đã có ý định xây nhà thì bạn nên sớm lựa chọn mẫu thiết kế phù hợp với lô đất và kinh phí của gia đình, dự trù vật liệu xây dựng. Việc làm này giúp cho bạn có kế hoạch thi công đúng như mong muốn và đúng kết cấu chất lượng. Đồng thời tối ưu hoá công năng sử dụng của ngôi nhà cấp 4 có diện tích 200m2.
- Tiếp đến để có một ngôi nhà cấp 4 chắc chắn và đẹp thì cần lựa chọn vị trí đặt nền hợp lý. Mỗi công trình xây dựng thì nền móng đóng một vai trò rất quan trọng. Để ngôi nhà được chắc khỏe thì bạn nên chọn nơi có nền bằng phẳng để nền có khả năng chịu lực tốt, từ đó giúp công trình sẽ có tuổi thọ vững bền cùng với thời gian.
- Bạn không tôn nền chắc chắn mà xây dựng nhà ở nơi nền quá thấp thì sẽ dẫn đến việc nền nhà yếu, dễ bị ngập lụt và ẩm mốc. Đặc biệt, người xây nhà cần phải chú ý tìm hiểu nếu trong trường hợp nền nhà mình ở trong khu vực san lấp ao hồ thì cần san lấp để công trình khi sử dụng không xảy ra tình trạng sụt, lún, tuổi thọ công trình không được đảm bảo.
- Để đảm bảo quá trình xây dựng diễn ra trong sự thuận lợi thì điều cần thiết và phải thực hiện ngay trước khi tiến hành xây dựng bạn cần phải chuẩn bị đầy đủ về mặt pháp lý cho ngôi nhà của mình.
- Diện tích căn nhà 200m2 tương đối rộng nhưng không vì thế mà bạn có sự sắp xếp bừa bãi, trang trí quá nhiều gây rối mắt. Bạn cần tính toán đến việc kết hợp các không gian đa năng như phòng khách với phòng bếp hay phòng khách với phòng ngủ... để tạo ra sự sắp xếp hợp lý.
- Đối với vấn đề màu sơn cho ngôi nhà thì những mẫu nhà cấp 4 hiện nay được chọn những gam màu chủ đạo thường là màu sáng. Chẳng hạn như màu trắng, màu vàng vàng nhạt, màu xanh nhạt…thường được gia chủ yêu thích. Những màu sắc này tạo cảm giác hài hòa, thoải mái. Lựa chọn những màu sơn này khiến cho người nhìn và ngôi nhà trông tươi sáng và rộng hơn rất nhiều.
- Bạn không nên lựa chọn đơn điệu sử dụng một màu hoặc gam màu quá sặc sỡ mà cần có sự kết hợp các màu sắc với nhau nhằm có sự kết hơp khéo léo chắc chắn là một điểm nhấn thú vị cho ngôi nhà cấp 4 có diện tích 200m2 của bạn.
Khi có kế hoạch xây dựng nhà cấp 4 bạn nên chọn thời điểm thích hợp. Thời điểm được coi là tốt nhất cho công trình xây dựng nhà cấp 4 đẹp nhất trong năm là 3 tháng đầu năm hoặc 3 tháng cuối năm. Thời điểm khởi công thuận lợi thì tiến độ thi công sẽ được đảm bảo đúng thời gian dự kiến sẽ tránh được những chi phí phát sinh không mong muốn do kéo dài tiến độ thi công của công trình.
Mẫu nhà cấp 4 200m2 tiện nghi hiện đại
Mẫu thiết kế nhà cấp 4 diện tích 200 m2 đầu tiên là mẫu nhà được thiết kế kèm với gara ô tô tiện lợi. Không chỉ vậy mẫu nhà còn toát lên vẻ đẹp của sự bề thế. Chẳng khác gì một căn biệt thự xa hoa, chỉ có điều mẫu nhà này được thiết kế theo xu hướng nhà cấp 4 mái thái. Nói đến phong cách này thì chúng ta có thể thấy mái nhà chính là yếu tố lớn làm nên điểm nhấn của ngôi nhà này.

Khác với mái nhà của nhà cấp 4 truyền thống chỉ là mái trùm đơn giản thông thường thì mẫu nhà này hệ mái được thiết kế với mái ngói màu xanh than chắc chắn chỉ nhìn màu sắc thôi chúng ta đã thấy sự sang trọng của ngôi nhà. Ngoài màu sắc chất liệu thì phần mái còn làm nên vẻ đẹp bởi hình thức mái chóp với nhiều chóp đỉnh bắt mắt.
Ở mẫu nhà này chúng ta thấy rõ ngôi nhà được thiết kế với 2 lối cửa ra vào. Chính giữa là cửa chính bằng gỗ 4 cánh rộng rãi, qua không gian của phòng bếp chúng ta đến với sảnh phụ với bộ cửa kính khung gỗ. Còn nói đến không gian bên trong thì đây là một không gian lí tưởng với 4 phòng ngủ, một phòng khách, 2 nhà vệ sinh chung và 1 nhà bếp tiện nghi, phục vụ tốt nhất cho sinh hoạt.

Bản phối cảnh nhà cấp 4 diện tích 200m2 trên đây được khá nhiều chủ đầu tư yêu thích. Không đồ sộ, cầu kì như mẫu thiết kế trên. Mẫu thiết nhà cấp 4 này hướng đến sự thanh thoát, hiện đại và hơn hết là một không gian sống gần gũi, chan hòa với thiên nhiên. Ngay lối sân vườn đi vào 2 bên được trồng nhiều cây cối, thảm cỏ xanh mướt.
Từ sân chúng ta nhìn vào đó là không gian đầu tiên mà chúng ta bắt gặp đó là phần sảnh chính khá rộng rãi với 2 trụ cột chắc chắn mà trắng có sự kết hợp với màu xám để tạo điểm nhấn cho vẻ ngoại thất của ngôi nhà. Từ khu vực sảnh chúng ta sẽ khám phá không gian bên trong của ngôi nhà. Đầu tiên là diện tích nhiều nhất dành cho phòng khách, bên tay phải phần đua ra là diện tích dành cho không gian bếp. Và mẫu nhà này được thiết kế với 3 phòng ngủ.
Như vậy chúng ta thấy ở mẫu nhà này có vẻ đẹp gần gũi với thiên nhiên và sự kết hợp hài hòa cân đối ở việc thiết kế phòng chức năng ở không gian bên trong của ngôi nhà.

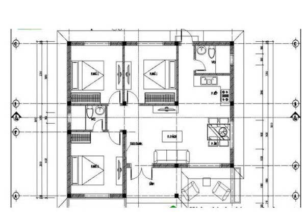
Để quý chủ đầu tư có cái nhìn cận cảnh về cụ thể các phòng chức năng của mẫu nhà cấp 4 200m2. Chúng tôi xin được giới thiệu đến các chủ đầu tư bản vẽ chi tiết toàn bộ chức năng cụ thể của một ngôi nhà cấp 4 cụ thể là: Phòng khách luôn luôn là vị trí đầu tiên của ngôi nhà vì đây là nơi mà cả gia đình sinh hoạt nhiều nhất, cũng như mỗi lần các vị khách khi đến nhà bạn thì sẽ không phải đi qua không gian sinh hoạt riêng tư mà được mời tại vị trí đầu tiên, trung tâm của ngôi nhà.
Bên phải của phòng khách là phòng ăn được lối thông với phòng bếp tạo ra một khoảng không gian rất rộng rãi. Còn phía tay trái và phía trong cùng của ngôi nhà được thiết kế với 3 phòng ngủ. Ở khu vực giữa 3 phòng ngủ được thiết kế một nhà tắm, nhà vệ sinh chung thuận tiện trong sinh hoạt.
Như vậy từ bản vẽ chi tiết này chúng ta thấy rằng với một ngôi nhà cấp 4 thì có thể hoàn toàn đáp ứng đầy đủ công năng sử dụng như một ngôi nhà 2 tầng vừa tiết kiệm chi phí xây dựng vừa đảm bảo được mục đích sử dụng của gia đình dù 4 – 5 thành viên vẫn có được sự thoải mái nhất định.

Vẻ đẹp chắc chắn, hiện đại, lung linh là những từ không nói quá về mẫu nhà cấp 4 diện tích 200m2 này. Nói ngôi nhà có vẻ đẹp chắc chắn là chúng tôi có cơ sở để chứng minh vì ngôi nhà được xây dựng với nguyên vật liệu tốt, hệ mái ngói đắt tiền, phần sảnh của ngôi nhà xung quanh với 4 trụ cột hình vuông vừa tạo điểm nhấn vừa khiến chúng ta có cảm giác về sự an toàn về độ chắc khỏe của ngôi nhà.
Nói ngôi nhà có vẻ đẹp hiện đại là bởi ngôi nhà không đi theo lối mòn của mẫu nhà cấp 4 truyền thống mà được thiết kế theo vẻ đẹp của mẫu nhà hiện đại nhất hiện nay. Từ không gian bên ngoài đến nội thất bên trong đều hướng đến vẻ đẹp của sự sang trọng, mới mẻ. Hơn nữa ngoài sự sang trọng còn là vẻ đẹp gần gũi với thiên nhiên. Xung quanh ngôi nhà được thiết kế với 3 khu vực để bạn có thể dành những lúc thời gian rảnh rỗi chăm sóc cho bồn hoa, cây cảnh để ngôi nhà thêm sinh động, bắt mắt.
Trên đây là những chia sẻ của chúng tôi về mẫu nhà cấp 4 200m2 tiện nghi. Hi vọng sẽ giúp quý khách có được một mẫu thiết kế nhà cấp 4 200m2 phù hợp nhất cho gia đình mình.

































