Hiện nay, nhiều gia đình lựa chọn thiết kế tổ ấm cho gia đình với mô hình nhà phố 4 tầng bởi không gian hiện đại, tiện nghi mà nó mang lại. Bởi vậy, các câu hỏi về chi phí xây nhà phố 4 tầng diện tích 100m2, cách tính chính xác chi phí cần bỏ ra, nên thiết kế nhà phố theo phong cách nào, chọn đơn vị xây dựng nào uy tín? Ngay bây giờ, hãy cùng Xây Dựng Số tìm hiểu qua bài viết dưới đây nhé.
1. Tư vấn cách tính diện tích xây dựng nhà 4 tầng 100 m2
Khi xây một ngôi nhà mới, ngoài việc tìm mẫu thiết kế nhà đẹp, xem phong thủy, nhiều gia chủ rất quan tâm đến bảng dự toán chi phí xây nhà.
Tư vấn phương pháp tính diện tích xây dựng nhà

Các hạng mục thi công xây nhà phố 4 tầng 100m2
- Diện tích móng cọc (hệ số 30%): 100 x 30% = 30m2
- Diện tích tầng trệt (hệ số 100%): 100 x 100% = 100m2
- Diện tích lầu 1 (hệ số 100%): 100 x 100% = 100m2
- Diện tích lầu 2 (hệ số 100%): 100 x 100% = 100m2
- Diện tích tầng thượng (hệ số 100%): 50 x 100% = 50 m2
- Diện tích sân thượng (hệ số 70%): 50 x 70% = 35 m2
- Mái bê tông cốt thép (hệ số 50%): 50 x 50% = 25 m2
- Diện tích sân nhà (hệ số 705): 20 x 70% = 14 m2
Như vật, tổng diện tích xây dựng nhà 4 tầng = 30 + 100 + 100 + 100 + 50 + 33 = 454 m2
Đơn giá xây dựng
- Xây dựng phần thô + nhân công hoàn thiện có chi phí khoảng 3.300.000 VNĐ/m2 – 4.000.000 VNĐ/m2
- Xây dựng nhà trọn gói chìa khóa trao tay có chi phí khoảng từ 4.500.000 đ/m2 đến 7.000.000 đ/m2

Lưu ý: Mức chi phí xây dựng nhà phố 4 tầng có thể tăng hoặc giảm trong quá trình thi công thực tế. Do vậy, để biết được đơn giá chính xác, bạn hãy liên hệ với các nhà thầu, công ty xây dựng chuyên nghiệp và uy tín trên hãy liên hệ với Xây dựng số. Chúng tôi sẽ kết nối bạn với nhà thầu uy tín với hồ sơ năng lực mình bạch, luôn được các chuyên gia và chủ đầu tư khác đánh giá thường xuyên.
2. Mặt bằng công năng nhà phố tân cổ điển 4 tầng 100m2

Tầng 1 được thiết kế gồm 1 phòng ăn và 1 phòng khách được ngăn cách bởi một bệ cầu thang. Ngoài ra ở cửa ra vào còn có 1 sân trước và sân sau để lưu thông không khí. Phòng khách rộng khoảng 40m2 được bố trí bởi bộ bàn ghế trường kỉ, giá gỗ đựng rượu và bức tranh treo tường. Phòng bếp được thiết kế đơn giản nhưng sang trọng đầy đủ công năng gôm 1 tủ bát treo tường, hệ thống bếp âm, bàn bếp sang trọng.

Tầng 2 và tầng 3 được thiết kế bố trí giống nhau với 2 phòng ngủ cỡ lớn ở mỗi tầng đi kèm là nhà vệ sinh. Mặt trước và mặt sau đều chừa khoảng 7-10m2 để làm ban công giúp lưu thông không khí và trồng cây xanh. Mỗi phòng ngủ có diện tích khoảng 30m2, đây chính là khoảng không gian được thiết kế tỉ mỉ, mang lại sự riêng tư cho mỗi thành viên trong gia đình.

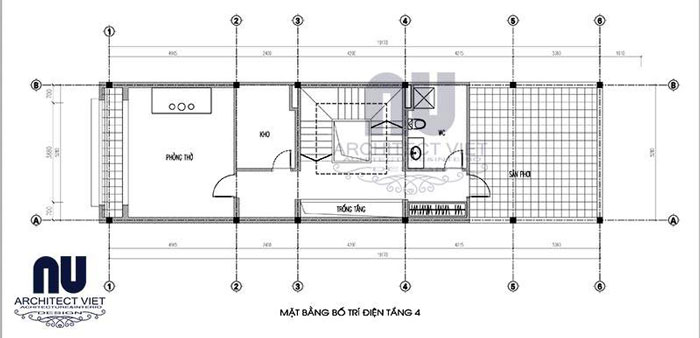
Tầng 4 là phòng thờ có diện tích khoảng 35m2, nhà kho 12m2, nhà vệ sinh và phòng giặt, sân phơi đồ. Sân phơi rộng rãi giúp gia chủ trồng cây và biến hóa theo ý mình. Cả gia đình có thể tận dụng không gian này làm nơi sinh hoạt chung, ngắm cảnh đường phố.
3. Top những mẫu nhà phố 4 tầng 100m2 sang trọng

Mẫu nhà phố 4 tầng 100m2 hiện đại luôn được đánh giá là một trong những thiết kế độc đáo bởi ngoại thất bắt mắt và tiện lợi. Ngôi nhà phố này đã thể hiện được điều đó với những ưu điểm riêng biệt về từng không gian ngoại thất bắt mắt. Tổng thể hài hòa với thiết kế xếp chồng các tầng khối giúp gia chủ có không gian sử dụng độc đáo. Cổng sử dụng chất liệu gỗ và giả gỗ để tạo sự độc đáo riêng biệt. Thiết kế cổng cao có độ che chắn tốt nhưng được thiết kế mở đảm bảo sự lưu thông không khí cho căn nhà. Tầng 2 của ngôi nhà được thiết kế mở với khu sân vườn nhỏ được thiết kế hài hòa giúp gia chủ có không gian thư giãn riêng. Tầng 3, 4 được thiết kế kín đáo với các lớp che chắn sáng màu và lỗ thoáng dày đặc nhằm đảm bảo được luồng sáng cho các căn phòng cũng như sự lưu thông không khí.

Nhìn vào mẫu nhà phố 4 tầng diện tích 100m2 trên, chúng ta có thể thấy sự khéo léo cùng đôi bàn tay tài hoa của các kiến trúc sư. Điều này thể hiện qua cách tạo điểm nhấn mặt tiền cũng như cách trang trí hài hòa để tạo dấu ấn riêng cho ngôi nhà. Công trình đã tận dụng những khoảng trống hợp lý từ mặt tiền để thiết kế ban công cửa sổ tạo không khí thoáng mát và tràn đầy sinh khí cho ngôi nhà. Các kiến trúc sơ đã thiết kế và bố trí các phòng chức năng đảm bảo sinh hoạt thoải mái nhất cho gia đình có 5 thành viên.

Khi nhìn từ xa mẫu nhà phố 4 tầng này vô cùng cuốn hút bởi sự kết hợp hài hòa giữa những khối được thiết kế vô cùng hiện đại. Ngoài ra, việc kết hợp giữa 2 tông màu đối lập trắng và tông màu tối của gạch giúp tạp nên cảm giác thanh tao, nhã nhặn nhưng không kém phần sang trọng, hiện đại. Mẫu thiết kế này mang nhiều giá trị của một cấu trúc thiết kế chuẩn mực với yếu tố tạo hình nghệ thuật. Cửa sổ, cửa ra vào, lan can ban công được làm từ kính cường lực chắc chắn có độ bền cao kết hợp với khung nhôm tối màu càng làm nổi bật lên vẻ đẹp của mẫu nhà phố 4 tầng này. Để tạo ra khoảng xanh cho ngôi nhà, từ hệ thống ban công tầng 2 đến tầng 4 đều được bố trí các chậu cây cảnh có sức sống kể cả dưới thời tiết nắng nóng hay gia chủ bận rộn ít có thời gian chăm sóc.

Ngôi nhà phố 4 tầng có view đẹp thoáng mát, các cửa sổ kính và khung kính xanh có khả năng chịu nhiệt và điều không gian giúp không gian thoáng mát và bền đẹp. Mẫu nhà phố này phù hợp với những gia đình trẻ có nhu cầu kinh doanh hoặc đông thành viên. Mặt sàn ở tầng trệt thiết kế ốp lát đá trang trí màu trắng giúp cho phòng khách và phòng bếp, khu vực ăn sáng mát sạch sẽ.

Mẫu nhà phố 4 tầng tân cổ điển vẫn luôn được đánh giá cao. Không chỉ bởi kiến trúc đặc sắc mà còn bởi không gian nội thất được bố trí sang trọng và khoa học. So với những mẫu nhà phố 4 tầng khác, ngôi nhà thiết kế mái thái trước mặt tiền có các khối trụ giật cấp đan xen. Tất cả nhằm tạo lên một phong cách quyến rũ, thu hút ánh nhìn của người đi đường. Ngôi nhà sử dụng tông màu sơn tắng là chủ đạo, vẫn đảm bảo được tính thẩm mỹ tối ưu. Dù không quá nổi bật nhưng gam màu trắng lại khiến ngôi nhà giữ được vẻ sang trọng vốn có. Không hề phô trường, mẫu nhà phố 4 tầng tân cổ điển vẫn luôn có điều gì đó đặc biệt, cuốn hút.

Ngôi nhà phố 4 tầng 100m2 này được thiết kế theo phong cách Pháp với mái thái độc đáo tạo nên nét đẹp đặc trưng và ấn tượng cho ngôi nhà. Tông màu trằng chủ đạo đã góp phần toát lên sự sang trọng và quý phái cho công trình. Thêm vào đó, ngoài ban công chính để lấy ánh sáng tự nhiên thì còn có hệ cửa sổ hay còn gọi là ban công phụ cũng rất thông thoáng nhờ lớp kính cường lực hiện đại, chắc chắn.

Mẫu nhà phố 4 tầng với đầy sắc xanh với lối kiến trúc đơn giản cũng là gợi ý hoàn hảo cho các gia chủ lựa chọn. Ngôi nhà với chất liệu chủ đạo là bê tông cốt thép với cách thiết kế gồm những hình khối màu trắng xuyên suốt. Do đó, khi nhìn từ bên ngoài, ngôi nhà có không gian thoáng đãng với mọi góc đầy sắc xanh cuốn hút. Thật tuyệ vời khi ngắm nhìn từ sân thượng xuống khu vườn dưới nhà với một sắc xanh bào trùm. Đặc biệt, ngay cả phần sân thượng hay mái cũng được kiến trúc sư tận dụng để thực hiện ý tưởng trồng cây xanh cho bóng mát, điều hòa không khí cho toàn bộ ngôi nhà.

Mẫu nhà phố 4 tầng có diện tích 100m2 với tông màu đỏ bắt mắt này được thiết kế bởi các kiến trúc sư giàu kinh nghiệm. Ngôi nhà phố đẹp hoàn mỹ với mặt tiền được thiết kế có kiểu sáng hiện đại, trẻ trung, màu sắc bắt mắt và vô cùng ấn tượng. Tông màu chủ đạo của ngôi nhà là đỏ kết hợp với trắng và một số chi tiết trang trí có sự nhấn nhá về màu sắc bởi độ tương phản giữa hai tông màu. Bên cạnh đó, căn nhà còn mang dấu ấn của kiến trúc lệch tầng. Hệ ban công và thanh lam lấy ánh sáng vừa giúp hạn chế ánh nắng vừa tăng thêm sự sang trọng cho ngôi nhà.

Trên đây là những mẫu nhà phố 4 tầng 100m2 mà Xây Dựng Số muốn giới thiệu đến các bạn. Để có thêm những lựa chọn khác cho nhà phố 4 tầng, bạn có thể tham khảo thêm tại xaydungso.vn. Xây Dựng Số được biết đến là nơi đăng tin tìm đơn vị xây nhà, nhà thầu uy tín hàng đầu Việt Nam. Hàng ngàn nhà thầu, công ty xây dựng luôn được chúng tôi chọn lọc kỹ càng và đánh giá liên tục thông qua các dự án, hồ sơ năng lực. Chúng tôi hi vọng rằng, những thông tin này sẽ giúp các gia chủ hoàn thành được ngôi nhà như mong muốn.
Xem thêm


































