Với rất nhiều gia đình với nguồn lực kinh tế thấp, rất mong muốn có thêm cho mình nhiều hơn với những thông tin, kinh nghiệm và cả tư liệu bổ ích để xây dựng ngôi nhà với chi phí rẻ. Dựa trên đó có thể tạo nên một ngôi nhà với đầy đủ chức năng sinh sống cho các thành viên trong gia đình, có thể xem đây là một chủ đề đáng được quan tâm tại cả vùng nông thôn lẫn đô thị đông đúc cư dân khi mà đại dịch đang mang đến những ảnh hưởng trầm trọng về mặt kinh tế.

Tuy đã mang đến với rất nhiều các bài viết về chủ đề với ngôi nhà sang trọng, tiện nghi nhưng chúng tôi chưa cung cấp cho quý độc giả và chủ đầu tư những tư liệu hướng đến nhiều về các không gian nhà với mức giá rẻ. Thì trong bài viết này, Xaydungso.vn sẽ cung cấp cho mọi người những kiến trúc về nhà ống với mức giá từ 400 triệu. Hy vọng chúng sẽ là những ý tưởng độc đáo cho ngôi nhà của bạn trong tương lai, nào hãy cùng chúng tôi đón xem nhé !
Danh sách nhà ống 1 tầng với chi phí xây dựng từ 400 triệu :

Với đơn giá phía trên được đưa ra, có thể xem như một con số không quá lớn và cũng không phải là quá nhỏ để xây dựng một ngôi nhà. Nhưng hãy nhớ rằng, chúng chỉ phục vụ cho công trình với kết cấu xây dựng không bao gồm các vật dụng nội thất. Nên hãy lưu ý đến chi tiết nhỏ này để xác định rõ hình thể của ngôi nhà với một bản hạch toán cụ thể cho việc xây dựng. Và đừng quên cho chúng tôi biết cảm nhận của mọi người về các thiết kế mà chúng tôi mang đến thông qua danh sách bên dưới nhé !
1. Thiết kế nhà ống 1 tầng với đơn giá 400 triệu ( Nhỏ gọn – 2 phòng ngủ)
Nhà với 2 phòng ngủ là cấu trúc thiết yếu dành cho mọi gia đình khi có thể phân chia một cách cụ thể không gian nghỉ ngơi cho các thành viên. Kèm thêm các tiện ích và công năng như nhà vệ sinh, nhà bếp, phòng khách và hành lang sẽ là điều kiện để dẫn đến các chức năng đó. Bạn có thể tham khảo qua bản vẽ này và hình dung được những gì chúng tôi vừa nhắc đến :
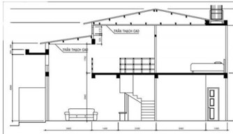
A . Bản vẽ cấu trúc

Với bố cục xây dựng vô cùng đơn giản được phân bổ và trải dài khắp diện tích xây dựng, nhà ống đẹp 1 tầng có cho mình với 2 phòng ngủ tách biệt ở đầu và cuối của ngôi nhà khi có thể thông với nhau từ nhà vệ sinh vô cùng thuận tiện và chia ra gian nhà ra 2 phần khi có 1 phòng khách, nhà bếp chính giữa và một khoảng kích thước đủ rộng để phục vụ cho các mục đích khác nhau từ gia chủ. Một thiết kế tích hợp mọi công năng và phù hợp với mọi gia đình khi chúng không sử dụng quá nhiều đến các hình thức tạo hình phức tạp mà sự tối giản có thể mang đến sự thành công cho chúng.
B. Phối cảnh nhà ống

Dựa trên phối cảnh từ ngôi nhà, có thể cảm giác được một sự tối giản trong hình thức trang trí từ cả hệ thống mặt tiền lẫn bên trong bố cục bằng một gam màu nhất định làm nên một sự kết hợp cho mục đích xây dựng ban đầu mà chủ đầu tư đã hướng đến. Diện tích rộng từ thửa đất ở vùng ngoại ô cũng là một lợi thế để khai thác nét độc đáo từ cảnh quan thiên nhiên cho sự hiện diện với cảm giác tươi mới vốn là những điều mà mọi gia đình luôn yêu thích.
2. Thiết kế nhà ống 1 tầng 4x10m với đơn giá 400 triệu kết hợp sân vườn
Khi sân vườn được xem như một phần quan trọng để tạo nên một bố cục tổng quan tinh tế cho cả một công trình xây dựng thì nhiều chủ đầu tư vẫn không quên tạo nên cho mình một khoảng không xung quanh ngôi nhà bằng một thảm thực vật đan xen. Hỗ trợ cho cả phần thẩm mỹ lẫn việc điều tiết nhiệt độ cho không gian và việc tận hưởng nguồn không khí một cách đầy đủ nhất.
A . Phối cảnh nhà ống

Phối cảnh 3d từ ngôi nhà có diện tích 4x10 cho ta thấy được nét hiện đại tuy không tạo nên quá nhiều đường nét trang trí nhưng lại là một sự phối hợp nhịp nhàng từ màu sắc đối lập. Là tông màu nâu đậm từ phía mái, chân tường, hệ thống từ gỗ tự nhiên ốp tường và cả màu sắc trắng tổng quan làm đánh bật giữa gam màu xanh một cách hiệu quả nhất. Mà đây có thể là một ý tưởng cho ngôi nhà trong tương lai của bạn.
B.Bản vẽ nhà ống 1 tầng

Với bố cục bên trong được kết hợp với đầy đủ tiện nghi cho các gia đình từ 3-4 thành viên. Với 2 phòng ngủ, 1 nhà vệ sinh sử dụng chung, 1 nhà bếp trải dài với bàn ăn và 1 phòng khách rộng rãi. Gia chủ không quên kết hợp cho kiến trúc với 1 phần sân phía trước nhà làm tăng diện tích sử dụng mà còn là nơi thư giãn một cách thỏa mái khi phía ngoài bao quanh là sân vườn mát mẻ. Bố cục từ bản vẽ vẫn được chia ra với 2 gian nhà chính với 1 là không gian sinh hoạt riêng và 1 là không gian sinh hoạt riêng.
3. Thiết kế nhà ống 1 tầng với đơn giá 400 triệu tối giản
Một trong những hình thức tiết kiệm chi phí có thể dễ dàng nhận thấy là việc sử dụng theo lối tạo hình đơn giản thay thế đi các đường nét uốn lượn, giật cấp hay tạo hình phức tạp. Chúng được sử dụng khá nhiều trong cả sở thích mà chủ đầu tư vẫn hướng đến cho công trình xây dựng của mình ngay cả thời điểm hiện đại ngày nay.
A . Phối cảnh nhà ống

Không phải là các nét tạo hình độc đáo từ bàn tay điêu luyện từ các thợ xây dựng lành nghề mà thông qua phối cảnh mặt tiền ngôi nhà đã tìm cho mình theo phương án tối giản là ý tưởng chính để khai thác. Với gam sáng từ các bức tường đối lập với màu tối từ vật liệu lợp từ mái nhà đan xen với màu đen từ cấu trúc từ cửa kính. Nhà được chủ đầu tư đánh giá cao bởi hệ thống đối lưu không khí tốt từ các ống thông gió, vật liệu lợp mái mà còn là các cửa sổ được phân bổ rộng khắp xung quanh ngôi nhà.
B.Bản vẽ nhà ống 1 tầng

Hình dạng từ bản vẽ có thể làm cho nhiều người bất ngờ vì hình dáng tạo nên, nhưng hiệu quả mà chúng mang đến cho người sử dụng sẽ làm bạn dễ dàng bị thuyết phục khi vẫn kèm cho mình với đầy đủ chức năng với :2 phòng ngủ, 1 nhà vệ sinh, 1 nhà bếp kết hợp bàn ăn và không thể thiếu không gian rộng rãi để làm chức năng tiếp khách hay sinh hoạt từ phòng khách. Tất cả làm nên một bố cục phân bổ mọi chức năng theo 4 góc nhà một cách hiệu quả nhất.
4. Thiết kế nhà ống 1 tầng kèm giác lửng với đơn giá 400 triệu nhỏ gọn
Dựa trên những thay đổi theo hướng tích cực mà kết cấu từ gác lửng được xem như một phần luôn được yêu thích từ nhiều chủ đầu tư và các gia đình mong muốn sự tiện nghi cho kết cấu bên trong ngôi nhà. Từ việc mở rộng diện tích sinh hoạt khi kết cấu này có thể kết hợp cho mình từ 1 đến 2 phòng ngủ để bề mặt tầng 1 có thể thoải mái phân bổ không gian theo nhu cầu sinh hoạt hoặc sở thích từ gia chủ
A . Phối cảnh nhà ống

Phần dẫn chứng sẽ là phối cảnh là mọi người có thể nhìn thấy thông qua ngôi nhà thứ 4 mà chúng tôi gửi đến. Là một sự hiện đại với dáng vóc tinh tế tuy không quá lớn nhưng vẫn sử dụng thoải mái cho mọi thành viên, mà các cặp vợ chồng trẻ hoàn toàn có thể lưu lại thiết kế này để sử dụng cho mình. Tuy vậy cung cần lưu ý khá nhiều đến hệ thống cách nhiệt nhằm giảm thiểu nhiệt độ cho bố cục từ kết cấu gác lửng. Khi có thể phần bên trên là không gian cho 2 phòng ngủ nơi mà bạn có thể sử dụng trong thời gian dài.
Không gian tổng quan độc đáo là một thành công để thể hiện sự giá trị mà chủ đầu tư muốn hướng đến. Khai thác được những lợi thế từ cảnh vật xung quanh mà còn khẳng định được bộ mặt của gia chủ từ vị trí mặt tiền của ngôi nhà.
B.Bản vẽ nhà ống 1 tầng

Không bất ngờ khi ngôi nhà sử dụng phần gác lửng với 2 phòng ngủ nhằm chia ra chức năng nghỉ ngơi phía bên trên riêng biệt và các chức năng sinh hoạt chung nằm phía dưới theo đúng như ý tưởng ban đầu mà gia chủ đang hướng đến cho ngôi nhà. Tất cả chức năng sinh hoạt được dựa theo sự sắp xếp theo một tổ chức khoa học hướng đến việc sinh hoạt một cách tốt nhất cho các thành viên. Đây có thể là ngôi nhà phục vụ từ 2-3 thế hệ kết hợp sinh sống khi gia chủ có thể điều tiết không gian một cách hiệu quả nhất. Khai thác được mọi vị trí hướng đến mục tiêu đã định.
Có thể đây sẽ là các chia sẻ không mang đến quá nhiều các thông tin mang tính chi tiết về hình thức tính toán chi phí, trang trí không gian hay phân bổ kết cấu phù hợp. Nhưng chúng sẽ là một gợi ý không nên bỏ qua để bạn từng bước định hình được ngôi nhà của bạn trong tương lai một cách tốt nhất. Bạn yêu thích không gian nào ? hãy để lại cho chúng tôi một lời bình luận ngay phía bên dưới nhé.
Xem thêm :
Chi phí xây dựng nhà 500 triệu




![[Free thiết kế bản vẽ] mẫu nhà ống 500 triệu cực đẹp năm 2024](/img.php?url=https%3A%2F%2Fxaydungso.vn%2F%2Fimg%2Fposts%2Fa487a0-200x160-2.jpg)








![Mẫu nhà ống 7x12m hiện đại, tiện nghi [Kèm bản vẽ thiết kế]](/img.php?url=https%3A%2F%2Fxaydungso.vn%2F%2Fimg%2Fposts%2Fa584a0-200x160-2.jpg)

![[Top thiết kế nhà đẹp 2024] Nhà ống với mức giá 800 triệu](/img.php?url=https%3A%2F%2Fxaydungso.vn%2F%2Fimg%2Fposts%2Fa604a0-200x160-2.jpg)


















