Việc thiết kế nhà được xem như một phần quan trọng của mỗi gia đình, khi chúng là không gian sống của mọi thành viên trong gia đình. Nhà có đẹp, có sang có hiện đại hay không phần lớn là do phần thiết kế từ những ý tưởng ban đầu. Vì vậy, bạn cũng hiểu tầm ảnh hưởng của các kiến trúc sư quan trọng như thế nào với một công trình và không thể không nhắc đến đơn vị thi công như những bước tiếp theo để mọi gia đình có thể tín nhiệm họ cho ngôi nhà của mình.

Trong bài viết này, chúng ta sẽ tìm hiểu các thiết kế từ không gian nhà ống có diện tích 6x20. Một trong những kích thước mà có thể xem rằng chúng hoàn toàn có thể làm nên một không không gian hoàn hảo cho các gia đình. Với điều kiện khác nhau từ chi phí thấp đến cao dành cho xu hướng năm 2024. Hãy theo dõi bài viết để tìm ra cho mình một ngôi nhà phù hợp nhất nhé !
Tổng hợp xu hướng xây dựng nhà ống đẹp từ diện tích 6x20m của năm 2024:

Xu hướng mới của năm 2024 vẫn được thể hiện từ nét thẩm mỹ từ nội và ngoại thất nhưng đã thay đổi khá nhiều từ các điểm nhấn thường thấy bằng các tạo hình được biến tấu, khắc họa chân thực. Kèm theo là màu sắc có phần nổi bật hơn kèm theo là tiện ích bên trong nội thất khi kết hợp được sự sáng tạo với ứng dụng từ nguồn vật dụng thông minh để đánh dấu cho một sự chuyển giao từ thế kỉ 4.0. Nhằm thể hiện nét chân thực nhất đến các tư liệu trên, chúng ta sẽ đến ngay với các thiết kế nằm trong xu hướng nhà ống của năm 2024.
1.Xu hướng thiết kế từ nhà ống 1 tầng với diện tích 6x20m đẹp với đầy đủ tiện nghi với 3 phòng ngủ :
Có thể nhiều người sẽ phải bất ngờ vì những thay đổi này bởi những giá trị mà nhà ống đã và đang mang đến trong năm 2024 này. Với một phong cách hiện đại với những hình khối từ bố cục mà còn là sự bất tương đồng từ các vị trí khác nhau mà mọi người thường thấy bên trong một kiến trúc Việt giúp không gian trở nên thông thoáng hơn, tối đa được diện tích sử dụng trang trí và cả sinh hoạt.
Phối cảnh ngôi nhà ống 6x20m

Đó là sự kết hợp giữa các gian được sắp xếp với một bố cục hoàn toàn khác so với các mẫu nhà ống mà bạn thường thấy. Nhìn vào cảnh quan tổng thể thì công trình có phần giống một căn biệt thự nhiều hơn so với một kiến trúc nhà ống. Với dáng vóc lịch lãm đến lạ thường mà còn là một sự phối hợp mang tính đột phá cao cho công trình thêm đặc sắc khi kết hợp với phần mái thái, làm cho ngôi nhà trở nên trọn vẹn hơn rất nhiều với dáng vẻ từng thấy.
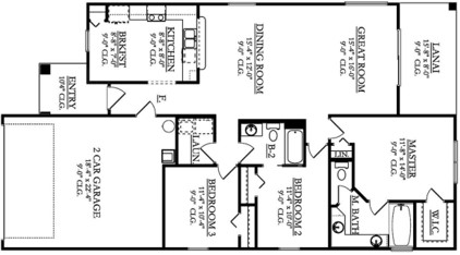
Bản vẽ thiết kế nhà ống 6x20m

Bản vẽ thiết kế ngôi nhà nằm ở một đẳng cấp hoàn toàn khác so với các công trình thông thường mà mọi thành viên có thể sử dụng theo đúng với sự hiện đại từ một bố cục hoàn toàn cao. Khi có đến 3 phòng ngủ kèm 3 nhà vệ sinh riêng, và gian nhà tiếp theo là phòng master với chức năng đầy đủ với phòng khách, nhà bếp và vị trí bàn ăn nằm ở chính giữa. Không thể quên nhắc đến kết cấu từ gara phía trước ngôi nhà làm tăng thêm giá trị một cách hiệu quả. Nhà kết hợp với 3 thế hệ sinh sống cho một gia đình lớn với 7 thành viên.
2. Xu hướng xây dựng nhà ống gác lửng với diện tích 6x20m từ không gian nội thất sang trọng :
Không bất ngờ khi tiêu đề đã phản ánh rõ không gian khi chủ đầu tư không quan trọng quá nhiều đến hình thức trang trí bên ngoài mà tập trung đến không gian nội thất. Nhằm khai thác sự hiện đại bằng các nguồn vật dụng thông minh áp dụng từ thời kỳ hiện đại của năm 2024.
Phối cảnh ngôi nhà ống 6x20m

Ngôi nhà khá giống với những kiểu tạo hình từ hình dạng nhà cấp 4 hay cả biệt thự sân vườn mà gia chủ đã định hình phong cách từ ban đầu với kiến trúc sư. Với diện tích có phần khá thoải mái khi nằm ở vùng ngoại ô thành phố, ngôi nhà tọa lạc trên một sân vườn rộng rãi khi cảnh quan cũng bổ trợ một cách hoàn hảo cho công trình thêm sắc sảo hơn rất nhiều. Phần mái nhật với các điểm nhấn phía trên cửa ra vào mà còn ứng dụng nét trang trí từ phong cách tân cổ điển từ hệ thống đèn trang trí, cửa ra vào, cửa sổ mà còn là các đường chỉ từ các bức tường. Tất cả như đã sắp xếp dựa trên sự tài tình mà kiến trúc sư nhấn mạnh cho chủ đầu tư thêm hài lòng hơn bao giờ hết.
Bản vẽ thiết kế nhà ống 6x20m

Bên trong phần nội thất là sự sắp xếp theo sự thoải mái và bám sát theo sự tiện nghi ban đầu từ hình thái được phân bổ ở các vị trí độc đáo. Bạn có thể thấy không gian phòng khách cho lối tổ chức lạ mắt và che đi hệ thống cầu thang để dẫn lên phần gác lửng phía trên. Với 2 phòng ngủ 1 nằm ở vị trí đầu và 1 nằm ở vị trí sau ngôi nhà khi ngăn cách với nhau là 1 nhà vệ sinh để thể hiện sự riêng tư cần thiết cho các thành viên. Với kết cấu gác lửng phía trên có thể sắp xếp với các gian phòng chức năng khác nhau để mở rộng phạm vi sinh hoạt hoặc sử dụng như một gian phòng chứa các vật dụng thiết yếu.
3. Thiết kế nhà ống với ý tưởng độc đáo từ diện tích 6x20m từ xu hướng 2024 với giá trị cao :
Giá trị hướng đến chính là sự tiện nghi bên trong ngôi nhà với một lối phân bổ các chức năng sáng tạo để các thành viên có thể hưởng trọn sự hiện đại. Xu hướng của năm 2024 đã nhắc đến với nét tiện nghi khi kiến trúc sư đã vẽ nên một bố cục chi tiết nhất mà đơn vị thi công có thể bám sát vào bản vẽ để làm nên công trình nhà ống hiện đại để mang đến cho chủ đầu tư.
Phối cảnh ngôi nhà ống 6x20m

Qua phối cảnh 3d mà gia chủ có thể thay thế hoặc thêm vào các chi tiết và cả những màu sắc khác nhau để cho ngôi nhà thêm hoàn thiện hơn. Với gam màu trắng chủ đạo rộng khăp phần tường nhà với phần đối lập từ hệ thống mái nhật với độ dốc cao chi tiết tạo hình ấn tượng mà vật liệu từ ngói lợp giúp chống nóng một cách hiệu quả cho không gian bên trong. Nằm trên một lô đất rộng sẽ là một lợi thế để những tiểu cảnh được tạo dựng lên mà hệ thống cây xanh đã tô điểm độc đáo cho công trình.
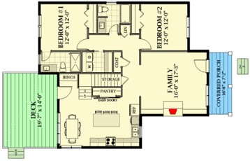
Bản vẽ thiết kế nhà ống 6x20m

Với thiết kế kế tiếp từ bản vẽ, hệ thống gác lửng có thể là một điểm sáng nhằm phân bổ không gian sinh hoạt một cách hiệu quả nhất. Khi chúng được dẫn lên bằng cầu thang nằm ở phần chính giữa ngôi nhà. Mặt bằng tầng trệt gồm có, 2 phòng ngủ, 2 nhà vệ sinh kèm với những tiện ích khác như phòng khách, phòng ăn và 1 phòng khách. Phía trước và sau ngôi nhà vẫn là 2 khoảng sân giúp thư giản một cách hiệu quả nhất, đây là yêu cầu từ phía gia chủ mà đã được kiến trúc sư thêm vào sau khi trao đổi.
4. Xu hướng xây dựng nhà ống đẹp năm 2024 từ diện tích 6x20m :
Đây có thể là thiết kế cuối cùng trong danh sách nhà ống đẹp xây dựng từ xu hướng nhà với diện tích 6x20m mà xaydunso.vn mang đến trong bài viết ngày hôm nay. Từ những biến đổi và thích nghi với hình thái sang trọng mà chúng được đánh giá rất cao dựa trên các tiêu chí xây dựng của mẫu nhà ống hiện nay.
Phối cảnh ngôi nhà ống 6x20m

Phối cảnh mặt tiền ngôi nhà từ góc chụp này đã khắc họa chân thực nhất ngôi nhà ống với kiểu dáng sang trọng. Từ phần mái thái cho đến các điểm nhấn từ hệ thống cửa ra vào, cửa số theo một lối tổ chức khoa học từ người thiết kế, khẳng định được giá trị của bản thân mà còn thỏa sức sáng tạo với công trình đã được chủ đầu tư bàn giao. Cảnh quan với nhiều màu sắc từ hoa lá, cây xanh như càng làm cho công trình thêm tinh tế, sang trọng đúng với xu hướng xây dựng nhà ống được mọi người đón chờ.
Bản vẽ thiết kế nhà ống 6x20m

Từ cửa ra vào, là một phòng khách rộng kèm một gian phòng nhỏ để chứa đồ, dẫn vào hành lang là một nhà bếp với những tiện nghi sẵn có và được tổ chức theo không gian mở hiện đại tạo nên sự thông thoáng cho không gian sinh hoạt chung và với gian nhà kế tiếp được hình thành từ 2 phòng ngủ tách biệt khi nằm chính giữa là 1 nhà vệ sinh. Tất cả đã thể hiện một chức năng sinh hoạt thuận tiện cho chủ đầu tư và các thành viên trong gia đình. Đây là sự gửi gắm tình yêu thương là sự nỗ lực từ chủ đầu tư mang đến cho các thành viên để tạo nên một cuộc sống hiện đại, cuộc sống mới một cuộc sống mà mọi gia đình mong muốn.
Vẫn còn rất nhiều các thiết kế mà trong bài viết tiếp theo chúng ta sẽ tiếp tục tìm hiểu để quý độc giả có thêm cho mình nguồn tư liệu bổ ích, ngoài ra các khách hàng có thể liên hệ trực tiếp với chúng tôi để nhận báo giá cho các công trình phía trên. Hãy tiếp tục theo dõi chúng tôi để cập nhật các xu hướng xây dựng trong năm 2024 này nhé!
Xem thêm :






![Mẫu nhà ống 7x12m hiện đại, tiện nghi [Kèm bản vẽ thiết kế]](/img.php?url=https%3A%2F%2Fxaydungso.vn%2F%2Fimg%2Fposts%2Fa584a0-200x160-2.jpg)

![[Top thiết kế nhà đẹp 2024] Nhà ống với mức giá 800 triệu](/img.php?url=https%3A%2F%2Fxaydungso.vn%2F%2Fimg%2Fposts%2Fa604a0-200x160-2.jpg)

























