https://xaydungso.vn/mau-nha-dep/thiet-ke-quan-cafe
Thiết kế quán cafe diện tích 100m2 đẹp mà vẫn đảm bảo được công năng thẩm mỹ là điều mà bất cứ chủ kinh doanh nào cũng mong muốn. Tuy nhiên, với một diện tích tương đối để làm được điều đó thì không phải là điều quá dễ dàng. Vì vậy, Xây Dựng Số sẽ chia sẻ với bạn một số mẫu và kinh nghiệm thiết kế quán cafe 100m2 bạn có thể tham khảo.
1. Những lưu ý cần biết khi thiết kế quán cafe diện tích 100m2

Trước khi lên ý tưởng thiết kế thi công quán cafe 100m2, chủ đầu tư cần xác định rõ mục tiêu để giúp bạn kinh doanh tốt hơn, đặc biệt là một số lưu ý dưới đây.
Thứ nhất, cần xác định được tập khách hàng mục tiêu. Đây chính là điểm mấu chốt trong việc thiết kế quán cafe của bạn. Bởi hầu hết các hoạt động kinh doanh quán cafe đều dựa vào nhu cầu của nhóm khách hàng mục tiêu này.
Tiếp theo là, vị trí mặt bằng mở quán phù hợp. Bạn nên chọn những địa điểm đông đúc như trường học, văn phòng, bệnh viện...
Thứ ba, xác định được phong cách quán cafe. Phong cách quán cafe cũng là một trong những yếu tố quan trọng mang đến sự thành công khi kinh doanh. Vậy nên, bạn hãy thỏa thuận và lên ý tưởng với đơn vị thiết kế ngay từ đầu. Bạn hãy dành nhiều thời gian cho việc lên ý tưởng thiết kế nội thất, ngoại thất cũng như phong cách phù hợp với diện tích. Hơn nữa, bạn nên tìm đến những đơn vị thiết kế uy tín, để họ tư vấn và giúp bạn lưạ chọn phong cách, chủ đề thiết kế phù hợp.

2. Phối cảnh thiết kế 3D quán cafe diện tích 100m2
Mẫu thiết kế quán cafe 100m2 này được bố trí có 2 tầng rộng rãi. Ngoài ra, kiến trúc sư còn tận dụng không gian phía trước với thiết kế quán cafe khung thép kết hợp với chất liệu kính trong suốt rất ấn tượng. Đây có thể được xem là mẫu thiết kế quán cafe nhà phố hot hiện nay.

Với diện tích hẹp ngang nên việc thiết kế nội thất như thế nào cho phù hợp với không gian là điều rất quan trọng. Quầy pha chế được bố trí nhỏ gọn theo chiều dọc giúp khách hàng cùng như nhân viên đi lại thuận tiện. Vách ngăn giữa không gian bên trong với ngoài trời là tủ sách được thiết kế ấn tượng, đây vừa là nơi đựng chậu cây nhỏ, vừa là cách ngăn tạo không gian riêng cho mỗi khách hàng. Nội thất được thiết kế, sắp xếp sát tường đối diện với quầy pha chế giúp quán nhân viên có không gian đi lại dễ dàng hơn. Quán được thiết kế với tông màu trung tính mang lại cảm giác gần gũi, ấm cúng cho khách hàng khi đến đây thưởng thức cafe.
Điểm ấn tượng ở không gian ngoài trời của quán cafe này chính là hệ thống ánh sáng, từ hệ thống cửa kính có thể giúp chủ kinh doanh tận dụng ánh sáng tự nhiên từ bên ngoài. Ngoài ra, ở tầng 1, bàn ghế cũng có kích thước lớn để phù hợp với nhóm khách hàng đông người. Không gian này trở nên thông thoáng hơn nhờ thiết kế giếng trời và cửa kính trong suốt chịu lực tốt. Không gian quán cafe diện tích 100m2 trở nên gần giũ với thiên nhiên hơn.

Trong mẫu thiết kế quán cà phê diện tích 100m2 trên đây, quầy pha chế được đặt tại trung tâm tầng 1 gần cầu thang dẫn lên tầng 2 của quán. Chính cách thiết kế khoa học này đã giúp khách hàng dễ dàng tiếp cận cũng như nhân viên thuận tiện di chuyển khi phục vụ trên tầng 2. Ngoài ra, tủ trưng bày những món ăn nhẹ như bánh ngọt được thiết kế nhỏ gọn với kinh trong suốt giúp khách hàng dễ lựa chọn.
3. Chi phí thiết kế quán cafe 100m2 là bao nhiêu?
Với diện tích tương đối là 100m2, việc thiết kế, bố trí, sắp xếp không gian quán sao cho vừa đẹp mắt nhưng lại khoa học là điều không mấy dễ dàng, đặc biệt với những chủ đầu tư kinh doanh không có kinh nghiệm trong việc thiết kế. Vậy nên, việc đầu tư thuê đơn vị thiết kế quán cafe sẽ đem lại hiệu quả tốt hơn. Các đơn vị thiết kế sẽ giúp bạn lên ý tưởng, chọn phong cách phù hợp với mong muốn của bạn, cũng như giúp bạn tiết kiệm chi phí và tránh phát sinh những khoản không cần thiết.
Ngoài ra, một số đơn vị thiết kế chuyên nghiệp còn giúp bạn hỗ trợ trong việc setup menu, nguồn cung nguyên liệu chất lượng... Do đó, chi thí thuê thiết kế quán cafe 100m2 sẽ dao động khoảng 18-20 triệu đồng.

Bên cạnh đó, bạn cũng cần phải có khoản kinh phí dự trù cho những vấn đề phát sinh mà bạn không thể lường trước được như in thực đơn, đồng phục cho nhân viên... Khoản chi phí phát sinh này thường khó dự tính được trước vì nó có thể thay đổi theo từng thời điểm hay biến động của thị trường. Vậy nên, bạn cần dự trù một khoản tiền khoảng 15 triệu để đảm bảo việc vận hành trơn tru nhất.
Có thể thấy, chi phí để mở quán cafe diện tích 100m2 không phải là nhỏ. Vì thế, thay vì mò mẫm tự tìm hướng đi thích hợp, những chủ kinh doanh chưa có nhiều kinh nghiệm nên tìm đến các chủ thầu, đơn vị thiết kế để rút ngắn thời gian setup, hạn chế chi phí phát sinh cũng như tiết kiệm được thời gian thi công, vận hành.
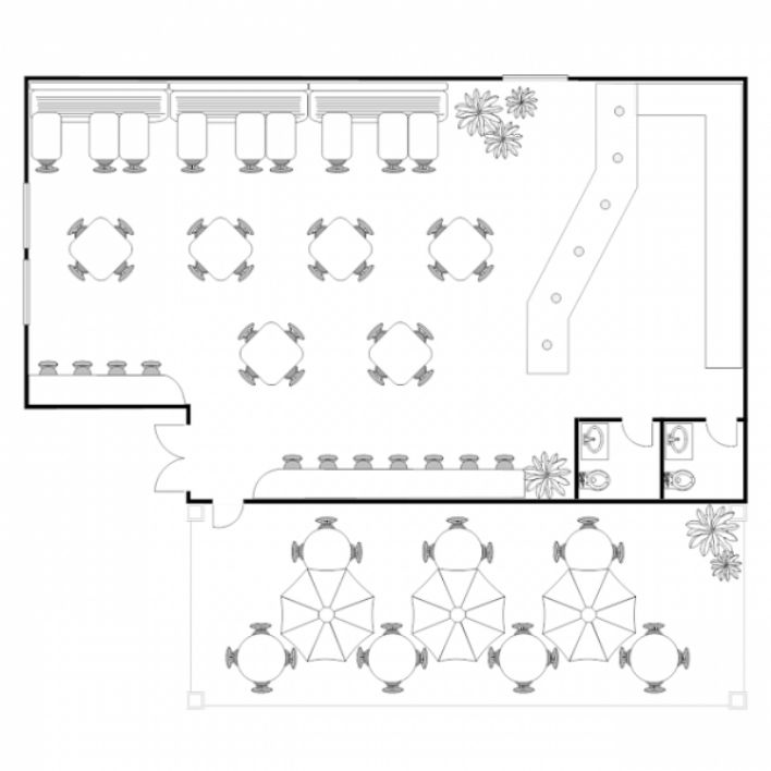
4. Mẫu thiết kế quán cafe diện tích 100m2 phong cách sân vườn sang trọng

Trong bản thiết kế mặt bằng quán cafe 100m2 sân vườn này bạn sẽ thấy diện tích quán được chia làm 2 khu vực đó là không gian ngoài trời và trong nhà. Với diện tích trong nhà, các kiến trúc sư đã cân đối trong việc sắp xếp khu vực dành cho khách, cho nhân viên và khu vệ sinh. Từ cửa chính đi vào sảnh sẽ hướng đến quầy phục vụ. Quầy phục vụ được bố trí tại đây sẽ giúp không gian quán gọn gàng và thuận tiện cho việc oder đồ uống.
Nhà vệ sinh được thiết kế 2 phòng và ở vị trí cuối cùng của quán để không ảnh hưởng đến không gian chung mà vẫn đảm bảo được yếu tố phong thủy như chủ kinh doanh yêu cầu. Khoảng sân vườn được thiết kế đơn giản với bộ ghế tròn kết hợp với ô che nắng kết hợp cùng cây xanh được trồng xung quanh, mang đến không gian trong lành, mát mẻ.

Trong trang trí quán phong cách cafe sân vườn thì không thể thiếu cây xanh. Vì vậy, đơn vị thiết kế đã sử dụng mái che kết hợp ô khi cần thiết để che nắng cũng như mang đến không gian xanh cho quán. Cây xanh được trồng xen kẽ với nhiều loại nhằm mang đến đúng chất cafe phong cách sân vườn. Có thể thấy, quán cafe 100m2 sân vườn tuy đơn giản nhưng vẫn đảm bảo về kỹ thuật cũng như các yếu tố kiến trúc đã mang đến sự hài lòng cho chủ kinh doanh.
5. Mẫu thiết kế quán cafe 100m2 phong cách hiện đại

Thời gian gần đây, xu hướng thiết kế quán cafe hiện đại được nhiều chủ đầu tư quan tâm bởi đối tượng khách hàng của những quán này là giới trẻ và nhu cầu thưởng thức cafe của họ ngày càng tăng. Do đó, với diện tích tương đối được thiết kế hiện đại với tông màu trắng trang nhã, tinh khôi sẽ thu hút được nhiều khách hàng qua lại. Ở mẫu thiết kế này, chúng ta có thể thấy những cây xanh đa dạng được trồng xung quanh khiến không gian quán rộng, thoáng hơn.
Tại tầng 1, các kiến trúc sư đã đặt một tấm biển hiệu lớn màu vàng ấn tượng. Đây chính là cách để chủ kinh doanh khẳng định thương hiệu và khiến khách hàng nhớ tới quán. Không dừng ở đó, thiết kế nội thất quán cũng được chú trọng đầu tư, quầy pha chế được sắp xếp khéo léo tại trung tâm tầng 1 với phần diện tích tương đối lớn, đáp ứng được đầy đủ nhu cầu của khách hàng.

Trong thiết kế quán cafe 100m2, yếu tố ánh sáng cũng góp phần quan trọng khiến không gian quán đẹp hơn. Vậy nên, với mầu thiết kế này, đội ngũ thiết kế đã lựa chọn ánh sáng trắng vừa đủ, nhẹ nhàng, cùng hệ thống đèn LEDD cao cấp với 2 dãy đèn thả khung sắt dơn tĩnh điện trên trần nhà để không ảnh hưởng đến ánh nhìn của khách hàng. Bàn ghế khu vực ngoài trời được thiết kế đơn giản, với chất liệu chủ yếu là gỗ và nhôm để thích nghi với điều kiện thời tiết, đồng thời gây ấn tượng về mặt thẩm mỹ. Do được để ngoài trời, nên bạn ghế được thiết kế đa năng, gọn nhẹ và có thể thu gấp dễ dàng.
Ngoài ra, quán còn gây ấn tượng với khách hàng bởi không gian xanh trong và ngoài quán. Những chậu cây xanh mát với nhiều kích thước khác nhau được bố trí hàu hòa giúp tăng tính thẩm mỹ và không gian thoáng mát hơn. Bên cạnh đó, những đồ dùng trang trí như tranh ảnh được treo trên tường cũng thu hút sự chú ý của khách hàng.
Với những chia sẻ chi tiết về thiết kế quán cafe diện tích 100m2 trên đây, Xây dựng số hi vọng bạn đã có những thông tin hữu ích, có sự lựa chọn phù hợp cho mô hình kinh doanh quán cà phê của mình. Chúc các bạn thành công.
Xem thêm:
Thiết kế quán cafe tân cổ điển
Thiết kế quán cafe phong cách Nhật Bản


































