Xây dựng biệt thự một trong những lĩnh vực xây dựng đang có xu hướng phát triển tại nước ta. Bạn đang muốn tìm hiểu về một mẫu thiết kế biệt thự cho gia đình mình. Bạn đang băn khoăn, lo lắng cho công trình xây dựng tiền tỷ này. Bài viết của chúng tôi hôm nay sẽ giúp bạn tháo gỡ những lo lắng ấy thông qua việc giới thiệu đến khách hàng những hình ảnh 3D, phối cảnh bản vẽ, mặt bằng tổng thể căn biệt thự 500m2 đẹp sang chảnh nhất hiện nay.
Hình ảnh 3D mẫu biệt thự 500m2 đẹp sang chảnh nhất hiện nay

Căn biệt thự có diện tích 500m2 dù là bạn lựa chọn phong cách nào đi chăng nữa thì đều mang đến một không gian sống rộng rãi, xa hoa, bề thế. Nhận biết đây là một công trình xây dựng lớn thì đòi hỏi các chủ đầu tư phải có sự chuẩn bị kĩ lưỡng về khâu lựa chọn mẫu thiết kế sao cho phù hợp với mức tài chính của gia đình, vì mỗi phong cách thiết kế lại có mức chi phí khác nhau, vì độ kĩ thuật đòi hỏi là khác nhau. Dưới đây là một số hình ảnh 3D mẫu biệt thự 500m2 được yêu thích, mới mẻ nhất năm 2021.

Mẫu thiết kế biệt thự đầu tiên chúng tôi gửi đến các chủ đầu tư là một phong cách biệt thự kiểu Pháp. Được thiết kế 3 tầng khá đồ sộ, nhìn vào tổng thể căn biệt thự chúng ta bước đầu đã hình dung được sự bề thế của căn nhà. Không gian sống được bao bọc kín đáo, chắc khỏe. Hệ thống cửa kính có mặt ở tất cả các phòng trên căn biệt thự, điều này giúp cho căn biệt thự không chỉ có tính thẩm mỹ cao mà còn khiến cho ánh sáng của tự nhiên tràn ngập khắp căn phòng.

Biệt thự theo phong cách mái lệch hiện đại đang là xu hướng thiết kế được rất nhiều các chủ đầu tư quan tâm. Căn biệt thự này được thiết kế với 2 mặt tiền. Hàng rào được lựa chọn là các song sắt tĩnh điện bền màu, khỏe đẹp cùng thời gian, song sắt còn khiến cho chúng ta có cảm giác thông thoáng, khi chiêm ngưỡng căn biệt thự từ bên ngoài, cũng như thành viên trong gia đình nhìn từ bên trong ra bên ngoài. Tuy nhiên với hệ mái lệch có độ dốc nên đòi hỏi khi gia cố móng bạn phải tuyệt đối cẩn trọng, đảm bảo độ chắc chắn tuyệt đối vì thường hệ mái lệch có trọng lực thường dồn về một phía nên dễ xảy ra hiện tượng sụt lún. Nhưng khi gia cố móng cẩn thận thì bạn hoàn toàn yên tâm.

Phong cách cổ điển bề thế, lộng lẫy là sự lựa chọn của tất cả những chủ đầu tư có thế mạnh, tiềm lực kinh tế. Cha ông ta xưa nay có câu trong dân gian rằng “ Đắt xắt ra miếng” mặc dù những căn biệt thự 500m2 này khi xây dựng chắc chắn sẽ có mức chi phí cao. Bởi lẽ mỗi căn biệt thự xây dựng theo phong cách cổ điển có mức báo giá chi phí lên đến 9.000.000 VNĐ đến 10.000.000 VNĐ/m2 nhưng đổi lại bạn sẽ sở hữu được một căn biệt thự mang tầm cỡ, quy mô lớn. Khi hoàn thiện căn biệt thự sẽ là điểm nổi bật cả một vùng, khẳng định được tiếng tăm, đẳng cấp của gia chủ.

Bạn biết cách tiết chế với mức chi phí hiện có của gia đình. Với mức chi phí nhẹ nhàng hơn đó là mẫu thiết kế biệt thự 500m2 mang phong cách hiện đại mái thái. Đồng thời mẫu thiết kế này còn dành cho những gia chủ yêu thích sự nhẹ nhàng, khoáng đạt. Không quá cầu kì nhưng toát lên vẻ đẹp của sự hiện đại khiến nhiều chủ đầu tư cũng ngẩn ngơ và không lỡ bỏ qua mẫu biệt thự mái thái 500m2 này.
Phối cảnh bản vẽ mẫu biệt thự 500m2 đẹp nhất hiện nay

Bản vẽ trên đây của chúng tôi là một căn biệt thự có diện tích 500m2 được thiết kế theo phong cách tân cổ điển. Một phong cách được rất nhiều các chủ đầu tư quan tâm. Ở phong cách này chính là sự thừa hưởng một nét đẹp cổ điển nhưng cũng là sự cổng hưởng tuyệt vời với những nét đẹp của phong cách hiện đại này nay. Chiêm ngưỡng bản vẽ này chúng ta thấy rõ ràng căn biệt thự được thiết kế với 3 tầng, hệ cửa sổ được bố trí khắp các phòng chức năng điều này càng khiến cho ngôi biệt thự thêm phần rộng rãi, thông thoáng.

Trên đây là cụ thể cho một bản vẽ của căn biệt thự có mặt bằng là 500m2. Xung quanh không gian của căn biệt thự là khoảng sân trước rộng rãi, tại đây bạn có thể trồng nhiều cây xanh vừa tạo bóng mát, thẩm mĩ vừa mang đến một bầu không khí trong lành cho cuộc sống của gia đình bạn.
Qua khu vực sân trước thoáng đãng chúng ta cùng khám phá bên trong của căn biệt thự qua khu vực sảnh chính phòng chức năng đầu tiên của mọi căn nhà Việt Nam chính là không gian dành cho phòng khách. Tại phòng khách cũng dành một vị trí trang nghiêm dành cho khu vực của phòng thờ, xung quanh 4 bên của phòng khách được thiết kế với 4 phòng ngủ tiện nghi, thoải mái, khu bếp và phòng ăn được tách biệt thành một khu riêng để tránh hoàn toàn việc mùi thức ăn khi bạn thực hiện việc bếp núc.

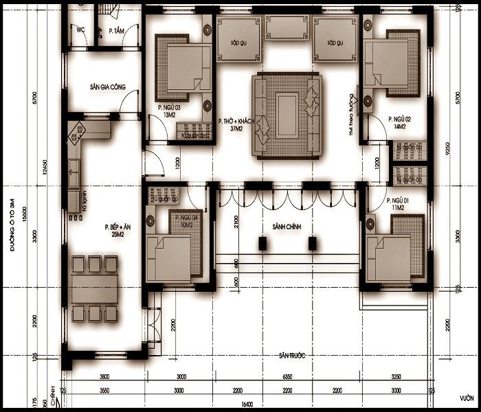
Mặt bằng tổng thể nội thất căn biệt thự 500m2 đẹp nhất hiện nay
Để các chủ đầu tư có cái nhìn toàn diện về mẫu thiết kế biệt thự 500m2 ngoài hình ảnh 3D, phối cảnh bản vẽ, chúng tôi còn giới thiệu đến các chủ đầu tư cụ thể những mặt bằng tổng thể nội thất căn biệt thự 500m2 đẹp nhất hiện nay.

Trên đây là mặt bằng tổng thể lầu 1 của căn biệt thự 500m2. Để có một không gian sống trong lành thì xung quanh ngôi biệt thự được trồng khá nhiều cây xanh, và để xua tan đi cái nắng nóng của mùa hè, tận hưởng những giây phút thoải mái, khi ở căn biệt thự được thiết kế với một bể bơi trong xanh, mát mẻ. Khuôn viên bên trong lầu 1 của căn biệt thự này được thiết kế với các phòng sinh hoạt chung như phòng khách, phòng bếp nối liền với phòng ăn... Tất cả đã tạo ra một không gian có lối thiết kế hài hòa, hợp lý.

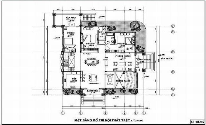
Tiếp đến vẫn là một mặt bằng tổng thể dành cho căn biệt thự 500m2 theo phong cách mái thái. Ở mặt bằng tầng 1 này chúng ta thấy ngôi biệt thự này được thiết kế theo kiểu dáng biệt thự mái thái chữ L. Ngay ở khu vực tầng 1 cũng được phát huy tối đa công năng sử dụng. Từ sảnh chính vào chúng ta bắt gặp ngay đó là phòng khách, bên phía tay phải của phòng khách là phòng bếp cộng với phòng ăn rồi đi ra sảnh phụ của căn biệt thự. Phần sảnh phụ này giúp phòng bếp có một không gian đi ra bên ngoài, theo đó mùi thức ăn cũng được đưa ra ngoài bằng ô cửa lớn. Bên phía tay trái của căn biệt thự 500m2 này được bố trí với 3 phòng ngủ tiện nghi, là không gian riêng tư lý tưởng của mỗi thành viên trong gia đình.
Sàn giao dịch thương mại điện tử Xây Dựng Số
Bạn đã lên đầy đủ ý tưởng, có đầy đủ kinh phí xây dựng, việc làm quan trọng tiếp theo của bạn chính là làm sao để lựa chọn được một nhà thầu, một đơn vị thiết kế, thi công biệt thự uy tín, chất lượng cao. Hiện nay trên thị trường khi mà bão hòa thông tin, bạn có quá nhiều mối lo về một đơn vị nhà thầu chuyên nghiệp để gửi gắm niềm tin cho những công trình của mình. Đừng lo xaydungso.vn sẽ giúp bạn giải quyết tất cả những mối lo đó.

Tất cả những băn khoăn, lo lắng của các bạn sẽ được giải quyết khi bạn lựa chọn chúng tôi - Sàn giao dịch thương mại điện tử Xây Dựng Số chuyên về lĩnh vực xây dựng. Tại đây bạn sẽ được chúng tôi tư vấn miến phí về việc lựa chọn một nhà thầu hàng đầu cả nước. Dù bạn ở bất cứ tỉnh thành nào trên 54 tỉnh thành của Việt Nam là chúng tôi đều có mặt và cung cấp đến bạn những dịch vụ liên quan đến xây dựng tốt nhất trên thị trường hiện nay.

Vì sao chúng tôi lại có thể khẳng định được tiếng tăm của mình đến vậy? Bởi trong nhiều năm qua chúng tôi đã mang đến sự hài lòng cho hàng nghàn công trình trên cả nước. Mỗi công trình đi qua là chúng tôi lại nhận thêm được sự tin tưởng, lời khen của khách hàng. Mỗi nhà thầu tại Xây Dựng Số hàng năm đều có sự đánh giá thực tế từ các chủ đầu tư cũng như chuyên gia về lĩnh vực xây dựng hàng đầu của Xây Dựng Số đánh giá chất lượng. Mỗi nhà thầu đều có hồ sơ năng lực công ty rõ ràng, minh bạch. Chính vì vậy bạn có thể hoàn toàn yên tâm giao phó công trình xây dựng biệt thự 500m2 cho những khối óc, bàn tay chuyên nghiệp nhất trên cả nước thông qua Xây Dựng Số. Chúc bạn sớm hoàn thiện những ngôi nhà biệt thự như mơ.
Xem thêm
Mẫu biệt thự 300m2 đẹp hiện nay


































