Một trong những hình thức xây dựng phổ biến hiện nay được nhiều chủ đầu tư có tiềm lực kinh tế lựa chọn đó chính là hình thức xây dựng biệt thự. Bạn đang quan tâm về mẫu mã, kiểu dáng của một căn biệt thự có diện tích 400m2. Qua bài viết của chúng tôi hôm nay sẽ giúp các chủ đầu tư có được cho mình những mẫu biệt thự 400m2 đẹp nhất hiện nay.
Hình ảnh 3D mẫu biệt thự 400m2 đẹp nhất hiện nay
Khi đã chuẩn bị về mặt tài chính bạn có ý định xây dựng một căn biệt thự có diện tích 400m2, điều đầu tiên bạn nghĩ đến sẽ là lựa chọn được một mẫu biệt thự 400m2 sao cho vừa đảm bảo về yếu tố kinh phí, vừa đảm bảo yếu tố thẩm mỹ. Dưới đây là một số hình ảnh 3D toàn cảnh về mẫu biệt thự đẹp nhất hiện nay, bạn có thể tham khảo.

Mẫu biệt thự sân vườn hòa hợp với thiên nhiên là là điều mà rất nhiều chủ đầu tư yêu thích hướng đến. Không chỉ những chủ đầu tư ở khu vực nông thôn yêu thích mà thậm chí cả những chủ đầu tư ở thành phố muốn tận hưởng một cuộc sống thanh bình, yên ả theo phong cách biệt thự sân vườn. Xung quanh bốn bề căn biệt thự được trồng nhiều cây xanh không chỉ mang đến một không gian đẹp mà còn khiến cho căn biệt thự tràn ngập bầu không khí trong lành, mát mẻ.
Ngắm nhìn mẫu biệt thự sang trọng này chúng ta thấy được một ngôi nhà thực sự như trong mơ khi hiện trạng ô nhiễm môi trường, đất chật người đông đang khiến chúng ta quá mệt mỏi. Những mẫu nhà sống xanh luôn là nguồn cảm hứng bất tận nhất. Bởi mang không gian sống xanh đến cho các thành viên trong gia đình của mình góp phần bảo vệ sức khỏe. Đây là ý tưởng không tồi được rất nhiều chủ đầu tư áp dụng. Cuộc sống luôn là chuỗi những ngày làm việc mệt mỏi, sau cuối ngày làm việc căng thẳng, mệt mỏi bạn có thể dành thời gian rảnh để chăm sóc cây cảnh, để thư giãn vào những buổi tối đẹp trời thì thật sự là một ý tưởng tuyệt vời để lấy lại tinh thần cho những dự định sắp tới.

Phong cách thiết kế biệt thự 400m2 theo hướng hiện đại kết hợp gara ô tô rộng rãi, cùng hệ sân vườn thoáng đãng cũng là điều mà rất nhiều chủ đầu tư yêu thích. Toát lên ngôi biệt thự này là sự thanh thoát. Tại khu vực tầng trệt được thiết kế với bãi gara ô tô rộng rãi, phía bên trong căn biệt thự ở tầng trệt được thiết kế không gian sinh hoạt chung thoáng đãng, khu vực tầng 2 là khu vực sinh hoạt riêng gồm có phòng ngủ và phòng thờ, điểm nhấn trên tầng 2 của ngôi nhà này chính là bởi hệ cửa kính và lan can kính cường lực cực kì bắt mắt và hiện đại.

Một trong những phong cách thiết kế đẹp mắt, hiện đại, chi phí xây dựng tiết kiệm đó là mẫu thiết kế biệt thự 2 tầng mái thái. Nghe đến phong cách thiết kế mái thái chúng ta đã thấy sự nổi bật nhất của căn biệt thự chính là hệ mái thái màu xanh than thu hút cái nhìn từ xa, ngoài ra ở căn biệt thự này là còn mang đến một vẻ đẹp vô cùng thu hút nhờ một sự kết hợp hài hòa giữa tổng thể bên ngoài từ màu sắc trắng sáng đến gam màu xám trầm trung tính, lối thiết kế ấn tượng, đặc biệt ở khu vực tầng 2 phần lan can kính cường lực cao cấp, phía trên là giàn hoa bắt mắt, bạn có thể kê một bộ bàn ghế nhỏ xinh để tận hưởng sự yên tĩnh thư thái trong những lúc rảnh rỗi.

Bạn là một chủ đầu tư có tiềm lực mạnh về kinh tế, bạn là người thích sự cầu kì, tỉ mỉ, thích một phong cách cổ xưa bề thế. Đó là những gì chúng tôi muốn giới thiệu đến khách hàng qua phong cách thiết kế biệt thự cổ điển 400m2 của chúng tôi trên đây. Khi sở hữu căn biệt thự này điều chúng ta có thể dễ dàng nhận thấy đó là độ kĩ thuật cao với những đường nét, hoa văn điêu luyện. Không chỉ ghi dấu ấn bằng một vẻ ngoại thất đồ sộ mà bên trong ngoại thất của căn biệt thự này chẳng khác gì một tòa lâu đài, cung điện dành cho giới quý tộc xưa kia. Và dĩ nhiên, những mẫu thiết kế như trên luôn thể hiện đẳng cấp độc tôn của chủ nhà và khẳng định bề thế gia đình.

Với mẫu biệt thự 400m2 bạn hoàn toàn có thể tham khảo phong cách tân cổ điển của chúng tôi trên đây. Toàn thể ngôi biệt thự toát lên thần thái của một lối thiết kế vừa pha chút hoài cổ của nét đẹp cổ điển vừa khẳng định tính hiện đại hòa quyện tạo nên một tổng thể căn biệt thự mà khiến cho nhiều chủ đầu tư không thể cưỡng lại được vẻ đẹp, bề thế từ mẫu biệt thự này mang đến. Thật tinh tế khi xung quanh ngôi biệt thự được, phần lan can của mỗi tầng được trồng nhiều cây xanh và hoa bắt mắt, nhưng điều ấy chỉ là điểm nhấn nhỏ cho căn biệt thự, điều làm nên vẻ đẹp chính cho ngôi nhà chính là bởi lối thiết kế sáng tạo, độc đáo ở cả bên ngoài lẫn bên trong của căn biệt thự.
Phối cảnh bản vẽ mẫu thiết kế biệt thự 400m2
Để cụ thể cho mẫu thiết kế biệt thự 400m2 chúng ta cùng đi khám phá phối cảnh bản vẽ, mặt bằng tổng thể nội thất của căn biệt thự có diện tích 400m2 theo phong cách tân cổ điển cụ thể, rõ ràng.

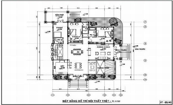
Về việc bố trí công năng sử dụng trong khuôn viên diện tích của căn biệt thự là 400m2. Đây là một căn biệt thự có diện tích tương đối lớn, chính vì vậy việc bố trí công năng sử dụng cũng như phối cảnh nội thất đây sẽ là một bài toán khó đối với rất nhiều kiến trúc sư. Bạn cần lựa chọn được đội ngũ kiến trúc sư, công ty xây dựng uy tín, chất lượng, chuyên nghiệp. Từ đó bạn mới có ý tưởng thiết kế cũng như bài trí cho không gian căn biệt thự 400m2 của gia đình mình một cách hợp lý, hài hòa.

Phối cảnh biệt thự 400m2 3 tầng theo phong cách tân cổ điển đang dần trở thành một trong những xu hướng thiết kế biệt thự được nhiều chủ đầu tư ưu tiên lựa chọn trong những năm gần đây. Căn biệt thự với diện tích 400m2 toát lên vẻ đẹp huy hoàng và vô cùng tráng lệ từ hình thức bề ngoài đến không gian bên trong. Chắc chắn mẫu biệt thự này sẽ có thể làm hài lòng tất cả các chủ đầu tư ngay cả những gia chủ khó tính nhất.

Mặt bằng tổng thể nội thất biệt thự 400m2
Một trong những yếu tố cũng rất quan trọng khi thiết kế biệt thự 400m2 đó chính là yếu tố màu sắc trong thiết kế nội thất. Mỗi phong cách sẽ có những gam màu đặc trưng riêng, chẳng hạn như căn biệt thự tân cổ điển 400m2 thì màu sơn trắng là gam màu chủ đạo được sử dụng trong biệt thự ở cả bề ngoài lẫn bên trong. Phần mái và phần khung cửa lựa chọn màu nâu trầm sẽ là sự kết hợp hoàn hảo mang đến một tổng thể tuyệt vời cho căn biệt thự mang đến một vẻ đẹp lộng lẫy và sang trọng, bất ngờ.

Gam màu trắng làm chủ đạo đây được xem là gam màu phổ biến nhất ở mọi phong cách thiết kế biệt thự, bởi màu trắng sẽ giúp cho căn biệt thự nổi bật dễ kết hợp, phối màu với các gam màu khác. Khu vực bên trong nội thất khi màu chủ đạo làm màu trắng còn giúp làm bật tone màu của các sản phẩm nội thất. Chiêm ngưỡng từ xa hay lại gần căn biệt thự chúng ta đều nhận thấy ở đó toát lên vẻ đẹp của sự sang trọng và kiêu sa, trẻ trung, khỏe khoắn với vẻ đẹp vượt thời gian.

Hoa văn cũng là một trong những yếu tố đặc trưng trong thiết kế biệt thự. Các họa tiết hoa văn cần có sự đăng đối cùng các họa tiết trang trí cầu kỳ, mang tính nghệ thuật cao, đòi hỏi sự điêu luyện trong thiết kế đặc biệt là những căn biệt thự theo phong cách cổ điển hoặc tân cổ điển. Các họa tiết hoa văn trong căn biệt thự thể hiện được những đường nét mềm mại, tinh tế với sự uốn lượn và các đường bo cong nhịp nhàng... Từng góc cạnh trong căn biệt thự đều được xử lý tạo nên sự hiện đại, bề thế.
Lựa chọn Xây Dựng Số nơi kết nối ước mơ
Bạn đã có cho mình được một ý tưởng thiết kế, một mẫu biệt thự, một phong cách cho riêng mình. Nhưng điều quan tâm tiếp theo đó là việc làm sao để mẫu thiết kế ấy trở thành hiện thực. Với một công trình lớn như xây dựng biệt thự thì đòi hỏi bạn phải có sự kĩ lưỡng, cẩn trọng trong việc lựa chọn đơn vị thiết kế, thi công uy tín, chuyên nghiệp.

Đến với chúng tôi sàn giao dịch thương mại điện tử - Xây Dựng Số nơi kết nối giữa các chủ đầu tư và nhà thầu chuyên nghiệp dù bạn ở tỉnh thành nào thì chúng tôi cũng sẵn sàng cung cấp đến bạn hệ thống nhà thầu chuyên nghiệp hàng đầu nơi bạn sinh sống. Trong quá trình thi công đến khi hoàn thiện cam kết chất lượng, thời gian thi công để không xảy ra gián đoạn, không phát sinh chi phí, mức giá phù hợp, hồ sơ năng lực công ty rõ ràng... Đó là tất cả những gì mà các công ty xây dựng đã thực hiện thành công ở rất nhiều công trình trong những năm qua.
Xem thêm
Mẫu biệt thự 1 tầng có 5 phòng ngủ đẹp


































